Property
Account |
| Property ID: | 800386 | Abbreviated Legal Description: | LOT 1 OH SP-BLA 98-1.13210.089-3530 & .091-3760 V3 SP P226 AF#98026257 |
| Geographic ID: | R13210-095-3700 | Agent Code: | |
| Type: | Real | | |
| Tax Area: | 100 - APPRAISER-OH Schl Dist, in OH | Land Use Code | 11 |
| Open Space: | N | DFL | N |
| Historic Property: | N | Remodel Property: | N |
| Multi-Family Redevelopment: | N | | |
| Township: | 32 | Section: | 10 |
| Range: | R1 |
Location |
| Address: | 1680 BALDA RD OAK HARBOR, WA 98277 | Mapsco: | |
| Neighborhood: | Cycle 1 | Map ID: | 117 |
| Neighborhood CD: | 1 |
Owner |
| Name: | CAMPBELL, WILLIAM | Owner ID: | 311493 |
| Mailing Address: | 1680 BALDA RD OAK HARBOR, WA 98277 | % Ownership: | 100.0000000000% |
| | | Exemptions: | |
Taxes and Assessment Details
Values
| (+) Improvement Homesite Value: | + | $0 | |
| (+) Improvement Non-Homesite Value: | + | $290,428 | |
| (+) Land Homesite Value: | + | $0 | |
| (+) Land Non-Homesite Value: | + | $310,000 | |
| (+) Curr Use (HS): | + | $0 | $0 |
| (+) Curr Use (NHS): | + | $0 | $0 |
| | | -------------------------- | |
| (=) Market Value: | = | $600,428 | |
| (–) Productivity Loss: | – | $0 | |
| | | -------------------------- | |
| (=) Subtotal: | = | $600,428 | |
| (+) Senior Appraised Value: | + | $0 | |
| (+) Non-Senior Appraised Value: | + | $600,428 | |
| | | -------------------------- | |
| (=) Total Appraised Value: | = | $600,428 | |
| (–) Senior Exemption Loss: | – | $0 | |
| (–) Exemption Loss: | – | $0 | |
| | | -------------------------- | |
| (=) Taxable Value: | = | $600,428 | |
Taxing Jurisdiction
| Owner: | CAMPBELL, WILLIAM | | |
| % Ownership: | 100.0000000000% | | |
| Total Value: | $600,428 | | |
| Tax Area: | 100 - APPRAISER-OH Schl Dist, in OH |
| CF | Conservation Futures | 0.0313996660 | $600,428 | $600,428 | $18.85 | | |
| CEM1 | Cemetery #1 | 0.0040018856 | $600,428 | $600,428 | $2.40 | | |
| COH | City of Oak Harbor | 2.3090730572 | $600,428 | $600,428 | $1,386.43 | | |
| OAKBOND | City of Oak Harbor BOND | 0.1902260131 | $600,428 | $600,428 | $114.22 | | |
| HOBOND | Hospital BOND | 0.1893405597 | $600,428 | $600,428 | $113.69 | | |
| HOGEN | Hospital GEN | 0.3848777722 | $600,428 | $600,428 | $231.09 | | |
| CE | County Current Expense | 0.3674210519 | $600,428 | $600,428 | $220.61 | | |
| ISLANDEMS | Hospital GEN (EMS) | 0.4952018576 | $600,428 | $600,428 | $297.33 | | |
| LIB | Library Sno-Isle GEN | 0.3039084203 | $600,428 | $600,428 | $182.48 | | |
| NWHIDPRMT | P & R N Whidbey GEN | 0.1990272349 | $600,428 | $600,428 | $119.50 | | |
| SCH201MO | School 201 Enrichment | 2.3851112745 | $600,428 | $600,428 | $1,432.09 | | |
| ST | State School | 1.4761226122 | $600,428 | $600,428 | $886.31 | | |
| ST2 | State School Part 2 | 0.7953803475 | $600,428 | $600,428 | $477.57 | | |
| | Total Tax Rate: | 9.1310917527 | | | | | |
| | | | | Taxes w/Current Exemptions: | $5,482.57 | | |
| | | | | Taxes w/o Exemptions: | $5,482.57 | | |
Improvement / Building
| Improvement #1: | RESIDENTIAL | State Code: | Y | 1896.0 sqft | Value: | $290,428 |
| Bathrooms: | 2 | Bedrooms: | 3 | | Ceiling: | DRY WALL SPRAYED | Exterior Wall/Cover: | WOOD SIDING | | Floor Covering: | VINYL/HARDWOOD 60-40 | Floor Structure: | WOOD W/SUBFLOOR | | Foundation: | CONCRETE | Heating: | FHA GAS | | Interior Finish: | DRYWALL PAINT | Plumbing Fixture Cnt: | 10 | | Roof Slope: | 4" IN 12" | Roof Structure/Cover: | CJ ASPHALT |
|
| | Type | Description | Class CD | Sub Class CD | Year Built | Area |
| | BAS | BASE/MAIN FLOOR | 3 | 0 | 1960 | 1896.0 |
| | AGR | ATTACHED GARAGE | 3 | 0 | 1960 | 720.0 |
Sketch
Property Image
Land
| 1 | 18 | AC (02.01-03.00) | 2.9800 | 129808.80 | 0.00 | 0.00 | 1.00 | $310,000 | $0 |
Roll Value History
| 2026 | N/A | N/A | N/A | N/A | N/A |
| 2025 | $290,428 | $310,000 | $0 | $600,428 | $600,428 |
| 2024 | $294,287 | $300,000 | $0 | $594,287 | $594,287 |
| 2023 | $282,708 | $300,000 | $0 | $582,708 | $582,708 |
| 2022 | $259,484 | $280,000 | $0 | $539,484 | $539,484 |
| 2021 | $195,801 | $225,000 | $0 | $420,801 | $420,801 |
| 2020 | $191,738 | $210,000 | $0 | $401,738 | $401,738 |
| 2019 | $145,639 | $260,000 | $0 | $405,639 | $405,639 |
| 2018 | $146,181 | $210,000 | $0 | $356,181 | $356,181 |
| 2017 | $141,134 | $190,000 | $0 | $331,134 | $331,134 |
| 2016 | $143,448 | $170,000 | $0 | $313,448 | $313,448 |
| 2015 | $145,760 | $120,000 | $0 | $265,760 | $265,760 |
| 2014 | $148,074 | $120,000 | $0 | $268,074 | $268,074 |
| 2013 | $150,389 | $123,250 | $0 | $273,639 | $273,639 |
| 2012 | $152,703 | $123,250 | $0 | $275,953 | $275,953 |
| 2011 | $162,620 | $145,000 | $0 | $307,620 | $307,620 |
| 2010 | $168,495 | $145,000 | $0 | $313,495 | $313,495 |
| 2009 | $176,243 | $196,000 | $0 | $372,243 | $372,243 |
| 2008 | $186,410 | $196,020 | $0 | $382,430 | $382,430 |
| 2007 | $189,736 | $196,020 | $0 | $385,756 | $385,756 |
Deed and Sales History
| 1 | 12/22/2025 | QCD | Quit Claim Deed | CAMPBELL, JESSICA MARA | CAMPBELL, WILLIAM | | | $0.00 | 65808 | 4595110 |
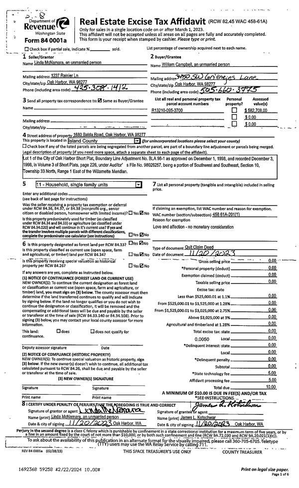
| 2 | 11/20/2023 | QCD | Quit Claim Deed | MCNAMARA, LINDA | CAMPBELL, WILLIAM | | | $0.00 | 59258 | 4569642 |
| 3 | 04/09/2021 | WD | Warranty Deed | FLOWERS FAMILY | MCNAMARA, LINDA | | | $800,000.00 | 47795 | 4516566 |
| 4 | 09/27/2006 | QCD | Quit Claim Deed | DAVIS, DANNY L | FLOWERS FAMILY, | | | $75,000.00 | 64191 | 4183056 |
| 5 | 02/25/2004 | PRD | Personal Representatives Deed | FLOWERS FAMILY, | DAVIS, DANNY L | | | $0.00 | 50740 | 4127006 |
| 6 | 10/26/2000 | WD | Warranty Deed | FLOWERS ET AL, CHIRA T | FLOWERS FAMILY, | | | $0.00 | 4124 | 20018957 |
| 7 | 04/30/1999 | WD | Warranty Deed | FLOWERS ET AL, CHIRA T | FLOWERS ET AL, CHIRA T | | | $0.00 | 91689 | 99010685 |
| 8 | 12/22/1998 | WD | Warranty Deed | Unknown | FLOWERS ET AL, CHIRA T | | | $0.00 | 85202 | 98028377 |
Payout Agreement
| No payout information available.. |