Property
Account |
| Property ID: | 800539 | Abbreviated Legal Description: | 0.8600 Acres ins Section 26s Township 32s Range R1s LOT A BLA 098/19 AF#4463351 IN GL1;s |
| Geographic ID: | R13226-024-2130 | Agent Code: | |
| Type: | Real | | |
| Tax Area: | 310 - APPRAISER-Cpvl Schl Dist, outside Cpvl, improved & 1 acre or less | Land Use Code | 11 |
| Open Space: | N | DFL | N |
| Historic Property: | N | Remodel Property: | N |
| Multi-Family Redevelopment: | N | | |
| Township: | 32 | Section: | 26 |
| Range: | R1 |
Location |
| Address: | 664 INDIAN HILL RD COUPEVILLE, WA 98239 | Mapsco: | |
| Neighborhood: | Area 2 Waterfront Eastside Res | Map ID: | 158 |
| Neighborhood CD: | 2WFTE01R |
Owner |
| Name: | MIRANDA, DANIEL L | Owner ID: | 185492 |
| Mailing Address: | MARILYN A MIRANDA PO BOX 785 COUPEVILLE, WA 98239-0785 | % Ownership: | 100.0000000000% |
| | | Exemptions: | |
Taxes and Assessment Details
Values
| (+) Improvement Homesite Value: | + | $0 | |
| (+) Improvement Non-Homesite Value: | + | $1,119,193 | |
| (+) Land Homesite Value: | + | $0 | |
| (+) Land Non-Homesite Value: | + | $745,000 | |
| (+) Curr Use (HS): | + | $0 | $0 |
| (+) Curr Use (NHS): | + | $0 | $0 |
| | | -------------------------- | |
| (=) Market Value: | = | $1,864,193 | |
| (–) Productivity Loss: | – | $0 | |
| | | -------------------------- | |
| (=) Subtotal: | = | $1,864,193 | |
| (+) Senior Appraised Value: | + | $0 | |
| (+) Non-Senior Appraised Value: | + | $1,864,193 | |
| | | -------------------------- | |
| (=) Total Appraised Value: | = | $1,864,193 | |
| (–) Senior Exemption Loss: | – | $0 | |
| (–) Exemption Loss: | – | $0 | |
| | | -------------------------- | |
| (=) Taxable Value: | = | $1,864,193 | |
Taxing Jurisdiction
| Owner: | MIRANDA, DANIEL L | | |
| % Ownership: | 100.0000000000% | | |
| Total Value: | $1,864,193 | | |
| Tax Area: | 310 - APPRAISER-Cpvl Schl Dist, outside Cpvl, improved & 1 acre or less |
| CF | Conservation Futures | 0.0313996660 | $1,864,193 | $1,864,193 | $58.54 | | |
| CEM2 | Cemetery #2 | 0.0092609791 | $1,864,193 | $1,864,193 | $17.26 | | |
| FIRE5 | Fire & Rescue Dist #5 C Whidbey GEN | 1.1892169230 | $1,864,193 | $1,864,193 | $2,216.93 | | |
| FIRE5BOND | Fire & Rescue Dist #5 C Whidbey BOND | 0.1394359503 | $1,864,193 | $1,864,193 | $259.94 | | |
| HOBOND | Hospital BOND | 0.1893405597 | $1,864,193 | $1,864,193 | $352.97 | | |
| HOGEN | Hospital GEN | 0.3848777722 | $1,864,193 | $1,864,193 | $717.49 | | |
| CE | County Current Expense | 0.3674210519 | $1,864,193 | $1,864,193 | $684.94 | | |
| CR | County Roads | 0.4614296361 | $1,864,193 | $1,864,193 | $860.19 | | |
| ISLANDEMS | Hospital GEN (EMS) | 0.4952018576 | $1,864,193 | $1,864,193 | $923.15 | | |
| LIB | Library Sno-Isle GEN | 0.3039084203 | $1,864,193 | $1,864,193 | $566.54 | | |
| LIBCAP | Library Sno-Isle BOND (Cap Fac Imp Area) | 0.0528562629 | $1,864,193 | $1,864,193 | $98.53 | | |
| POCOUP | Port of Coupeville GEN | 0.1065226063 | $1,864,193 | $1,864,193 | $198.58 | | |
| POCOUPIDD | Port of Coupeville IDD | 0.3353038577 | $1,864,193 | $1,864,193 | $625.07 | | |
| COUPSDTECH | School 204 CP (TECH) | 0.1215123397 | $1,864,193 | $1,864,193 | $226.52 | | |
| SCH204MO | School 204 Enrichment | 0.6416662518 | $1,864,193 | $1,864,193 | $1,196.19 | | |
| ST | State School | 1.4761226122 | $1,864,193 | $1,864,193 | $2,751.78 | | |
| ST2 | State School Part 2 | 0.7953803475 | $1,864,193 | $1,864,193 | $1,482.74 | | |
| | Total Tax Rate: | 7.1008570943 | | | | | |
| | | | | Taxes w/Current Exemptions: | $13,237.36 | | |
| | | | | Taxes w/o Exemptions: | $13,237.36 | | |
Improvement / Building
| Improvement #1: | RESIDENTIAL | State Code: | Y | 3708.0 sqft | Value: | $1,119,193 |
| Bathrooms: | 2.5 | Bedrooms: | 3 | | Ceiling: | DRYWALL PAINTED | Exterior Wall/Cover: | SHINGLE | | Floor Covering: | COLORED CONCRETE | Floor Structure: | SLAB ON GRADE | | Foundation: | CONCRETE | Heating: | RADIANT FLOOR | | Interior Finish: | DRYWALL PAINT | Plumbing Fixture Cnt: | 16 | | Roof Slope: | 5" IN 12" | Roof Structure/Cover: | BEAM ASPHALT |
|
| | Type | Description | Class CD | Sub Class CD | Year Built | Area |
| | BAS | BASE/MAIN FLOOR | 7 | 0 | 2020 | 2845.5 |
| | UPS | UPPER STORY | 7 | 0 | 2020 | 862.5 |
| | AGR | ATTACHED GARAGE | 7 | 0 | 2020 | 1394.5 |
| | OP4 | OPEN PORCH W/CEILING-ROOF | 7 | 0 | 2020 | 182.0 |
| | OP4 | OPEN PORCH W/CEILING-ROOF | 7 | 0 | 2020 | 246.0 |
| | OWP | OPEN WOOD PORCH W/STEPS | 7 | 0 | 2020 | 350.0 |
| | OP4 | OPEN PORCH W/CEILING-ROOF | 7 | 0 | 2020 | 165.0 |
Sketch
| No sketches available for this property. |
Property Image
Land
| 1 | LB | LOW BANK | 0.0000 | 0.00 | 77.00 | 0.00 | 1.00 | $745,000 | $0 |
Roll Value History
| 2026 | N/A | N/A | N/A | N/A | N/A |
| 2025 | $1,119,193 | $745,000 | $0 | $1,864,193 | $1,864,193 |
| 2024 | $1,117,938 | $720,000 | $0 | $1,837,938 | $1,837,938 |
| 2023 | $1,126,810 | $720,000 | $0 | $1,846,810 | $1,846,810 |
| 2022 | $1,031,071 | $690,000 | $0 | $1,721,071 | $1,721,071 |
| 2021 | $912,888 | $575,000 | $0 | $1,487,888 | $1,487,888 |
| 2020 | $750,578 | $300,000 | $0 | $1,050,578 | $1,050,578 |
| 2019 | $0 | $300,000 | $0 | $300,000 | $300,000 |
| 2018 | $0 | $300,000 | $0 | $300,000 | $300,000 |
| 2017 | $0 | $300,000 | $0 | $300,000 | $300,000 |
| 2016 | $0 | $300,000 | $0 | $300,000 | $300,000 |
| 2015 | $0 | $300,000 | $0 | $300,000 | $300,000 |
| 2014 | $0 | $300,000 | $0 | $300,000 | $300,000 |
| 2013 | $0 | $301,184 | $0 | $301,184 | $301,184 |
| 2012 | $0 | $301,184 | $0 | $301,184 | $301,184 |
| 2011 | $0 | $301,184 | $0 | $301,184 | $301,184 |
| 2010 | $0 | $301,184 | $0 | $301,184 | $301,184 |
| 2009 | $0 | $351,035 | $0 | $351,035 | $351,035 |
| 2008 | $0 | $351,035 | $0 | $351,035 | $351,035 |
| 2007 | $0 | $351,035 | $0 | $351,035 | $351,035 |
Deed and Sales History
| 1 | 01/02/2020 | QCD | Quit Claim Deed | VIEWRIDGE INVESTMENTS, LLC | MIRANDA, DANIEL L | | | $0.00 | 41693 | 4478629 |
| 2 | 07/05/2019 | WD | Warranty Deed | LARSON-GREEN, LLC | VIEWRIDGE INVESTMENTS, LLC | | | $300,000.00 | 39340 | 4466871 |
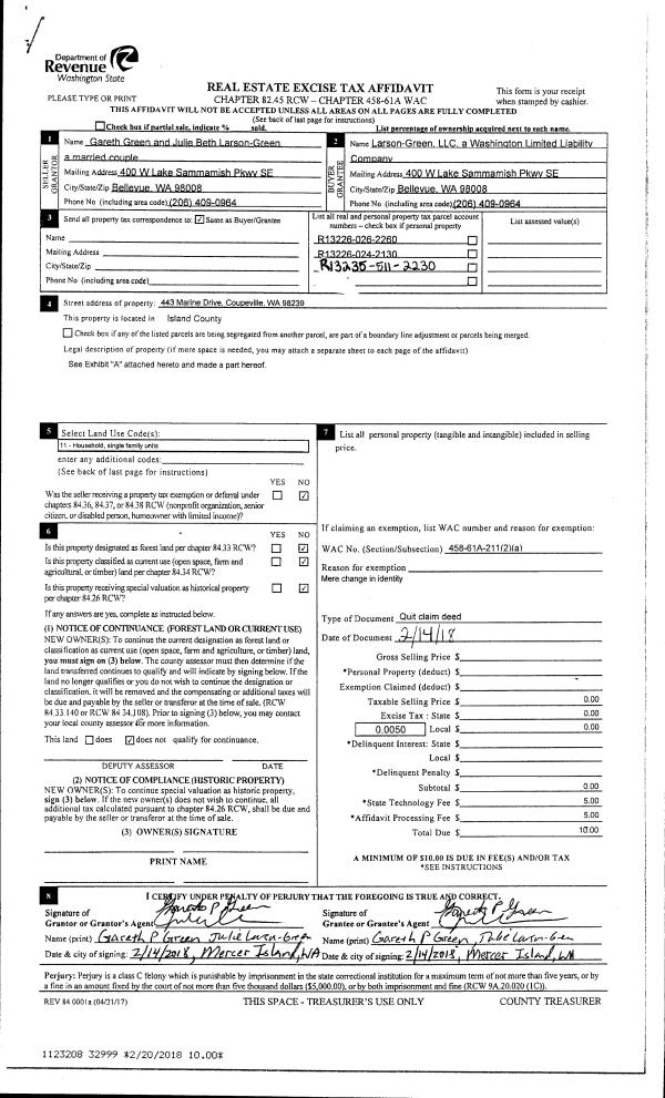
| 3 | 02/14/2018 | QCD | Quit Claim Deed | GREEN, GARETH | LARSON-GREEN, LLC | | | $0.00 | 32999 | 4439481 |
| 4 | 12/14/2016 | WD | Warranty Deed | PICKARD FAMILY LLC ET AL | GREEN, GARETH | | | $1,200,000.00 | 27435 | 4413738 |
|   | |
| 5 | 03/25/1999 | BLA | DNU - Boundary Line Adjustment | Unknown | PICKARD ET AL, HERBERT E | | | $0.00 | 68212 | 98020512 |
| 6 | 01/25/1999 | QCD | Quit Claim Deed | PICKARD ET AL, HERBERT E | PICKARD FAMILY LLC ET AL, | | | $0.00 | 90615 | 99004314 |
Payout Agreement
| No payout information available.. |