Property
Account |
| Property ID: | 800905 | Abbreviated Legal Description: | HIGHLANDS WEST #6 LOT 22 |
| Geographic ID: | S7132-06-00022-0 | Agent Code: | |
| Type: | Real | | |
| Tax Area: | 100 - APPRAISER-OH Schl Dist, in OH | Land Use Code | 11 |
| Open Space: | N | DFL | N |
| Historic Property: | N | Remodel Property: | N |
| Multi-Family Redevelopment: | N | | |
| Township: | | Section: | |
| Range: | |
Location |
| Address: | 434 SW STROOPS DR OAK HARBOR, WA 98277 | Mapsco: | |
| Neighborhood: | Cycle 1 | Map ID: | 97 |
| Neighborhood CD: | 1 |
Owner |
| Name: | ESTATE OF ROSE MARIE LYONS | Owner ID: | 317333 |
| Mailing Address: | 2182 NORCLIFFE WAY OAK HARBOR, WA 98277 | % Ownership: | 100.0000000000% |
| | | Exemptions: | |
Taxes and Assessment Details
Values
| (+) Improvement Homesite Value: | + | $0 | |
| (+) Improvement Non-Homesite Value: | + | $290,050 | |
| (+) Land Homesite Value: | + | $0 | |
| (+) Land Non-Homesite Value: | + | $210,000 | |
| (+) Curr Use (HS): | + | $0 | $0 |
| (+) Curr Use (NHS): | + | $0 | $0 |
| | | -------------------------- | |
| (=) Market Value: | = | $500,050 | |
| (–) Productivity Loss: | – | $0 | |
| | | -------------------------- | |
| (=) Subtotal: | = | $500,050 | |
| (+) Senior Appraised Value: | + | $0 | |
| (+) Non-Senior Appraised Value: | + | $500,050 | |
| | | -------------------------- | |
| (=) Total Appraised Value: | = | $500,050 | |
| (–) Senior Exemption Loss: | – | $0 | |
| (–) Exemption Loss: | – | $0 | |
| | | -------------------------- | |
| (=) Taxable Value: | = | $500,050 | |
Taxing Jurisdiction
| Owner: | ESTATE OF ROSE MARIE LYONS | | |
| % Ownership: | 100.0000000000% | | |
| Total Value: | $500,050 | | |
| Tax Area: | 100 - APPRAISER-OH Schl Dist, in OH |
| CF | Conservation Futures | 0.0313996660 | $500,050 | $500,050 | $15.70 | | |
| CEM1 | Cemetery #1 | 0.0040018856 | $500,050 | $500,050 | $2.00 | | |
| COH | City of Oak Harbor | 2.3090730572 | $500,050 | $500,050 | $1,154.65 | | |
| OAKBOND | City of Oak Harbor BOND | 0.1902260131 | $500,050 | $500,050 | $95.12 | | |
| HOBOND | Hospital BOND | 0.1893405597 | $500,050 | $500,050 | $94.68 | | |
| HOGEN | Hospital GEN | 0.3848777722 | $500,050 | $500,050 | $192.46 | | |
| CE | County Current Expense | 0.3674210519 | $500,050 | $500,050 | $183.73 | | |
| ISLANDEMS | Hospital GEN (EMS) | 0.4952018576 | $500,050 | $500,050 | $247.63 | | |
| LIB | Library Sno-Isle GEN | 0.3039084203 | $500,050 | $500,050 | $151.97 | | |
| NWHIDPRMT | P & R N Whidbey GEN | 0.1990272349 | $500,050 | $500,050 | $99.52 | | |
| SCH201MO | School 201 Enrichment | 2.3851112745 | $500,050 | $500,050 | $1,192.67 | | |
| ST | State School | 1.4761226122 | $500,050 | $500,050 | $738.14 | | |
| ST2 | State School Part 2 | 0.7953803475 | $500,050 | $500,050 | $397.73 | | |
| | Total Tax Rate: | 9.1310917527 | | | | | |
| | | | | Taxes w/Current Exemptions: | $4,566.00 | | |
| | | | | Taxes w/o Exemptions: | $4,566.00 | | |
Improvement / Building
| Improvement #1: | RESIDENTIAL | State Code: | Y | 1616.2 sqft | Value: | $290,050 |
| Bathrooms: | 2.5 | Bedrooms: | 3 | | Ceiling: | DRYWALL PAINTED | Exterior Wall/Cover: | CEMENT FIBER | | Floor Covering: | CARPET/VINYL 80-20 | Floor Structure: | WOOD W/SUBFLOOR | | Foundation: | CONCRETE | Heating: | FHA GAS | | Interior Finish: | DRYWALL PAINT | Plumbing Fixture Cnt: | 11 | | Roof Slope: | 6" IN 12" | Roof Structure/Cover: | CJ ASPHALT |
|
| | Type | Description | Class CD | Sub Class CD | Year Built | Area |
| | BAS | BASE/MAIN FLOOR | 3 | 0 | 1999 | 1616.2 |
| | AGR | ATTACHED GARAGE | 3 | 0 | 1999 | 456.0 |
| | OWC | OPEN WOOD PORCH W/STEPS/ROOF/C | 3 | 0 | 1999 | 55.9 |
| | OWC | OPEN WOOD PORCH W/STEPS/ROOF/C | 3 | 0 | 1999 | 120.0 |
Sketch
Property Image
Land
| 1 | 14 | SQ (08001-12000) | 0.0000 | 0.00 | 0.00 | 0.00 | 1.00 | $210,000 | $0 |
Roll Value History
| 2026 | N/A | N/A | N/A | N/A | N/A |
| 2025 | $290,050 | $210,000 | $0 | $500,050 | $500,050 |
| 2024 | $293,534 | $190,000 | $0 | $483,534 | $106,431 |
| 2023 | $290,050 | $190,000 | $0 | $480,050 | $106,431 |
| 2022 | $265,801 | $180,000 | $0 | $445,801 | $106,431 |
| 2021 | $233,862 | $120,000 | $0 | $353,862 | $106,431 |
| 2020 | $227,571 | $100,000 | $0 | $327,571 | $106,431 |
| 2019 | $164,906 | $150,000 | $0 | $314,906 | $106,431 |
| 2018 | $165,378 | $130,000 | $0 | $295,378 | $106,431 |
| 2017 | $142,144 | $110,000 | $0 | $252,144 | $100,858 |
| 2016 | $143,898 | $90,000 | $0 | $233,898 | $93,559 |
| 2015 | $145,654 | $70,000 | $0 | $215,654 | $86,262 |
| 2014 | $147,409 | $55,000 | $0 | $202,409 | $80,964 |
| 2013 | $149,163 | $55,000 | $0 | $204,163 | $81,665 |
| 2012 | $150,918 | $68,000 | $0 | $218,918 | $87,567 |
| 2011 | $147,723 | $68,000 | $0 | $215,723 | $86,289 |
| 2010 | $154,892 | $68,000 | $0 | $222,892 | $89,157 |
| 2009 | $161,694 | $75,000 | $0 | $236,694 | $94,678 |
| 2008 | $163,616 | $100,280 | $0 | $263,896 | $105,558 |
| 2007 | $166,077 | $100,000 | $0 | $266,077 | $266,077 |
Deed and Sales History
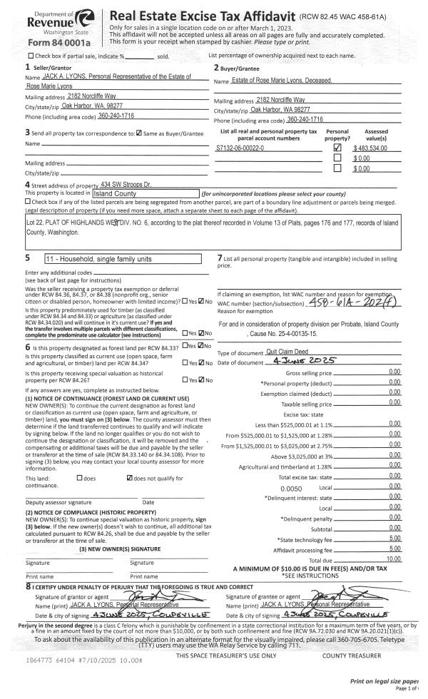
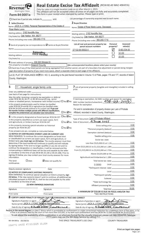
| 1 | 07/24/2025 | WD | Warranty Deed | ESTATE OF ROSE MARIE LYONS | MOENA, WADE MICHAEL | | | $524,500.00 | 64473 | 4589578 |
| 2 | 06/04/2025 | QCD | Quit Claim Deed | JACK A LYONS, PR | ESTATE OF ROSE MARIE LYONS | | | $0.00 | 64104 | 4588043 |
| 3 | 06/04/2025 | LACPROBATE | Lack of Probate | JACK A LYONS, PR | ESTATE OF ROSE MARIE LYONS | | | $0.00 | 64102 | 4588043 |
| 4 | 02/02/2000 | WD | Warranty Deed | ENCINAS, JOHN C | LYONS, JACK A | | | $167,900.00 | 437 | 20002219 |
| 5 | 09/03/1999 | WD | Warranty Deed | K & E INVESTORS INC, | ENCINAS, JOHN C | | | $44,000.00 | 93709 | 99020884 |
| 6 | 01/01/1900 | OTHER | Other - Misc. Documents | Unknown | K & E INVESTORS INC, | | | $0.00 | 0 | 0 |
Payout Agreement
| No payout information available.. |