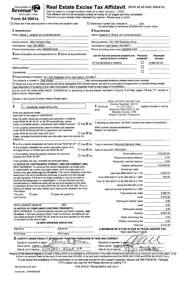
Property
Account |
| Property ID: | 800912 | Abbreviated Legal Description: | HIGHLANDS WEST #6 LOT 30 |
| Geographic ID: | S7132-06-00030-0 | Agent Code: | |
| Type: | Real | | |
| Tax Area: | 100 - APPRAISER-OH Schl Dist, in OH | Land Use Code | 11 |
| Open Space: | N | DFL | N |
| Historic Property: | N | Remodel Property: | N |
| Multi-Family Redevelopment: | N | | |
| Township: | | Section: | |
| Range: | |
Location |
| Address: | 1811 SW ROBERTSON DR OAK HARBOR, WA 98277 | Mapsco: | |
| Neighborhood: | Cycle 1 | Map ID: | 97 |
| Neighborhood CD: | 1 |
Owner |
| Name: | RIVERA, ANGELINA N | Owner ID: | 301828 |
| Mailing Address: | 91-1169 KAIAU AVE APT 105 KAPOLEI, HI 96707-2965 | % Ownership: | 100.0000000000% |
| | | Exemptions: | |
Taxes and Assessment Details
Values
| (+) Improvement Homesite Value: | + | $0 | |
| (+) Improvement Non-Homesite Value: | + | $348,607 | |
| (+) Land Homesite Value: | + | $0 | |
| (+) Land Non-Homesite Value: | + | $210,000 | |
| (+) Curr Use (HS): | + | $0 | $0 |
| (+) Curr Use (NHS): | + | $0 | $0 |
| | | -------------------------- | |
| (=) Market Value: | = | $558,607 | |
| (–) Productivity Loss: | – | $0 | |
| | | -------------------------- | |
| (=) Subtotal: | = | $558,607 | |
| (+) Senior Appraised Value: | + | $0 | |
| (+) Non-Senior Appraised Value: | + | $558,607 | |
| | | -------------------------- | |
| (=) Total Appraised Value: | = | $558,607 | |
| (–) Senior Exemption Loss: | – | $0 | |
| (–) Exemption Loss: | – | $0 | |
| | | -------------------------- | |
| (=) Taxable Value: | = | $558,607 | |
Taxing Jurisdiction
| Owner: | RIVERA, ANGELINA N | | |
| % Ownership: | 100.0000000000% | | |
| Total Value: | $558,607 | | |
| Tax Area: | 100 - APPRAISER-OH Schl Dist, in OH |
| CF | Conservation Futures | 0.0313996660 | $558,607 | $558,607 | $17.54 | | |
| CEM1 | Cemetery #1 | 0.0040018856 | $558,607 | $558,607 | $2.24 | | |
| COH | City of Oak Harbor | 2.3090730572 | $558,607 | $558,607 | $1,289.86 | | |
| OAKBOND | City of Oak Harbor BOND | 0.1902260131 | $558,607 | $558,607 | $106.26 | | |
| HOBOND | Hospital BOND | 0.1893405597 | $558,607 | $558,607 | $105.77 | | |
| HOGEN | Hospital GEN | 0.3848777722 | $558,607 | $558,607 | $215.00 | | |
| CE | County Current Expense | 0.3674210519 | $558,607 | $558,607 | $205.24 | | |
| ISLANDEMS | Hospital GEN (EMS) | 0.4952018576 | $558,607 | $558,607 | $276.62 | | |
| LIB | Library Sno-Isle GEN | 0.3039084203 | $558,607 | $558,607 | $169.77 | | |
| NWHIDPRMT | P & R N Whidbey GEN | 0.1990272349 | $558,607 | $558,607 | $111.18 | | |
| SCH201MO | School 201 Enrichment | 2.3851112745 | $558,607 | $558,607 | $1,332.34 | | |
| ST | State School | 1.4761226122 | $558,607 | $558,607 | $824.57 | | |
| ST2 | State School Part 2 | 0.7953803475 | $558,607 | $558,607 | $444.31 | | |
| | Total Tax Rate: | 9.1310917527 | | | | | |
| | | | | Taxes w/Current Exemptions: | $5,100.70 | | |
| | | | | Taxes w/o Exemptions: | $5,100.70 | | |
Improvement / Building
| Improvement #1: | RESIDENTIAL | State Code: | Y | 1981.0 sqft | Value: | $348,607 |
| Bathrooms: | 2 | Bedrooms: | 3 | | Ceiling: | DRYWALL PAINTED | Exterior Wall/Cover: | CEMENT FIBER | | Floor Covering: | CARPET/VINYL 80-20 | Floor Structure: | WOOD W/SUBFLOOR | | Foundation: | CONCRETE | Heating: | FHA GAS | | Interior Finish: | DRYWALL PAINT | Plumbing Fixture Cnt: | 9 | | Roof Slope: | 6" IN 12" | Roof Structure/Cover: | CJ ASPHALT |
|
| | Type | Description | Class CD | Sub Class CD | Year Built | Area |
| | BAS | BASE/MAIN FLOOR | 3 | 0 | 1999 | 1981.0 |
| | OP1 | OPEN PORCH SLAB | 3 | 0 | 1999 | 300.0 |
| | OP4 | OPEN PORCH W/CEILING-ROOF | 3 | 0 | 1999 | 50.1 |
| | AGR | ATTACHED GARAGE | 3 | 0 | 1999 | 585.6 |
Sketch
Property Image
Land
| 1 | 14 | SQ (08001-12000) | 0.0000 | 0.00 | 0.00 | 0.00 | 1.00 | $210,000 | $0 |
Roll Value History
| 2026 | N/A | N/A | N/A | N/A | N/A |
| 2025 | $348,607 | $210,000 | $0 | $558,607 | $558,607 |
| 2024 | $351,536 | $190,000 | $0 | $541,536 | $541,536 |
| 2023 | $354,661 | $190,000 | $0 | $544,661 | $544,661 |
| 2022 | $323,631 | $180,000 | $0 | $503,631 | $503,631 |
| 2021 | $268,351 | $120,000 | $0 | $388,351 | $388,351 |
| 2020 | $261,791 | $100,000 | $0 | $361,791 | $361,791 |
| 2019 | $200,223 | $150,000 | $0 | $350,223 | $350,223 |
| 2018 | $181,532 | $130,000 | $0 | $311,532 | $311,532 |
| 2017 | $178,698 | $110,000 | $0 | $288,698 | $288,698 |
| 2016 | $180,905 | $90,000 | $0 | $270,905 | $270,905 |
| 2015 | $183,111 | $70,000 | $0 | $253,111 | $253,111 |
| 2014 | $185,317 | $55,000 | $0 | $240,317 | $240,317 |
| 2013 | $187,523 | $55,000 | $0 | $242,523 | $242,523 |
| 2012 | $189,730 | $68,000 | $0 | $257,730 | $257,730 |
| 2011 | $192,512 | $68,000 | $0 | $260,512 | $260,512 |
| 2010 | $200,825 | $68,000 | $0 | $268,825 | $268,825 |
| 2009 | $209,451 | $75,000 | $0 | $284,451 | $284,451 |
| 2008 | $211,979 | $100,000 | $0 | $311,979 | $311,979 |
| 2007 | $214,517 | $100,000 | $0 | $314,517 | $314,517 |
Deed and Sales History
| 1 | 09/27/2021 | WD | Warranty Deed | JAMPSA, JOLENE L | RIVERA, ANGELINA N | | | $515,000.00 | 50721 | 4532847 |
| 2 | 07/18/2019 | WD | Warranty Deed | CARPENTER, JOHN A | JAMPSA, JOLENE L | | | $415,000.00 | 39516 | 4467765 |
| 3 | 05/31/2018 | WD | Warranty Deed | HONG, CHONG H | CARPENTER, JOHN A | | | $398,500.00 | 34394 | 4445631 |
| 4 | 01/23/2002 | WD | Warranty Deed | CRAWFORD, HAZEL E | HONG, CHONG H | | | $199,000.00 | 20304 | 4009223 |
| 5 | 11/29/2000 | WD | Warranty Deed | EAST BAY CONSTRUCTION INC, | CRAWFORD, HAZEL E | | | $185,000.00 | 4587 | 20021261 |
| 6 | 07/06/1999 | WD | Warranty Deed | Unknown | EAST BAY CONSTRUCTION INC, | | | $45,000.00 | 92749 | 99016297 |
Payout Agreement
| No payout information available.. |