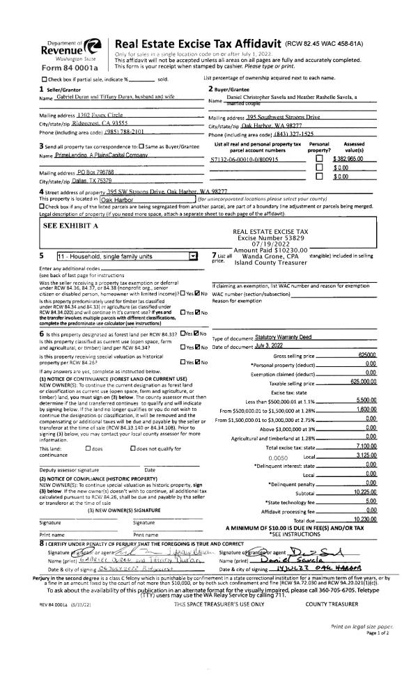
Property
Account |
| Property ID: | 800915 | Abbreviated Legal Description: | HIGHLANDS WEST #6 LOT 10 |
| Geographic ID: | S7132-06-00010-0 | Agent Code: | |
| Type: | Real | | |
| Tax Area: | 100 - APPRAISER-OH Schl Dist, in OH | Land Use Code | 11 |
| Open Space: | N | DFL | N |
| Historic Property: | N | Remodel Property: | N |
| Multi-Family Redevelopment: | N | | |
| Township: | | Section: | |
| Range: | |
Location |
| Address: | 395 SW STROOPS DR OAK HARBOR, WA 98277 | Mapsco: | |
| Neighborhood: | Cycle 1 | Map ID: | 97 |
| Neighborhood CD: | 1 |
Owner |
| Name: | SAVELA, DANIELL C | Owner ID: | 305067 |
| Mailing Address: | HEATHER R. SAVELA 395 SW STROOPS DR OAK HARBOR, WA 98277 | % Ownership: | 100.0000000000% |
| | | Exemptions: | |
Taxes and Assessment Details
Values
| (+) Improvement Homesite Value: | + | $0 | |
| (+) Improvement Non-Homesite Value: | + | $366,342 | |
| (+) Land Homesite Value: | + | $0 | |
| (+) Land Non-Homesite Value: | + | $210,000 | |
| (+) Curr Use (HS): | + | $0 | $0 |
| (+) Curr Use (NHS): | + | $0 | $0 |
| | | -------------------------- | |
| (=) Market Value: | = | $576,342 | |
| (–) Productivity Loss: | – | $0 | |
| | | -------------------------- | |
| (=) Subtotal: | = | $576,342 | |
| (+) Senior Appraised Value: | + | $0 | |
| (+) Non-Senior Appraised Value: | + | $576,342 | |
| | | -------------------------- | |
| (=) Total Appraised Value: | = | $576,342 | |
| (–) Senior Exemption Loss: | – | $0 | |
| (–) Exemption Loss: | – | $0 | |
| | | -------------------------- | |
| (=) Taxable Value: | = | $576,342 | |
Taxing Jurisdiction
| Owner: | SAVELA, DANIELL C | | |
| % Ownership: | 100.0000000000% | | |
| Total Value: | $576,342 | | |
| Tax Area: | 100 - APPRAISER-OH Schl Dist, in OH |
| CF | Conservation Futures | 0.0313996660 | $576,342 | $576,342 | $18.10 | | |
| CEM1 | Cemetery #1 | 0.0040018856 | $576,342 | $576,342 | $2.31 | | |
| COH | City of Oak Harbor | 2.3090730572 | $576,342 | $576,342 | $1,330.82 | | |
| OAKBOND | City of Oak Harbor BOND | 0.1902260131 | $576,342 | $576,342 | $109.64 | | |
| HOBOND | Hospital BOND | 0.1893405597 | $576,342 | $576,342 | $109.12 | | |
| HOGEN | Hospital GEN | 0.3848777722 | $576,342 | $576,342 | $221.82 | | |
| CE | County Current Expense | 0.3674210519 | $576,342 | $576,342 | $211.76 | | |
| ISLANDEMS | Hospital GEN (EMS) | 0.4952018576 | $576,342 | $576,342 | $285.41 | | |
| LIB | Library Sno-Isle GEN | 0.3039084203 | $576,342 | $576,342 | $175.16 | | |
| NWHIDPRMT | P & R N Whidbey GEN | 0.1990272349 | $576,342 | $576,342 | $114.71 | | |
| SCH201MO | School 201 Enrichment | 2.3851112745 | $576,342 | $576,342 | $1,374.64 | | |
| ST | State School | 1.4761226122 | $576,342 | $576,342 | $850.75 | | |
| ST2 | State School Part 2 | 0.7953803475 | $576,342 | $576,342 | $458.41 | | |
| | Total Tax Rate: | 9.1310917527 | | | | | |
| | | | | Taxes w/Current Exemptions: | $5,262.65 | | |
| | | | | Taxes w/o Exemptions: | $5,262.65 | | |
Improvement / Building
| Improvement #1: | RESIDENTIAL | State Code: | Y | 2313.2 sqft | Value: | $366,342 |
| Bathrooms: | 2.5 | Bedrooms: | 4 | | Ceiling: | DRYWALL PAINTED | Exterior Wall/Cover: | CEMENT FIBER | | Floor Covering: | HARDWOOD/CARP 60-40 | Floor Structure: | WOOD W/SUBFLOOR | | Foundation: | CONCRETE | Heating: | FHA GAS | | Interior Finish: | DRYWALL PAINT | Plumbing Fixture Cnt: | 12 | | Roof Slope: | 12" IN 12" | Roof Structure/Cover: | CJ ASPHALT |
|
| | Type | Description | Class CD | Sub Class CD | Year Built | Area |
| | BAS | BASE/MAIN FLOOR | 3 | 0 | 1999 | 870.9 |
| | BIG | BUILT IN GARAGE | 3 | 0 | 1999 | 777.6 |
| | UPS | UPPER STORY | 3 | 0 | 1999 | 858.3 |
| | OWP | OPEN WOOD PORCH W/STEPS | 3 | 0 | 1999 | 138.0 |
| | OWC | OPEN WOOD PORCH W/STEPS/ROOF/C | 3 | 0 | 1999 | 106.5 |
| | UPH | HALF STORY | 3 | 0 | 1999 | 584.0 |
Sketch
Property Image
Land
| 1 | 15 | SQ (12001-21780) | 0.0000 | 0.00 | 0.00 | 0.00 | 1.00 | $210,000 | $0 |
Roll Value History
| 2026 | N/A | N/A | N/A | N/A | N/A |
| 2025 | $366,342 | $210,000 | $0 | $576,342 | $576,342 |
| 2024 | $370,638 | $190,000 | $0 | $560,638 | $560,638 |
| 2023 | $374,934 | $190,000 | $0 | $564,934 | $564,934 |
| 2022 | $298,674 | $180,000 | $0 | $478,674 | $478,674 |
| 2021 | $262,965 | $120,000 | $0 | $382,965 | $382,965 |
| 2020 | $256,549 | $100,000 | $0 | $356,549 | $356,549 |
| 2019 | $197,539 | $150,000 | $0 | $347,539 | $347,539 |
| 2018 | $198,133 | $130,000 | $0 | $328,133 | $328,133 |
| 2017 | $192,344 | $110,000 | $0 | $302,344 | $302,344 |
| 2016 | $194,718 | $90,000 | $0 | $284,718 | $284,718 |
| 2015 | $197,093 | $70,000 | $0 | $267,093 | $267,093 |
| 2014 | $199,468 | $55,000 | $0 | $254,468 | $254,468 |
| 2013 | $201,844 | $55,000 | $0 | $256,844 | $256,844 |
| 2012 | $204,217 | $68,000 | $0 | $272,217 | $272,217 |
| 2011 | $223,313 | $68,000 | $0 | $291,313 | $291,313 |
| 2010 | $229,090 | $68,000 | $0 | $297,090 | $297,090 |
| 2009 | $238,730 | $75,000 | $0 | $313,730 | $313,730 |
| 2008 | $241,486 | $100,000 | $0 | $341,486 | $341,486 |
| 2007 | $244,193 | $100,000 | $0 | $344,193 | $344,193 |
Deed and Sales History
| 1 | 07/03/2022 | WD | Warranty Deed | DURAN, GABRIEL | SAVELA, DANIELL C | | | $625,000.00 | 53829 | 4548403 |
| 2 | 10/15/2010 | WD | Warranty Deed | HNOSKO, DAVID P | DURAN, GABRIEL | | | $290,000.00 | 2718 | 4283836 |
| 3 | 11/12/1999 | WD | Warranty Deed | CONST. INC, P BODINE | HNOSKO, DAVID P | | | $206,000.00 | 94878 | 99027298 |
| 4 | 08/10/1999 | WD | Warranty Deed | K & E INVESTORS INC, | CONST. INC, P BODINE | | | $45,000.00 | 93299 | 99019025 |
| 5 | 01/01/1900 | OTHER | Other - Misc. Documents | Unknown | K & E INVESTORS INC, | | | $0.00 | 0 | 0 |
Payout Agreement
| No payout information available.. |