Property
Account |
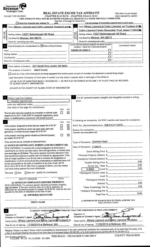
| Property ID: | 801147 | Abbreviated Legal Description: | SARATOGA BCH 1 LOT 80 |
| Geographic ID: | S8090-00-00080-0 | Agent Code: | |
| Type: | Real | | |
| Tax Area: | 710 - APPRAISER-S Whid Schl Dist, outside Langley, improved & 1 acre or less | Land Use Code | 11 |
| Open Space: | N | DFL | N |
| Historic Property: | N | Remodel Property: | N |
| Multi-Family Redevelopment: | N | | |
| Township: | | Section: | |
| Range: | |
Location |
| Address: | 3251 MARDELL DR LANGLEY, WA 98260 | Mapsco: | |
| Neighborhood: | Cycle 3 | Map ID: | 379 |
| Neighborhood CD: | 3 |
Owner |
| Name: | LIGMOND TTEE, MIHALY STEPHAN | Owner ID: | 293120 |
| Mailing Address: | CATHY ANN LIGMOND 12027 BOLLENBOUGH HILL RD MONROE, WA 98272 | % Ownership: | 100.0000000000% |
| | | Exemptions: | |
Taxes and Assessment Details
Values
| (+) Improvement Homesite Value: | + | $0 | |
| (+) Improvement Non-Homesite Value: | + | $112,952 | |
| (+) Land Homesite Value: | + | $0 | |
| (+) Land Non-Homesite Value: | + | $240,000 | |
| (+) Curr Use (HS): | + | $0 | $0 |
| (+) Curr Use (NHS): | + | $0 | $0 |
| | | -------------------------- | |
| (=) Market Value: | = | $352,952 | |
| (–) Productivity Loss: | – | $0 | |
| | | -------------------------- | |
| (=) Subtotal: | = | $352,952 | |
| (+) Senior Appraised Value: | + | $0 | |
| (+) Non-Senior Appraised Value: | + | $352,952 | |
| | | -------------------------- | |
| (=) Total Appraised Value: | = | $352,952 | |
| (–) Senior Exemption Loss: | – | $0 | |
| (–) Exemption Loss: | – | $0 | |
| | | -------------------------- | |
| (=) Taxable Value: | = | $352,952 | |
Taxing Jurisdiction
| Owner: | LIGMOND TTEE, MIHALY STEPHAN | | |
| % Ownership: | 100.0000000000% | | |
| Total Value: | $352,952 | | |
| Tax Area: | 710 - APPRAISER-S Whid Schl Dist, outside Langley, improved & 1 acre or less |
| CF | Conservation Futures | 0.0313996660 | $352,952 | $352,952 | $11.08 | | |
| FIRE3 | Fire & Rescue Dist #3 S Whidbey GEN | 1.2130821753 | $352,952 | $352,952 | $428.16 | | |
| HOBOND | Hospital BOND | 0.1893405597 | $352,952 | $352,952 | $66.83 | | |
| HOGEN | Hospital GEN | 0.3848777722 | $352,952 | $352,952 | $135.84 | | |
| CE | County Current Expense | 0.3674210519 | $352,952 | $352,952 | $129.68 | | |
| CR | County Roads | 0.4614296361 | $352,952 | $352,952 | $162.86 | | |
| ISLANDEMS | Hospital GEN (EMS) | 0.4952018576 | $352,952 | $352,952 | $174.78 | | |
| LIB | Library Sno-Isle GEN | 0.3039084203 | $352,952 | $352,952 | $107.27 | | |
| PORTWHID | Port of S Whidbey GEN | 0.1086004714 | $352,952 | $352,952 | $38.33 | | |
| SCH206BOND | School 206 BOND | 0.5960237832 | $352,952 | $352,952 | $210.37 | | |
| SCH206CAP | School 206 CP | 0.3066144020 | $352,952 | $352,952 | $108.22 | | |
| SCH206MO | School 206 Enrichment | 0.4808755445 | $352,952 | $352,952 | $169.73 | | |
| ST | State School | 1.4761226122 | $352,952 | $352,952 | $521.00 | | |
| ST2 | State School Part 2 | 0.7953803475 | $352,952 | $352,952 | $280.73 | | |
| SWHIDPRBD | P & R S Whidbey BOND | 0.0144185398 | $352,952 | $352,952 | $5.09 | | |
| SWHIDPRBD3 | P & R S Whidbey BOND3 | 0.1483535547 | $352,952 | $352,952 | $52.36 | | |
| SWHIDPRMT | P & R S Whidbey GEN | 0.4600000000 | $352,952 | $352,952 | $162.36 | | |
| | Total Tax Rate: | 7.8330503944 | | | | | |
| | | | | Taxes w/Current Exemptions: | $2,764.69 | | |
| | | | | Taxes w/o Exemptions: | $2,764.69 | | |
Improvement / Building
| Improvement #1: | RESIDENTIAL | State Code: | Y | 1130.0 sqft | Value: | $112,952 |
| Bathrooms: | 1 | Bedrooms: | 2 | | Ceiling: | DRYWALL PAINTED | Exterior Wall/Cover: | WOOD SIDING | | Floor Covering: | CARPET/VINYL 80-20 | Floor Structure: | WOOD W/SUBFLOOR | | Foundation: | CONCRETE | Heating: | WALL HEAT ELECTRIC | | Interior Finish: | DRYWALL PAINT | Plumbing Fixture Cnt: | 6 | | Roof Slope: | 4" IN 12" | Roof Structure/Cover: | CJ ASPHALT |
|
| | Type | Description | Class CD | Sub Class CD | Year Built | Area |
| | BAS | BASE/MAIN FLOOR | 3 | 0 | 1940 | 1130.0 |
| | OP1 | OPEN PORCH SLAB | 3 | 0 | 1940 | 264.0 |
| | OP1 | OPEN PORCH SLAB | 3 | 0 | 1940 | 70.0 |
| | OP1 | OPEN PORCH SLAB | 3 | 0 | 1940 | 18.0 |
| | OWP | OPEN WOOD PORCH W/STEPS | 3 | 0 | 1940 | 30.0 |
| | OWP | OPEN WOOD PORCH W/STEPS | 3 | 0 | 1940 | 24.0 |
Sketch
Property Image
Land
| 1 | 14 | SQ (08001-12000) | 0.0000 | 0.00 | 0.00 | 0.00 | 1.00 | $240,000 | $0 |
Roll Value History
| 2026 | N/A | N/A | N/A | N/A | N/A |
| 2025 | $112,952 | $240,000 | $0 | $352,952 | $352,952 |
| 2024 | $115,201 | $260,000 | $0 | $375,201 | $375,201 |
| 2023 | $117,446 | $280,000 | $0 | $397,446 | $397,446 |
| 2022 | $108,389 | $210,000 | $0 | $318,389 | $318,389 |
| 2021 | $96,018 | $150,000 | $0 | $246,018 | $246,018 |
| 2020 | $94,204 | $130,000 | $0 | $224,204 | $224,204 |
| 2019 | $61,636 | $130,000 | $0 | $191,636 | $191,636 |
| 2018 | $61,937 | $120,000 | $0 | $181,937 | $181,937 |
| 2017 | $62,539 | $120,000 | $0 | $182,539 | $182,539 |
| 2016 | $63,741 | $90,000 | $0 | $153,741 | $153,741 |
| 2015 | $64,945 | $65,000 | $0 | $129,945 | $129,945 |
| 2014 | $66,146 | $65,000 | $0 | $131,146 | $131,146 |
| 2013 | $61,050 | $85,000 | $0 | $146,050 | $146,050 |
| 2012 | $62,180 | $91,800 | $0 | $153,980 | $153,980 |
| 2011 | $63,311 | $108,000 | $0 | $171,311 | $171,311 |
| 2010 | $68,485 | $120,000 | $0 | $188,485 | $188,485 |
| 2009 | $71,455 | $120,000 | $0 | $191,455 | $191,455 |
| 2008 | $72,589 | $120,000 | $0 | $192,589 | $192,589 |
| 2007 | $70,321 | $120,000 | $0 | $190,321 | $190,321 |
Deed and Sales History
| 1 | 11/26/2019 | QCD | Quit Claim Deed | LIGMOND, MIHALY S | LIGMOND TTEE, MIHALY STEPHAN | | | $0.00 | 41713 | 4478756 |
| 2 | 06/05/2006 | WD | Warranty Deed | PAFFRATH JTWROS, REBECCA | LIGMOND, MIHALY S | | | $228,500.00 | 62514 | 4172692 |
| 3 | 02/08/2005 | WD | Warranty Deed | HANSON, WILLIAM JOSEPH | PAFFRATH JTWROS, REBECCA | | | $150,500.00 | 50744 | 4126784 |
| 4 | 09/28/2000 | PRD | Personal Representatives Deed | MURPHY, TERRY | MURHPY, KAREN A | | | $0.00 | 4404 | 20020227 |
| 5 | 09/25/2000 | WD | Warranty Deed | MURHPY, KAREN A | HANSON, WILLIAM JOSEPH | | | $22,500.00 | 3712 | 20017050 |
| 6 | 01/01/1900 | OTHER | Other - Misc. Documents | Unknown | MURPHY, TERRY | | | $0.00 | 0 | 0 |
Payout Agreement
| No payout information available.. |