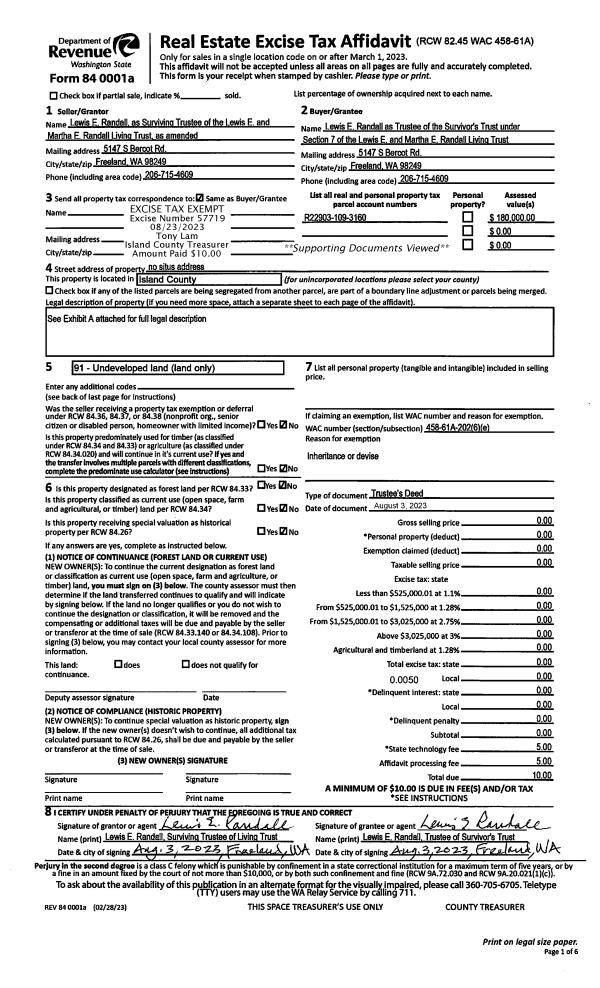
Property
Account |
| Property ID: | 801158 | Abbreviated Legal Description: | PT OF FOLL DESC LY WLY OF BERCOT RD: 27 - IN GL5 INCL ADJ TIDES EX RD 133D548 |
| Geographic ID: | R22903-109-3160 | Agent Code: | |
| Type: | Real | | |
| Tax Area: | 769 - APPRAISER-S Whid Schl Dist, Special District, vacant & 50 acres or less | Land Use Code | 91 |
| Open Space: | N | DFL | N |
| Historic Property: | N | Remodel Property: | N |
| Multi-Family Redevelopment: | N | | |
| Township: | 29 | Section: | 03 |
| Range: | R2 |
Location |
| Address: | | Mapsco: | |
| Neighborhood: | Cycle 3 | Map ID: | 288 |
| Neighborhood CD: | 3 |
Owner |
| Name: | RANDALL TTEE, LEWIS E | Owner ID: | 309765 |
| Mailing Address: | 5147 S BERCOT RD FREELAND, WA 98249 | % Ownership: | 100.0000000000% |
| | | Exemptions: | |
Taxes and Assessment Details
Values
| (+) Improvement Homesite Value: | + | $0 | |
| (+) Improvement Non-Homesite Value: | + | $0 | |
| (+) Land Homesite Value: | + | $0 | |
| (+) Land Non-Homesite Value: | + | $200,000 | |
| (+) Curr Use (HS): | + | $0 | $0 |
| (+) Curr Use (NHS): | + | $0 | $0 |
| | | -------------------------- | |
| (=) Market Value: | = | $200,000 | |
| (–) Productivity Loss: | – | $0 | |
| | | -------------------------- | |
| (=) Subtotal: | = | $200,000 | |
| (+) Senior Appraised Value: | + | $0 | |
| (+) Non-Senior Appraised Value: | + | $200,000 | |
| | | -------------------------- | |
| (=) Total Appraised Value: | = | $200,000 | |
| (–) Senior Exemption Loss: | – | $0 | |
| (–) Exemption Loss: | – | $0 | |
| | | -------------------------- | |
| (=) Taxable Value: | = | $200,000 | |
Taxing Jurisdiction
| Owner: | RANDALL TTEE, LEWIS E | | |
| % Ownership: | 100.0000000000% | | |
| Total Value: | $200,000 | | |
| Tax Area: | 769 - APPRAISER-S Whid Schl Dist, Special District, vacant & 50 acres or less |
| CF | Conservation Futures | 0.0313996660 | $200,000 | $200,000 | $6.28 | | |
| HOBOND | Hospital BOND | 0.1893405597 | $200,000 | $200,000 | $37.87 | | |
| HOGEN | Hospital GEN | 0.3848777722 | $200,000 | $200,000 | $76.98 | | |
| CE | County Current Expense | 0.3674210519 | $200,000 | $200,000 | $73.48 | | |
| CR | County Roads | 0.4614296361 | $200,000 | $200,000 | $92.29 | | |
| ISLANDEMS | Hospital GEN (EMS) | 0.4952018576 | $200,000 | $200,000 | $99.04 | | |
| LIB | Library Sno-Isle GEN | 0.3039084203 | $200,000 | $200,000 | $60.78 | | |
| PORTWHID | Port of S Whidbey GEN | 0.1086004714 | $200,000 | $200,000 | $21.72 | | |
| SCH206BOND | School 206 BOND | 0.5960237832 | $200,000 | $200,000 | $119.20 | | |
| SCH206CAP | School 206 CP | 0.3066144020 | $200,000 | $200,000 | $61.32 | | |
| SCH206MO | School 206 Enrichment | 0.4808755445 | $200,000 | $200,000 | $96.18 | | |
| ST | State School | 1.4761226122 | $200,000 | $200,000 | $295.22 | | |
| ST2 | State School Part 2 | 0.7953803475 | $200,000 | $200,000 | $159.08 | | |
| SWHIDPRBD | P & R S Whidbey BOND | 0.0144185398 | $200,000 | $200,000 | $2.88 | | |
| SWHIDPRBD3 | P & R S Whidbey BOND3 | 0.1483535547 | $200,000 | $200,000 | $29.67 | | |
| SWHIDPRMT | P & R S Whidbey GEN | 0.4600000000 | $200,000 | $200,000 | $92.00 | | |
| | Total Tax Rate: | 6.6199682191 | | | | | |
| | | | | Taxes w/Current Exemptions: | $1,323.99 | | |
| | | | | Taxes w/o Exemptions: | $1,323.99 | | |
Improvement / Building
Sketch
| No sketches available for this property. |
Property Image
Land
| 1 | 18 | AC (02.01-03.00) | 0.0000 | 0.00 | 0.00 | 0.00 | 1.00 | $200,000 | $0 |
Roll Value History
| 2026 | N/A | N/A | N/A | N/A | N/A |
| 2025 | $0 | $200,000 | $0 | $200,000 | $200,000 |
| 2024 | $0 | $200,000 | $0 | $200,000 | $200,000 |
| 2023 | $0 | $180,000 | $0 | $180,000 | $180,000 |
| 2022 | $0 | $160,000 | $0 | $160,000 | $160,000 |
| 2021 | $0 | $150,000 | $0 | $150,000 | $150,000 |
| 2020 | $0 | $150,000 | $0 | $150,000 | $150,000 |
| 2019 | $0 | $150,000 | $0 | $150,000 | $150,000 |
| 2018 | $0 | $150,000 | $0 | $150,000 | $150,000 |
| 2017 | $0 | $150,000 | $0 | $150,000 | $150,000 |
| 2016 | $0 | $150,000 | $0 | $150,000 | $150,000 |
| 2015 | $0 | $150,000 | $0 | $150,000 | $150,000 |
| 2014 | $0 | $150,000 | $0 | $150,000 | $150,000 |
| 2013 | $0 | $150,000 | $0 | $150,000 | $150,000 |
| 2012 | $0 | $175,000 | $0 | $175,000 | $175,000 |
| 2011 | $0 | $175,000 | $0 | $175,000 | $175,000 |
| 2010 | $0 | $175,000 | $0 | $175,000 | $175,000 |
| 2009 | $0 | $200,000 | $0 | $200,000 | $200,000 |
| 2008 | $0 | $200,000 | $0 | $200,000 | $200,000 |
| 2007 | $0 | $175,000 | $0 | $175,000 | $175,000 |
Deed and Sales History
| 1 | 08/03/2023 | TRUSTEED | Trustee's Deed | LEWIS E / M E RANDALL TRTEES, MARTHA RANDALL TRUST | RANDALL TTEE, LEWIS E | | | $0.00 | 57719 | 4563870 |
| 2 | 04/28/2000 | QCD | Quit Claim Deed | RANDALL, LEWIS E | RANDALL, TR, LEWIS E | | | $0.00 | 2108 | 20010048 |
| 3 | 10/28/1999 | WD | Warranty Deed | WELDEN, JAMES W | RANDALL, LEWIS E | | | $100,000.00 | 94640 | 99025885 |
| 4 | 06/28/1999 | SEG | DNU - Segregation | Unknown | WELDEN, JAMES W | | | $0.00 | 68323 | 0 |
Payout Agreement
| No payout information available.. |