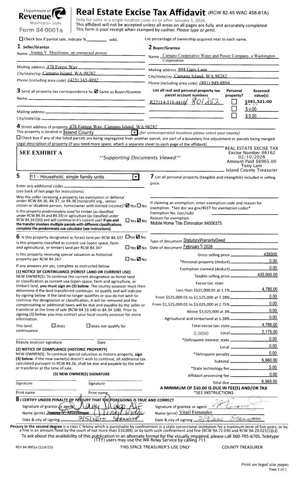
Property
Account |
| Property ID: | 801282 | Abbreviated Legal Description: | 1 - N/2 NW NE NE TGW SUB TO EZ EX W164.53 EX: BG NECR NE NE S88*W428.60 TPB S1*E50 S88*W300 N1*W50 N88*E300 TPB TGW EZ |
| Geographic ID: | R23114-518-4410 | Agent Code: | |
| Type: | Real | | |
| Tax Area: | 512 - APPRAISER-Stan/Cam Schl Dist, improved, greater than 1 acre | Land Use Code | 11 |
| Open Space: | N | DFL | N |
| Historic Property: | N | Remodel Property: | N |
| Multi-Family Redevelopment: | N | | |
| Township: | 31 | Section: | 14 |
| Range: | R2 |
Location |
| Address: | 478 FORREST WAY CAMANO ISLAND, WA 98282 | Mapsco: | |
| Neighborhood: | Cycle 5 | Map ID: | 484 |
| Neighborhood CD: | 5 |
Owner |
| Name: | MOREHOUSE, JOANNA V | Owner ID: | 3977 |
| Mailing Address: | 478 FORREST WAY CAMANO ISLAND, WA 98282-6532 | % Ownership: | 100.0000000000% |
| | | Exemptions: | SNR/DSBL |
Taxes and Assessment Details
Values
| (+) Improvement Homesite Value: | + | $61,521 | |
| (+) Improvement Non-Homesite Value: | + | $0 | |
| (+) Land Homesite Value: | + | $330,000 | |
| (+) Land Non-Homesite Value: | + | $0 | |
| (+) Curr Use (HS): | + | $0 | $0 |
| (+) Curr Use (NHS): | + | $0 | $0 |
| | | -------------------------- | |
| (=) Market Value: | = | $391,521 | |
| (–) Productivity Loss: | – | $0 | |
| | | -------------------------- | |
| (=) Subtotal: | = | $391,521 | |
| (+) Senior Appraised Value: | + | $140,640 | |
| (+) Non-Senior Appraised Value: | + | $0 | |
| | | -------------------------- | |
| (=) Total Appraised Value: | = | $140,640 | |
| (–) Senior Exemption Loss: | – | $84,384 | |
| (–) Exemption Loss: | – | $0 | |
| | | -------------------------- | |
| (=) Taxable Value: | = | $56,256 | |
Taxing Jurisdiction
| Owner: | MOREHOUSE, JOANNA V | | |
| % Ownership: | 100.0000000000% | | |
| Total Value: | $391,521 | | |
| Tax Area: | 512 - APPRAISER-Stan/Cam Schl Dist, improved, greater than 1 acre |
| CF | Conservation Futures | 0.0313996660 | $391,521 | $56,256 | $11.26 | | |
| EMS1 | Fire & Rescue Dist #1 Camano GEN (EMS) | 0.4998471806 | $391,521 | $56,256 | $179.17 | | |
| FIRE1 | Fire & Rescue Dist #1 Camano GEN | 1.2496603404 | $391,521 | $56,256 | $447.95 | | |
| FIRE1BOND | Fire & Rescue Dist #1 Camano BOND | 0.0000000000 | $391,521 | $0 | $57.54 | | |
| CE | County Current Expense | 0.3674210519 | $391,521 | $56,256 | $131.70 | | |
| CR | County Roads | 0.4614296361 | $391,521 | $56,256 | $165.40 | | |
| LIB | Library Sno-Isle GEN | 0.3039084203 | $391,521 | $56,256 | $108.94 | | |
| SCH205_401 | School 205-401 Enrichment | 0.0000000000 | $391,521 | $0 | $483.41 | | |
| SCH205BOND | School 205-401 BOND | 0.0000000000 | $391,521 | $0 | $330.11 | | |
| ST | State School | 1.4761226122 | $391,521 | $56,256 | $529.12 | | |
| ST2 | State School Part 2 | 0.0000000000 | $391,521 | $0 | $280.69 | | |
| | Total Tax Rate: | 4.3897889075 | | | | | |
| | | | | Taxes w/Current Exemptions: | $2,725.29 | | |
| | | | | Taxes w/o Exemptions: | $2,996.48 | | |
Improvement / Building
| Improvement #1: | MANUFACTURED HOME | State Code: | Y | 1028.0 sqft | Value: | $61,521 |
| Bathrooms: | 0 | Bedrooms: | 0 | | Ceiling: | PLASTER PAINTED | Cooling: | EVAP NO DUCT | | Exterior Wall/Cover: | VINYL | Floor Covering: | CARPET 100% | | Floor Structure: | SLAB ON GRADE | Foundation: | SLAB | | Heating: | FHA ELECTRIC | Interior Finish: | PLASTER | | Plumbing Fixture Cnt: | 1 | Roof Slope: | FLAT | | Roof Structure/Cover: | CJ ALUMINIUM HEAVY |   |   |
|
| | Type | Description | Class CD | Sub Class CD | Year Built | Area |
| | BAS | BASE/MAIN FLOOR | 4 | 0 | 1991 | 1028.0 |
| | OWR | OPEN WOOD PORCH W/STEPS/ROOF | 4 | 0 | 1991 | 143.0 |
Sketch
Property Image
Land
| 1 | 32 | AC (03.01-09.99) | 3.6800 | 0.00 | 0.00 | 0.00 | 1.00 | $330,000 | $0 |
Roll Value History
| 2026 | N/A | N/A | N/A | N/A | N/A |
| 2025 | $61,521 | $330,000 | $0 | $391,521 | $56,256 |
| 2024 | $65,365 | $300,000 | $0 | $365,365 | $56,256 |
| 2023 | $59,072 | $290,000 | $0 | $349,072 | $56,256 |
| 2022 | $55,508 | $290,000 | $0 | $345,508 | $56,256 |
| 2021 | $50,022 | $190,000 | $0 | $240,022 | $56,256 |
| 2020 | $51,120 | $160,000 | $0 | $211,120 | $56,256 |
| 2019 | $41,609 | $230,000 | $0 | $271,609 | $56,256 |
| 2018 | $42,952 | $190,000 | $0 | $232,952 | $56,256 |
| 2017 | $44,293 | $150,000 | $0 | $194,293 | $56,256 |
| 2016 | $45,636 | $150,000 | $0 | $195,636 | $56,256 |
| 2015 | $51,737 | $82,432 | $0 | $134,169 | $57,212 |
| 2014 | $53,037 | $82,432 | $0 | $135,469 | $85,469 |
| 2013 | $54,338 | $82,432 | $0 | $136,770 | $86,770 |
| 2012 | $55,639 | $82,432 | $0 | $138,071 | $55,228 |
| 2011 | $56,939 | $103,040 | $0 | $159,979 | $56,256 |
| 2010 | $63,563 | $103,040 | $0 | $166,603 | $56,256 |
| 2009 | $72,794 | $117,760 | $0 | $190,554 | $56,256 |
| 2008 | $28,060 | $45,782 | $0 | $73,842 | $13,842 |
| 2007 | $29,828 | $46,653 | $0 | $76,481 | $16,481 |
Deed and Sales History
| 1 | 02/05/2026 | WD | Warranty Deed | MOREHOUSE, JOANNA V | CAMANO COOPERATIVE WATER & POWER CO | | | $435,000.00 | 66162 | 4596706 |
| 2 | 10/09/2012 | EZ | Easement | MOREHOUSE, JOANNA V | MOREHOUSE, JOANNA V | | | $18,000.00 | 9157 | 4325120 |
| 3 | 11/03/2005 | EZ | Easement | MOREHOUSE, JOANNA V | MOREHOUSE, JOANNA V | | | $500.00 | 55796 | 4154481 |
| 4 | 08/19/1999 | BLA | DNU - Boundary Line Adjustment | Unknown | MOREHOUSE, JOANNA V | | | $0.00 | 68409 | 99006432 |
Payout Agreement
| No payout information available.. |