Property
Account |
| Property ID: | 801839 | Abbreviated Legal Description: | E/2 SE SW SW EX JONES RD |
| Geographic ID: | R23305-033-1160 | Agent Code: | |
| Type: | Real | | |
| Tax Area: | 112 - APPRAISER-OH Schl Dist, outside OH, improved, greater than 1 acre | Land Use Code | 11 |
| Open Space: | N | DFL | N |
| Historic Property: | N | Remodel Property: | N |
| Multi-Family Redevelopment: | N | | |
| Township: | 33 | Section: | 05 |
| Range: | R2 |
Location |
| Address: | 4504 DUGUALLA VIEW DR OAK HARBOR, WA 98277 | Mapsco: | |
| Neighborhood: | Cycle 6 | Map ID: | 583 |
| Neighborhood CD: | 6 |
Owner |
| Name: | RICHARDSON, RONALD E | Owner ID: | 308051 |
| Mailing Address: | KOWANDA L RICHARDSON 4504 DUGUALLA VIEW DR OAK HARBOR, WA 98277 | % Ownership: | 100.0000000000% |
| | | Exemptions: | |
Taxes and Assessment Details
Values
| (+) Improvement Homesite Value: | + | $0 | |
| (+) Improvement Non-Homesite Value: | + | $471,846 | |
| (+) Land Homesite Value: | + | $0 | |
| (+) Land Non-Homesite Value: | + | $315,000 | |
| (+) Curr Use (HS): | + | $0 | $0 |
| (+) Curr Use (NHS): | + | $0 | $0 |
| | | -------------------------- | |
| (=) Market Value: | = | $786,846 | |
| (–) Productivity Loss: | – | $0 | |
| | | -------------------------- | |
| (=) Subtotal: | = | $786,846 | |
| (+) Senior Appraised Value: | + | $0 | |
| (+) Non-Senior Appraised Value: | + | $786,846 | |
| | | -------------------------- | |
| (=) Total Appraised Value: | = | $786,846 | |
| (–) Senior Exemption Loss: | – | $0 | |
| (–) Exemption Loss: | – | $0 | |
| | | -------------------------- | |
| (=) Taxable Value: | = | $786,846 | |
Taxing Jurisdiction
| Owner: | RICHARDSON, RONALD E | | |
| % Ownership: | 100.0000000000% | | |
| Total Value: | $786,846 | | |
| Tax Area: | 112 - APPRAISER-OH Schl Dist, outside OH, improved, greater than 1 acre |
| CF | Conservation Futures | 0.0313996660 | $786,846 | $786,846 | $24.71 | | |
| CEM1 | Cemetery #1 | 0.0040018856 | $786,846 | $786,846 | $3.15 | | |
| FIRE2 | Fire & Rescue Dist #2 N Whidbey GEN | 0.5381486274 | $786,846 | $786,846 | $423.44 | | |
| HOBOND | Hospital BOND | 0.1893405597 | $786,846 | $786,846 | $148.98 | | |
| HOGEN | Hospital GEN | 0.3848777722 | $786,846 | $786,846 | $302.84 | | |
| CE | County Current Expense | 0.3674210519 | $786,846 | $786,846 | $289.10 | | |
| CR | County Roads | 0.4614296361 | $786,846 | $786,846 | $363.07 | | |
| ISLANDEMS | Hospital GEN (EMS) | 0.4952018576 | $786,846 | $786,846 | $389.65 | | |
| LIB | Library Sno-Isle GEN | 0.3039084203 | $786,846 | $786,846 | $239.13 | | |
| NWHIDPRMT | P & R N Whidbey GEN | 0.1990272349 | $786,846 | $786,846 | $156.60 | | |
| SCH201MO | School 201 Enrichment | 2.3851112745 | $786,846 | $786,846 | $1,876.72 | | |
| ST | State School | 1.4761226122 | $786,846 | $786,846 | $1,161.48 | | |
| ST2 | State School Part 2 | 0.7953803475 | $786,846 | $786,846 | $625.84 | | |
| | Total Tax Rate: | 7.6313709459 | | | | | |
| | | | | Taxes w/Current Exemptions: | $6,004.71 | | |
| | | | | Taxes w/o Exemptions: | $6,004.71 | | |
Improvement / Building
| Improvement #1: | RESIDENTIAL | State Code: | Y | 4073.0 sqft | Value: | $471,846 |
| Bathrooms: | 2.5 | Bedrooms: | 3 | | Ceiling: | DRYWALL PAINTED | Cooling: | HEAT PUMP/CONV/V | | Exterior Wall/Cover: | CEMENT FIBER | Floor Covering: | VINYL 100% | | Floor Structure: | WOOD W/SUBFLOOR | Foundation: | CONCRETE | | Interior Finish: | DRYWALL PAINT | Plumbing Fixture Cnt: | 13 | | Roof Slope: | 5" IN 12" | Roof Structure/Cover: | CJ ASPHALT |
|
| | Type | Description | Class CD | Sub Class CD | Year Built | Area |
| | BAS | BASE/MAIN FLOOR | 3 | 0 | 2024 | 2161.3 |
| | AGR | ATTACHED GARAGE | 3 | 0 | 2024 | 645.5 |
| | OWR | OPEN WOOD PORCH W/STEPS/ROOF | 3 | 0 | 2024 | 290.8 |
| | OWR | OPEN WOOD PORCH W/STEPS/ROOF | 3 | 0 | 2024 | 60.0 |
| | OWR | OPEN WOOD PORCH W/STEPS/ROOF | 3 | 0 | 2024 | 80.0 |
| | DWN | DOWNSTAIRS LIVING AREA | 3 | 0 | 2024 | 1911.7 |
Sketch
Property Image
Land
| 1 | 32 | AC (03.01-09.99) | 5.1900 | 0.00 | 0.00 | 0.00 | 1.00 | $315,000 | $0 |
Roll Value History
| 2026 | N/A | N/A | N/A | N/A | N/A |
| 2025 | $471,846 | $315,000 | $0 | $786,846 | $786,846 |
| 2024 | $23,942 | $260,000 | $0 | $283,942 | $283,942 |
| 2023 | $0 | $240,000 | $0 | $240,000 | $240,000 |
| 2022 | $0 | $240,000 | $0 | $240,000 | $240,000 |
| 2021 | $0 | $190,000 | $0 | $190,000 | $190,000 |
| 2020 | $0 | $160,000 | $0 | $160,000 | $160,000 |
| 2019 | $0 | $150,000 | $0 | $150,000 | $150,000 |
| 2018 | $0 | $120,000 | $0 | $120,000 | $120,000 |
| 2017 | $0 | $120,000 | $0 | $120,000 | $120,000 |
| 2016 | $0 | $120,000 | $0 | $120,000 | $120,000 |
| 2015 | $0 | $120,000 | $0 | $120,000 | $120,000 |
| 2014 | $0 | $147,700 | $0 | $147,700 | $147,700 |
| 2013 | $0 | $147,700 | $0 | $147,700 | $147,700 |
| 2012 | $0 | $147,700 | $0 | $147,700 | $147,700 |
| 2011 | $0 | $147,700 | $0 | $147,700 | $147,700 |
| 2010 | $0 | $147,700 | $0 | $147,700 | $147,700 |
| 2009 | $0 | $176,650 | $0 | $176,650 | $176,650 |
| 2008 | $0 | $229,310 | $0 | $229,310 | $229,310 |
| 2007 | $0 | $203,360 | $0 | $203,360 | $203,360 |
Deed and Sales History
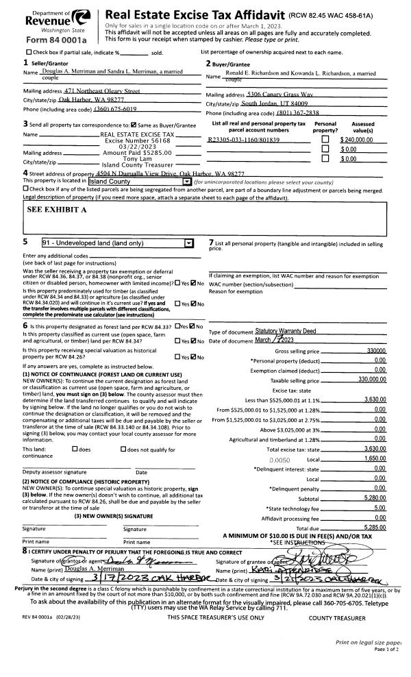
| 1 | 03/17/2023 | WD | Warranty Deed | MERRIMAN, DOUGLAS A | RICHARDSON, RONALD E | | | $330,000.00 | 56168 | 4557970 |
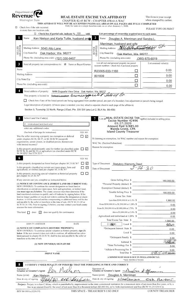
| 2 | 03/26/2020 | WD | Warranty Deed | NIELSON, KEN | MERRIMAN, DOUGLAS A | | | $180,000.00 | 42496 | 4483742 |
| 3 | 06/10/2008 | WD | Warranty Deed | Unknown | NIELSON, KEN | | | $285,000.00 | 81596 | 4231213 |
| 4 | 01/20/2005 | WD | Warranty Deed | VILLARREAL, GILBERT | FAHY, EDWARD J | | | $190,000.00 | 50330 | 4124230 |
| 5 | 11/08/2002 | WD | Warranty Deed | ALRT CORPORATION, | VILLARREAL, GILBERT | | | $154,721.00 | 24644 | 4038034 |
| 6 | 01/07/2000 | BLA | DNU - Boundary Line Adjustment | NIELSON, KEN | ALRT CORPORATION, | | | $0.00 | 68537 | 99011701 |
Payout Agreement
| No payout information available.. |