Property
Account |
| Property ID: | 801942 | Abbreviated Legal Description: | LOT 1 SP 46-99.23135.329-4940 V3 SP P275-6 AF#99026395 |
| Geographic ID: | R23135-351-5060 | Agent Code: | |
| Type: | Real | | |
| Tax Area: | 549 - APPRAISER-Stan/Cam Schl Dist, Special Dist, vacant & 50 acres or less | Land Use Code | 91 |
| Open Space: | N | DFL | N |
| Historic Property: | N | Remodel Property: | N |
| Multi-Family Redevelopment: | N | | |
| Township: | 31 | Section: | 35 |
| Range: | R2 |
Location |
| Address: | | Mapsco: | |
| Neighborhood: | Cycle 5 | Map ID: | 532 |
| Neighborhood CD: | 5 |
Owner |
| Name: | OLGA AND OLIO LLC | Owner ID: | 315318 |
| Mailing Address: | 7644 NE 8TH ST MEDINA, WA 98039 | % Ownership: | 100.0000000000% |
| | | Exemptions: | |
Taxes and Assessment Details
Values
| (+) Improvement Homesite Value: | + | $0 | |
| (+) Improvement Non-Homesite Value: | + | $0 | |
| (+) Land Homesite Value: | + | $0 | |
| (+) Land Non-Homesite Value: | + | $260,000 | |
| (+) Curr Use (HS): | + | $0 | $0 |
| (+) Curr Use (NHS): | + | $0 | $0 |
| | | -------------------------- | |
| (=) Market Value: | = | $260,000 | |
| (–) Productivity Loss: | – | $0 | |
| | | -------------------------- | |
| (=) Subtotal: | = | $260,000 | |
| (+) Senior Appraised Value: | + | $0 | |
| (+) Non-Senior Appraised Value: | + | $260,000 | |
| | | -------------------------- | |
| (=) Total Appraised Value: | = | $260,000 | |
| (–) Senior Exemption Loss: | – | $0 | |
| (–) Exemption Loss: | – | $0 | |
| | | -------------------------- | |
| (=) Taxable Value: | = | $260,000 | |
Taxing Jurisdiction
| Owner: | OLGA AND OLIO LLC | | |
| % Ownership: | 100.0000000000% | | |
| Total Value: | $260,000 | | |
| Tax Area: | 549 - APPRAISER-Stan/Cam Schl Dist, Special Dist, vacant & 50 acres or less |
| CF | Conservation Futures | 0.0313996660 | $260,000 | $260,000 | $8.16 | | |
| EMS1 | Fire & Rescue Dist #1 Camano GEN (EMS) | 0.4998471806 | $260,000 | $260,000 | $129.96 | | |
| CE | County Current Expense | 0.3674210519 | $260,000 | $260,000 | $95.53 | | |
| CR | County Roads | 0.4614296361 | $260,000 | $260,000 | $119.97 | | |
| LIB | Library Sno-Isle GEN | 0.3039084203 | $260,000 | $260,000 | $79.02 | | |
| SCH205_401 | School 205-401 Enrichment | 1.3697998934 | $260,000 | $260,000 | $356.15 | | |
| SCH205BOND | School 205-401 BOND | 0.9354199323 | $260,000 | $260,000 | $243.21 | | |
| ST | State School | 1.4761226122 | $260,000 | $260,000 | $383.79 | | |
| ST2 | State School Part 2 | 0.7953803475 | $260,000 | $260,000 | $206.80 | | |
| | Total Tax Rate: | 6.2407287403 | | | | | |
| | | | | Taxes w/Current Exemptions: | $1,622.59 | | |
| | | | | Taxes w/o Exemptions: | $1,622.59 | | |
Improvement / Building
Sketch
| No sketches available for this property. |
Property Image
Land
| 1 | 32 | AC (03.01-09.99) | 4.7400 | 206474.40 | 0.00 | 0.00 | 1.00 | $260,000 | $0 |
Roll Value History
| 2026 | N/A | N/A | N/A | N/A | N/A |
| 2025 | $0 | $260,000 | $0 | $260,000 | $260,000 |
| 2024 | $0 | $250,000 | $0 | $250,000 | $250,000 |
| 2023 | $0 | $220,000 | $0 | $220,000 | $220,000 |
| 2022 | $0 | $220,000 | $0 | $220,000 | $220,000 |
| 2021 | $0 | $190,000 | $0 | $190,000 | $190,000 |
| 2020 | $0 | $160,000 | $0 | $160,000 | $160,000 |
| 2019 | $0 | $190,000 | $0 | $190,000 | $190,000 |
| 2018 | $0 | $135,000 | $0 | $135,000 | $135,000 |
| 2017 | $0 | $200,000 | $0 | $200,000 | $200,000 |
| 2016 | $0 | $130,000 | $0 | $130,000 | $130,000 |
| 2015 | $0 | $189,600 | $0 | $189,600 | $189,600 |
| 2014 | $0 | $189,600 | $0 | $189,600 | $189,600 |
| 2013 | $0 | $189,600 | $0 | $189,600 | $189,600 |
| 2012 | $0 | $189,600 | $0 | $189,600 | $189,600 |
| 2011 | $0 | $189,600 | $0 | $189,600 | $189,600 |
| 2010 | $0 | $377,815 | $0 | $377,815 | $377,815 |
| 2009 | $0 | $306,000 | $0 | $306,000 | $306,000 |
| 2008 | $0 | $194,424 | $0 | $194,424 | $194,424 |
| 2007 | $0 | $222,906 | $0 | $222,906 | $222,906 |
Deed and Sales History
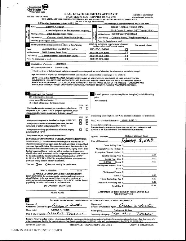
| 1 | 01/28/2025 | WD | Warranty Deed | HOLTON TRUSTEE, DANIEL T | OLGA AND OLIO LLC | | | $795,000.00 | 62458 | 4581811 |
|   | |
| 2 | 02/08/2017 | WD | Warranty Deed | HOLTON TRUSTEE, DANIEL T | HOLTON TRUSTEE, DANIEL T | | | $0.00 | 28057 | 4416873 |
| 3 | 02/08/2017 | WD | Warranty Deed | HOLTON TRUSTEE, DANIEL T | HOLTON TRUSTEE, DANIEL T | | | $0.00 | 28048 | 4416876 |
| 4 | 02/08/2017 | WD | Warranty Deed | HOLTON TRUSTEE, DANIEL T | HOLTON TRUSTEE, DANIEL T | | | $0.00 | 28047 | 4416875 |
| 5 | 02/08/2017 | WD | Warranty Deed | HOLTON TRUSTEE, DANIEL T | HOLTON TRUSTEE, DANIEL T | | | $0.00 | 28046 | 4416874 |
| 6 | 02/08/2017 | WD | Warranty Deed | HOLTON TRUSTEE, DANIEL T | HOLTON TRUSTEE, DANIEL T | | | $0.00 | 28043 | 4416872 |
| 7 | 02/08/2017 | WD | Warranty Deed | HOLTON TRUSTEE, DANIEL T | HOLTON TRUSTEE, DANIEL T | | | $0.00 | 28042 | 4416871 |
| 8 | 02/08/2017 | WD | Warranty Deed | HOLTON TRUSTEE, DANIEL T | HOLTON TRUSTEE, DANIEL T | | | $0.00 | 28041 | 4416870 |
| 9 | 02/08/2017 | WD | Warranty Deed | HOLTON, JOSEPH F | HOLTON TRUSTEE, DANIEL T | | | $0.00 | 28040 | 4416869 |
| 10 | 01/26/2017 | WD | Warranty Deed | HOLTON, JOSEPH F | HOLTON, JOSEPH F | | | $0.00 | 27995 | 4416659 |
| 11 | 06/30/2016 | WD | Warranty Deed | HOLTON, JOSEPH F | HOLTON, JOSEPH F | | | $0.00 | 27721 | 4415074 |
| 12 | 06/30/2016 | WD | Warranty Deed | CABRERA, LUIS F | HOLTON, JOSEPH F | | | $1,078,000.00 | 25211 | 4403105 |
|   | |
| 13 | 12/06/1999 | WD | Warranty Deed | STONEMAN, JON D | CABRERA, LUIS F | | | $262,500.00 | 95131 | 99028609 |
Payout Agreement
| No payout information available.. |