Property
Account |
| Property ID: | 802117 | Abbreviated Legal Description: | LOT 2 SP 136-99.23235.495-4300 V3 SP P294-5 AF#20001443 |
| Geographic ID: | R23235-477-4290 | Agent Code: | |
| Type: | Real | | |
| Tax Area: | 512 - APPRAISER-Stan/Cam Schl Dist, improved, greater than 1 acre | Land Use Code | 11 |
| Open Space: | N | DFL | N |
| Historic Property: | N | Remodel Property: | N |
| Multi-Family Redevelopment: | N | | |
| Township: | 32 | Section: | 35 |
| Range: | R2 |
Location |
| Address: | 383 N CAMANO RIDGE RD CAMANO ISLAND, WA 98282 | Mapsco: | |
| Neighborhood: | North Camano | Map ID: | 578 |
| Neighborhood CD: | 06-C |
Owner |
| Name: | LYONS, CORY A | Owner ID: | 298213 |
| Mailing Address: | ERIKA J LYONS 383 N CAMANO RIDGE RD CAMANO ISLAND, WA 98282 | % Ownership: | 100.0000000000% |
| | | Exemptions: | |
Taxes and Assessment Details
Values
| (+) Improvement Homesite Value: | + | $0 | |
| (+) Improvement Non-Homesite Value: | + | $254,521 | |
| (+) Land Homesite Value: | + | $0 | |
| (+) Land Non-Homesite Value: | + | $360,000 | |
| (+) Curr Use (HS): | + | $0 | $0 |
| (+) Curr Use (NHS): | + | $0 | $0 |
| | | -------------------------- | |
| (=) Market Value: | = | $614,521 | |
| (–) Productivity Loss: | – | $0 | |
| | | -------------------------- | |
| (=) Subtotal: | = | $614,521 | |
| (+) Senior Appraised Value: | + | $0 | |
| (+) Non-Senior Appraised Value: | + | $614,521 | |
| | | -------------------------- | |
| (=) Total Appraised Value: | = | $614,521 | |
| (–) Senior Exemption Loss: | – | $0 | |
| (–) Exemption Loss: | – | $0 | |
| | | -------------------------- | |
| (=) Taxable Value: | = | $614,521 | |
Taxing Jurisdiction
| Owner: | LYONS, CORY A | | |
| % Ownership: | 100.0000000000% | | |
| Total Value: | $614,521 | | |
| Tax Area: | 512 - APPRAISER-Stan/Cam Schl Dist, improved, greater than 1 acre |
| CF | Conservation Futures | 0.0313996660 | $614,521 | $614,521 | $19.30 | | |
| EMS1 | Fire & Rescue Dist #1 Camano GEN (EMS) | 0.4998471806 | $614,521 | $614,521 | $307.17 | | |
| FIRE1 | Fire & Rescue Dist #1 Camano GEN | 1.2496603404 | $614,521 | $614,521 | $767.94 | | |
| FIRE1BOND | Fire & Rescue Dist #1 Camano BOND | 0.1630371212 | $614,521 | $614,521 | $100.19 | | |
| CE | County Current Expense | 0.3674210519 | $614,521 | $614,521 | $225.79 | | |
| CR | County Roads | 0.4614296361 | $614,521 | $614,521 | $283.56 | | |
| LIB | Library Sno-Isle GEN | 0.3039084203 | $614,521 | $614,521 | $186.76 | | |
| SCH205_401 | School 205-401 Enrichment | 1.3697998934 | $614,521 | $614,521 | $841.77 | | |
| SCH205BOND | School 205-401 BOND | 0.9354199323 | $614,521 | $614,521 | $574.84 | | |
| ST | State School | 1.4761226122 | $614,521 | $614,521 | $907.11 | | |
| ST2 | State School Part 2 | 0.7953803475 | $614,521 | $614,521 | $488.78 | | |
| | Total Tax Rate: | 7.6534262019 | | | | | |
| | | | | Taxes w/Current Exemptions: | $4,703.21 | | |
| | | | | Taxes w/o Exemptions: | $4,703.21 | | |
Improvement / Building
| Improvement #1: | MANUFACTURED HOME | State Code: | Y | 2912.2 sqft | Value: | $254,521 |
| Bathrooms: | 3 | Bedrooms: | 3 | | Ceiling: | PLASTER PAINTED | Cooling: | EVAP NO DUCT | | Exterior Wall/Cover: | VINYL | Floor Covering: | CARPET 100% | | Floor Structure: | SLAB ON GRADE | Foundation: | SLAB | | Heating: | FHA ELECTRIC | Interior Finish: | PLASTER | | Plumbing Fixture Cnt: | 1 | Roof Slope: | FLAT | | Roof Structure/Cover: | CJ ALUMINIUM HEAVY |   |   |
|
| | Type | Description | Class CD | Sub Class CD | Year Built | Area |
| | BAS | BASE/MAIN FLOOR | 4 | 0 | 2001 | 2912.2 |
| | OWP | OPEN WOOD PORCH W/STEPS | 4 | 0 | 2001 | 40.0 |
| | OWP | OPEN WOOD PORCH W/STEPS | 4 | 0 | 2001 | 320.0 |
Sketch
Property Image
Land
| 1 | 32 | AC (03.01-09.99) | 4.5900 | 0.00 | 0.00 | 0.00 | 1.00 | $360,000 | $0 |
Roll Value History
| 2026 | N/A | N/A | N/A | N/A | N/A |
| 2025 | $254,521 | $360,000 | $0 | $614,521 | $614,521 |
| 2024 | $257,288 | $340,000 | $0 | $597,288 | $597,288 |
| 2023 | $226,136 | $320,000 | $0 | $546,136 | $546,136 |
| 2022 | $159,025 | $300,000 | $0 | $459,025 | $459,025 |
| 2021 | $142,081 | $230,000 | $0 | $372,081 | $372,081 |
| 2020 | $141,569 | $190,000 | $0 | $331,569 | $331,569 |
| 2019 | $114,473 | $220,000 | $0 | $334,473 | $334,473 |
| 2018 | $117,370 | $175,000 | $0 | $292,370 | $292,370 |
| 2017 | $120,269 | $150,000 | $0 | $270,269 | $270,269 |
| 2016 | $112,432 | $150,000 | $0 | $262,432 | $262,432 |
| 2015 | $115,278 | $102,816 | $0 | $218,094 | $218,094 |
| 2014 | $118,125 | $102,816 | $0 | $220,941 | $220,941 |
| 2013 | $120,971 | $102,816 | $0 | $223,787 | $223,787 |
| 2012 | $122,394 | $102,816 | $0 | $225,210 | $225,210 |
| 2011 | $123,818 | $128,520 | $0 | $252,338 | $252,338 |
| 2010 | $161,608 | $128,520 | $0 | $290,128 | $290,128 |
| 2009 | $168,018 | $153,765 | $0 | $321,783 | $321,783 |
| 2008 | $170,005 | $199,665 | $0 | $369,670 | $369,670 |
| 2007 | $171,993 | $199,665 | $0 | $371,658 | $371,658 |
Deed and Sales History
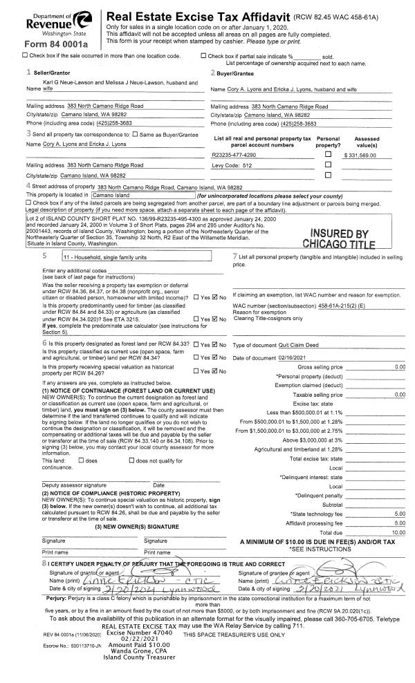
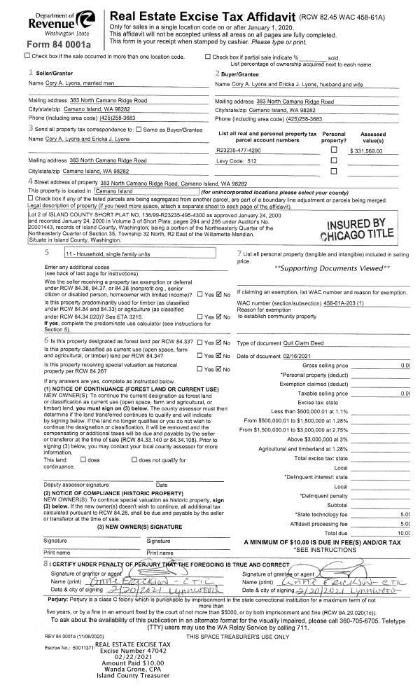
| 1 | 02/16/2021 | QCD | Quit Claim Deed | LYONS, CORY A | LYONS, CORY A | | | $0.00 | 47042 | 4511620 |
| 2 | 02/16/2021 | QCD | Quit Claim Deed | LYONS, CORY A | LYONS, CORY A | | | $0.00 | 47040 | 4511619 |
| 3 | 09/23/2014 | WD | Warranty Deed | NEUE, CARL | LYONS, CORY A | | | $240,000.00 | 16971 | 4366250 |
| 4 | 04/09/2014 | TRUSTEED | Trustee's Deed | O'NEIL, BRIAN | NEUE, CARL | | | $0.00 | 14966 | 4358080 |
| 5 | 06/23/2010 | TRUSTEED | Trustee's Deed | VANDERBILT MORTGAGE & FINAnCE, | O'NEIL, BRIAN | | | $215,000.00 | 1570 | 4276208 |
| 6 | 08/20/2009 | TRUSTEED | Trustee's Deed | FARRELL, CHRISTY A | VANDERBILT MORTGAGE & FINAnCE, | | | $0.00 | 91934 | 4258772 |
| 7 | 06/27/2008 | QCD | Quit Claim Deed | STORDAHL, ELMER | FARRELL, CHRISTY A | | | $0.00 | 81829 | 4232732 |
| 8 | 07/19/2001 | WD | Warranty Deed | LILLYWHITE, JACK W | STORDAHL, ELMER | | | $84,950.00 | 12765 | 20037942 |
| 9 | 03/09/2000 | ESTSEPPROP | Establish Separate Property | LILLYWHITE, JACK W | LILLYWHITE, JACK W | | | $0.00 | 872 | 20004432 |
| 10 | 03/09/2000 | WD | Warranty Deed | JONES, DARRYL R | LILLYWHITE, JACK W | | | $86,000.00 | 871 | 20004431 |
| 11 | 01/01/1900 | OTHER | Other - Misc. Documents | Unknown | JONES, DARRYL R | | | $0.00 | 0 | 0 |
Payout Agreement
| No payout information available.. |