Property
Account |
| Property ID: | 802474 | Abbreviated Legal Description: | SEASCAPE AT ELGER BAY - PRD LOT 10 |
| Geographic ID: | S8133-00-00010-0 | Agent Code: | |
| Type: | Real | | |
| Tax Area: | 540 - APPRAISER-Stan/Cam Schl Dist, Special Dist, improved & less than 1 acre | Land Use Code | 11 |
| Open Space: | N | DFL | N |
| Historic Property: | N | Remodel Property: | N |
| Multi-Family Redevelopment: | N | | |
| Township: | | Section: | |
| Range: | |
Location |
| Address: | 251 SUKYMA LN CAMANO ISLAND, WA 98282 | Mapsco: | |
| Neighborhood: | Cycle 5 | Map ID: | 943 |
| Neighborhood CD: | 5 |
Owner |
| Name: | BECKLEY, TODD | Owner ID: | 312856 |
| Mailing Address: | RACHEL BECKLEY 251 SUKYMA LN CAMANO ISLAND, WA 98282 | % Ownership: | 100.0000000000% |
| | | Exemptions: | |
Taxes and Assessment Details
Values
| (+) Improvement Homesite Value: | + | $0 | |
| (+) Improvement Non-Homesite Value: | + | $834,596 | |
| (+) Land Homesite Value: | + | $0 | |
| (+) Land Non-Homesite Value: | + | $290,000 | |
| (+) Curr Use (HS): | + | $0 | $0 |
| (+) Curr Use (NHS): | + | $0 | $0 |
| | | -------------------------- | |
| (=) Market Value: | = | $1,124,596 | |
| (–) Productivity Loss: | – | $0 | |
| | | -------------------------- | |
| (=) Subtotal: | = | $1,124,596 | |
| (+) Senior Appraised Value: | + | $0 | |
| (+) Non-Senior Appraised Value: | + | $1,124,596 | |
| | | -------------------------- | |
| (=) Total Appraised Value: | = | $1,124,596 | |
| (–) Senior Exemption Loss: | – | $0 | |
| (–) Exemption Loss: | – | $0 | |
| | | -------------------------- | |
| (=) Taxable Value: | = | $1,124,596 | |
Taxing Jurisdiction
| Owner: | BECKLEY, TODD | | |
| % Ownership: | 100.0000000000% | | |
| Total Value: | $1,124,596 | | |
| Tax Area: | 540 - APPRAISER-Stan/Cam Schl Dist, Special Dist, improved & less than 1 acre |
| CF | Conservation Futures | 0.0313996660 | $1,124,596 | $1,124,596 | $35.31 | | |
| EMS1 | Fire & Rescue Dist #1 Camano GEN (EMS) | 0.4998471806 | $1,124,596 | $1,124,596 | $562.13 | | |
| FIRE1 | Fire & Rescue Dist #1 Camano GEN | 1.2496603404 | $1,124,596 | $1,124,596 | $1,405.36 | | |
| FIRE1BOND | Fire & Rescue Dist #1 Camano BOND | 0.1630371212 | $1,124,596 | $1,124,596 | $183.35 | | |
| CE | County Current Expense | 0.3674210519 | $1,124,596 | $1,124,596 | $413.20 | | |
| CR | County Roads | 0.4614296361 | $1,124,596 | $1,124,596 | $518.92 | | |
| LIB | Library Sno-Isle GEN | 0.3039084203 | $1,124,596 | $1,124,596 | $341.77 | | |
| SCH205_401 | School 205-401 Enrichment | 1.3697998934 | $1,124,596 | $1,124,596 | $1,540.47 | | |
| SCH205BOND | School 205-401 BOND | 0.9354199323 | $1,124,596 | $1,124,596 | $1,051.97 | | |
| ST | State School | 1.4761226122 | $1,124,596 | $1,124,596 | $1,660.04 | | |
| ST2 | State School Part 2 | 0.7953803475 | $1,124,596 | $1,124,596 | $894.48 | | |
| | Total Tax Rate: | 7.6534262019 | | | | | |
| | | | | Taxes w/Current Exemptions: | $8,607.00 | | |
| | | | | Taxes w/o Exemptions: | $8,607.00 | | |
Improvement / Building
| Improvement #1: | RESIDENTIAL | State Code: | Y | 3743.4 sqft | Value: | $834,596 |
| Bathrooms: | 2.5 | Bedrooms: | 3 | | Ceiling: | DRYWALL PAINTED | Cooling: | HEAT PUMP/CONV/V | | Exterior Wall/Cover: | WOOD SIDING | Floor Covering: | CARPET/VINYL 60-40 | | Floor Structure: | WOOD W/SUBFLOOR | Foundation: | CONCRETE | | Interior Finish: | DRYWALL PAINT | Plumbing Fixture Cnt: | 17 | | Roof Slope: | 4" IN 12" | Roof Structure/Cover: | CJ ASPHALT |
|
| | Type | Description | Class CD | Sub Class CD | Year Built | Area |
| | BAS | BASE/MAIN FLOOR | 6 | 0 | 2006 | 1933.8 |
| | OP1 | OPEN PORCH SLAB | 5 | 0 | 2006 | 238.9 |
| | OP4 | OPEN PORCH W/CEILING-ROOF | 5 | 0 | 2006 | 134.2 |
| | AGR | ATTACHED GARAGE | 5 | 0 | 2006 | 905.6 |
| | OWP | OPEN WOOD PORCH W/STEPS | 5 | 0 | 2006 | 238.9 |
| | DWN | DOWNSTAIRS LIVING AREA | 5 | 0 | 2006 | 1809.6 |
Sketch
Property Image
Land
| 1 | 16 | AC (00.51-01.00) | 0.6875 | 29949.00 | 0.00 | 0.00 | 1.00 | $290,000 | $0 |
Roll Value History
| 2026 | N/A | N/A | N/A | N/A | N/A |
| 2025 | $834,596 | $290,000 | $0 | $1,124,596 | $1,124,596 |
| 2024 | $838,331 | $270,000 | $0 | $1,108,331 | $1,108,331 |
| 2023 | $847,830 | $270,000 | $0 | $1,117,830 | $1,117,830 |
| 2022 | $774,138 | $260,000 | $0 | $1,034,138 | $1,034,138 |
| 2021 | $658,344 | $200,000 | $0 | $858,344 | $858,344 |
| 2020 | $639,876 | $170,000 | $0 | $809,876 | $809,876 |
| 2019 | $479,925 | $210,000 | $0 | $689,925 | $689,925 |
| 2018 | $481,216 | $200,000 | $0 | $681,216 | $681,216 |
| 2017 | $483,803 | $150,000 | $0 | $633,803 | $633,803 |
| 2016 | $488,973 | $150,000 | $0 | $638,973 | $638,973 |
| 2015 | $458,736 | $150,000 | $0 | $608,736 | $608,736 |
| 2014 | $463,613 | $150,000 | $0 | $613,613 | $613,613 |
| 2013 | $468,491 | $138,384 | $0 | $606,875 | $606,875 |
| 2012 | $473,371 | $138,384 | $0 | $611,755 | $611,755 |
| 2011 | $478,250 | $172,980 | $0 | $651,230 | $651,230 |
| 2010 | $499,856 | $172,980 | $0 | $672,836 | $672,836 |
| 2009 | $523,007 | $201,000 | $0 | $724,007 | $724,007 |
| 2008 | $546,198 | $129,775 | $0 | $675,973 | $675,973 |
| 2007 | $498,293 | $129,775 | $0 | $628,068 | $628,068 |
Deed and Sales History
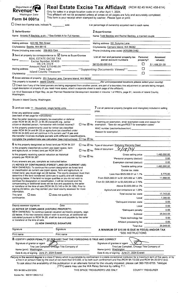
| 1 | 06/18/2024 | WD | Warranty Deed | BAUTISTA, ANTONIO R | BECKLEY, TODD | | | $1,460,000.00 | 60409 | 4573791 |
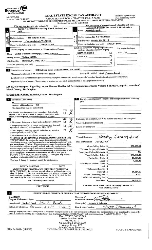
| 2 | 07/26/2019 | WD | Warranty Deed | HONDL, KEVIN J | BAUTISTA, ANTONIO R | | | $930,000.00 | 39691 | 4468552 |
| 3 | 05/07/2007 | QCD | Quit Claim Deed | SEACREST CUSTOM HOMES INC, | HONDL, KEVIN J | | | $0.00 | 71529 | 4201627 |
| 4 | 10/01/2004 | WD | Warranty Deed | MCKELVY, ROBERT C | SEACREST CUSTOM HOMES INC, | | | $164,000.00 | 44700 | 4114681 |
| 5 | 06/22/2000 | WD | Warranty Deed | SECOND CHANCE, | MCKELVY, ROBERT C | | | $89,500.00 | 2663 | 20012621 |
| 6 | 01/01/1900 | OTHER | Other - Misc. Documents | Unknown | SECOND CHANCE, | | | $0.00 | 0 | 0 |
Payout Agreement
| No payout information available.. |