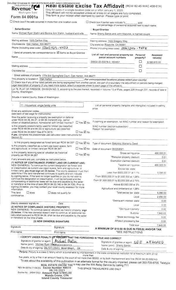
Property
Account |
| Property ID: | 802479 | Abbreviated Legal Description: | SEASCAPE AT ELGER BAY - PRD LOT 15 |
| Geographic ID: | S8133-00-00015-0 | Agent Code: | |
| Type: | Real | | |
| Tax Area: | 540 - APPRAISER-Stan/Cam Schl Dist, Special Dist, improved & less than 1 acre | Land Use Code | 11 |
| Open Space: | N | DFL | N |
| Historic Property: | N | Remodel Property: | N |
| Multi-Family Redevelopment: | N | | |
| Township: | | Section: | |
| Range: | |
Location |
| Address: | 277 SUKYMA LN CAMANO ISLAND, WA 98282 | Mapsco: | |
| Neighborhood: | Cycle 5 | Map ID: | 943 |
| Neighborhood CD: | 5 |
Owner |
| Name: | STEARNS TTEE, STEPHEN C | Owner ID: | 304420 |
| Mailing Address: | BEVERLY P STEARNS TTEE 277 SUKYMA LN CAMANO ISLAND, WA 98282 | % Ownership: | 100.0000000000% |
| | | Exemptions: | |
Taxes and Assessment Details
Values
| (+) Improvement Homesite Value: | + | $0 | |
| (+) Improvement Non-Homesite Value: | + | $723,636 | |
| (+) Land Homesite Value: | + | $0 | |
| (+) Land Non-Homesite Value: | + | $290,000 | |
| (+) Curr Use (HS): | + | $0 | $0 |
| (+) Curr Use (NHS): | + | $0 | $0 |
| | | -------------------------- | |
| (=) Market Value: | = | $1,013,636 | |
| (–) Productivity Loss: | – | $0 | |
| | | -------------------------- | |
| (=) Subtotal: | = | $1,013,636 | |
| (+) Senior Appraised Value: | + | $0 | |
| (+) Non-Senior Appraised Value: | + | $1,013,636 | |
| | | -------------------------- | |
| (=) Total Appraised Value: | = | $1,013,636 | |
| (–) Senior Exemption Loss: | – | $0 | |
| (–) Exemption Loss: | – | $0 | |
| | | -------------------------- | |
| (=) Taxable Value: | = | $1,013,636 | |
Taxing Jurisdiction
| Owner: | STEARNS TTEE, STEPHEN C | | |
| % Ownership: | 100.0000000000% | | |
| Total Value: | $1,013,636 | | |
| Tax Area: | 540 - APPRAISER-Stan/Cam Schl Dist, Special Dist, improved & less than 1 acre |
| CF | Conservation Futures | 0.0313996660 | $1,013,636 | $1,013,636 | $31.83 | | |
| EMS1 | Fire & Rescue Dist #1 Camano GEN (EMS) | 0.4998471806 | $1,013,636 | $1,013,636 | $506.66 | | |
| FIRE1 | Fire & Rescue Dist #1 Camano GEN | 1.2496603404 | $1,013,636 | $1,013,636 | $1,266.70 | | |
| FIRE1BOND | Fire & Rescue Dist #1 Camano BOND | 0.1630371212 | $1,013,636 | $1,013,636 | $165.26 | | |
| CE | County Current Expense | 0.3674210519 | $1,013,636 | $1,013,636 | $372.43 | | |
| CR | County Roads | 0.4614296361 | $1,013,636 | $1,013,636 | $467.72 | | |
| LIB | Library Sno-Isle GEN | 0.3039084203 | $1,013,636 | $1,013,636 | $308.05 | | |
| SCH205_401 | School 205-401 Enrichment | 1.3697998934 | $1,013,636 | $1,013,636 | $1,388.48 | | |
| SCH205BOND | School 205-401 BOND | 0.9354199323 | $1,013,636 | $1,013,636 | $948.18 | | |
| ST | State School | 1.4761226122 | $1,013,636 | $1,013,636 | $1,496.25 | | |
| ST2 | State School Part 2 | 0.7953803475 | $1,013,636 | $1,013,636 | $806.23 | | |
| | Total Tax Rate: | 7.6534262019 | | | | | |
| | | | | Taxes w/Current Exemptions: | $7,757.79 | | |
| | | | | Taxes w/o Exemptions: | $7,757.79 | | |
Improvement / Building
| Improvement #1: | RESIDENTIAL | State Code: | Y | 2936.2 sqft | Value: | $723,636 |
| Bathrooms: | 2.5 | Bedrooms: | 3 | | Ceiling: | BEAM PAINTED | Exterior Wall/Cover: | WOOD SIDING | | Floor Covering: | HARDWOOD/CARP 60-40 | Floor Structure: | WOOD W/SUBFLOOR | | Foundation: | CONCRETE | Heating: | FHA GAS | | Interior Finish: | DRYWALL PAINT | Plumbing Fixture Cnt: | 14 | | Roof Slope: | 10" IN 12" | Roof Structure/Cover: | BEAM ASPHALT |
|
| | Type | Description | Class CD | Sub Class CD | Year Built | Area |
| | BAS | BASE/MAIN FLOOR | 5 | 0 | 2000 | 2018.2 |
| | OP4 | OPEN PORCH W/CEILING-ROOF | 5 | 0 | 2000 | 70.0 |
| | BIG | BUILT IN GARAGE | 5 | 0 | 2000 | 742.0 |
| | UPS | UPPER STORY | 5 | 0 | 2000 | 918.0 |
| | ATU | ATTIC UNFINISHED | 5 | 0 | 2000 | 406.0 |
| | OWC | OPEN WOOD PORCH W/STEPS/ROOF/C | 5 | 0 | 2000 | 427.5 |
| | ENP | ENCLOSED PORCH | 5 | 0 | 2000 | 269.3 |
Sketch
Property Image
Land
| 1 | 16 | AC (00.51-01.00) | 0.0000 | 0.00 | 0.00 | 0.00 | 1.00 | $290,000 | $0 |
Roll Value History
| 2026 | N/A | N/A | N/A | N/A | N/A |
| 2025 | $723,636 | $290,000 | $0 | $1,013,636 | $1,013,636 |
| 2024 | $721,594 | $270,000 | $0 | $991,594 | $991,594 |
| 2023 | $729,864 | $270,000 | $0 | $999,864 | $999,864 |
| 2022 | $668,377 | $260,000 | $0 | $928,377 | $928,377 |
| 2021 | $586,075 | $200,000 | $0 | $786,075 | $786,075 |
| 2020 | $393,884 | $170,000 | $0 | $563,884 | $563,884 |
| 2019 | $296,982 | $210,000 | $0 | $506,982 | $506,982 |
| 2018 | $297,873 | $200,000 | $0 | $497,873 | $497,873 |
| 2017 | $299,627 | $150,000 | $0 | $449,627 | $449,627 |
| 2016 | $303,192 | $150,000 | $0 | $453,192 | $453,192 |
| 2015 | $282,312 | $150,000 | $0 | $432,312 | $432,312 |
| 2014 | $285,667 | $150,000 | $0 | $435,667 | $435,667 |
| 2013 | $289,022 | $138,384 | $0 | $427,406 | $427,406 |
| 2012 | $292,377 | $138,384 | $0 | $430,761 | $430,761 |
| 2011 | $295,730 | $172,980 | $0 | $468,710 | $468,710 |
| 2010 | $307,684 | $172,980 | $0 | $480,664 | $480,664 |
| 2009 | $320,701 | $201,000 | $0 | $521,701 | $521,701 |
| 2008 | $324,292 | $201,000 | $0 | $525,292 | $525,292 |
| 2007 | $289,009 | $236,462 | $0 | $525,471 | $525,471 |
Deed and Sales History
| 1 | 03/09/2022 | QCD | Quit Claim Deed | BEVERLY P STEARNS REVOCABLE LIVING TRUST | STEARNS TTEE, STEPHEN C | | | $0.00 | 53223 | 4545683 |
| 2 | 04/20/2021 | WD | Warranty Deed | KOZACZYNSKI, WOJTEK | BEVERLY P STEARNS REVOCABLE LIVING TRUST | | | $952,500.00 | 48039 | 4517930 |
| 3 | 06/22/2010 | WD | Warranty Deed | SEATON, JAMES J | KOZACZYNSKI, WOJTEK | | | $550,000.00 | 1594 | 4276396 |
| 4 | 10/21/1999 | WD | Warranty Deed | SECOND CHANCE, | SEATON, JAMES J | | | $62,500.00 | 94438 | 99024198 |
| 5 | 01/01/1900 | OTHER | Other - Misc. Documents | Unknown | SECOND CHANCE, | | | $0.00 | 0 | 0 |
Payout Agreement
| No payout information available.. |