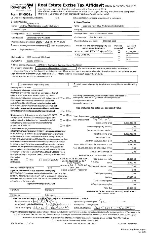
Property
Account |
| Property ID: | 802547 | Abbreviated Legal Description: | LOTS 1 & 2 SP 45-90.33025.463-0340 V2 SP P301 AF#91010067 TGW S/2 SE NW NW TGW & SUB EZ AF#91018947 TGW & SUB EZ AF#92003071 |
| Geographic ID: | R33025-411-0330 | Agent Code: | |
| Type: | Real | | |
| Tax Area: | 542 - APPRAISER-Stan/Cam Schl Dist, Special Dist, improved, greater than 1 acre | Land Use Code | 11 |
| Open Space: | N | DFL | N |
| Historic Property: | N | Remodel Property: | N |
| Multi-Family Redevelopment: | N | | |
| Township: | 30 | Section: | 25 |
| Range: | R3 |
Location |
| Address: | 4077 BERRY BLVD CAMANO ISLAND, WA 98282 | Mapsco: | |
| Neighborhood: | 58SofTamarackAC | Map ID: | 890 |
| Neighborhood CD: | 58RstamAC |
Owner |
| Name: | EAGLE NEST FARM LLC | Owner ID: | 316406 |
| Mailing Address: | 3815 NORTHEAST 98TH STREET SEATTLE, WA 98115 | % Ownership: | 100.0000000000% |
| | | Exemptions: | |
Taxes and Assessment Details
Values
| (+) Improvement Homesite Value: | + | $0 | |
| (+) Improvement Non-Homesite Value: | + | $571,959 | |
| (+) Land Homesite Value: | + | $0 | |
| (+) Land Non-Homesite Value: | + | $500,000 | |
| (+) Curr Use (HS): | + | $0 | $0 |
| (+) Curr Use (NHS): | + | $0 | $0 |
| | | -------------------------- | |
| (=) Market Value: | = | $1,071,959 | |
| (–) Productivity Loss: | – | $0 | |
| | | -------------------------- | |
| (=) Subtotal: | = | $1,071,959 | |
| (+) Senior Appraised Value: | + | $0 | |
| (+) Non-Senior Appraised Value: | + | $1,071,959 | |
| | | -------------------------- | |
| (=) Total Appraised Value: | = | $1,071,959 | |
| (–) Senior Exemption Loss: | – | $0 | |
| (–) Exemption Loss: | – | $0 | |
| | | -------------------------- | |
| (=) Taxable Value: | = | $1,071,959 | |
Taxing Jurisdiction
| Owner: | EAGLE NEST FARM LLC | | |
| % Ownership: | 100.0000000000% | | |
| Total Value: | $1,071,959 | | |
| Tax Area: | 542 - APPRAISER-Stan/Cam Schl Dist, Special Dist, improved, greater than 1 acre |
| CF | Conservation Futures | 0.0313996660 | $1,071,959 | $1,071,959 | $33.66 | | |
| EMS1 | Fire & Rescue Dist #1 Camano GEN (EMS) | 0.4998471806 | $1,071,959 | $1,071,959 | $535.82 | | |
| FIRE1 | Fire & Rescue Dist #1 Camano GEN | 1.2496603404 | $1,071,959 | $1,071,959 | $1,339.58 | | |
| FIRE1BOND | Fire & Rescue Dist #1 Camano BOND | 0.1630371212 | $1,071,959 | $1,071,959 | $174.77 | | |
| CE | County Current Expense | 0.3674210519 | $1,071,959 | $1,071,959 | $393.86 | | |
| CR | County Roads | 0.4614296361 | $1,071,959 | $1,071,959 | $494.63 | | |
| LIB | Library Sno-Isle GEN | 0.3039084203 | $1,071,959 | $1,071,959 | $325.78 | | |
| SCH205_401 | School 205-401 Enrichment | 1.3697998934 | $1,071,959 | $1,071,959 | $1,468.37 | | |
| SCH205BOND | School 205-401 BOND | 0.9354199323 | $1,071,959 | $1,071,959 | $1,002.73 | | |
| ST | State School | 1.4761226122 | $1,071,959 | $1,071,959 | $1,582.34 | | |
| ST2 | State School Part 2 | 0.7953803475 | $1,071,959 | $1,071,959 | $852.62 | | |
| | Total Tax Rate: | 7.6534262019 | | | | | |
| | | | | Taxes w/Current Exemptions: | $8,204.16 | | |
| | | | | Taxes w/o Exemptions: | $8,204.16 | | |
Improvement / Building
| Improvement #1: | RESIDENTIAL | State Code: | Y | 4481.3 sqft | Value: | $571,959 |
| Bathrooms: | 3 | Bedrooms: | 3 | | Ceiling: | DRYWALL PAINTED | Exterior Wall/Cover: | STUCCO | | Floor Covering: | HARDWOOD/CARP 60-40 | Floor Structure: | WOOD W/SUBFLOOR | | Foundation: | CONCRETE | Heating: | RAD HOT WATER-GAS | | Interior Finish: | DRYWALL PAINT | Plumbing Fixture Cnt: | 12 | | Roof Slope: | 18" IN 12" | Roof Structure/Cover: | BEAM WOOD SHAKES |
|
| | Type | Description | Class CD | Sub Class CD | Year Built | Area |
| | BAS | BASE/MAIN FLOOR | 4 | 0 | 1992 | 1199.1 |
| | DWN | DOWNSTAIRS LIVING AREA | 4 | 0 | 1992 | 1199.1 |
| | OP2 | OPEN PORCH W/STEPS | 4 | 0 | 1992 | 727.7 |
| | OP4 | OPEN PORCH W/CEILING-ROOF | 4 | 0 | 1992 | 54.0 |
| | UPS | UPPER STORY | 4 | 0 | 1992 | 983.1 |
| | BAW | BALCONY WOOD RAIL | 4 | 0 | 1992 | 33.7 |
| | DGR | DETACHED GARAGE | 4 | 0 | 1992 | 2250.0 |
| | CPD | OPEN CARPORT DIRT FLOOR | 4 | 0 | 1992 | 1170.0 |
| | OP4 | OPEN PORCH W/CEILING-ROOF | 4 | 0 | 1992 | 90.0 |
| | LOF | LOFT | 4 | 0 | 1992 | 1100.0 |
Sketch
Property Image
Land
| 1 | 35 | AC (10.00-30.99) | 15.1600 | 660369.60 | 0.00 | 0.00 | 1.00 | $500,000 | $0 |
Roll Value History
| 2026 | N/A | N/A | N/A | N/A | N/A |
| 2025 | $571,959 | $500,000 | $0 | $1,071,959 | $1,071,959 |
| 2024 | $579,664 | $470,000 | $0 | $1,049,664 | $1,049,664 |
| 2023 | $587,367 | $450,000 | $0 | $1,037,367 | $1,037,367 |
| 2022 | $538,871 | $400,000 | $0 | $938,871 | $938,871 |
| 2021 | $483,155 | $300,000 | $0 | $783,155 | $783,155 |
| 2020 | $472,752 | $260,000 | $0 | $732,752 | $732,752 |
| 2019 | $381,751 | $275,000 | $0 | $656,751 | $656,751 |
| 2018 | $382,941 | $250,000 | $0 | $632,941 | $632,941 |
| 2017 | $385,321 | $250,000 | $0 | $635,321 | $635,321 |
| 2016 | $390,077 | $250,000 | $0 | $640,077 | $640,077 |
| 2015 | $386,983 | $230,000 | $0 | $616,983 | $616,983 |
| 2014 | $390,932 | $230,000 | $0 | $620,932 | $620,932 |
| 2013 | $394,884 | $230,432 | $0 | $625,316 | $625,316 |
| 2012 | $398,835 | $230,432 | $0 | $629,267 | $629,267 |
| 2011 | $406,565 | $260,000 | $0 | $666,565 | $666,565 |
| 2010 | $418,288 | $260,000 | $0 | $678,288 | $678,288 |
| 2009 | $434,488 | $300,000 | $0 | $734,488 | $734,488 |
| 2008 | $432,183 | $400,000 | $0 | $832,183 | $832,183 |
| 2007 | $437,237 | $400,000 | $0 | $837,237 | $837,237 |
Deed and Sales History
| 1 | 05/05/2025 | WD | Warranty Deed | MUILENBURG, MATTHEW | EAGLE NEST FARM LLC | | | $1,000,000.00 | 63397 | 4585481 |
| 2 | 04/23/2012 | BARGSLD | Bargain And Sale Deed | JP MORGAN CHASE BANK NATIONAL ASSOCIATION | MUILENBURG, MATTHEW | | | $375,000.00 | 7533 | 4314461 |
| 3 | 11/29/2011 | TRUSTEED | Trustee's Deed | COLLINS, RICHARD S | JP MORGAN CHASE BANK NATIONAL ASSOCIATION | | | $309,816.00 | 6281 | 4305660 |
| 4 | 05/29/2003 | WD | Warranty Deed | LAITENBERGER, ROLF | COLLINS, RICHARD S | | | $350,000.00 | 32340 | 4061256 |
| 5 | 10/26/2000 | BLA | DNU - Boundary Line Adjustment | Unknown | LAITENBERGER, ROLF | | | $0.00 | 68819 | 20008109 |
Payout Agreement
| No payout information available.. |