Property
Account |
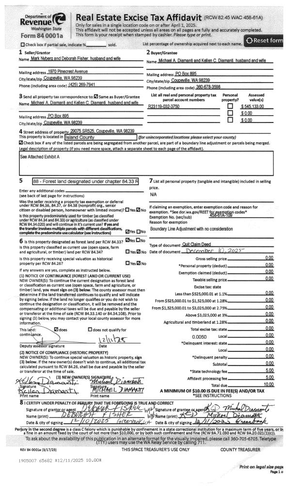
| Property ID: | 802692 | Abbreviated Legal Description: | E/2 S/2 SW SE |
| Geographic ID: | R23119-032-3750 | Agent Code: | |
| Type: | Real | | |
| Tax Area: | 312 - APPRAISER-Cpvl Schl Dist, outside Cpvl, improved, greater than 1 acre | Land Use Code | 88 |
| Open Space: | N | DFL | Y |
| Historic Property: | N | Remodel Property: | N |
| Multi-Family Redevelopment: | N | | |
| Township: | 31 | Section: | 19 |
| Range: | R2 |
Location |
| Address: | 29075 SR525 COUPEVILLE, WA 98239 | Mapsco: | |
| Neighborhood: | Cycle 2 | Map ID: | 494 |
| Neighborhood CD: | 2 |
Owner |
| Name: | DIAMANTI, MICHAEL A | Owner ID: | 188076 |
| Mailing Address: | KELLEN C DIAMANTI PO BOX 895 COUPEVILLE, WA 98239-0895 | % Ownership: | 100.0000000000% |
| | | Exemptions: | SNR/DSBL |
Taxes and Assessment Details
Values
| (+) Improvement Homesite Value: | + | $323,465 | |
| (+) Improvement Non-Homesite Value: | + | $0 | |
| (+) Land Homesite Value: | + | $220,000 | |
| (+) Land Non-Homesite Value: | + | $0 | |
| (+) Curr Use (HS): | + | $57,960 | $744 |
| (+) Curr Use (NHS): | + | $72,025 | $924 |
| | | -------------------------- | |
| (=) Market Value: | = | $673,450 | |
| (–) Productivity Loss: | – | $128,317 | |
| | | -------------------------- | |
| (=) Subtotal: | = | $545,133 | |
| (+) Senior Appraised Value: | + | $543,892 | |
| (+) Non-Senior Appraised Value: | + | $924 | |
| | | -------------------------- | |
| (=) Total Appraised Value: | = | $544,816 | |
| (–) Senior Exemption Loss: | – | $0 | |
| (–) Exemption Loss: | – | $0 | |
| | | -------------------------- | |
| (=) Taxable Value: | = | $544,816 | |
Taxing Jurisdiction
| Owner: | DIAMANTI, MICHAEL A | | |
| % Ownership: | 100.0000000000% | | |
| Total Value: | $673,450 | | |
| Tax Area: | 312 - APPRAISER-Cpvl Schl Dist, outside Cpvl, improved, greater than 1 acre |
| CF | Conservation Futures | 0.0313996660 | $545,133 | $544,816 | $17.11 | | |
| CEM2 | Cemetery #2 | 0.0092609791 | $545,133 | $544,816 | $5.05 | | |
| FIRE5 | Fire & Rescue Dist #5 C Whidbey GEN | 1.1892169230 | $545,133 | $544,816 | $647.90 | | |
| FIRE5BOND | Fire & Rescue Dist #5 C Whidbey BOND | 0.0000000000 | $545,133 | $924 | $0.13 | | |
| HOBOND | Hospital BOND | 0.0000000000 | $545,133 | $924 | $0.17 | | |
| HOGEN | Hospital GEN | 0.3848777722 | $545,133 | $544,816 | $209.69 | | |
| CE | County Current Expense | 0.3674210519 | $545,133 | $544,816 | $200.18 | | |
| CR | County Roads | 0.4614296361 | $545,133 | $544,816 | $251.39 | | |
| ISLANDEMS | Hospital GEN (EMS) | 0.4952018576 | $545,133 | $544,816 | $269.79 | | |
| LIB | Library Sno-Isle GEN | 0.3039084203 | $545,133 | $544,816 | $165.57 | | |
| LIBCAP | Library Sno-Isle BOND (Cap Fac Imp Area) | 0.0000000000 | $545,133 | $924 | $0.05 | | |
| POCOUP | Port of Coupeville GEN | 0.1065226063 | $545,133 | $544,816 | $58.04 | | |
| POCOUPIDD | Port of Coupeville IDD | 0.3353038577 | $545,133 | $544,816 | $182.68 | | |
| COUPSDTECH | School 204 CP (TECH) | 0.0000000000 | $545,133 | $924 | $0.11 | | |
| SCH204MO | School 204 Enrichment | 0.0000000000 | $545,133 | $924 | $0.59 | | |
| ST | State School | 1.4761226122 | $545,133 | $544,816 | $804.22 | | |
| ST2 | State School Part 2 | 0.0000000000 | $545,133 | $924 | $0.73 | | |
| | Total Tax Rate: | 5.1606653824 | | | | | |
| | | | | Taxes w/Current Exemptions: | $2,813.40 | | |
| | | | | Taxes w/o Exemptions: | $3,870.91 | | |
Improvement / Building
| Improvement #1: | RESIDENTIAL | State Code: | Y | 1288.0 sqft | Value: | $323,465 |
| Bathrooms: | 1.5 | Bedrooms: | 3 | | Ceiling: | TONGUE & GROOVE | Exterior Wall/Cover: | WOOD SIDING | | Floor Covering: | HARDWOOD/CARP 80-20 | Floor Structure: | WOOD W/SUBFLOOR | | Foundation: | CONCRETE | Heating: | HEAT PUMP | | Interior Finish: | DRYWALL PAINT | Plumbing Fixture Cnt: | 9 | | Roof Slope: | 4" IN 12" | Roof Structure/Cover: | BEAM ASPHALT |
|
| | Type | Description | Class CD | Sub Class CD | Year Built | Area |
| | BAS | BASE/MAIN FLOOR | 3 | 0 | 1964 | 784.0 |
| | OWP | OPEN WOOD PORCH W/STEPS | 3 | 0 | 1964 | 438.5 |
| | oUTI | UTILITY | 2 | 0 | 1964 | 136.0 |
| | UPH | HALF STORY | 3 | 0 | 1964 | 504.0 |
| | oPOL | POLE BARN | 4 | 0 | 2011 | 976.0 |
| | oLOF | STORAGE LOFT | 4 | 0 | 2011 | 381.2 |
Sketch
| No sketches available for this property. |
Property Image
Land
| 1 | 88 | DESIGNATED FOREST | 8.9700 | 390733.20 | 0.00 | 0.00 | 1.00 | $129,985 | $1,668 |
| 2 | HS | HOMESITE | 1.0000 | 43560.00 | 0.00 | 0.00 | 1.00 | $220,000 | $0 |
Roll Value History
| 2026 | N/A | N/A | N/A | N/A | N/A |
| 2025 | $323,465 | $349,985 | $1,668 | $545,133 | $544,816 |
| 2024 | $333,144 | $300,000 | $1,677 | $544,821 | $544,821 |
| 2023 | $322,519 | $280,000 | $1,606 | $352,209 | $352,209 |
| 2022 | $295,441 | $260,000 | $1,606 | $323,047 | $323,047 |
| 2021 | $259,835 | $225,000 | $1,606 | $284,009 | $284,009 |
| 2020 | $252,941 | $215,000 | $1,606 | $276,112 | $276,112 |
| 2019 | $184,684 | $230,000 | $1,552 | $209,305 | $209,305 |
| 2018 | $139,440 | $200,000 | $1,534 | $158,967 | $158,967 |
| 2017 | $140,070 | $150,000 | $1,534 | $156,649 | $156,649 |
| 2016 | $137,311 | $140,000 | $924 | $152,655 | $152,655 |
| 2015 | $138,691 | $110,169 | $924 | $150,665 | $150,665 |
| 2014 | $140,070 | $110,169 | $924 | $152,044 | $152,044 |
| 2013 | $141,449 | $110,169 | $924 | $153,423 | $153,423 |
| 2012 | $0 | $99,119 | $924 | $924 | $924 |
| 2011 | $0 | $116,610 | $924 | $924 | $924 |
| 2010 | $0 | $116,610 | $924 | $924 | $924 |
| 2009 | $0 | $179,400 | $924 | $924 | $924 |
| 2008 | $0 | $226,044 | $924 | $924 | $924 |
| 2007 | $0 | $226,044 | $924 | $924 | $924 |
Deed and Sales History
| 1 | 06/10/2002 | WD | Warranty Deed | NORTHWEST EXCHANGE & TRUSTEE I | DIAMANTI, MICHAEL A | | | $43,750.00 | 22300 | 4023083 |
| 2 | 03/01/2001 | SEG | DNU - Segregation | Unknown | NORTHWEST EXCHANGE & TRUSTEE I | | | $0.00 | 68975 | 0 |
Payout Agreement
| No payout information available.. |