Property
Account |
| Property ID: | 802846 | Abbreviated Legal Description: | SPRING HOLLOW #1 LOT 25 |
| Geographic ID: | S8201-00-00025-0 | Agent Code: | |
| Type: | Real | | |
| Tax Area: | 100 - APPRAISER-OH Schl Dist, in OH | Land Use Code | 11 |
| Open Space: | N | DFL | N |
| Historic Property: | N | Remodel Property: | N |
| Multi-Family Redevelopment: | N | | |
| Township: | | Section: | |
| Range: | |
Location |
| Address: | 1006 NE CORDERO PLACE OAK HARBOR, WA 98277 | Mapsco: | |
| Neighborhood: | Cycle 1 | Map ID: | 258 |
| Neighborhood CD: | 1 |
Owner |
| Name: | TANGHARE, JOSEPH | Owner ID: | 314301 |
| Mailing Address: | KRISTI L TANGHARE 1006 NE CORDERO PL OAK HARBOR, WA 98277 | % Ownership: | 100.0000000000% |
| | | Exemptions: | |
Taxes and Assessment Details
Values
| (+) Improvement Homesite Value: | + | $0 | |
| (+) Improvement Non-Homesite Value: | + | $307,709 | |
| (+) Land Homesite Value: | + | $0 | |
| (+) Land Non-Homesite Value: | + | $170,000 | |
| (+) Curr Use (HS): | + | $0 | $0 |
| (+) Curr Use (NHS): | + | $0 | $0 |
| | | -------------------------- | |
| (=) Market Value: | = | $477,709 | |
| (–) Productivity Loss: | – | $0 | |
| | | -------------------------- | |
| (=) Subtotal: | = | $477,709 | |
| (+) Senior Appraised Value: | + | $0 | |
| (+) Non-Senior Appraised Value: | + | $477,709 | |
| | | -------------------------- | |
| (=) Total Appraised Value: | = | $477,709 | |
| (–) Senior Exemption Loss: | – | $0 | |
| (–) Exemption Loss: | – | $0 | |
| | | -------------------------- | |
| (=) Taxable Value: | = | $477,709 | |
Taxing Jurisdiction
| Owner: | TANGHARE, JOSEPH | | |
| % Ownership: | 100.0000000000% | | |
| Total Value: | $477,709 | | |
| Tax Area: | 100 - APPRAISER-OH Schl Dist, in OH |
| CF | Conservation Futures | 0.0313996660 | $477,709 | $477,709 | $15.00 | | |
| CEM1 | Cemetery #1 | 0.0040018856 | $477,709 | $477,709 | $1.91 | | |
| COH | City of Oak Harbor | 2.3090730572 | $477,709 | $477,709 | $1,103.06 | | |
| OAKBOND | City of Oak Harbor BOND | 0.1902260131 | $477,709 | $477,709 | $90.87 | | |
| HOBOND | Hospital BOND | 0.1893405597 | $477,709 | $477,709 | $90.45 | | |
| HOGEN | Hospital GEN | 0.3848777722 | $477,709 | $477,709 | $183.86 | | |
| CE | County Current Expense | 0.3674210519 | $477,709 | $477,709 | $175.52 | | |
| ISLANDEMS | Hospital GEN (EMS) | 0.4952018576 | $477,709 | $477,709 | $236.56 | | |
| LIB | Library Sno-Isle GEN | 0.3039084203 | $477,709 | $477,709 | $145.18 | | |
| NWHIDPRMT | P & R N Whidbey GEN | 0.1990272349 | $477,709 | $477,709 | $95.08 | | |
| SCH201MO | School 201 Enrichment | 2.3851112745 | $477,709 | $477,709 | $1,139.39 | | |
| ST | State School | 1.4761226122 | $477,709 | $477,709 | $705.16 | | |
| ST2 | State School Part 2 | 0.7953803475 | $477,709 | $477,709 | $379.96 | | |
| | Total Tax Rate: | 9.1310917527 | | | | | |
| | | | | Taxes w/Current Exemptions: | $4,362.00 | | |
| | | | | Taxes w/o Exemptions: | $4,362.00 | | |
Improvement / Building
| Improvement #1: | RESIDENTIAL | State Code: | Y | 1622.5 sqft | Value: | $307,709 |
| Bathrooms: | 2.5 | Bedrooms: | 4 | | Ceiling: | DRYWALL PAINTED | Exterior Wall/Cover: | PLY/HARDBOARD T-111 | | Floor Covering: | CARPET/VINYL 80-20 | Floor Structure: | WOOD W/SUBFLOOR | | Foundation: | CONCRETE | Heating: | FHA GAS | | Interior Finish: | DRYWALL PAINT | Plumbing Fixture Cnt: | 11 | | Roof Slope: | 6" IN 12" | Roof Structure/Cover: | CJ ASPHALT |
|
| | Type | Description | Class CD | Sub Class CD | Year Built | Area |
| | BAS | BASE/MAIN FLOOR | 3 | 0 | 2002 | 1040.5 |
| | OP4 | OPEN PORCH W/CEILING-ROOF | 3 | 0 | 2002 | 111.0 |
| | AGR | ATTACHED GARAGE | 3 | 0 | 2002 | 490.6 |
| | UPS | UPPER STORY | 3 | 0 | 2002 | 582.0 |
| | OWP | OPEN WOOD PORCH W/STEPS | 3 | 0 | 2002 | 370.4 |
Sketch
| No sketches available for this property. |
Property Image
Land
| 1 | 12 | SQ (00000-06000) | 0.0000 | 0.00 | 0.00 | 0.00 | 1.00 | $170,000 | $0 |
Roll Value History
| 2026 | N/A | N/A | N/A | N/A | N/A |
| 2025 | $307,709 | $170,000 | $0 | $477,709 | $477,709 |
| 2024 | $293,909 | $160,000 | $0 | $453,909 | $453,909 |
| 2023 | $302,270 | $160,000 | $0 | $462,270 | $462,270 |
| 2022 | $276,986 | $150,000 | $0 | $426,986 | $426,986 |
| 2021 | $243,715 | $115,000 | $0 | $358,715 | $358,715 |
| 2020 | $237,138 | $100,000 | $0 | $337,138 | $337,138 |
| 2019 | $171,872 | $150,000 | $0 | $321,872 | $321,872 |
| 2018 | $172,363 | $125,000 | $0 | $297,363 | $297,363 |
| 2017 | $170,065 | $110,000 | $0 | $280,065 | $280,065 |
| 2016 | $158,177 | $90,000 | $0 | $248,177 | $248,177 |
| 2015 | $159,954 | $35,000 | $0 | $194,954 | $194,954 |
| 2014 | $161,731 | $35,000 | $0 | $196,731 | $196,731 |
| 2013 | $163,509 | $35,000 | $0 | $198,509 | $198,509 |
| 2012 | $165,286 | $35,000 | $0 | $200,286 | $200,286 |
| 2011 | $158,696 | $35,000 | $0 | $193,696 | $193,696 |
| 2010 | $162,243 | $35,000 | $0 | $197,243 | $197,243 |
| 2009 | $167,266 | $56,440 | $0 | $223,706 | $223,706 |
| 2008 | $169,077 | $68,000 | $0 | $237,077 | $237,077 |
| 2007 | $172,655 | $68,000 | $0 | $240,655 | $240,655 |
Deed and Sales History
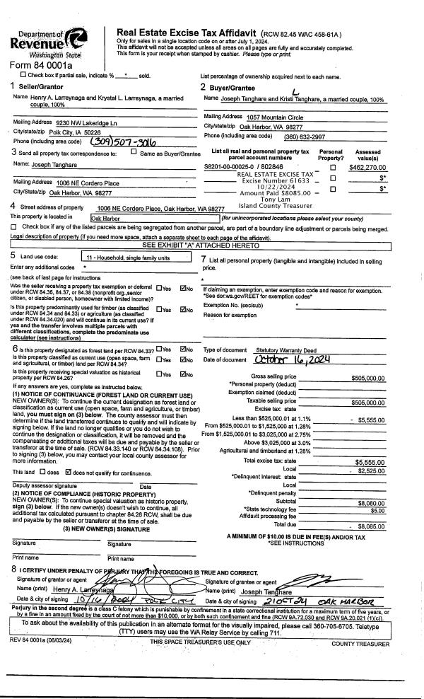
| 1 | 10/16/2024 | WD | Warranty Deed | LARREYNAGA, HENRY A | TANGHARE, JOSEPH | | | $505,000.00 | 61633 | 4578508 |
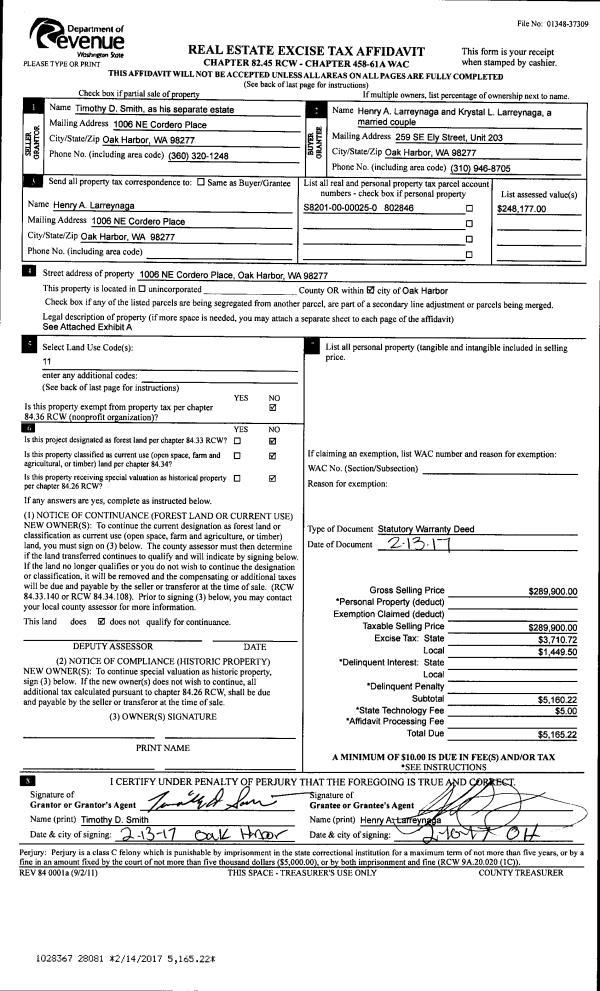
| 2 | 02/13/2017 | WD | Warranty Deed | SMITH, TIMOTHY D | LARREYNAGA, HENRY A | | | $289,900.00 | 28081 | 4417047 |
| 3 | 03/25/2016 | WD | Warranty Deed | CONNORS, DAVID A | SMITH, TIMOTHY D | | | $270,000.00 | 23722 | 4396742 |
| 4 | 02/27/2002 | WD | Warranty Deed | ISLAND HERITAGE LLC, | CONNORS, DAVID A | | | $163,900.00 | 20818 | 4012904 |
| 5 | 06/15/2001 | WD | Warranty Deed | DANIFF LLC, | ISLAND HERITAGE LLC, | | | $40,500.00 | 12243 | 20035110 |
Payout Agreement
| No payout information available.. |