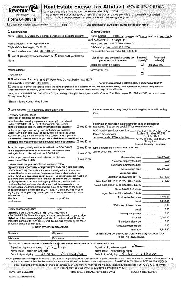
Property
Account |
| Property ID: | 802873 | Abbreviated Legal Description: | FIRESIDE #4 LOT 4 |
| Geographic ID: | S6632-04-00004-0 | Agent Code: | |
| Type: | Real | | |
| Tax Area: | 100 - APPRAISER-OH Schl Dist, in OH | Land Use Code | 11 |
| Open Space: | N | DFL | N |
| Historic Property: | N | Remodel Property: | N |
| Multi-Family Redevelopment: | N | | |
| Township: | | Section: | |
| Range: | |
Location |
| Address: | 1892 SW ROCK ROSE DR OAK HARBOR, WA 98277 | Mapsco: | |
| Neighborhood: | Cycle 1 | Map ID: | 95 |
| Neighborhood CD: | 1 |
Owner |
| Name: | HINES, KRISTINA | Owner ID: | 313865 |
| Mailing Address: | 1892 SW ROCK ROSE DR OAK HARBOR, WA 98277 | % Ownership: | 100.0000000000% |
| | | Exemptions: | |
Taxes and Assessment Details
Values
| (+) Improvement Homesite Value: | + | $0 | |
| (+) Improvement Non-Homesite Value: | + | $361,081 | |
| (+) Land Homesite Value: | + | $0 | |
| (+) Land Non-Homesite Value: | + | $200,000 | |
| (+) Curr Use (HS): | + | $0 | $0 |
| (+) Curr Use (NHS): | + | $0 | $0 |
| | | -------------------------- | |
| (=) Market Value: | = | $561,081 | |
| (–) Productivity Loss: | – | $0 | |
| | | -------------------------- | |
| (=) Subtotal: | = | $561,081 | |
| (+) Senior Appraised Value: | + | $0 | |
| (+) Non-Senior Appraised Value: | + | $561,081 | |
| | | -------------------------- | |
| (=) Total Appraised Value: | = | $561,081 | |
| (–) Senior Exemption Loss: | – | $0 | |
| (–) Exemption Loss: | – | $0 | |
| | | -------------------------- | |
| (=) Taxable Value: | = | $561,081 | |
Taxing Jurisdiction
| Owner: | HINES, KRISTINA | | |
| % Ownership: | 100.0000000000% | | |
| Total Value: | $561,081 | | |
| Tax Area: | 100 - APPRAISER-OH Schl Dist, in OH |
| CF | Conservation Futures | 0.0313996660 | $561,081 | $561,081 | $17.62 | | |
| CEM1 | Cemetery #1 | 0.0040018856 | $561,081 | $561,081 | $2.25 | | |
| COH | City of Oak Harbor | 2.3090730572 | $561,081 | $561,081 | $1,295.58 | | |
| OAKBOND | City of Oak Harbor BOND | 0.1902260131 | $561,081 | $561,081 | $106.73 | | |
| HOBOND | Hospital BOND | 0.1893405597 | $561,081 | $561,081 | $106.24 | | |
| HOGEN | Hospital GEN | 0.3848777722 | $561,081 | $561,081 | $215.95 | | |
| CE | County Current Expense | 0.3674210519 | $561,081 | $561,081 | $206.15 | | |
| ISLANDEMS | Hospital GEN (EMS) | 0.4952018576 | $561,081 | $561,081 | $277.85 | | |
| LIB | Library Sno-Isle GEN | 0.3039084203 | $561,081 | $561,081 | $170.52 | | |
| NWHIDPRMT | P & R N Whidbey GEN | 0.1990272349 | $561,081 | $561,081 | $111.67 | | |
| SCH201MO | School 201 Enrichment | 2.3851112745 | $561,081 | $561,081 | $1,338.24 | | |
| ST | State School | 1.4761226122 | $561,081 | $561,081 | $828.22 | | |
| ST2 | State School Part 2 | 0.7953803475 | $561,081 | $561,081 | $446.27 | | |
| | Total Tax Rate: | 9.1310917527 | | | | | |
| | | | | Taxes w/Current Exemptions: | $5,123.29 | | |
| | | | | Taxes w/o Exemptions: | $5,123.29 | | |
Improvement / Building
| Improvement #1: | RESIDENTIAL | State Code: | Y | 1791.0 sqft | Value: | $361,081 |
| Bathrooms: | 2 | Bedrooms: | 3 | | Ceiling: | DRYWALL PAINTED | Exterior Wall/Cover: | CEMENT FIBER | | Floor Covering: | HARDWOOD/CARP 60-40 | Floor Structure: | WOOD W/SUBFLOOR | | Foundation: | CONCRETE | Heating: | FHA GAS | | Interior Finish: | DRYWALL PAINT | Plumbing Fixture Cnt: | 10 | | Roof Slope: | 6" IN 12" | Roof Structure/Cover: | CJ ASPHALT |
|
| | Type | Description | Class CD | Sub Class CD | Year Built | Area |
| | BAS | BASE/MAIN FLOOR | 3 | 0 | 2001 | 1791.0 |
| | OP4 | OPEN PORCH W/CEILING-ROOF | 3 | 0 | 2001 | 153.0 |
| | AGR | ATTACHED GARAGE | 3 | 0 | 2001 | 529.0 |
| | OWC | OPEN WOOD PORCH W/STEPS/ROOF/C | 3 | 0 | 2001 | 136.0 |
Sketch
| No sketches available for this property. |
Property Image
Land
| 1 | 14 | SQ (08001-12000) | 0.0000 | 0.00 | 0.00 | 0.00 | 1.00 | $200,000 | $0 |
Roll Value History
| 2026 | N/A | N/A | N/A | N/A | N/A |
| 2025 | $361,081 | $200,000 | $0 | $561,081 | $561,081 |
| 2024 | $374,931 | $190,000 | $0 | $564,931 | $564,931 |
| 2023 | $362,187 | $180,000 | $0 | $542,187 | $542,187 |
| 2022 | $331,808 | $160,000 | $0 | $491,808 | $491,808 |
| 2021 | $291,868 | $130,000 | $0 | $421,868 | $421,868 |
| 2020 | $284,112 | $100,000 | $0 | $384,112 | $384,112 |
| 2019 | $210,477 | $150,000 | $0 | $360,477 | $360,477 |
| 2018 | $211,069 | $130,000 | $0 | $341,069 | $341,069 |
| 2017 | $205,033 | $120,000 | $0 | $325,033 | $325,033 |
| 2016 | $207,364 | $90,000 | $0 | $297,364 | $297,364 |
| 2015 | $209,694 | $70,000 | $0 | $279,694 | $279,694 |
| 2014 | $212,024 | $65,000 | $0 | $277,024 | $277,024 |
| 2013 | $214,353 | $65,000 | $0 | $279,353 | $279,353 |
| 2012 | $216,684 | $65,000 | $0 | $281,684 | $281,684 |
| 2011 | $214,457 | $45,000 | $0 | $259,457 | $259,457 |
| 2010 | $224,420 | $45,000 | $0 | $269,420 | $269,420 |
| 2009 | $234,085 | $75,000 | $0 | $309,085 | $309,085 |
| 2008 | $234,647 | $95,000 | $0 | $329,647 | $329,647 |
| 2007 | $237,652 | $95,000 | $0 | $332,652 | $332,652 |
Deed and Sales History
| 1 | 09/09/2024 | WD | Warranty Deed | CHAPMAN, JASON | HINES, KRISTINA | | | $552,000.00 | 61253 | 4577026 |
| 2 | 10/27/2021 | QCD | Quit Claim Deed | CHAPMAN, ESTELA | CHAPMAN, JASON | | | $0.00 | 51113 | 4534800 |
| 3 | 11/19/2021 | WD | Warranty Deed | ADAMS, BRANDON J | CHAPMAN, JASON | | | $510,000.00 | 51109 | 4534799 |
| 4 | 11/06/2009 | WD | Warranty Deed | SEIB, ERIC O | ADAMS, BRANDON J | | | $285,000.00 | 92946 | 4264616 |
| 5 | 10/20/2004 | WD | Warranty Deed | GREEN JR, ARTHUR | SEIB, ERIC O | | | $244,900.00 | 45147 | 4116977 |
| 6 | 11/06/2001 | WD | Warranty Deed | HOMESTEAD NW DEV CO, | GREEN JR, ARTHUR | | | $199,000.00 | 14303 | 4002410 |
| 7 | 03/29/2001 | WD | Warranty Deed | KRIEG, KARL C | HOMESTEAD NW DEV CO, | | | $46,000.00 | 11041 | 20028600 |
| 8 | 01/01/1900 | OTHER | Other - Misc. Documents | Unknown | KRIEG, KARL C | | | $0.00 | 0 | 0 |
Payout Agreement
| No payout information available.. |