Property
Account |
| Property ID: | 802874 | Abbreviated Legal Description: | FIRESIDE #4 LOT 5 |
| Geographic ID: | S6632-04-00005-0 | Agent Code: | |
| Type: | Real | | |
| Tax Area: | 100 - APPRAISER-OH Schl Dist, in OH | Land Use Code | 11 |
| Open Space: | N | DFL | N |
| Historic Property: | N | Remodel Property: | N |
| Multi-Family Redevelopment: | N | | |
| Township: | | Section: | |
| Range: | |
Location |
| Address: | 1922 SW ROCK ROSE DR OAK HARBOR, WA 98277 | Mapsco: | |
| Neighborhood: | Cycle 1 | Map ID: | 95 |
| Neighborhood CD: | 1 |
Owner |
| Name: | BAIRD, BRETT | Owner ID: | 285330 |
| Mailing Address: | GRETYL BAIRD 1922 SW ROCK ROSE DR OAK HARBOR, WA 98277 | % Ownership: | 100.0000000000% |
| | | Exemptions: | |
Taxes and Assessment Details
Values
| (+) Improvement Homesite Value: | + | $0 | |
| (+) Improvement Non-Homesite Value: | + | $371,027 | |
| (+) Land Homesite Value: | + | $0 | |
| (+) Land Non-Homesite Value: | + | $200,000 | |
| (+) Curr Use (HS): | + | $0 | $0 |
| (+) Curr Use (NHS): | + | $0 | $0 |
| | | -------------------------- | |
| (=) Market Value: | = | $571,027 | |
| (–) Productivity Loss: | – | $0 | |
| | | -------------------------- | |
| (=) Subtotal: | = | $571,027 | |
| (+) Senior Appraised Value: | + | $0 | |
| (+) Non-Senior Appraised Value: | + | $571,027 | |
| | | -------------------------- | |
| (=) Total Appraised Value: | = | $571,027 | |
| (–) Senior Exemption Loss: | – | $0 | |
| (–) Exemption Loss: | – | $0 | |
| | | -------------------------- | |
| (=) Taxable Value: | = | $571,027 | |
Taxing Jurisdiction
| Owner: | BAIRD, BRETT | | |
| % Ownership: | 100.0000000000% | | |
| Total Value: | $571,027 | | |
| Tax Area: | 100 - APPRAISER-OH Schl Dist, in OH |
| CF | Conservation Futures | 0.0313996660 | $571,027 | $571,027 | $17.93 | | |
| CEM1 | Cemetery #1 | 0.0040018856 | $571,027 | $571,027 | $2.29 | | |
| COH | City of Oak Harbor | 2.3090730572 | $571,027 | $571,027 | $1,318.54 | | |
| OAKBOND | City of Oak Harbor BOND | 0.1902260131 | $571,027 | $571,027 | $108.62 | | |
| HOBOND | Hospital BOND | 0.1893405597 | $571,027 | $571,027 | $108.12 | | |
| HOGEN | Hospital GEN | 0.3848777722 | $571,027 | $571,027 | $219.78 | | |
| CE | County Current Expense | 0.3674210519 | $571,027 | $571,027 | $209.81 | | |
| ISLANDEMS | Hospital GEN (EMS) | 0.4952018576 | $571,027 | $571,027 | $282.77 | | |
| LIB | Library Sno-Isle GEN | 0.3039084203 | $571,027 | $571,027 | $173.54 | | |
| NWHIDPRMT | P & R N Whidbey GEN | 0.1990272349 | $571,027 | $571,027 | $113.65 | | |
| SCH201MO | School 201 Enrichment | 2.3851112745 | $571,027 | $571,027 | $1,361.96 | | |
| ST | State School | 1.4761226122 | $571,027 | $571,027 | $842.91 | | |
| ST2 | State School Part 2 | 0.7953803475 | $571,027 | $571,027 | $454.18 | | |
| | Total Tax Rate: | 9.1310917527 | | | | | |
| | | | | Taxes w/Current Exemptions: | $5,214.10 | | |
| | | | | Taxes w/o Exemptions: | $5,214.10 | | |
Improvement / Building
| Improvement #1: | RESIDENTIAL | State Code: | Y | 1979.8 sqft | Value: | $371,027 |
| Bathrooms: | 3 | Bedrooms: | 4 | | Ceiling: | DRYWALL PAINTED | Exterior Wall/Cover: | CEMENT FIBER | | Floor Covering: | HARDWOOD/CARP 20-80 | Floor Structure: | WOOD W/SUBFLOOR | | Foundation: | CONCRETE | Heating: | FHA GAS | | Interior Finish: | DRYWALL PAINT | Plumbing Fixture Cnt: | 15 | | Roof Slope: | 8" IN 12" | Roof Structure/Cover: | CJ ASPHALT |
|
| | Type | Description | Class CD | Sub Class CD | Year Built | Area |
| | BAS | BASE/MAIN FLOOR | 3 | 0 | 2001 | 1979.8 |
| | AGR | ATTACHED GARAGE | 3 | 0 | 2001 | 506.0 |
| | OWC | OPEN WOOD PORCH W/STEPS/ROOF/C | 3 | 0 | 2001 | 110.0 |
Sketch
Property Image
Land
| 1 | 15 | SQ (12001-21780) | 0.0000 | 0.00 | 0.00 | 0.00 | 1.00 | $200,000 | $0 |
Roll Value History
| 2026 | N/A | N/A | N/A | N/A | N/A |
| 2025 | $371,027 | $200,000 | $0 | $571,027 | $571,027 |
| 2024 | $375,380 | $190,000 | $0 | $565,380 | $565,380 |
| 2023 | $371,027 | $180,000 | $0 | $551,027 | $551,027 |
| 2022 | $339,917 | $160,000 | $0 | $499,917 | $499,917 |
| 2021 | $298,998 | $130,000 | $0 | $428,998 | $428,998 |
| 2020 | $290,667 | $100,000 | $0 | $390,667 | $390,667 |
| 2019 | $217,290 | $150,000 | $0 | $367,290 | $367,290 |
| 2018 | $203,574 | $130,000 | $0 | $333,574 | $333,574 |
| 2017 | $203,172 | $120,000 | $0 | $323,172 | $323,172 |
| 2016 | $205,508 | $90,000 | $0 | $295,508 | $295,508 |
| 2015 | $207,844 | $70,000 | $0 | $277,844 | $277,844 |
| 2014 | $210,178 | $65,000 | $0 | $275,178 | $275,178 |
| 2013 | $212,514 | $65,000 | $0 | $277,514 | $277,514 |
| 2012 | $214,849 | $65,000 | $0 | $279,849 | $279,849 |
| 2011 | $222,566 | $45,000 | $0 | $267,566 | $267,566 |
| 2010 | $231,710 | $45,000 | $0 | $276,710 | $276,710 |
| 2009 | $241,467 | $75,000 | $0 | $316,467 | $316,467 |
| 2008 | $241,596 | $95,000 | $0 | $336,596 | $336,596 |
| 2007 | $244,269 | $95,000 | $0 | $339,269 | $339,269 |
Deed and Sales History
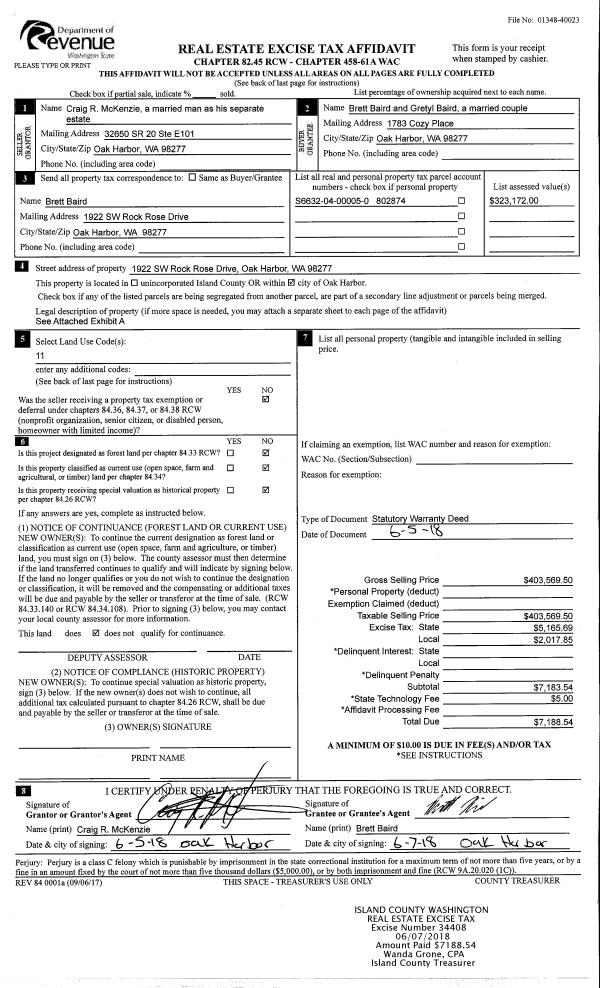
| 1 | 06/05/2018 | WD | Warranty Deed | MCKENZIE, CRAIG R | BAIRD, BRETT | | | $403,570.00 | 34408 | 4445701 |
| 2 | 09/11/2013 | ESTSEPPROP | Establish Separate Property | MCKENZIE, CRAIG R | MCKENZIE, CRAIG R | | | $0.00 | 12752 | 4347876 |
| 3 | 09/05/2013 | WD | Warranty Deed | FYE, CALVIN G | MCKENZIE, CRAIG R | | | $227,950.00 | 12751 | 4347874 |
| 4 | 11/05/2004 | WD | Warranty Deed | MITCHELL, STEVEN N | FYE, CALVIN G | | | $246,900.00 | 45329 | 4117943 |
| 5 | 10/12/2001 | WD | Warranty Deed | HOMESTEAD NW DEV CO, | MITCHELL, STEVEN N | | | $205,721.00 | 14014 | 4000265 |
| 6 | 03/29/2001 | WD | Warranty Deed | KRIEG, KARL C | HOMESTEAD NW DEV CO, | | | $46,000.00 | 11041 | 20028600 |
| 7 | 01/01/1900 | OTHER | Other - Misc. Documents | Unknown | KRIEG, KARL C | | | $0.00 | 0 | 0 |
Payout Agreement
| No payout information available.. |