Property
Account |
| Property ID: | 803070 | Abbreviated Legal Description: | S418.84' MEAS ALG ELN OF FOLL DESC TR: N15ACS OF PT OF NE SW LY ELY OF DEGRAFF RD EX E360' MEAS ALG NLN EX PT TO IS CO FOR RD AF#368597 |
| Geographic ID: | R13311-205-2090 | Agent Code: | |
| Type: | Real | | |
| Tax Area: | 112 - APPRAISER-OH Schl Dist, outside OH, improved, greater than 1 acre | Land Use Code | 11 |
| Open Space: | N | DFL | N |
| Historic Property: | N | Remodel Property: | N |
| Multi-Family Redevelopment: | N | | |
| Township: | 33 | Section: | 11 |
| Range: | R1 |
Location |
| Address: | 4168 DEGRAFF RD OAK HARBOR, WA 98277 | Mapsco: | |
| Neighborhood: | Cycle 6 | Map ID: | 200 |
| Neighborhood CD: | 6 |
Owner |
| Name: | ROSSI, JEFFREY | Owner ID: | 309887 |
| Mailing Address: | SAMANTHA ROSSI 4168 DEGRAFF RD OAK HARBOR, WA 98277 | % Ownership: | 100.0000000000% |
| | | Exemptions: | |
Taxes and Assessment Details
Values
| (+) Improvement Homesite Value: | + | $0 | |
| (+) Improvement Non-Homesite Value: | + | $157,707 | |
| (+) Land Homesite Value: | + | $0 | |
| (+) Land Non-Homesite Value: | + | $300,000 | |
| (+) Curr Use (HS): | + | $0 | $0 |
| (+) Curr Use (NHS): | + | $0 | $0 |
| | | -------------------------- | |
| (=) Market Value: | = | $457,707 | |
| (–) Productivity Loss: | – | $0 | |
| | | -------------------------- | |
| (=) Subtotal: | = | $457,707 | |
| (+) Senior Appraised Value: | + | $0 | |
| (+) Non-Senior Appraised Value: | + | $457,707 | |
| | | -------------------------- | |
| (=) Total Appraised Value: | = | $457,707 | |
| (–) Senior Exemption Loss: | – | $0 | |
| (–) Exemption Loss: | – | $0 | |
| | | -------------------------- | |
| (=) Taxable Value: | = | $457,707 | |
Taxing Jurisdiction
| Owner: | ROSSI, JEFFREY | | |
| % Ownership: | 100.0000000000% | | |
| Total Value: | $457,707 | | |
| Tax Area: | 112 - APPRAISER-OH Schl Dist, outside OH, improved, greater than 1 acre |
| CF | Conservation Futures | 0.0313996660 | $457,707 | $457,707 | $14.37 | | |
| CEM1 | Cemetery #1 | 0.0040018856 | $457,707 | $457,707 | $1.83 | | |
| FIRE2 | Fire & Rescue Dist #2 N Whidbey GEN | 0.5381486274 | $457,707 | $457,707 | $246.31 | | |
| HOBOND | Hospital BOND | 0.1893405597 | $457,707 | $457,707 | $86.66 | | |
| HOGEN | Hospital GEN | 0.3848777722 | $457,707 | $457,707 | $176.16 | | |
| CE | County Current Expense | 0.3674210519 | $457,707 | $457,707 | $168.17 | | |
| CR | County Roads | 0.4614296361 | $457,707 | $457,707 | $211.20 | | |
| ISLANDEMS | Hospital GEN (EMS) | 0.4952018576 | $457,707 | $457,707 | $226.66 | | |
| LIB | Library Sno-Isle GEN | 0.3039084203 | $457,707 | $457,707 | $139.10 | | |
| NWHIDPRMT | P & R N Whidbey GEN | 0.1990272349 | $457,707 | $457,707 | $91.10 | | |
| SCH201MO | School 201 Enrichment | 2.3851112745 | $457,707 | $457,707 | $1,091.68 | | |
| ST | State School | 1.4761226122 | $457,707 | $457,707 | $675.63 | | |
| ST2 | State School Part 2 | 0.7953803475 | $457,707 | $457,707 | $364.05 | | |
| | Total Tax Rate: | 7.6313709459 | | | | | |
| | | | | Taxes w/Current Exemptions: | $3,492.92 | | |
| | | | | Taxes w/o Exemptions: | $3,492.92 | | |
Improvement / Building
| Improvement #1: | MANUFACTURED HOME | State Code: | Y | 1836.0 sqft | Value: | $157,707 |
| Bathrooms: | 2 | Bedrooms: | 3 | | Ceiling: | PLASTER PAINTED | Cooling: | EVAP NO DUCT | | Exterior Wall/Cover: | VINYL | Floor Covering: | CARPET 100% | | Floor Structure: | SLAB ON GRADE | Foundation: | SLAB | | Heating: | FHA ELECTRIC | Interior Finish: | PLASTER | | Plumbing Fixture Cnt: | 9 | Roof Slope: | FLAT | | Roof Structure/Cover: | CJ ALUMINIUM HEAVY |   |   |
|
| | Type | Description | Class CD | Sub Class CD | Year Built | Area |
| | BAS | BASE/MAIN FLOOR | 4 | 0 | 2002 | 1836.0 |
| | DGR | DETACHED GARAGE | 4 | 0 | 2002 | 720.0 |
| | CPD | OPEN CARPORT DIRT FLOOR | 4 | 0 | 2002 | 240.0 |
| | OWP | OPEN WOOD PORCH W/STEPS | 4 | 0 | 2002 | 96.0 |
| | OWP | OPEN WOOD PORCH W/STEPS | 4 | 0 | 2002 | 110.0 |
Sketch
Property Image
Land
| 1 | 32 | AC (03.01-09.99) | 4.2200 | 0.00 | 0.00 | 0.00 | 1.00 | $300,000 | $0 |
Roll Value History
| 2026 | N/A | N/A | N/A | N/A | N/A |
| 2025 | $157,707 | $300,000 | $0 | $457,707 | $457,707 |
| 2024 | $159,897 | $280,000 | $0 | $439,897 | $439,897 |
| 2023 | $142,856 | $270,000 | $0 | $412,856 | $412,856 |
| 2022 | $117,412 | $240,000 | $0 | $357,412 | $357,412 |
| 2021 | $104,734 | $175,000 | $0 | $279,734 | $279,734 |
| 2020 | $104,268 | $150,000 | $0 | $254,268 | $254,268 |
| 2019 | $84,156 | $185,000 | $0 | $269,156 | $269,156 |
| 2018 | $86,183 | $170,000 | $0 | $256,183 | $256,183 |
| 2017 | $87,197 | $150,000 | $0 | $237,197 | $237,197 |
| 2016 | $82,235 | $140,000 | $0 | $222,235 | $222,235 |
| 2015 | $83,891 | $120,000 | $0 | $203,891 | $203,891 |
| 2014 | $85,548 | $100,000 | $0 | $185,548 | $185,548 |
| 2013 | $86,377 | $94,950 | $0 | $181,327 | $181,327 |
| 2012 | $87,206 | $94,950 | $0 | $182,156 | $182,156 |
| 2011 | $88,863 | $105,500 | $0 | $194,363 | $194,363 |
| 2010 | $93,542 | $105,500 | $0 | $199,042 | $199,042 |
| 2009 | $98,202 | $105,500 | $0 | $203,702 | $203,702 |
| 2008 | $100,989 | $124,490 | $0 | $225,479 | $225,479 |
| 2007 | $104,402 | $124,490 | $0 | $228,892 | $228,892 |
Deed and Sales History
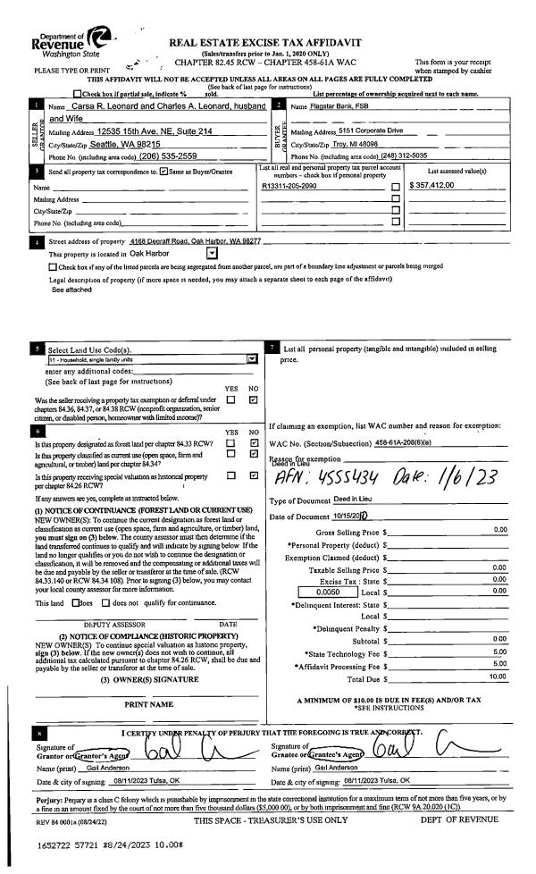
| 1 | 08/17/2023 | BARGSLD | Bargain And Sale Deed | LEONARD, CARISA R | FLAGSTAR BANK, FSB | | | $348,000.00 | 57835 | 4555434 |
| 2 | 10/15/2010 | DEEDINLIEU | Deed In Lieu Of Foreclosure | FLAGSTAR BANK, FSB | ROSSI, JEFFREY | | | $0.00 | 57721 | 4564188 |
| 3 | 06/01/2006 | WD | Warranty Deed | BAKER, TERRANCE N | LEONARD, CARISA R | | | $267,900.00 | 62522 | 4172713 |
| 4 | 09/27/2001 | BLA | DNU - Boundary Line Adjustment | Unknown | VAN GERPEN, KENNETH A | | | $0.00 | 69112 | 20023363 |
| 5 | 07/01/2001 | WD | Warranty Deed | VAN GERPEN, KENNETH A | BAKER, TERRANCE N | | | $34,500.00 | 12576 | 20036787 |
Payout Agreement
| No payout information available.. |