Property
Account |
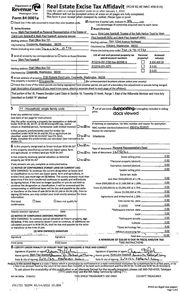
| Property ID: | 803090 | Abbreviated Legal Description: | IN POWERS DC: BG SWCR SD DLC ALSO SWCR SEC 19 N1*E ALG WLN SD DLC 1968.70' TO NWCR TR DESC 26D643 & CORRECTED AF#10774 S89*E ALG NLN SD TR 893.26' TO ELN OF W893' OF SD DLC N1*E ALG SD ELN 664.26' N1*E537.78' TO SLN TR DESC AF#10772 V11 SUR P109 S89*E AL |
| Geographic ID: | R13219-287-2780 | Agent Code: | |
| Type: | Real | | |
| Tax Area: | 412 - APPRAISER-Cpvl Schl Dist, outside Cpvl, improved, greater than 1 acre | Land Use Code | 11 |
| Open Space: | N | DFL | N |
| Historic Property: | N | Remodel Property: | N |
| Multi-Family Redevelopment: | N | | |
| Township: | 32 | Section: | 19 |
| Range: | R1 |
Location |
| Address: | 2190 ROBERTS POND LN COUPEVILLE, WA 98239 | Mapsco: | |
| Neighborhood: | Cycle 2 | Map ID: | 144 |
| Neighborhood CD: | 2 |
Owner |
| Name: | ILYANKOFF TTEE, KYRA LYNN | Owner ID: | 304480 |
| Mailing Address: | 2190 ROBERTS POND LN COUPEVILLE, WA 98239 | % Ownership: | 100.0000000000% |
| | | Exemptions: | |
Taxes and Assessment Details
Values
| (+) Improvement Homesite Value: | + | $0 | |
| (+) Improvement Non-Homesite Value: | + | $763,976 | |
| (+) Land Homesite Value: | + | $0 | |
| (+) Land Non-Homesite Value: | + | $355,000 | |
| (+) Curr Use (HS): | + | $0 | $0 |
| (+) Curr Use (NHS): | + | $0 | $0 |
| | | -------------------------- | |
| (=) Market Value: | = | $1,118,976 | |
| (–) Productivity Loss: | – | $0 | |
| | | -------------------------- | |
| (=) Subtotal: | = | $1,118,976 | |
| (+) Senior Appraised Value: | + | $0 | |
| (+) Non-Senior Appraised Value: | + | $1,118,976 | |
| | | -------------------------- | |
| (=) Total Appraised Value: | = | $1,118,976 | |
| (–) Senior Exemption Loss: | – | $0 | |
| (–) Exemption Loss: | – | $0 | |
| | | -------------------------- | |
| (=) Taxable Value: | = | $1,118,976 | |
Taxing Jurisdiction
| Owner: | ILYANKOFF TTEE, KYRA LYNN | | |
| % Ownership: | 100.0000000000% | | |
| Total Value: | $1,118,976 | | |
| Tax Area: | 412 - APPRAISER-Cpvl Schl Dist, outside Cpvl, improved, greater than 1 acre |
| CF | Conservation Futures | 0.0313996660 | $1,118,976 | $1,118,976 | $35.14 | | |
| CEM1 | Cemetery #1 | 0.0040018856 | $1,118,976 | $1,118,976 | $4.48 | | |
| FIRE2 | Fire & Rescue Dist #2 N Whidbey GEN | 0.5381486274 | $1,118,976 | $1,118,976 | $602.18 | | |
| HOBOND | Hospital BOND | 0.1893405597 | $1,118,976 | $1,118,976 | $211.87 | | |
| HOGEN | Hospital GEN | 0.3848777722 | $1,118,976 | $1,118,976 | $430.67 | | |
| CE | County Current Expense | 0.3674210519 | $1,118,976 | $1,118,976 | $411.14 | | |
| CR | County Roads | 0.4614296361 | $1,118,976 | $1,118,976 | $516.33 | | |
| ISLANDEMS | Hospital GEN (EMS) | 0.4952018576 | $1,118,976 | $1,118,976 | $554.12 | | |
| LIB | Library Sno-Isle GEN | 0.3039084203 | $1,118,976 | $1,118,976 | $340.07 | | |
| LIBCAP | Library Sno-Isle BOND (Cap Fac Imp Area) | 0.0528562629 | $1,118,976 | $1,118,976 | $59.14 | | |
| NWHIDPRMT | P & R N Whidbey GEN | 0.1990272349 | $1,118,976 | $1,118,976 | $222.71 | | |
| COUPSDTECH | School 204 CP (TECH) | 0.1215123397 | $1,118,976 | $1,118,976 | $135.97 | | |
| SCH204MO | School 204 Enrichment | 0.6416662518 | $1,118,976 | $1,118,976 | $718.01 | | |
| ST | State School | 1.4761226122 | $1,118,976 | $1,118,976 | $1,651.75 | | |
| ST2 | State School Part 2 | 0.7953803475 | $1,118,976 | $1,118,976 | $890.01 | | |
| | Total Tax Rate: | 6.0622945258 | | | | | |
| | | | | Taxes w/Current Exemptions: | $6,783.59 | | |
| | | | | Taxes w/o Exemptions: | $6,783.59 | | |
Improvement / Building
| Improvement #1: | RESIDENTIAL | State Code: | Y | 2521.3 sqft | Value: | $763,976 |
| Bathrooms: | 2.5 | Bedrooms: | 3 | | Ceiling: | DRYWALL PAINTED | Cooling: | HEAT PUMP/CONV/V | | Exterior Wall/Cover: | CEMENT FIBER | Floor Covering: | HARDWOOD/CARP 80-20 | | Floor Structure: | WOOD W/SUBFLOOR | Foundation: | CONCRETE | | Interior Finish: | DRYWALL PAINT | Plumbing Fixture Cnt: | 13 | | Roof Slope: | 10" IN 12" | Roof Structure/Cover: | CJ ASPHALT |
|
| | Type | Description | Class CD | Sub Class CD | Year Built | Area |
| | BAS | BASE/MAIN FLOOR | 4 | 0 | 2004 | 2521.3 |
| | OWC | OPEN WOOD PORCH W/STEPS/ROOF/C | 4 | 0 | 2004 | 497.4 |
| | ENP | ENCLOSED PORCH | 4 | 0 | 2004 | 329.8 |
| | OWP | OPEN WOOD PORCH W/STEPS | 4 | 0 | 2004 | 420.0 |
| | oEQU | EQUIP SHED | 4 | 0 | 2004 | 120.0 |
| | oUTI | UTILITY | 3 | 0 | 2004 | 120.0 |
| | oEQU | EQUIP SHED | 3 | 0 | 2004 | 120.0 |
| | oCAR | CARPORT | 4 | 0 | 2004 | 360.0 |
| | oEQU | EQUIP SHED | 4 | 0 | 2004 | 432.0 |
| | oBAR | BARN | 4 | 0 | 2004 | 1296.0 |
| | DGR | DETACHED GARAGE | 4 | 0 | 2004 | 840.0 |
| | OP4 | OPEN PORCH W/CEILING-ROOF | 4 | 0 | 2004 | 280.0 |
| | oLOF | STORAGE LOFT | 4 | 0 | 2004 | 420.0 |
| | OWR | OPEN WOOD PORCH W/STEPS/ROOF | 4 | 0 | 2004 | 160.0 |
Sketch
| No sketches available for this property. |
Property Image
Land
| 1 | 91 | UNDEVELOPED LAND-METES AND BOUNDS | 9.0000 | 392040.00 | 0.00 | 0.00 | 1.00 | $135,000 | $0 |
| 2 | HS | HOMESITE | 1.0000 | 43560.00 | 0.00 | 0.00 | 1.00 | $220,000 | $0 |
Roll Value History
| 2026 | N/A | N/A | N/A | N/A | N/A |
| 2025 | $763,976 | $355,000 | $0 | $1,118,976 | $1,118,976 |
| 2024 | $751,464 | $310,000 | $0 | $1,061,464 | $1,061,464 |
| 2023 | $751,356 | $290,000 | $0 | $1,041,356 | $1,041,356 |
| 2022 | $688,347 | $260,000 | $0 | $948,347 | $948,347 |
| 2021 | $605,485 | $225,000 | $0 | $830,485 | $830,485 |
| 2020 | $590,103 | $215,000 | $0 | $805,103 | $805,103 |
| 2019 | $445,256 | $250,000 | $0 | $695,256 | $695,256 |
| 2018 | $482,892 | $170,000 | $0 | $652,892 | $652,892 |
| 2017 | $485,380 | $170,000 | $0 | $655,380 | $655,380 |
| 2016 | $490,499 | $160,000 | $0 | $650,499 | $650,499 |
| 2015 | $377,198 | $150,000 | $0 | $527,198 | $527,198 |
| 2014 | $380,973 | $150,000 | $0 | $530,973 | $530,973 |
| 2013 | $384,746 | $135,000 | $0 | $519,746 | $519,746 |
| 2012 | $410,835 | $135,000 | $0 | $545,835 | $545,835 |
| 2011 | $414,465 | $150,000 | $0 | $564,465 | $564,465 |
| 2010 | $423,331 | $150,000 | $0 | $573,331 | $573,331 |
| 2009 | $444,388 | $218,877 | $0 | $663,265 | $663,265 |
| 2008 | $445,506 | $192,000 | $0 | $637,506 | $637,506 |
| 2007 | $451,418 | $192,000 | $0 | $643,418 | $643,418 |
Deed and Sales History
| 1 | 12/18/2021 | PRD | Personal Representatives Deed | ILYANKOFF, MARK P | ILYANKOFF TTEE, KYRA LYNN | | | $0.00 | 52294 | 4541458 |
| 2 | 06/07/2002 | WD | Warranty Deed | KAUFFMAN & ROBERTS ENTERPRISES | ILYANKOFF, MARK P | | | $134,038.00 | 22276 | 4022958 |
| 3 | 10/11/2001 | SEG | DNU - Segregation | Unknown | KAUFFMAN & ROBERTS ENTERPRISES | | | $0.00 | 69126 | 0 |
Payout Agreement
| No payout information available.. |