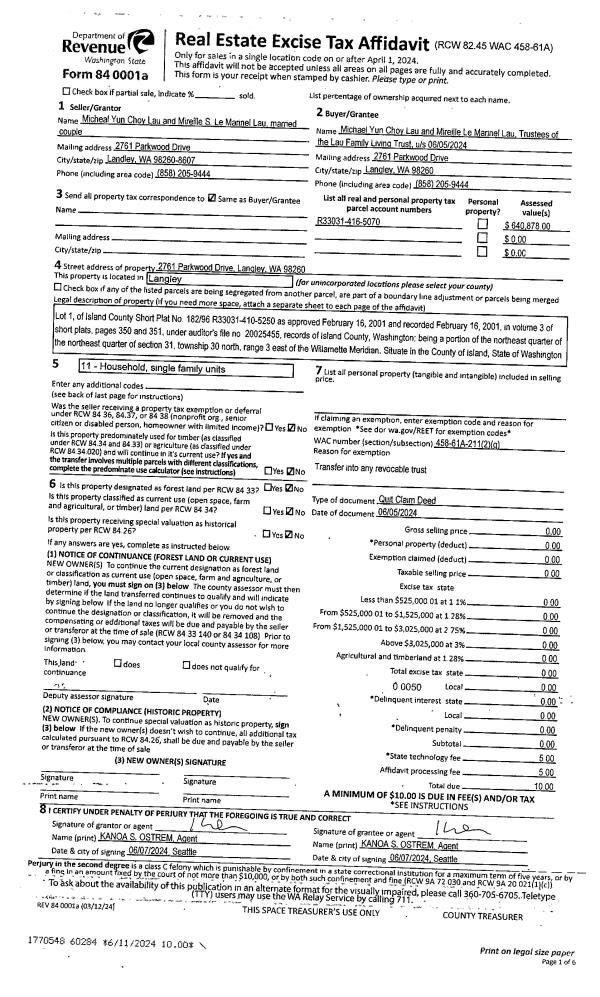
Property
Account |
| Property ID: | 803120 | Abbreviated Legal Description: | LOT 1 SP 182-96.33031.410-5250 V3 SP P350-1 AF#20025455 |
| Geographic ID: | R33031-416-5070 | Agent Code: | |
| Type: | Real | | |
| Tax Area: | 712 - APPRAISER-S Whid Schl Dist, outside Langley, improved, greater than 1 acre | Land Use Code | 11 |
| Open Space: | N | DFL | N |
| Historic Property: | N | Remodel Property: | N |
| Multi-Family Redevelopment: | N | | |
| Township: | 30 | Section: | 31 |
| Range: | R3 |
Location |
| Address: | 2761 PARKWOOD DR LANGLEY, WA 98260 | Mapsco: | |
| Neighborhood: | Cycle 4 | Map ID: | 903 |
| Neighborhood CD: | 4 |
Owner |
| Name: | LAU TTEE, MICHAEL YUN CHOY | Owner ID: | 312720 |
| Mailing Address: | MIREILLE LE MARINEL LAU TTEE 2761 PARKWOOD DR LANGLEY, WA 98260 | % Ownership: | 100.0000000000% |
| | | Exemptions: | |
Taxes and Assessment Details
Values
| (+) Improvement Homesite Value: | + | $0 | |
| (+) Improvement Non-Homesite Value: | + | $373,472 | |
| (+) Land Homesite Value: | + | $0 | |
| (+) Land Non-Homesite Value: | + | $290,000 | |
| (+) Curr Use (HS): | + | $0 | $0 |
| (+) Curr Use (NHS): | + | $0 | $0 |
| | | -------------------------- | |
| (=) Market Value: | = | $663,472 | |
| (–) Productivity Loss: | – | $0 | |
| | | -------------------------- | |
| (=) Subtotal: | = | $663,472 | |
| (+) Senior Appraised Value: | + | $0 | |
| (+) Non-Senior Appraised Value: | + | $663,472 | |
| | | -------------------------- | |
| (=) Total Appraised Value: | = | $663,472 | |
| (–) Senior Exemption Loss: | – | $0 | |
| (–) Exemption Loss: | – | $0 | |
| | | -------------------------- | |
| (=) Taxable Value: | = | $663,472 | |
Taxing Jurisdiction
| Owner: | LAU TTEE, MICHAEL YUN CHOY | | |
| % Ownership: | 100.0000000000% | | |
| Total Value: | $663,472 | | |
| Tax Area: | 712 - APPRAISER-S Whid Schl Dist, outside Langley, improved, greater than 1 acre |
| CF | Conservation Futures | 0.0313996660 | $663,472 | $663,472 | $20.83 | | |
| FIRE3 | Fire & Rescue Dist #3 S Whidbey GEN | 1.2130821753 | $663,472 | $663,472 | $804.85 | | |
| HOBOND | Hospital BOND | 0.1893405597 | $663,472 | $663,472 | $125.62 | | |
| HOGEN | Hospital GEN | 0.3848777722 | $663,472 | $663,472 | $255.36 | | |
| CE | County Current Expense | 0.3674210519 | $663,472 | $663,472 | $243.77 | | |
| CR | County Roads | 0.4614296361 | $663,472 | $663,472 | $306.15 | | |
| ISLANDEMS | Hospital GEN (EMS) | 0.4952018576 | $663,472 | $663,472 | $328.55 | | |
| LIB | Library Sno-Isle GEN | 0.3039084203 | $663,472 | $663,472 | $201.63 | | |
| PORTWHID | Port of S Whidbey GEN | 0.1086004714 | $663,472 | $663,472 | $72.05 | | |
| SCH206BOND | School 206 BOND | 0.5960237832 | $663,472 | $663,472 | $395.45 | | |
| SCH206CAP | School 206 CP | 0.3066144020 | $663,472 | $663,472 | $203.43 | | |
| SCH206MO | School 206 Enrichment | 0.4808755445 | $663,472 | $663,472 | $319.05 | | |
| ST | State School | 1.4761226122 | $663,472 | $663,472 | $979.37 | | |
| ST2 | State School Part 2 | 0.7953803475 | $663,472 | $663,472 | $527.71 | | |
| SWHIDPRBD | P & R S Whidbey BOND | 0.0144185398 | $663,472 | $663,472 | $9.57 | | |
| SWHIDPRBD3 | P & R S Whidbey BOND3 | 0.1483535547 | $663,472 | $663,472 | $98.43 | | |
| SWHIDPRMT | P & R S Whidbey GEN | 0.4600000000 | $663,472 | $663,472 | $305.20 | | |
| | Total Tax Rate: | 7.8330503944 | | | | | |
| | | | | Taxes w/Current Exemptions: | $5,197.02 | | |
| | | | | Taxes w/o Exemptions: | $5,197.02 | | |
Improvement / Building
| Improvement #1: | RESIDENTIAL | State Code: | Y | 1634.7 sqft | Value: | $373,472 |
| Bathrooms: | 2 | Bedrooms: | 3 | | Ceiling: | DRYWALL PAINTED | Exterior Wall/Cover: | CEMENT FIBER | | Floor Covering: | HARDWOOD/CARP 20-80 | Floor Structure: | WOOD W/SUBFLOOR | | Foundation: | CONCRETE | Heating: | FHA GAS | | Interior Finish: | DRYWALL PAINT | Plumbing Fixture Cnt: | 13 | | Roof Slope: | 6" IN 12" | Roof Structure/Cover: | CJ ASPHALT |
|
| | Type | Description | Class CD | Sub Class CD | Year Built | Area |
| | BAS | BASE/MAIN FLOOR | 3 | 0 | 2004 | 1634.7 |
| | OP4 | OPEN PORCH W/CEILING-ROOF | 3 | 0 | 2004 | 84.6 |
| | AGR | ATTACHED GARAGE | 3 | 0 | 2004 | 462.0 |
| | OWC | OPEN WOOD PORCH W/STEPS/ROOF/C | 3 | 0 | 2004 | 165.4 |
| | OWC | OPEN WOOD PORCH W/STEPS/ROOF/C | 3 | 0 | 2004 | 40.0 |
| | UTY | STORAGE/UTILITY | 3 | 0 | 2004 | 120.0 |
Sketch
Property Image
Land
| 1 | 17 | AC (01.01-02.00) | 1.5400 | 67082.40 | 0.00 | 0.00 | 1.00 | $290,000 | $0 |
Roll Value History
| 2026 | N/A | N/A | N/A | N/A | N/A |
| 2025 | $373,472 | $290,000 | $0 | $663,472 | $663,472 |
| 2024 | $377,704 | $280,000 | $0 | $657,704 | $657,704 |
| 2023 | $380,878 | $260,000 | $0 | $640,878 | $640,878 |
| 2022 | $347,944 | $250,000 | $0 | $597,944 | $597,944 |
| 2021 | $304,904 | $155,000 | $0 | $459,904 | $459,904 |
| 2020 | $271,822 | $165,000 | $0 | $436,822 | $436,822 |
| 2019 | $195,759 | $200,000 | $0 | $395,759 | $395,759 |
| 2018 | $196,320 | $170,000 | $0 | $366,320 | $366,320 |
| 2017 | $194,584 | $150,000 | $0 | $344,584 | $344,584 |
| 2016 | $196,846 | $115,000 | $0 | $311,846 | $311,846 |
| 2015 | $199,110 | $100,000 | $0 | $299,110 | $299,110 |
| 2014 | $205,089 | $85,000 | $0 | $290,089 | $290,089 |
| 2013 | $207,394 | $85,000 | $0 | $292,394 | $292,394 |
| 2012 | $209,698 | $97,750 | $0 | $307,448 | $307,448 |
| 2011 | $212,002 | $115,000 | $0 | $327,002 | $327,002 |
| 2010 | $219,166 | $115,000 | $0 | $334,166 | $334,166 |
| 2009 | $230,684 | $100,000 | $0 | $330,684 | $330,684 |
| 2008 | $230,132 | $150,000 | $0 | $380,132 | $380,132 |
| 2007 | $232,661 | $68,952 | $0 | $301,613 | $301,613 |
Deed and Sales History
| 1 | 06/05/2024 | QCD | Quit Claim Deed | LAU, MICHAEL YUN CHOY | LAU TTEE, MICHAEL YUN CHOY | | | $0.00 | 60284 | 4573337 |
| 2 | 10/20/2022 | WD | Warranty Deed | LOWEY, MELANIE | LAU, MICHAEL YUN CHOY | | | $675,000.00 | 55066 | 4553403 |
| 3 | 03/24/2017 | WD | Warranty Deed | SEVERSON, MARY LOUISE | LOWEY, MELANIE | | | $377,000.00 | 28725 | 4420093 |
| 4 | 07/20/2004 | WD | Warranty Deed | HOMES INC, WOODRIDGE | SEVERSON, MARY LOUISE | | | $60,000.00 | 43291 | 4107482 |
| 5 | 09/16/2003 | WD | Warranty Deed | STERN, DAVID & DARLENE | HOMES INC, WOODRIDGE | | | $38,000.00 | 34193 | 4075581 |
| 6 | 01/01/1900 | OTHER | Other - Misc. Documents | Unknown | STERN, DAVID & DARLENE | | | $0.00 | 0 | 0 |
Payout Agreement
| No payout information available.. |