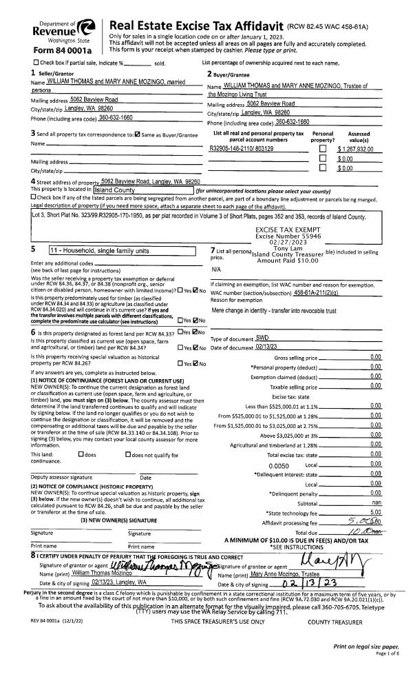
Property
Account |
| Property ID: | 803129 | Abbreviated Legal Description: | LOT 3 SP 323-99.32905.170-1950 V3 SP P352-3 AF#20025869 EX PT TO IS CO AF#4141947 |
| Geographic ID: | R32905-148-2110 | Agent Code: | |
| Type: | Real | | |
| Tax Area: | 712 - APPRAISER-S Whid Schl Dist, outside Langley, improved, greater than 1 acre | Land Use Code | 11 |
| Open Space: | N | DFL | N |
| Historic Property: | N | Remodel Property: | N |
| Multi-Family Redevelopment: | N | | |
| Township: | 29 | Section: | 05 |
| Range: | R3 |
Location |
| Address: | 5062 BAYVIEW RD LANGLEY, WA 98260 | Mapsco: | |
| Neighborhood: | Cycle 4 | Map ID: | 732 |
| Neighborhood CD: | 4 |
Owner |
| Name: | THOMAS TTEE, WILLIAM | Owner ID: | 307764 |
| Mailing Address: | MARY ANNE MOZINGO TTEE 5062 BAYVIEW RD LANGLEY, WA 98260 | % Ownership: | 100.0000000000% |
| | | Exemptions: | |
Taxes and Assessment Details
Values
| (+) Improvement Homesite Value: | + | $0 | |
| (+) Improvement Non-Homesite Value: | + | $922,866 | |
| (+) Land Homesite Value: | + | $0 | |
| (+) Land Non-Homesite Value: | + | $470,000 | |
| (+) Curr Use (HS): | + | $0 | $0 |
| (+) Curr Use (NHS): | + | $0 | $0 |
| | | -------------------------- | |
| (=) Market Value: | = | $1,392,866 | |
| (–) Productivity Loss: | – | $0 | |
| | | -------------------------- | |
| (=) Subtotal: | = | $1,392,866 | |
| (+) Senior Appraised Value: | + | $0 | |
| (+) Non-Senior Appraised Value: | + | $1,392,866 | |
| | | -------------------------- | |
| (=) Total Appraised Value: | = | $1,392,866 | |
| (–) Senior Exemption Loss: | – | $0 | |
| (–) Exemption Loss: | – | $0 | |
| | | -------------------------- | |
| (=) Taxable Value: | = | $1,392,866 | |
Taxing Jurisdiction
| Owner: | THOMAS TTEE, WILLIAM | | |
| % Ownership: | 100.0000000000% | | |
| Total Value: | $1,392,866 | | |
| Tax Area: | 712 - APPRAISER-S Whid Schl Dist, outside Langley, improved, greater than 1 acre |
| CF | Conservation Futures | 0.0313996660 | $1,392,866 | $1,392,866 | $43.74 | | |
| FIRE3 | Fire & Rescue Dist #3 S Whidbey GEN | 1.2130821753 | $1,392,866 | $1,392,866 | $1,689.66 | | |
| HOBOND | Hospital BOND | 0.1893405597 | $1,392,866 | $1,392,866 | $263.73 | | |
| HOGEN | Hospital GEN | 0.3848777722 | $1,392,866 | $1,392,866 | $536.08 | | |
| CE | County Current Expense | 0.3674210519 | $1,392,866 | $1,392,866 | $511.77 | | |
| CR | County Roads | 0.4614296361 | $1,392,866 | $1,392,866 | $642.71 | | |
| ISLANDEMS | Hospital GEN (EMS) | 0.4952018576 | $1,392,866 | $1,392,866 | $689.75 | | |
| LIB | Library Sno-Isle GEN | 0.3039084203 | $1,392,866 | $1,392,866 | $423.30 | | |
| PORTWHID | Port of S Whidbey GEN | 0.1086004714 | $1,392,866 | $1,392,866 | $151.27 | | |
| SCH206BOND | School 206 BOND | 0.5960237832 | $1,392,866 | $1,392,866 | $830.18 | | |
| SCH206CAP | School 206 CP | 0.3066144020 | $1,392,866 | $1,392,866 | $427.07 | | |
| SCH206MO | School 206 Enrichment | 0.4808755445 | $1,392,866 | $1,392,866 | $669.80 | | |
| ST | State School | 1.4761226122 | $1,392,866 | $1,392,866 | $2,056.04 | | |
| ST2 | State School Part 2 | 0.7953803475 | $1,392,866 | $1,392,866 | $1,107.86 | | |
| SWHIDPRBD | P & R S Whidbey BOND | 0.0144185398 | $1,392,866 | $1,392,866 | $20.08 | | |
| SWHIDPRBD3 | P & R S Whidbey BOND3 | 0.1483535547 | $1,392,866 | $1,392,866 | $206.64 | | |
| SWHIDPRMT | P & R S Whidbey GEN | 0.4600000000 | $1,392,866 | $1,392,866 | $640.72 | | |
| | Total Tax Rate: | 7.8330503944 | | | | | |
| | | | | Taxes w/Current Exemptions: | $10,910.40 | | |
| | | | | Taxes w/o Exemptions: | $10,910.40 | | |
Improvement / Building
| Improvement #1: | RESIDENTIAL | State Code: | Y | 4711.5 sqft | Value: | $922,866 |
| Bathrooms: | 4.5 | Bedrooms: | 4 | | Ceiling: | DRYWALL PAINTED | Exterior Wall/Cover: | CEMENT FIBER | | Floor Covering: | HARDWOOD/CARP 60-40 | Floor Structure: | WOOD W/SUBFLOOR | | Foundation: | CONCRETE | Heating: | B/B HOT WATER-OIL | | Interior Finish: | DRYWALL PAINT | Plumbing Fixture Cnt: | 25 | | Roof Slope: | 12" IN 12" | Roof Structure/Cover: | CJ ASPHALT |
|
| | Type | Description | Class CD | Sub Class CD | Year Built | Area |
| | BAS | BASE/MAIN FLOOR | 5 | 0 | 2003 | 2257.7 |
| | AGR | ATTACHED GARAGE | 5 | 0 | 2003 | 104.0 |
| | BIG | BUILT IN GARAGE | 5 | 0 | 2003 | 712.8 |
| | UPS | UPPER STORY | 5 | 0 | 2003 | 2453.8 |
| | OWC | OPEN WOOD PORCH W/STEPS/ROOF/C | 5 | 0 | 2003 | 179.4 |
| | OWC | OPEN WOOD PORCH W/STEPS/ROOF/C | 5 | 0 | 2003 | 550.8 |
| | UTY | STORAGE/UTILITY | 5 | 0 | 2003 | 112.0 |
| | oPOL | POLE BARN | 5 | 0 | 2003 | 1008.0 |
| | OWP | OPEN WOOD PORCH W/STEPS | 5 | 0 | 2003 | 36.0 |
Sketch
Property Image
Land
| 1 | 32 | AC (03.01-09.99) | 0.0000 | 0.00 | 88.72 | 0.00 | 1.00 | $470,000 | $0 |
Roll Value History
| 2026 | N/A | N/A | N/A | N/A | N/A |
| 2025 | $922,866 | $470,000 | $0 | $1,392,866 | $1,392,866 |
| 2024 | $933,534 | $450,000 | $0 | $1,383,534 | $1,383,534 |
| 2023 | $944,197 | $420,000 | $0 | $1,364,197 | $1,364,197 |
| 2022 | $867,932 | $400,000 | $0 | $1,267,932 | $1,267,932 |
| 2021 | $767,724 | $270,000 | $0 | $1,037,724 | $1,037,724 |
| 2020 | $744,902 | $250,000 | $0 | $994,902 | $994,902 |
| 2019 | $663,335 | $300,000 | $0 | $963,335 | $963,335 |
| 2018 | $665,135 | $300,000 | $0 | $965,135 | $965,135 |
| 2017 | $668,628 | $300,000 | $0 | $968,628 | $968,628 |
| 2016 | $675,827 | $300,000 | $0 | $975,827 | $975,827 |
| 2015 | $683,028 | $300,000 | $0 | $983,028 | $983,028 |
| 2014 | $703,604 | $350,000 | $0 | $1,053,604 | $1,053,604 |
| 2013 | $711,119 | $223,976 | $0 | $935,095 | $935,095 |
| 2012 | $718,635 | $223,976 | $0 | $942,611 | $942,611 |
| 2011 | $726,151 | $223,976 | $0 | $950,127 | $950,127 |
| 2010 | $714,726 | $223,976 | $0 | $938,702 | $938,702 |
| 2009 | $843,519 | $231,789 | $0 | $1,075,308 | $1,075,308 |
| 2008 | $834,646 | $231,789 | $0 | $1,066,435 | $1,066,435 |
| 2007 | $835,314 | $259,604 | $0 | $1,094,918 | $1,094,918 |
Deed and Sales History
| 1 | 02/13/2023 | WD | Warranty Deed | MOZINGO JTWROS, WILLIAM THOMAS | THOMAS TTEE, WILLIAM | | | $0.00 | 55946 | 4557109 |
| 2 | 10/25/2004 | QCD | Quit Claim Deed | MOZINGO, WILLIAM T | MOZINGO JTWRS, WILLIAM T & MAR | | | $9,200.00 | 80310 | 4141947 |
| 3 | 04/25/2001 | WD | Warranty Deed | MOZINGO, WILLIAM T | MOZINGO, WILLIAM T | | | $0.00 | 11674 | 20032302 |
| 4 | 04/25/2001 | WD | Warranty Deed | JOHNSON, FLORENCE M | MOZINGO, WILLIAM T | | | $180,000.00 | 11584 | 20031523 |
| 5 | 01/01/1900 | OTHER | Other - Misc. Documents | Unknown | JOHNSON, FLORENCE M | | | $0.00 | 0 | 0 |
Payout Agreement
| No payout information available.. |