Property
Account |
| Property ID: | 803136 | Abbreviated Legal Description: | W/2 OF E/2 SW SE DESC: BG NWCR W/2 E/2 SW SE S ALG WLN 300' E143' N300' W ALG NLN E/2 SW SE TPB EX PT LY S OF RD SUB EZ SUB TO 1/2 INT IN WELL EX RD TGW PT 1 AC SQ IN NECR OF W/2 SW SE DESC: BG NECR OF ABOVE DESC TR S ALG ELN SD TR 144' NWLY TP ON NL |
| Geographic ID: | R32803-129-3370 | Agent Code: | |
| Type: | Real | | |
| Tax Area: | 710 - APPRAISER-S Whid Schl Dist, outside Langley, improved & 1 acre or less | Land Use Code | 11 |
| Open Space: | N | DFL | N |
| Historic Property: | N | Remodel Property: | N |
| Multi-Family Redevelopment: | N | | |
| Township: | 28 | Section: | 03 |
| Range: | R3 |
Location |
| Address: | 7701 BAILEY RD CLINTON, WA 98236 | Mapsco: | |
| Neighborhood: | Cycle 4 | Map ID: | 684 |
| Neighborhood CD: | 4 |
Owner |
| Name: | KEATING, LINDSAY LOW | Owner ID: | 310858 |
| Mailing Address: | 7701 BAILEY RD CLINTON, WA 98236 | % Ownership: | 100.0000000000% |
| | | Exemptions: | |
Taxes and Assessment Details
Values
| (+) Improvement Homesite Value: | + | $0 | |
| (+) Improvement Non-Homesite Value: | + | $12,875 | |
| (+) Land Homesite Value: | + | $0 | |
| (+) Land Non-Homesite Value: | + | $250,000 | |
| (+) Curr Use (HS): | + | $0 | $0 |
| (+) Curr Use (NHS): | + | $0 | $0 |
| | | -------------------------- | |
| (=) Market Value: | = | $262,875 | |
| (–) Productivity Loss: | – | $0 | |
| | | -------------------------- | |
| (=) Subtotal: | = | $262,875 | |
| (+) Senior Appraised Value: | + | $0 | |
| (+) Non-Senior Appraised Value: | + | $262,875 | |
| | | -------------------------- | |
| (=) Total Appraised Value: | = | $262,875 | |
| (–) Senior Exemption Loss: | – | $0 | |
| (–) Exemption Loss: | – | $0 | |
| | | -------------------------- | |
| (=) Taxable Value: | = | $262,875 | |
Taxing Jurisdiction
| Owner: | KEATING, LINDSAY LOW | | |
| % Ownership: | 100.0000000000% | | |
| Total Value: | $262,875 | | |
| Tax Area: | 710 - APPRAISER-S Whid Schl Dist, outside Langley, improved & 1 acre or less |
| CF | Conservation Futures | 0.0313996660 | $262,875 | $262,875 | $8.25 | | |
| FIRE3 | Fire & Rescue Dist #3 S Whidbey GEN | 1.2130821753 | $262,875 | $262,875 | $318.89 | | |
| HOBOND | Hospital BOND | 0.1893405597 | $262,875 | $262,875 | $49.77 | | |
| HOGEN | Hospital GEN | 0.3848777722 | $262,875 | $262,875 | $101.17 | | |
| CE | County Current Expense | 0.3674210519 | $262,875 | $262,875 | $96.59 | | |
| CR | County Roads | 0.4614296361 | $262,875 | $262,875 | $121.30 | | |
| ISLANDEMS | Hospital GEN (EMS) | 0.4952018576 | $262,875 | $262,875 | $130.18 | | |
| LIB | Library Sno-Isle GEN | 0.3039084203 | $262,875 | $262,875 | $79.89 | | |
| PORTWHID | Port of S Whidbey GEN | 0.1086004714 | $262,875 | $262,875 | $28.55 | | |
| SCH206BOND | School 206 BOND | 0.5960237832 | $262,875 | $262,875 | $156.68 | | |
| SCH206CAP | School 206 CP | 0.3066144020 | $262,875 | $262,875 | $80.60 | | |
| SCH206MO | School 206 Enrichment | 0.4808755445 | $262,875 | $262,875 | $126.41 | | |
| ST | State School | 1.4761226122 | $262,875 | $262,875 | $388.04 | | |
| ST2 | State School Part 2 | 0.7953803475 | $262,875 | $262,875 | $209.09 | | |
| SWHIDPRBD | P & R S Whidbey BOND | 0.0144185398 | $262,875 | $262,875 | $3.79 | | |
| SWHIDPRBD3 | P & R S Whidbey BOND3 | 0.1483535547 | $262,875 | $262,875 | $39.00 | | |
| SWHIDPRMT | P & R S Whidbey GEN | 0.4600000000 | $262,875 | $262,875 | $120.92 | | |
| | Total Tax Rate: | 7.8330503944 | | | | | |
| | | | | Taxes w/Current Exemptions: | $2,059.12 | | |
| | | | | Taxes w/o Exemptions: | $2,059.12 | | |
Improvement / Building
| Improvement #1: | MANUFACTURED HOME | State Code: | Y | 320.0 sqft | Value: | $12,875 |
| Bathrooms: | 0 | Bedrooms: | 0 | | Ceiling: | PLASTER PAINTED | Cooling: | EVAP NO DUCT | | Exterior Wall/Cover: | VINYL | Floor Covering: | CARPET 100% | | Floor Structure: | SLAB ON GRADE | Foundation: | SLAB | | Heating: | FHA ELECTRIC | Interior Finish: | PLASTER | | Plumbing Fixture Cnt: | 1 | Roof Slope: | FLAT | | Roof Structure/Cover: | CJ ALUMINIUM HEAVY |   |   |
|
| | Type | Description | Class CD | Sub Class CD | Year Built | Area |
| | BAS | BASE/MAIN FLOOR | 2 | 0 | 1957 | 320.0 |
| | OWP | OPEN WOOD PORCH W/STEPS | 2 | 0 | 1957 | 140.0 |
| | UTY | STORAGE/UTILITY | 2 | 0 | 1957 | 120.0 |
Sketch
Property Image
Land
| 1 | 15 | SQ (12001-21780) | 0.0000 | 0.00 | 0.00 | 0.00 | 1.00 | $250,000 | $0 |
Roll Value History
| 2026 | N/A | N/A | N/A | N/A | N/A |
| 2025 | $12,875 | $250,000 | $0 | $262,875 | $262,875 |
| 2024 | $13,279 | $230,000 | $0 | $243,279 | $243,279 |
| 2023 | $11,896 | $230,000 | $0 | $241,896 | $241,896 |
| 2022 | $11,090 | $210,000 | $0 | $221,090 | $221,090 |
| 2021 | $9,919 | $150,000 | $0 | $159,919 | $159,919 |
| 2020 | $4,001 | $60,000 | $0 | $64,001 | $64,001 |
| 2019 | $4,001 | $70,000 | $0 | $74,001 | $74,001 |
| 2018 | $4,001 | $70,000 | $0 | $74,001 | $74,001 |
| 2017 | $4,001 | $100,000 | $0 | $104,001 | $104,001 |
| 2016 | $4,001 | $100,000 | $0 | $104,001 | $104,001 |
| 2015 | $4,001 | $100,000 | $0 | $104,001 | $104,001 |
| 2014 | $5,753 | $80,750 | $0 | $86,503 | $86,503 |
| 2013 | $5,753 | $80,750 | $0 | $86,503 | $86,503 |
| 2012 | $5,753 | $80,750 | $0 | $86,503 | $86,503 |
| 2011 | $5,753 | $95,000 | $0 | $100,753 | $100,753 |
| 2010 | $7,090 | $95,000 | $0 | $102,090 | $102,090 |
| 2009 | $6,249 | $100,000 | $0 | $106,249 | $106,249 |
| 2008 | $6,249 | $80,000 | $0 | $86,249 | $86,249 |
| 2007 | $6,249 | $80,000 | $0 | $86,249 | $86,249 |
Deed and Sales History
| 1 | 12/04/2023 | MANHOME | Manufactured Home | NEEDHAM, SANDRA ELLEN | KEATING, LINDSAY LOW | | | $0.00 | 58718 | |
| 2 | 12/04/2023 | QCD | Quit Claim Deed | NEEDHAM, SANDRA ELLEN | KEATING, LINDSAY LOW | | | $0.00 | 58717 | 4567471 |
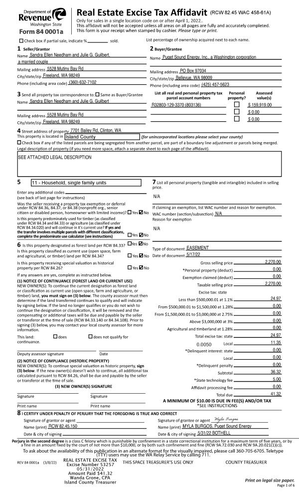
| 3 | 05/17/2022 | EZ | Easement | NEEDHAM, SANDRA ELLEN | PUGET SOUND ENERGY | | | $2,270.00 | 53257 | 4545866 |
| 4 | 05/08/2018 | EZ | Easement | NEEDHAM, SANDRA ELLEN | NEEDHAM, SANDRA ELLEN | | | $2,500.00 | 34027 | 4444074 |
| 5 | 05/08/2018 | WD | Warranty Deed | LYON, PAMELA MARIE | NEEDHAM, SANDRA ELLEN | | | $69,499.00 | 34029 | 4444075 |
|   | |
| 6 | 02/05/2018 | OTHER | Other - Misc. Documents | LYON, PAMELA MARIE | LYON, PAMELA MARIE | | | $0.00 | 32928 | 4439111 |
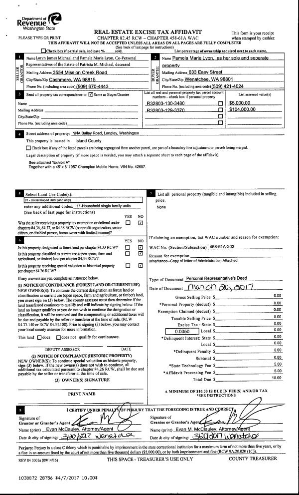
| 7 | 03/20/2017 | PRD | Personal Representatives Deed | MICHAEL, PATRICIA M | LYON, PAMELA MARIE | | | $0.00 | 28756 | 4420255 |
| 8 | 07/11/2013 | DECREE | Divorce Decree/Legal Separation | MICHAEL, JOHN O / PATRICIA | MICHAEL, PATRICIA M | | | $0.00 | 12099 | 4344633 |
| 9 | 11/09/2001 | BLA | DNU - Boundary Line Adjustment | Unknown | MICHAEL, JOHN O/PATRICIA | | | $0.00 | 69207 | 20029248 |
| 10 | 03/05/2001 | QCD | Quit Claim Deed | MICHAEL, JOHN O/PATRICIA | MICHAEL, JOHN O/PATRICIA | | | $0.00 | 25236 | 4042344 |
| 11 | 03/05/2001 | QCD | Quit Claim Deed | MICHAEL, JOHN O/PATRICIA | MICHAEL, JOHN O/PATRICIA | | | $1,500.00 | 10777 | 20027152 |
Payout Agreement
| No payout information available.. |