Property
Account |
| Property ID: | 803179 | Abbreviated Legal Description: | MT VW BCH 2 LOTS 169, 170 & 171 TGW E/2 ADJ VAC BROADMOOR DR AF#325947 |
| Geographic ID: | S7525-02-00169-0 | Agent Code: | |
| Type: | Real | | |
| Tax Area: | 540 - APPRAISER-Stan/Cam Schl Dist, Special Dist, improved & less than 1 acre | Land Use Code | 11 |
| Open Space: | N | DFL | N |
| Historic Property: | N | Remodel Property: | N |
| Multi-Family Redevelopment: | N | | |
| Township: | | Section: | |
| Range: | |
Location |
| Address: | 2222 HIGHLAND DR CAMANO ISLAND, WA 98282 | Mapsco: | |
| Neighborhood: | Cycle 5 | Map ID: | 945 |
| Neighborhood CD: | 5 |
Owner |
| Name: | COSGROVE, TRACEY A | Owner ID: | 299420 |
| Mailing Address: | PATRICK D ROACH 2222 HIGHLAND DR CAMANO ISLAND, WA 98282 | % Ownership: | 100.0000000000% |
| | | Exemptions: | |
Taxes and Assessment Details
Values
| (+) Improvement Homesite Value: | + | N/A | |
| (+) Improvement Non-Homesite Value: | + | N/A | |
| (+) Land Homesite Value: | + | N/A | |
| (+) Land Non-Homesite Value: | + | N/A | Ag / Timber Use Value |
| (+) Curr Use (HS): | + | N/A | N/A |
| (+) Curr Use (NHS): | + | N/A | N/A |
| | | -------------------------- | |
| (=) Market Value: | = | N/A | |
| (–) Productivity Loss: | – | N/A | |
| | | -------------------------- | |
| (=) Subtotal: | = | N/A | |
| (+) Senior Appraised Value: | + | N/A | |
| (+) Non-Senior Appraised Value: | + | N/A | |
| | | -------------------------- | |
| (=) Total Appraised Value: | = | N/A | |
| (–) Senior Exemption Loss: | – | N/A | |
| (–) Exemption Loss: | – | N/A | |
| | | -------------------------- | |
| (=) Taxable Value: | = | N/A | |
Taxing Jurisdiction
| Owner: | COSGROVE, TRACEY A | | |
| % Ownership: | 100.0000000000% | | |
| Total Value: | N/A | | |
| Tax Area: | 540 - APPRAISER-Stan/Cam Schl Dist, Special Dist, improved & less than 1 acre |
| CF | Conservation Futures | N/A | N/A | N/A | N/A | | |
| CCD | Camano Conservation District | N/A | N/A | N/A | N/A | | |
| EMS1 | Fire & Rescue Dist #1 Camano GEN (EMS) | N/A | N/A | N/A | N/A | | |
| FIRE1 | Fire & Rescue Dist #1 Camano GEN | N/A | N/A | N/A | N/A | | |
| FIRE1BOND | Fire & Rescue Dist #1 Camano BOND | N/A | N/A | N/A | N/A | | |
| CE | County Current Expense | N/A | N/A | N/A | N/A | | |
| CR | County Roads | N/A | N/A | N/A | N/A | | |
| LCIB | Library Sno-Isle BOND (Camano Island) | N/A | N/A | N/A | N/A | | |
| LIB | Library Sno-Isle GEN | N/A | N/A | N/A | N/A | | |
| SCH205_401 | School 205-401 Enrichment | N/A | N/A | N/A | N/A | | |
| SCH205BOND | School 205-401 BOND | N/A | N/A | N/A | N/A | | |
| ST | State School | N/A | N/A | N/A | N/A | | |
| ST2 | State School Part 2 | N/A | N/A | N/A | N/A | | |
| PTMBNAREG | Port of Mabana Regular Levy | N/A | N/A | N/A | N/A | | |
| | Total Tax Rate: | N/A | | | | | |
| | | | | Taxes w/Current Exemptions: | N/A | | |
| | | | | Taxes w/o Exemptions: | N/A | | |
Improvement / Building
| Improvement #1: | RESIDENTIAL | State Code: | Y | 1575.0 sqft | Value: | N/A |
| Bathrooms: | 2 | Bedrooms: | 3 | | Ceiling: | DRY WALL SPRAYED | Exterior Wall/Cover: | CEMENT FIBER | | Floor Covering: | SOFTWOOD/VINYL 80-20 | Floor Structure: | WOOD W/SUBFLOOR | | Foundation: | CONCRETE | Heating: | FHA GAS | | Interior Finish: | DRYWALL PAINT | Plumbing Fixture Cnt: | 10 | | Roof Slope: | 4" IN 12" | Roof Structure/Cover: | CJ ASPHALT |
|
| | Type | Description | Class CD | Sub Class CD | Year Built | Area |
| | BAS | BASE/MAIN FLOOR | 3 | 0 | 2002 | 1575.0 |
| | OP4 | OPEN PORCH W/CEILING-ROOF | 3 | 0 | 2002 | 105.0 |
| | AGR | ATTACHED GARAGE | 3 | 0 | 2002 | 480.0 |
| | OWP | OPEN WOOD PORCH W/STEPS | 3 | 0 | 2002 | 300.0 |
| | UTY | STORAGE/UTILITY | 3 | 0 | 2002 | 100.0 |
| | OCP | OPEN CARPORT | 3 | 0 | 2002 | 168.0 |
Sketch
Property Image
Land
| 1 | 15 | SQ (12001-21780) | 0.0000 | 0.00 | 0.00 | 0.00 | 1.00 | N/A | N/A |
Roll Value History
| 2026 | N/A | N/A | N/A | N/A | N/A |
| 2025 | $323,752 | $210,000 | $0 | $533,752 | $533,752 |
| 2024 | $327,551 | $200,000 | $0 | $527,551 | $527,551 |
| 2023 | $331,348 | $200,000 | $0 | $531,348 | $531,348 |
| 2022 | $303,493 | $200,000 | $0 | $503,493 | $503,493 |
| 2021 | $246,822 | $140,000 | $0 | $386,822 | $386,822 |
| 2020 | $239,535 | $120,000 | $0 | $359,535 | $359,535 |
| 2019 | $174,743 | $160,000 | $0 | $334,743 | $334,743 |
| 2018 | $175,222 | $120,000 | $0 | $295,222 | $295,222 |
| 2017 | $176,179 | $75,000 | $0 | $251,179 | $251,179 |
| 2016 | $167,861 | $65,000 | $0 | $232,861 | $232,861 |
| 2015 | $166,343 | $61,752 | $0 | $228,095 | $228,095 |
| 2014 | $168,209 | $61,752 | $0 | $229,961 | $229,961 |
| 2013 | $170,076 | $61,752 | $0 | $231,828 | $231,828 |
| 2012 | $171,942 | $61,752 | $0 | $233,694 | $233,694 |
| 2011 | $173,809 | $77,190 | $0 | $250,999 | $250,999 |
| 2010 | $182,420 | $77,190 | $0 | $259,610 | $259,610 |
| 2009 | $184,440 | $90,000 | $0 | $274,440 | $274,440 |
| 2008 | $186,570 | $125,000 | $0 | $311,570 | $311,570 |
| 2007 | $190,577 | $90,000 | $0 | $280,577 | $280,577 |
Deed and Sales History
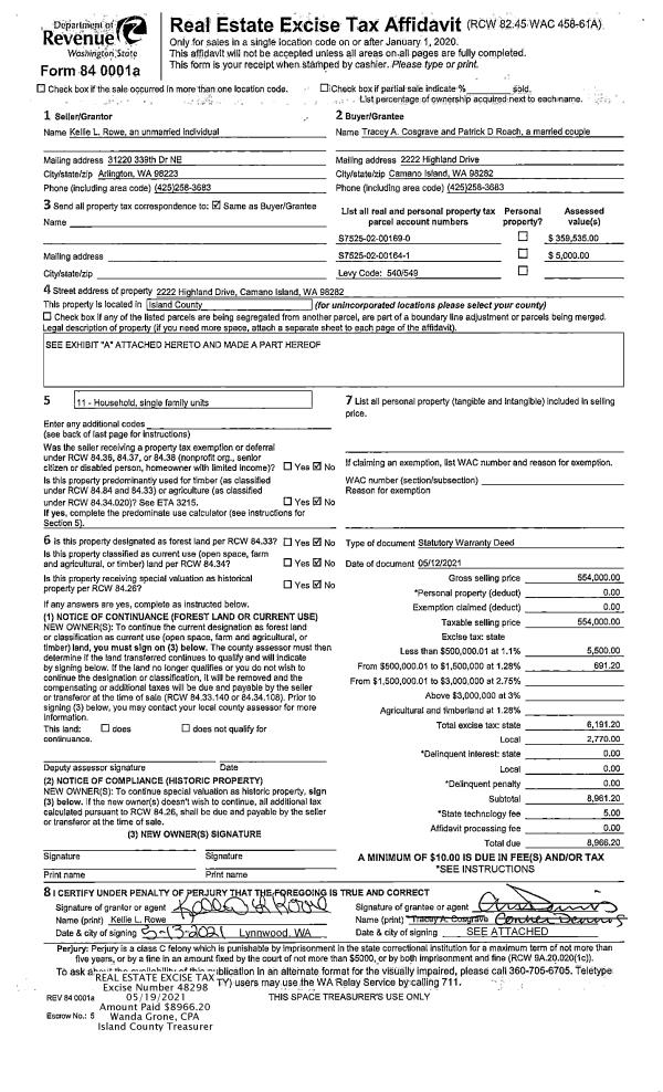
| 1 | 05/12/2021 | WD | Warranty Deed | ROWE, KELLIE L | COSGROVE, TRACEY A | | | $554,000.00 | 48298 | 4519647 |
|   | |
| 2 | 12/21/2016 | ESTSEPPROP | Establish Separate Property | ROWE, KELLIE L | ROWE, KELLIE L | | | $0.00 | 27464 | 4413867 |
| 3 | 12/09/2016 | WD | Warranty Deed | BOWSER, WADE A | ROWE, KELLIE L | | | $290,500.00 | 27463 | 4413866 |
|   | |
| 4 | 02/20/2002 | WD | Warranty Deed | COYLE, THOMAS B | BOWSER, WADE A | | | $173,000.00 | 20761 | 4012651 |
| 5 | 12/18/2001 | BLA | DNU - Boundary Line Adjustment | COYLE, THOMAS B | COYLE, THOMAS B | | | $0.00 | 69268 | 20033954 |
Payout Agreement
| No payout information available.. |