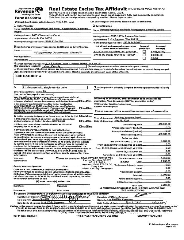
Property
Account |
| Property ID: | 803188 | Abbreviated Legal Description: | IN SE SE DESC: BG WLN N678.2' FR SWCR SD SUBD N89*E600' S200' N89*E105' N200' N89*E TO ELN SD SE SE N ALG SD ELN TO NECR W ALG NLN SD SUBD TO NWCR S ALG WLN SD SUBD TPB EX NLY 334' |
| Geographic ID: | R23227-084-4630 | Agent Code: | |
| Type: | Real | | |
| Tax Area: | 512 - APPRAISER-Stan/Cam Schl Dist, improved, greater than 1 acre | Land Use Code | 11 |
| Open Space: | N | DFL | N |
| Historic Property: | N | Remodel Property: | N |
| Multi-Family Redevelopment: | N | | |
| Township: | 32 | Section: | 27 |
| Range: | R2 |
Location |
| Address: | 472 S SUNSET DR CAMANO ISLAND, WA 98282 | Mapsco: | |
| Neighborhood: | North Camano | Map ID: | 570 |
| Neighborhood CD: | 06-C |
Owner |
| Name: | VVSOTSKY, REUBEN | Owner ID: | 312395 |
| Mailing Address: | MARIA ANDREVANOVA 5903 147TH AVE NORTHEAST LAKE STEVENS, WA 98258 | % Ownership: | 100.0000000000% |
| | | Exemptions: | |
Taxes and Assessment Details
Values
| (+) Improvement Homesite Value: | + | $0 | |
| (+) Improvement Non-Homesite Value: | + | $65,453 | |
| (+) Land Homesite Value: | + | $0 | |
| (+) Land Non-Homesite Value: | + | $380,000 | |
| (+) Curr Use (HS): | + | $0 | $0 |
| (+) Curr Use (NHS): | + | $0 | $0 |
| | | -------------------------- | |
| (=) Market Value: | = | $445,453 | |
| (–) Productivity Loss: | – | $0 | |
| | | -------------------------- | |
| (=) Subtotal: | = | $445,453 | |
| (+) Senior Appraised Value: | + | $0 | |
| (+) Non-Senior Appraised Value: | + | $445,453 | |
| | | -------------------------- | |
| (=) Total Appraised Value: | = | $445,453 | |
| (–) Senior Exemption Loss: | – | $0 | |
| (–) Exemption Loss: | – | $0 | |
| | | -------------------------- | |
| (=) Taxable Value: | = | $445,453 | |
Taxing Jurisdiction
| Owner: | VVSOTSKY, REUBEN | | |
| % Ownership: | 100.0000000000% | | |
| Total Value: | $445,453 | | |
| Tax Area: | 512 - APPRAISER-Stan/Cam Schl Dist, improved, greater than 1 acre |
| CF | Conservation Futures | 0.0313996660 | $445,453 | $445,453 | $13.99 | | |
| EMS1 | Fire & Rescue Dist #1 Camano GEN (EMS) | 0.4998471806 | $445,453 | $445,453 | $222.66 | | |
| FIRE1 | Fire & Rescue Dist #1 Camano GEN | 1.2496603404 | $445,453 | $445,453 | $556.66 | | |
| FIRE1BOND | Fire & Rescue Dist #1 Camano BOND | 0.1630371212 | $445,453 | $445,453 | $72.63 | | |
| CE | County Current Expense | 0.3674210519 | $445,453 | $445,453 | $163.67 | | |
| CR | County Roads | 0.4614296361 | $445,453 | $445,453 | $205.55 | | |
| LIB | Library Sno-Isle GEN | 0.3039084203 | $445,453 | $445,453 | $135.38 | | |
| SCH205_401 | School 205-401 Enrichment | 1.3697998934 | $445,453 | $445,453 | $610.18 | | |
| SCH205BOND | School 205-401 BOND | 0.9354199323 | $445,453 | $445,453 | $416.69 | | |
| ST | State School | 1.4761226122 | $445,453 | $445,453 | $657.54 | | |
| ST2 | State School Part 2 | 0.7953803475 | $445,453 | $445,453 | $354.30 | | |
| | Total Tax Rate: | 7.6534262019 | | | | | |
| | | | | Taxes w/Current Exemptions: | $3,409.25 | | |
| | | | | Taxes w/o Exemptions: | $3,409.25 | | |
Improvement / Building
| Improvement #1: | RESIDENTIAL | State Code: | Y | 1152.0 sqft | Value: | $65,453 |
| Bathrooms: | 1 | Bedrooms: | 2 | | Ceiling: | PLYWOOD PAINTED | Exterior Wall/Cover: | WOOD SIDING | | Floor Covering: | CARPET 100% | Floor Structure: | WOOD W/SUBFLOOR | | Foundation: | CONCRETE | Heating: | FHA OIL | | Interior Finish: | DRYWALL PAINT | Plumbing Fixture Cnt: | 6 | | Roof Slope: | 4" IN 12" | Roof Structure/Cover: | CJ ASPHALT |
|
| | Type | Description | Class CD | Sub Class CD | Year Built | Area |
| | BAS | BASE/MAIN FLOOR | 1 | 0 | 1935 | 1152.0 |
| | UB6 | BASEMENT UNFINISHED 6" | 1 | 0 | 1935 | 432.0 |
| | OP1 | OPEN PORCH SLAB | 1 | 0 | 1935 | 80.0 |
| | OP3 | OPEN PORCH W/ROOF | 1 | 0 | 1935 | 54.0 |
| | OP3 | OPEN PORCH W/ROOF | 1 | 0 | 1935 | 40.0 |
| | oOBD | Out Buildings | 1 | 0 | 1935 | 0.0 |
Sketch
Property Image
Land
| 1 | 35 | AC (10.00-30.99) | 10.0800 | 439084.80 | 0.00 | 0.00 | 1.00 | $380,000 | $0 |
Roll Value History
| 2026 | N/A | N/A | N/A | N/A | N/A |
| 2025 | $65,453 | $380,000 | $0 | $445,453 | $445,453 |
| 2024 | $67,081 | $360,000 | $0 | $427,081 | $427,081 |
| 2023 | $68,707 | $340,000 | $0 | $408,707 | $408,707 |
| 2022 | $63,684 | $290,000 | $0 | $353,684 | $353,684 |
| 2021 | $56,660 | $210,000 | $0 | $266,660 | $266,660 |
| 2020 | $55,961 | $200,000 | $0 | $255,961 | $255,961 |
| 2019 | $41,020 | $250,000 | $0 | $291,020 | $291,020 |
| 2018 | $41,244 | $175,000 | $0 | $216,244 | $216,244 |
| 2017 | $41,687 | $160,000 | $0 | $201,687 | $201,687 |
| 2016 | $28,932 | $160,000 | $0 | $188,932 | $188,932 |
| 2015 | $28,932 | $129,024 | $0 | $157,956 | $157,956 |
| 2014 | $28,932 | $129,024 | $0 | $157,956 | $157,956 |
| 2013 | $28,932 | $129,024 | $0 | $157,956 | $157,956 |
| 2012 | $28,932 | $129,024 | $0 | $157,956 | $157,956 |
| 2011 | $28,932 | $161,280 | $0 | $190,212 | $190,212 |
| 2010 | $29,939 | $161,280 | $0 | $191,219 | $191,219 |
| 2009 | $30,862 | $221,760 | $0 | $252,622 | $252,622 |
| 2008 | $31,854 | $221,760 | $0 | $253,614 | $253,614 |
| 2007 | $32,846 | $221,760 | $0 | $254,606 | $254,606 |
Deed and Sales History
| 1 | 05/15/2024 | WD | Warranty Deed | KATZENBERGER, STEPHEN H | VVSOTSKY, REUBEN | | | $450,000.00 | 59970 | 4572400 |
|   | |
| 2 | 12/31/2001 | SEG | DNU - Segregation | Unknown | KATZENBERGER, GEORGE H | | | $0.00 | 69275 | 0 |
| 3 | 04/02/2001 | QCD | Quit Claim Deed | KATZENBERGER, GEORGE H | KATZENBERGER, STEPHEN H | | | $0.00 | 11699 | 20032519 |
Payout Agreement
| No payout information available.. |