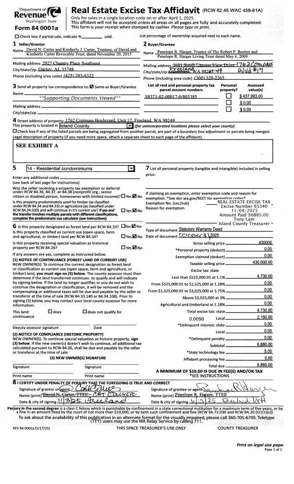
Property
Account |
| Property ID: | 803385 | Abbreviated Legal Description: | VILLAGE AT MAPLE RIDGE - CONDO PHASE 2 UNIT 17 1/41 INT |
| Geographic ID: | S8371-02-00017-0 | Agent Code: | |
| Type: | Real | | |
| Tax Area: | 820 - APPRAISER-S Whid Schl Dist, Special District, improved & less than 1 acre | Land Use Code | 14 |
| Open Space: | N | DFL | N |
| Historic Property: | N | Remodel Property: | N |
| Multi-Family Redevelopment: | N | | |
| Township: | | Section: | |
| Range: | |
Location |
| Address: | 1762 COMPASS BLVD UNIT 17 FREELAND, WA 98249 | Mapsco: | |
| Neighborhood: | 34*FR-maple ridge | Map ID: | 313 |
| Neighborhood CD: | 34*FRmplrg |
Owner |
| Name: | CARTER TTEE, DAVID N | Owner ID: | 310765 |
| Mailing Address: | KIMBERLY J CARTER TTEE 2927 CHANTRY PL SE GURLEY, AL 35748 | % Ownership: | 100.0000000000% |
| | | Exemptions: | |
Taxes and Assessment Details
Values
| (+) Improvement Homesite Value: | + | $0 | |
| (+) Improvement Non-Homesite Value: | + | $257,993 | |
| (+) Land Homesite Value: | + | $0 | |
| (+) Land Non-Homesite Value: | + | $180,000 | |
| (+) Curr Use (HS): | + | $0 | $0 |
| (+) Curr Use (NHS): | + | $0 | $0 |
| | | -------------------------- | |
| (=) Market Value: | = | $437,993 | |
| (–) Productivity Loss: | – | $0 | |
| | | -------------------------- | |
| (=) Subtotal: | = | $437,993 | |
| (+) Senior Appraised Value: | + | $0 | |
| (+) Non-Senior Appraised Value: | + | $437,993 | |
| | | -------------------------- | |
| (=) Total Appraised Value: | = | $437,993 | |
| (–) Senior Exemption Loss: | – | $0 | |
| (–) Exemption Loss: | – | $0 | |
| | | -------------------------- | |
| (=) Taxable Value: | = | $437,993 | |
Taxing Jurisdiction
| Owner: | CARTER TTEE, DAVID N | | |
| % Ownership: | 100.0000000000% | | |
| Total Value: | $437,993 | | |
| Tax Area: | 820 - APPRAISER-S Whid Schl Dist, Special District, improved & less than 1 acre |
| CF | Conservation Futures | 0.0313996660 | $437,993 | $437,993 | $13.75 | | |
| FIRE3 | Fire & Rescue Dist #3 S Whidbey GEN | 1.2130821753 | $437,993 | $437,993 | $531.32 | | |
| HOBOND | Hospital BOND | 0.1893405597 | $437,993 | $437,993 | $82.93 | | |
| HOGEN | Hospital GEN | 0.3848777722 | $437,993 | $437,993 | $168.57 | | |
| CE | County Current Expense | 0.3674210519 | $437,993 | $437,993 | $160.93 | | |
| CR | County Roads | 0.4614296361 | $437,993 | $437,993 | $202.10 | | |
| ISLANDEMS | Hospital GEN (EMS) | 0.4952018576 | $437,993 | $437,993 | $216.89 | | |
| LIB | Library Sno-Isle GEN | 0.3039084203 | $437,993 | $437,993 | $133.11 | | |
| PORTWHID | Port of S Whidbey GEN | 0.1086004714 | $437,993 | $437,993 | $47.57 | | |
| SCH206BOND | School 206 BOND | 0.5960237832 | $437,993 | $437,993 | $261.05 | | |
| SCH206CAP | School 206 CP | 0.3066144020 | $437,993 | $437,993 | $134.29 | | |
| SCH206MO | School 206 Enrichment | 0.4808755445 | $437,993 | $437,993 | $210.62 | | |
| ST | State School | 1.4761226122 | $437,993 | $437,993 | $646.53 | | |
| ST2 | State School Part 2 | 0.7953803475 | $437,993 | $437,993 | $348.37 | | |
| SWHIDPRBD | P & R S Whidbey BOND | 0.0144185398 | $437,993 | $437,993 | $6.32 | | |
| SWHIDPRBD3 | P & R S Whidbey BOND3 | 0.1483535547 | $437,993 | $437,993 | $64.98 | | |
| SWHIDPRMT | P & R S Whidbey GEN | 0.4600000000 | $437,993 | $437,993 | $201.48 | | |
| | Total Tax Rate: | 7.8330503944 | | | | | |
| | | | | Taxes w/Current Exemptions: | $3,430.81 | | |
| | | | | Taxes w/o Exemptions: | $3,430.81 | | |
Improvement / Building
| Improvement #1: | RESIDENTIAL | State Code: | A1 | 1058.6 sqft | Value: | $257,993 |
| Bathrooms: | 1.75 | Bedrooms: | 2 | | Ceiling: | DRYWALL PAINTED | Exterior Wall/Cover: | CEMENT FIBER | | Floor Covering: | CARPET/VINYL 80-20 | Floor Structure: | WOOD W/SUBFLOOR | | Foundation: | CONCRETE | Heating: | FHA GAS | | Interior Finish: | DRYWALL PAINT | Plumbing Fixture Cnt: | 9 | | Roof Slope: | 8" IN 12" | Roof Structure/Cover: | CJ ASPHALT |
|
| | Type | Description | Class CD | Sub Class CD | Year Built | Area |
| | BAS | BASE/MAIN FLOOR | 4 | 0 | 2001 | 1058.6 |
| | OP1 | OPEN PORCH SLAB | 4 | 0 | 2001 | 80.0 |
| | OP1 | OPEN PORCH SLAB | 4 | 0 | 2001 | 73.0 |
| | OP4 | OPEN PORCH W/CEILING-ROOF | 4 | 0 | 2001 | 40.0 |
| | AGR | ATTACHED GARAGE | 4 | 0 | 2001 | 345.8 |
| | COMA | Common Area Improvement | 4 | 0 | 2001 | 0.0 |
Sketch
Property Image
Land
| 1 | 61 | MULTIPLE RESIDENCES | 0.0000 | 7915.00 | 0.00 | 0.00 | 1.00 | $180,000 | $0 |
Roll Value History
| 2026 | N/A | N/A | N/A | N/A | N/A |
| 2025 | $257,993 | $180,000 | $0 | $437,993 | $437,993 |
| 2024 | $261,117 | $155,000 | $0 | $416,117 | $416,117 |
| 2023 | $264,240 | $155,000 | $0 | $419,240 | $419,240 |
| 2022 | $242,498 | $155,000 | $0 | $397,498 | $397,498 |
| 2021 | $213,881 | $110,000 | $0 | $323,881 | $323,881 |
| 2020 | $207,700 | $100,000 | $0 | $307,700 | $307,700 |
| 2019 | $185,870 | $85,000 | $0 | $270,870 | $270,870 |
| 2018 | $186,435 | $85,000 | $0 | $271,435 | $271,435 |
| 2017 | $187,565 | $25,000 | $0 | $212,565 | $212,565 |
| 2016 | $189,824 | $25,000 | $0 | $214,824 | $214,824 |
| 2015 | $154,908 | $25,000 | $0 | $179,908 | $179,908 |
| 2014 | $156,730 | $25,000 | $0 | $181,730 | $181,730 |
| 2013 | $145,806 | $25,000 | $0 | $170,806 | $170,806 |
| 2012 | $149,159 | $25,000 | $0 | $174,159 | $174,159 |
| 2011 | $149,159 | $88,727 | $0 | $237,886 | $237,886 |
| 2010 | $151,400 | $88,727 | $0 | $240,127 | $240,127 |
| 2009 | $157,743 | $110,810 | $0 | $268,553 | $268,553 |
| 2008 | $157,783 | $46,699 | $0 | $204,482 | $204,482 |
| 2007 | $161,251 | $46,699 | $0 | $207,950 | $207,950 |
Deed and Sales History
| 1 | 10/31/2025 | WD | Warranty Deed | CARTER TTEE, DAVID N | HARGER TTEE, PENELOPE R | | | $430,000.00 | 65340 | 4593034 |
| 2 | 11/17/2023 | BARGSLD | Bargain And Sale Deed | CARTER, JANET E | CARTER TTEE, DAVID N | | | $0.00 | 58604 | 4567074 |
| 3 | 01/21/2020 | PRD | Personal Representatives Deed | CARTER, JAMES | CARTER, JANET E | | | $0.00 | 42180 | 4481715 |
| 4 | 02/06/2002 | WD | Warranty Deed | CARTER, JAMES | CARTER, JAMES | | | $0.00 | 20687 | 4012252 |
| 5 | 02/06/2002 | WD | Warranty Deed | COMPASS INVESTMENTS INC, | CARTER, JAMES | | | $163,139.00 | 20542 | 4011100 |
| 6 | 01/01/1900 | OTHER | Other - Misc. Documents | Unknown | COMPASS INVESTMENTS INC, | | | $0.00 | 0 | 0 |
Payout Agreement
| No payout information available.. |