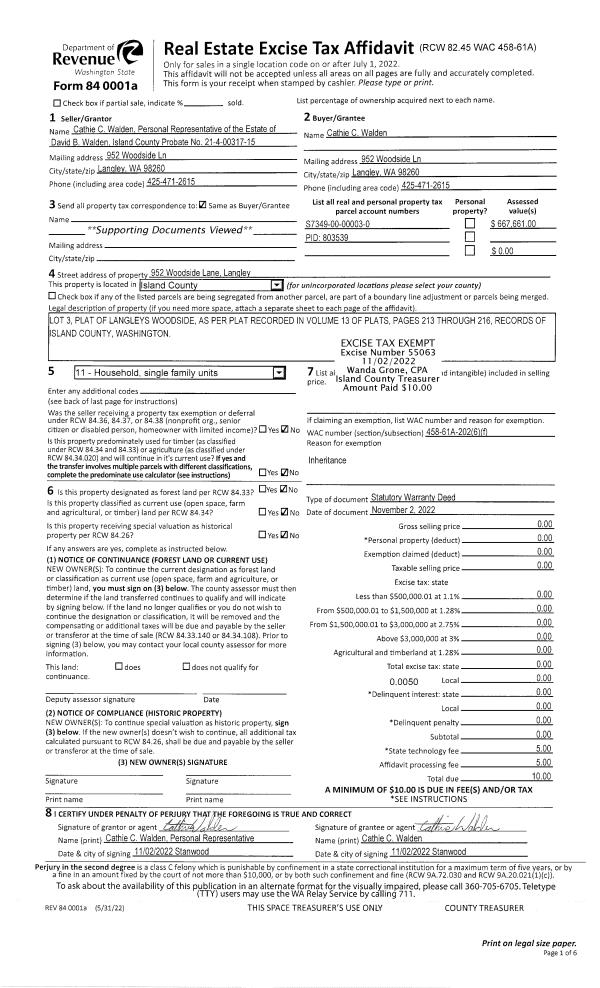
Property
Account |
| Property ID: | 803539 | Abbreviated Legal Description: | LANGLEY'S WOODSIDE LOT 3 |
| Geographic ID: | S7349-00-00003-0 | Agent Code: | |
| Type: | Real | | |
| Tax Area: | 700 - APPRAISER-S Whid Schl Dist, in town of Langley | Land Use Code | 11 |
| Open Space: | N | DFL | N |
| Historic Property: | N | Remodel Property: | N |
| Multi-Family Redevelopment: | N | | |
| Township: | | Section: | |
| Range: | |
Location |
| Address: | 952 WOODSIDE LN LANGLEY, WA 98260 | Mapsco: | |
| Neighborhood: | City of Langley | Map ID: | 720 |
| Neighborhood CD: | 04-L |
Owner |
| Name: | NELSON, CATHERINE GROVE | Owner ID: | 315028 |
| Mailing Address: | PO BOX 101 LANGLEY, WA 98260 | % Ownership: | 100.0000000000% |
| | | Exemptions: | |
Taxes and Assessment Details
Values
| (+) Improvement Homesite Value: | + | $0 | |
| (+) Improvement Non-Homesite Value: | + | $529,516 | |
| (+) Land Homesite Value: | + | $0 | |
| (+) Land Non-Homesite Value: | + | $280,000 | |
| (+) Curr Use (HS): | + | $0 | $0 |
| (+) Curr Use (NHS): | + | $0 | $0 |
| | | -------------------------- | |
| (=) Market Value: | = | $809,516 | |
| (–) Productivity Loss: | – | $0 | |
| | | -------------------------- | |
| (=) Subtotal: | = | $809,516 | |
| (+) Senior Appraised Value: | + | $0 | |
| (+) Non-Senior Appraised Value: | + | $809,516 | |
| | | -------------------------- | |
| (=) Total Appraised Value: | = | $809,516 | |
| (–) Senior Exemption Loss: | – | $0 | |
| (–) Exemption Loss: | – | $0 | |
| | | -------------------------- | |
| (=) Taxable Value: | = | $809,516 | |
Taxing Jurisdiction
| Owner: | NELSON, CATHERINE GROVE | | |
| % Ownership: | 100.0000000000% | | |
| Total Value: | $809,516 | | |
| Tax Area: | 700 - APPRAISER-S Whid Schl Dist, in town of Langley |
| CF | Conservation Futures | 0.0313996660 | $809,516 | $809,516 | $25.42 | | |
| LANG | City of Langley | 1.0106798199 | $809,516 | $809,516 | $818.16 | | |
| LANGBOND | City of Langley BOND | 0.0000000000 | $809,516 | $809,516 | $0.00 | | |
| FIRE3 | Fire & Rescue Dist #3 S Whidbey GEN | 1.2130821753 | $809,516 | $809,516 | $982.01 | | |
| HOBOND | Hospital BOND | 0.1893405597 | $809,516 | $809,516 | $153.27 | | |
| HOGEN | Hospital GEN | 0.3848777722 | $809,516 | $809,516 | $311.56 | | |
| CE | County Current Expense | 0.3674210519 | $809,516 | $809,516 | $297.43 | | |
| ISLANDEMS | Hospital GEN (EMS) | 0.4952018576 | $809,516 | $809,516 | $400.87 | | |
| LIB | Library Sno-Isle GEN | 0.3039084203 | $809,516 | $809,516 | $246.02 | | |
| PORTWHID | Port of S Whidbey GEN | 0.1086004714 | $809,516 | $809,516 | $87.91 | | |
| SCH206BOND | School 206 BOND | 0.5960237832 | $809,516 | $809,516 | $482.49 | | |
| SCH206CAP | School 206 CP | 0.3066144020 | $809,516 | $809,516 | $248.21 | | |
| SCH206MO | School 206 Enrichment | 0.4808755445 | $809,516 | $809,516 | $389.28 | | |
| ST | State School | 1.4761226122 | $809,516 | $809,516 | $1,194.94 | | |
| ST2 | State School Part 2 | 0.7953803475 | $809,516 | $809,516 | $643.87 | | |
| SWHIDPRBD | P & R S Whidbey BOND | 0.0144185398 | $809,516 | $809,516 | $11.67 | | |
| SWHIDPRBD3 | P & R S Whidbey BOND3 | 0.1483535547 | $809,516 | $809,516 | $120.09 | | |
| SWHIDPRMT | P & R S Whidbey GEN | 0.4600000000 | $809,516 | $809,516 | $372.38 | | |
| | Total Tax Rate: | 8.3823005782 | | | | | |
| | | | | Taxes w/Current Exemptions: | $6,785.58 | | |
| | | | | Taxes w/o Exemptions: | $6,785.58 | | |
Improvement / Building
| Improvement #1: | RESIDENTIAL | State Code: | Y | 2707.0 sqft | Value: | $529,516 |
| Bathrooms: | 3 | Bedrooms: | 3 | | Ceiling: | DRYWALL PAINTED | Exterior Wall/Cover: | WOOD SIDING | | Floor Covering: | HARDWOOD/CARP 60-40 | Floor Structure: | WOOD W/SUBFLOOR | | Foundation: | CONCRETE | Heating: | FHA GAS | | Interior Finish: | DRYWALL PAINT | Plumbing Fixture Cnt: | 13 | | Roof Slope: | 8" IN 12" | Roof Structure/Cover: | CJ ASPHALT |
|
| | Type | Description | Class CD | Sub Class CD | Year Built | Area |
| | BAS | BASE/MAIN FLOOR | 4 | 0 | 2002 | 1561.0 |
| | BIG | BUILT IN GARAGE | 4 | 0 | 2002 | 600.2 |
| | UPS | UPPER STORY | 4 | 0 | 2002 | 1146.0 |
| | OP2 | OPEN PORCH W/STEPS | 4 | 0 | 2002 | 202.0 |
| | OWC | OPEN WOOD PORCH W/STEPS/ROOF/C | 4 | 0 | 2002 | 176.0 |
| | OP4 | OPEN PORCH W/CEILING-ROOF | 4 | 0 | 2002 | 168.0 |
Sketch
| No sketches available for this property. |
Property Image
Land
| 1 | 15 | SQ (12001-21780) | 0.0000 | 0.00 | 0.00 | 0.00 | 1.00 | $280,000 | $0 |
Roll Value History
| 2026 | N/A | N/A | N/A | N/A | N/A |
| 2025 | $529,516 | $280,000 | $0 | $809,516 | $809,516 |
| 2024 | $504,740 | $280,000 | $0 | $784,740 | $784,740 |
| 2023 | $510,593 | $280,000 | $0 | $790,593 | $790,593 |
| 2022 | $467,661 | $210,000 | $0 | $677,661 | $677,661 |
| 2021 | $411,264 | $180,000 | $0 | $591,264 | $591,264 |
| 2020 | $392,030 | $180,000 | $0 | $572,030 | $572,030 |
| 2019 | $297,741 | $230,000 | $0 | $527,741 | $527,741 |
| 2018 | $298,574 | $210,000 | $0 | $508,574 | $508,574 |
| 2017 | $300,242 | $200,000 | $0 | $500,242 | $500,242 |
| 2016 | $303,579 | $130,000 | $0 | $433,579 | $433,579 |
| 2015 | $306,916 | $130,000 | $0 | $436,916 | $436,916 |
| 2014 | $338,794 | $135,000 | $0 | $473,794 | $473,794 |
| 2013 | $342,616 | $135,000 | $0 | $477,616 | $477,616 |
| 2012 | $346,442 | $148,500 | $0 | $494,942 | $494,942 |
| 2011 | $350,266 | $165,000 | $0 | $515,266 | $515,266 |
| 2010 | $355,072 | $165,000 | $0 | $520,072 | $520,072 |
| 2009 | $366,255 | $165,000 | $0 | $531,255 | $531,255 |
| 2008 | $364,755 | $145,000 | $0 | $509,755 | $509,755 |
| 2007 | $372,668 | $145,000 | $0 | $517,668 | $517,668 |
Deed and Sales History
| 1 | 12/30/2024 | WD | Warranty Deed | WALDEN, CATHIE C | NELSON, CATHERINE GROVE | | | $815,000.00 | 62230 | 4580903 |
| 2 | 11/02/2022 | WD | Warranty Deed | WALDEN, DAVID B | WALDEN, CATHIE C | | | $0.00 | 55063 | 4553381 |
| 3 | 10/21/2003 | WD | Warranty Deed | CASA GROUP, | WALDEN, DAVID B | | | $340,000.00 | 35047 | 4082117 |
| 4 | 03/07/2002 | WD | Warranty Deed | WEIMER, WAYNE C & JENNIFER | CASA GROUP, | | | $100,000.00 | 20879 | 4013444 |
| 5 | 01/01/1900 | OTHER | Other - Misc. Documents | Unknown | WEIMER, WAYNE C & JENNIFER | | | $0.00 | 0 | 0 |
Payout Agreement
| No payout information available.. |