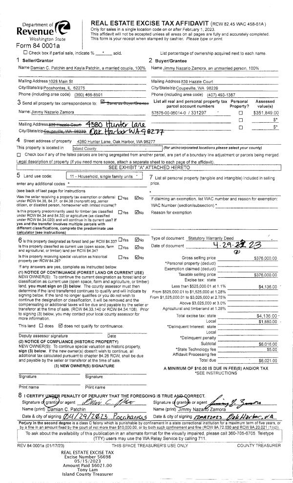
Property
Account |
| Property ID: | 803550 | Abbreviated Legal Description: | LANGLEY'S WOODSIDE LOT 14 |
| Geographic ID: | S7349-00-00014-0 | Agent Code: | |
| Type: | Real | | |
| Tax Area: | 700 - APPRAISER-S Whid Schl Dist, in town of Langley | Land Use Code | 11 |
| Open Space: | N | DFL | N |
| Historic Property: | N | Remodel Property: | N |
| Multi-Family Redevelopment: | N | | |
| Township: | | Section: | |
| Range: | |
Location |
| Address: | | Mapsco: | |
| Neighborhood: | City of Langley | Map ID: | 720 |
| Neighborhood CD: | 04-L |
Owner |
| Name: | KIMBRO TRUSTEE, OWEN P | Owner ID: | 283632 |
| Mailing Address: | LISA M KIMBRO TRUSTEE 1015 WOODSIDE LN LANGLEY, WA 98260 | % Ownership: | 100.0000000000% |
| | | Exemptions: | |
Taxes and Assessment Details
Values
| (+) Improvement Homesite Value: | + | $0 | |
| (+) Improvement Non-Homesite Value: | + | $569,837 | |
| (+) Land Homesite Value: | + | $0 | |
| (+) Land Non-Homesite Value: | + | $280,000 | |
| (+) Curr Use (HS): | + | $0 | $0 |
| (+) Curr Use (NHS): | + | $0 | $0 |
| | | -------------------------- | |
| (=) Market Value: | = | $849,837 | |
| (–) Productivity Loss: | – | $0 | |
| | | -------------------------- | |
| (=) Subtotal: | = | $849,837 | |
| (+) Senior Appraised Value: | + | $0 | |
| (+) Non-Senior Appraised Value: | + | $849,837 | |
| | | -------------------------- | |
| (=) Total Appraised Value: | = | $849,837 | |
| (–) Senior Exemption Loss: | – | $0 | |
| (–) Exemption Loss: | – | $0 | |
| | | -------------------------- | |
| (=) Taxable Value: | = | $849,837 | |
Taxing Jurisdiction
| Owner: | KIMBRO TRUSTEE, OWEN P | | |
| % Ownership: | 100.0000000000% | | |
| Total Value: | $849,837 | | |
| Tax Area: | 700 - APPRAISER-S Whid Schl Dist, in town of Langley |
| CF | Conservation Futures | 0.0313996660 | $849,837 | $849,837 | $26.68 | | |
| LANG | City of Langley | 1.0106798199 | $849,837 | $849,837 | $858.91 | | |
| LANGBOND | City of Langley BOND | 0.0000000000 | $849,837 | $849,837 | $0.00 | | |
| FIRE3 | Fire & Rescue Dist #3 S Whidbey GEN | 1.2130821753 | $849,837 | $849,837 | $1,030.92 | | |
| HOBOND | Hospital BOND | 0.1893405597 | $849,837 | $849,837 | $160.91 | | |
| HOGEN | Hospital GEN | 0.3848777722 | $849,837 | $849,837 | $327.08 | | |
| CE | County Current Expense | 0.3674210519 | $849,837 | $849,837 | $312.25 | | |
| ISLANDEMS | Hospital GEN (EMS) | 0.4952018576 | $849,837 | $849,837 | $420.84 | | |
| LIB | Library Sno-Isle GEN | 0.3039084203 | $849,837 | $849,837 | $258.27 | | |
| PORTWHID | Port of S Whidbey GEN | 0.1086004714 | $849,837 | $849,837 | $92.29 | | |
| SCH206BOND | School 206 BOND | 0.5960237832 | $849,837 | $849,837 | $506.52 | | |
| SCH206CAP | School 206 CP | 0.3066144020 | $849,837 | $849,837 | $260.57 | | |
| SCH206MO | School 206 Enrichment | 0.4808755445 | $849,837 | $849,837 | $408.67 | | |
| ST | State School | 1.4761226122 | $849,837 | $849,837 | $1,254.46 | | |
| ST2 | State School Part 2 | 0.7953803475 | $849,837 | $849,837 | $675.94 | | |
| SWHIDPRBD | P & R S Whidbey BOND | 0.0144185398 | $849,837 | $849,837 | $12.25 | | |
| SWHIDPRBD3 | P & R S Whidbey BOND3 | 0.1483535547 | $849,837 | $849,837 | $126.08 | | |
| SWHIDPRMT | P & R S Whidbey GEN | 0.4600000000 | $849,837 | $849,837 | $390.93 | | |
| | Total Tax Rate: | 8.3823005782 | | | | | |
| | | | | Taxes w/Current Exemptions: | $7,123.57 | | |
| | | | | Taxes w/o Exemptions: | $7,123.57 | | |
Improvement / Building
| Improvement #1: | RESIDENTIAL | State Code: | Y | 2477.0 sqft | Value: | $569,837 |
| Bathrooms: | 2 | Bedrooms: | 2 | | Ceiling: | DRYWALL PAINTED | Cooling: | HEAT PUMP/CONV/V | | Exterior Wall/Cover: | CEMENT FIBER | Floor Covering: | VINYL 100% | | Floor Structure: | WOOD W/SUBFLOOR | Foundation: | CONCRETE | | Interior Finish: | DRYWALL PAINT | Plumbing Fixture Cnt: | 12 | | Roof Slope: | 6" IN 12" | Roof Structure/Cover: | CJ ASPHALT |
|
| | Type | Description | Class CD | Sub Class CD | Year Built | Area |
| | BAS | BASE/MAIN FLOOR | 4 | 0 | 2022 | 2477.0 |
| | AGR | ATTACHED GARAGE | 4 | 0 | 2022 | 648.0 |
| | OP4 | OPEN PORCH W/CEILING-ROOF | 4 | 0 | 2022 | 160.0 |
Sketch
Property Image
Land
| 1 | 15 | SQ (12001-21780) | 0.0000 | 0.00 | 0.00 | 0.00 | 1.00 | $280,000 | $0 |
Roll Value History
| 2026 | N/A | N/A | N/A | N/A | N/A |
| 2025 | $569,837 | $280,000 | $0 | $849,837 | $849,837 |
| 2024 | $575,820 | $280,000 | $0 | $855,820 | $855,820 |
| 2023 | $586,288 | $280,000 | $0 | $866,288 | $866,288 |
| 2022 | $0 | $130,000 | $0 | $130,000 | $130,000 |
| 2021 | $0 | $110,000 | $0 | $110,000 | $110,000 |
| 2020 | $0 | $110,000 | $0 | $110,000 | $110,000 |
| 2019 | $0 | $110,000 | $0 | $110,000 | $110,000 |
| 2018 | $0 | $110,000 | $0 | $110,000 | $110,000 |
| 2017 | $0 | $110,000 | $0 | $110,000 | $110,000 |
| 2016 | $0 | $110,000 | $0 | $110,000 | $110,000 |
| 2015 | $0 | $110,000 | $0 | $110,000 | $110,000 |
| 2014 | $0 | $110,000 | $0 | $110,000 | $110,000 |
| 2013 | $0 | $110,000 | $0 | $110,000 | $110,000 |
| 2012 | $0 | $130,000 | $0 | $130,000 | $130,000 |
| 2011 | $0 | $130,000 | $0 | $130,000 | $130,000 |
| 2010 | $0 | $130,000 | $0 | $130,000 | $130,000 |
| 2009 | $0 | $130,000 | $0 | $130,000 | $130,000 |
| 2008 | $0 | $137,750 | $0 | $137,750 | $137,750 |
| 2007 | $0 | $137,750 | $0 | $137,750 | $137,750 |
Deed and Sales History
| 1 | 01/18/2017 | WD | Warranty Deed | KIMBRO, OWEN P | KIMBRO TRUSTEE, OWEN P | | | $0.00 | 32656 | 4437711 |
| 2 | 11/22/2017 | WD | Warranty Deed | MOBERLY, GEORGE | KIMBRO, OWEN P | | | $118,000.00 | 32112 | 4434981 |
| 3 | 07/15/2016 | WD | Warranty Deed | RALPH, MARGARET G | MOBERLY, GEORGE | | | $105,000.00 | 25261 | 4403349 |
| 4 | 03/15/2010 | ESTSEPPROP | Establish Separate Property | RALPH, DAVID A | RALPH, MARGARET G | | | $0.00 | 776 | 4271562 |
| 5 | 11/04/2004 | WD | Warranty Deed | WEIMER, WAYNE C & JENNIFER | RALPH, DAVID A | | | $82,700.00 | 45332 | 4117651 |
| 6 | 01/01/1900 | OTHER | Other - Misc. Documents | Unknown | WEIMER, WAYNE C & JENNIFER | | | $0.00 | 0 | 0 |
Payout Agreement
| No payout information available.. |