Property
Account |
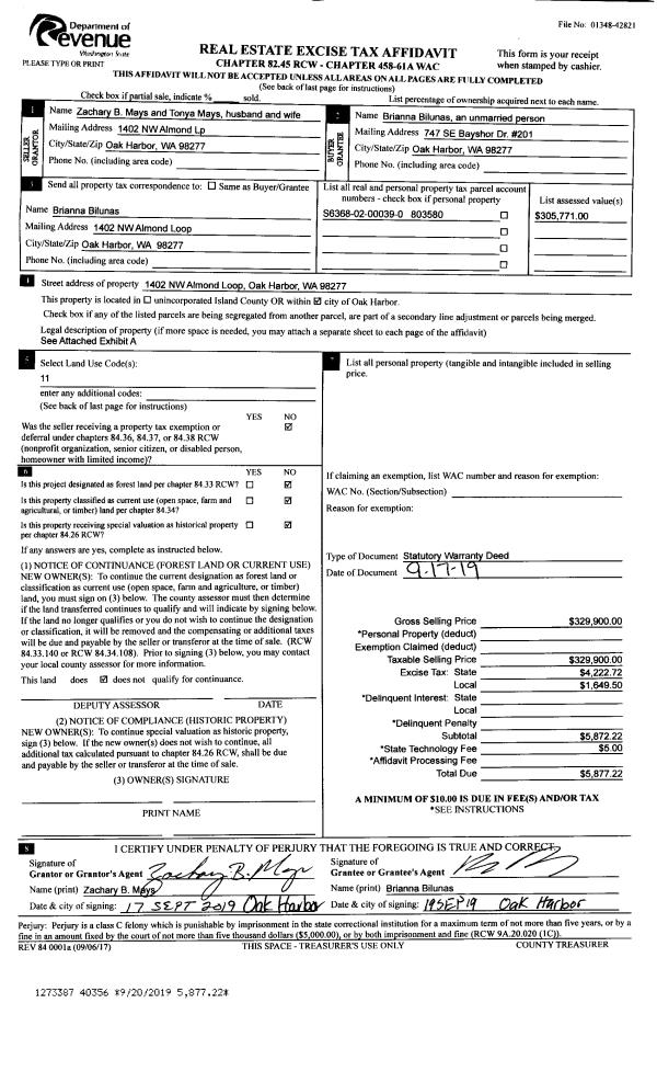
| Property ID: | 803580 | Abbreviated Legal Description: | CHERRY HILL #2 LOT 39 |
| Geographic ID: | S6368-02-00039-0 | Agent Code: | |
| Type: | Real | | |
| Tax Area: | 100 - APPRAISER-OH Schl Dist, in OH | Land Use Code | 11 |
| Open Space: | N | DFL | N |
| Historic Property: | N | Remodel Property: | N |
| Multi-Family Redevelopment: | N | | |
| Township: | | Section: | |
| Range: | |
Location |
| Address: | 1402 NW ALMOND LOOP OAK HARBOR, WA 98277 | Mapsco: | |
| Neighborhood: | Cycle 1 | Map ID: | 255 |
| Neighborhood CD: | 1 |
Owner |
| Name: | BILUNAS, BRIANNA | Owner ID: | 291856 |
| Mailing Address: | 1402 NW ALMOND LOOP OAK HARBOR, WA 98277 | % Ownership: | 100.0000000000% |
| | | Exemptions: | |
Taxes and Assessment Details
Values
| (+) Improvement Homesite Value: | + | $0 | |
| (+) Improvement Non-Homesite Value: | + | $272,830 | |
| (+) Land Homesite Value: | + | $0 | |
| (+) Land Non-Homesite Value: | + | $195,000 | |
| (+) Curr Use (HS): | + | $0 | $0 |
| (+) Curr Use (NHS): | + | $0 | $0 |
| | | -------------------------- | |
| (=) Market Value: | = | $467,830 | |
| (–) Productivity Loss: | – | $0 | |
| | | -------------------------- | |
| (=) Subtotal: | = | $467,830 | |
| (+) Senior Appraised Value: | + | $0 | |
| (+) Non-Senior Appraised Value: | + | $467,830 | |
| | | -------------------------- | |
| (=) Total Appraised Value: | = | $467,830 | |
| (–) Senior Exemption Loss: | – | $0 | |
| (–) Exemption Loss: | – | $0 | |
| | | -------------------------- | |
| (=) Taxable Value: | = | $467,830 | |
Taxing Jurisdiction
| Owner: | BILUNAS, BRIANNA | | |
| % Ownership: | 100.0000000000% | | |
| Total Value: | $467,830 | | |
| Tax Area: | 100 - APPRAISER-OH Schl Dist, in OH |
| CF | Conservation Futures | 0.0313996660 | $467,830 | $467,830 | $14.69 | | |
| CEM1 | Cemetery #1 | 0.0040018856 | $467,830 | $467,830 | $1.87 | | |
| COH | City of Oak Harbor | 2.3090730572 | $467,830 | $467,830 | $1,080.25 | | |
| OAKBOND | City of Oak Harbor BOND | 0.1902260131 | $467,830 | $467,830 | $88.99 | | |
| HOBOND | Hospital BOND | 0.1893405597 | $467,830 | $467,830 | $88.58 | | |
| HOGEN | Hospital GEN | 0.3848777722 | $467,830 | $467,830 | $180.06 | | |
| CE | County Current Expense | 0.3674210519 | $467,830 | $467,830 | $171.89 | | |
| ISLANDEMS | Hospital GEN (EMS) | 0.4952018576 | $467,830 | $467,830 | $231.67 | | |
| LIB | Library Sno-Isle GEN | 0.3039084203 | $467,830 | $467,830 | $142.18 | | |
| NWHIDPRMT | P & R N Whidbey GEN | 0.1990272349 | $467,830 | $467,830 | $93.11 | | |
| SCH201MO | School 201 Enrichment | 2.3851112745 | $467,830 | $467,830 | $1,115.83 | | |
| ST | State School | 1.4761226122 | $467,830 | $467,830 | $690.57 | | |
| ST2 | State School Part 2 | 0.7953803475 | $467,830 | $467,830 | $372.10 | | |
| | Total Tax Rate: | 9.1310917527 | | | | | |
| | | | | Taxes w/Current Exemptions: | $4,271.79 | | |
| | | | | Taxes w/o Exemptions: | $4,271.79 | | |
Improvement / Building
| Improvement #1: | RESIDENTIAL | State Code: | Y | 1510.6 sqft | Value: | $272,830 |
| Bathrooms: | 2 | Bedrooms: | 3 | | Ceiling: | DRYWALL PAINTED | Exterior Wall/Cover: | CEMENT FIBER | | Floor Covering: | CARPET/VINYL 80-20 | Floor Structure: | WOOD W/SUBFLOOR | | Foundation: | CONCRETE | Heating: | FHA GAS | | Interior Finish: | DRYWALL PAINT | Plumbing Fixture Cnt: | 9 | | Roof Slope: | 6" IN 12" | Roof Structure/Cover: | CJ ASPHALT |
|
| | Type | Description | Class CD | Sub Class CD | Year Built | Area |
| | BAS | BASE/MAIN FLOOR | 3 | 0 | 2002 | 1510.6 |
| | OP4 | OPEN PORCH W/CEILING-ROOF | 3 | 0 | 2002 | 108.5 |
| | AGR | ATTACHED GARAGE | 3 | 0 | 2002 | 474.9 |
| | OWP | OPEN WOOD PORCH W/STEPS | 3 | 0 | 2002 | 199.0 |
Sketch
Property Image
Land
| 1 | 13 | SQ (06001-08000) | 0.0000 | 0.00 | 0.00 | 0.00 | 1.00 | $195,000 | $0 |
Roll Value History
| 2026 | N/A | N/A | N/A | N/A | N/A |
| 2025 | $272,830 | $195,000 | $0 | $467,830 | $467,830 |
| 2024 | $276,108 | $190,000 | $0 | $466,108 | $466,108 |
| 2023 | $272,830 | $175,000 | $0 | $447,830 | $447,830 |
| 2022 | $250,020 | $170,000 | $0 | $420,020 | $420,020 |
| 2021 | $219,981 | $120,000 | $0 | $339,981 | $339,981 |
| 2020 | $214,281 | $100,000 | $0 | $314,281 | $314,281 |
| 2019 | $155,771 | $150,000 | $0 | $305,771 | $305,771 |
| 2018 | $156,217 | $130,000 | $0 | $286,217 | $286,217 |
| 2017 | $150,647 | $110,000 | $0 | $260,647 | $260,647 |
| 2016 | $152,399 | $90,000 | $0 | $242,399 | $242,399 |
| 2015 | $154,151 | $55,000 | $0 | $209,151 | $209,151 |
| 2014 | $155,903 | $55,000 | $0 | $210,903 | $210,903 |
| 2013 | $157,655 | $55,000 | $0 | $212,655 | $212,655 |
| 2012 | $159,407 | $65,000 | $0 | $224,407 | $224,407 |
| 2011 | $156,834 | $50,000 | $0 | $206,834 | $206,834 |
| 2010 | $163,235 | $50,000 | $0 | $213,235 | $213,235 |
| 2009 | $168,327 | $60,000 | $0 | $228,327 | $228,327 |
| 2008 | $170,215 | $96,000 | $0 | $266,215 | $266,215 |
| 2007 | $173,871 | $96,000 | $0 | $269,871 | $269,871 |
Deed and Sales History
| 1 | 09/17/2019 | WD | Warranty Deed | MAYS, ZACHARY B | BILUNAS, BRIANNA | | | $329,900.00 | 40356 | 4471814 |
| 2 | 07/11/2011 | WD | Warranty Deed | MARQUIS, LYNDA L | MAYS, ZACHARY B | | | $225,000.00 | 4928 | 4297902 |
| 3 | 06/12/2007 | ESTSEPPROP | Establish Separate Property | MARQUIS, LYNDA L | MARQUIS, LYNDA L | | | $0.00 | 71996 | 4204734 |
| 4 | 06/12/2007 | WD | Warranty Deed | LAVERY, DEVIN S | MARQUIS, LYNDA L | | | $259,900.00 | 71995 | 4204733 |
| 5 | 02/01/2004 | 5 | DNU - Marriage License/Name Change | LAVERY, DEVIN S | LAVERY, DEVIN S | | | $0.00 | 40480 | 4090793 |
| 6 | 02/01/2004 | ESTSEPPROP | Establish Separate Property | LAVERY, DEVIN S | LAVERY, DEVIN S | | | $0.00 | 40462 | 4090672 |
| 7 | 02/01/2004 | WD | Warranty Deed | PREDER, TYLER | LAVERY, DEVIN S | | | $174,000.00 | 40449 | 4090550 |
| 8 | 12/23/2002 | WD | Warranty Deed | FAKKEMA HOMES INC, | PREDER, TYLER | | | $167,900.00 | 25283 | 4042785 |
| 9 | 01/01/1900 | OTHER | Other - Misc. Documents | Unknown | FAKKEMA HOMES INC, | | | $0.00 | 0 | 0 |
Payout Agreement
| No payout information available.. |