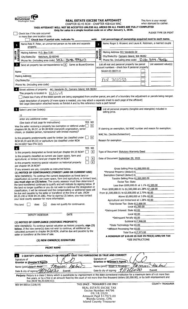
Property
Account |
| Property ID: | 803593 | Abbreviated Legal Description: | BRENTWOOD #3 - PRD LOT 71 |
| Geographic ID: | S6164-03-00071-0 | Agent Code: | |
| Type: | Real | | |
| Tax Area: | 510 - APPRAISER-Stan/Cam Schl Dist, improved & 1 acre or less | Land Use Code | 11 |
| Open Space: | N | DFL | N |
| Historic Property: | N | Remodel Property: | N |
| Multi-Family Redevelopment: | N | | |
| Township: | | Section: | |
| Range: | |
Location |
| Address: | 441 VANDERLIN DR CAMANO ISLAND, WA 98282 | Mapsco: | |
| Neighborhood: | North Camano | Map ID: | 557 |
| Neighborhood CD: | 06-C |
Owner |
| Name: | KROSEVIC, ROGER S | Owner ID: | 296135 |
| Mailing Address: | LAURA K ROBINSON 441 VANDERLIN DR CAMANO ISLAND, WA 98282 | % Ownership: | 100.0000000000% |
| | | Exemptions: | |
Taxes and Assessment Details
Values
| (+) Improvement Homesite Value: | + | $0 | |
| (+) Improvement Non-Homesite Value: | + | $934,936 | |
| (+) Land Homesite Value: | + | $0 | |
| (+) Land Non-Homesite Value: | + | $360,000 | |
| (+) Curr Use (HS): | + | $0 | $0 |
| (+) Curr Use (NHS): | + | $0 | $0 |
| | | -------------------------- | |
| (=) Market Value: | = | $1,294,936 | |
| (–) Productivity Loss: | – | $0 | |
| | | -------------------------- | |
| (=) Subtotal: | = | $1,294,936 | |
| (+) Senior Appraised Value: | + | $0 | |
| (+) Non-Senior Appraised Value: | + | $1,294,936 | |
| | | -------------------------- | |
| (=) Total Appraised Value: | = | $1,294,936 | |
| (–) Senior Exemption Loss: | – | $0 | |
| (–) Exemption Loss: | – | $0 | |
| | | -------------------------- | |
| (=) Taxable Value: | = | $1,294,936 | |
Taxing Jurisdiction
| Owner: | KROSEVIC, ROGER S | | |
| % Ownership: | 100.0000000000% | | |
| Total Value: | $1,294,936 | | |
| Tax Area: | 510 - APPRAISER-Stan/Cam Schl Dist, improved & 1 acre or less |
| CF | Conservation Futures | 0.0313996660 | $1,294,936 | $1,294,936 | $40.66 | | |
| EMS1 | Fire & Rescue Dist #1 Camano GEN (EMS) | 0.4998471806 | $1,294,936 | $1,294,936 | $647.27 | | |
| FIRE1 | Fire & Rescue Dist #1 Camano GEN | 1.2496603404 | $1,294,936 | $1,294,936 | $1,618.23 | | |
| FIRE1BOND | Fire & Rescue Dist #1 Camano BOND | 0.1630371212 | $1,294,936 | $1,294,936 | $211.12 | | |
| CE | County Current Expense | 0.3674210519 | $1,294,936 | $1,294,936 | $475.79 | | |
| CR | County Roads | 0.4614296361 | $1,294,936 | $1,294,936 | $597.52 | | |
| LIB | Library Sno-Isle GEN | 0.3039084203 | $1,294,936 | $1,294,936 | $393.54 | | |
| SCH205_401 | School 205-401 Enrichment | 1.3697998934 | $1,294,936 | $1,294,936 | $1,773.80 | | |
| SCH205BOND | School 205-401 BOND | 0.9354199323 | $1,294,936 | $1,294,936 | $1,211.31 | | |
| ST | State School | 1.4761226122 | $1,294,936 | $1,294,936 | $1,911.48 | | |
| ST2 | State School Part 2 | 0.7953803475 | $1,294,936 | $1,294,936 | $1,029.97 | | |
| | Total Tax Rate: | 7.6534262019 | | | | | |
| | | | | Taxes w/Current Exemptions: | $9,910.69 | | |
| | | | | Taxes w/o Exemptions: | $9,910.69 | | |
Improvement / Building
| Improvement #1: | RESIDENTIAL | State Code: | Y | 3476.0 sqft | Value: | $934,936 |
| Bathrooms: | 3 | Bedrooms: | 3 | | Ceiling: | DRYWALL PAINTED | Exterior Wall/Cover: | SHINGLE | | Floor Covering: | HARDWOOD/CARP 60-40 | Floor Structure: | WOOD W/SUBFLOOR | | Foundation: | CONCRETE | Heating: | HEAT PUMP | | Interior Finish: | DRYWALL PAINT | Plumbing Fixture Cnt: | 16 | | Roof Slope: | 4" IN 12" | Roof Structure/Cover: | CJ ASPHALT |
|
| | Type | Description | Class CD | Sub Class CD | Year Built | Area |
| | BAS | BASE/MAIN FLOOR | 6 | 0 | 2007 | 1890.0 |
| | DWN | DOWNSTAIRS LIVING AREA | 6 | 0 | 2007 | 1586.0 |
| | OP4 | OPEN PORCH W/CEILING-ROOF | 6 | 0 | 2007 | 64.0 |
| | AGR | ATTACHED GARAGE | 6 | 0 | 2007 | 945.0 |
| | OWP | OPEN WOOD PORCH W/STEPS | 6 | 0 | 2007 | 324.0 |
| | OWP | OPEN WOOD PORCH W/STEPS | 6 | 0 | 2007 | 96.0 |
| | OWP | OPEN WOOD PORCH W/STEPS | 6 | 0 | 2007 | 96.0 |
| | OWP | OPEN WOOD PORCH W/STEPS | 6 | 0 | 2007 | 324.0 |
Sketch
Property Image
Land
| 1 | 15 | SQ (12001-21780) | 0.0000 | 0.00 | 0.00 | 0.00 | 1.00 | $360,000 | $0 |
Roll Value History
| 2026 | N/A | N/A | N/A | N/A | N/A |
| 2025 | $934,936 | $360,000 | $0 | $1,294,936 | $1,294,936 |
| 2024 | $933,722 | $360,000 | $0 | $1,293,722 | $1,293,722 |
| 2023 | $941,568 | $360,000 | $0 | $1,301,568 | $1,301,568 |
| 2022 | $860,157 | $300,000 | $0 | $1,160,157 | $1,160,157 |
| 2021 | $753,735 | $210,000 | $0 | $963,735 | $963,735 |
| 2020 | $574,654 | $190,000 | $0 | $764,654 | $764,654 |
| 2019 | $488,213 | $230,000 | $0 | $718,213 | $718,213 |
| 2018 | $489,567 | $200,000 | $0 | $689,567 | $689,567 |
| 2017 | $492,270 | $150,000 | $0 | $642,270 | $642,270 |
| 2016 | $486,875 | $150,000 | $0 | $636,875 | $636,875 |
| 2015 | $492,226 | $125,000 | $0 | $617,226 | $617,226 |
| 2014 | $497,574 | $125,000 | $0 | $622,574 | $622,574 |
| 2013 | $502,925 | $125,000 | $0 | $627,925 | $627,925 |
| 2012 | $508,275 | $120,000 | $0 | $628,275 | $628,275 |
| 2011 | $518,601 | $150,000 | $0 | $668,601 | $668,601 |
| 2010 | $505,275 | $150,000 | $0 | $655,275 | $655,275 |
| 2009 | $609,348 | $190,000 | $0 | $799,348 | $799,348 |
| 2008 | $609,674 | $200,000 | $0 | $809,674 | $809,674 |
| 2007 | $127,154 | $130,000 | $0 | $257,154 | $257,154 |
Deed and Sales History
| 1 | 09/09/2020 | WD | Warranty Deed | PETER, PETE P | KROSEVIC, ROGER S | | | $1,060,000.00 | 44796 | 4496885 |
| 2 | 07/24/2013 | WD | Warranty Deed | SPADA JR, ERNEST | PETER, PETE P | | | $697,000.00 | 12191 | 4345165 |
| 3 | 02/05/2010 | ESTSEPPROP | Establish Separate Property | SPADA JR, ERNEST | SPADA JR, ERNEST | | | $0.00 | 287 | 4268493 |
| 4 | 02/05/2010 | WD | Warranty Deed | D & K DEVELOPMENT INC, | SPADA JR, ERNEST | | | $655,000.00 | 286 | 4268492 |
| 5 | 12/09/2004 | WD | Warranty Deed | CREC 401(K) PROFIT SHARING, | D & K DEVELOPMENT INC, | | | $86,000.00 | 45946 | 4121477 |
| 6 | 01/01/1900 | OTHER | Other - Misc. Documents | Unknown | CREC 401(K) PROFIT SHARING, | | | $0.00 | 0 | 0 |
Payout Agreement
| No payout information available.. |