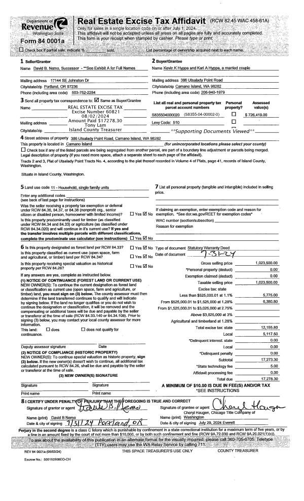
Property
Account |
| Property ID: | 803722 | Abbreviated Legal Description: | UTSA PT TR 4 LOTS 2 & 3 |
| Geographic ID: | S8355-04-00002-0 | Agent Code: | |
| Type: | Real | | |
| Tax Area: | 510 - APPRAISER-Stan/Cam Schl Dist, improved & 1 acre or less | Land Use Code | 11 |
| Open Space: | N | DFL | N |
| Historic Property: | N | Remodel Property: | N |
| Multi-Family Redevelopment: | N | | |
| Township: | | Section: | |
| Range: | |
Location |
| Address: | 386 UTSALADY POINT RD CAMANO ISLAND, WA 98282 | Mapsco: | |
| Neighborhood: | North Camano | Map ID: | 550 |
| Neighborhood CD: | 06-C |
Owner |
| Name: | HYPPA, KEVIN K | Owner ID: | 313369 |
| Mailing Address: | KARI A HYPPA 386 UTSALADY POINT RD CAMANO ISLAND, WA 98282 | % Ownership: | 100.0000000000% |
| | | Exemptions: | |
Taxes and Assessment Details
Values
| (+) Improvement Homesite Value: | + | $0 | |
| (+) Improvement Non-Homesite Value: | + | $358,479 | |
| (+) Land Homesite Value: | + | $0 | |
| (+) Land Non-Homesite Value: | + | $410,000 | |
| (+) Curr Use (HS): | + | $0 | $0 |
| (+) Curr Use (NHS): | + | $0 | $0 |
| | | -------------------------- | |
| (=) Market Value: | = | $768,479 | |
| (–) Productivity Loss: | – | $0 | |
| | | -------------------------- | |
| (=) Subtotal: | = | $768,479 | |
| (+) Senior Appraised Value: | + | $0 | |
| (+) Non-Senior Appraised Value: | + | $768,479 | |
| | | -------------------------- | |
| (=) Total Appraised Value: | = | $768,479 | |
| (–) Senior Exemption Loss: | – | $0 | |
| (–) Exemption Loss: | – | $0 | |
| | | -------------------------- | |
| (=) Taxable Value: | = | $768,479 | |
Taxing Jurisdiction
| Owner: | HYPPA, KEVIN K | | |
| % Ownership: | 100.0000000000% | | |
| Total Value: | $768,479 | | |
| Tax Area: | 510 - APPRAISER-Stan/Cam Schl Dist, improved & 1 acre or less |
| CF | Conservation Futures | 0.0313996660 | $768,479 | $768,479 | $24.13 | | |
| EMS1 | Fire & Rescue Dist #1 Camano GEN (EMS) | 0.4998471806 | $768,479 | $768,479 | $384.12 | | |
| FIRE1 | Fire & Rescue Dist #1 Camano GEN | 1.2496603404 | $768,479 | $768,479 | $960.34 | | |
| FIRE1BOND | Fire & Rescue Dist #1 Camano BOND | 0.1630371212 | $768,479 | $768,479 | $125.29 | | |
| CE | County Current Expense | 0.3674210519 | $768,479 | $768,479 | $282.36 | | |
| CR | County Roads | 0.4614296361 | $768,479 | $768,479 | $354.60 | | |
| LIB | Library Sno-Isle GEN | 0.3039084203 | $768,479 | $768,479 | $233.55 | | |
| SCH205_401 | School 205-401 Enrichment | 1.3697998934 | $768,479 | $768,479 | $1,052.66 | | |
| SCH205BOND | School 205-401 BOND | 0.9354199323 | $768,479 | $768,479 | $718.85 | | |
| ST | State School | 1.4761226122 | $768,479 | $768,479 | $1,134.37 | | |
| ST2 | State School Part 2 | 0.7953803475 | $768,479 | $768,479 | $611.23 | | |
| | Total Tax Rate: | 7.6534262019 | | | | | |
| | | | | Taxes w/Current Exemptions: | $5,881.50 | | |
| | | | | Taxes w/o Exemptions: | $5,881.50 | | |
Improvement / Building
| Improvement #1: | RESIDENTIAL | State Code: | Y | 1516.0 sqft | Value: | $358,479 |
| Bathrooms: | 2 | Bedrooms: | 2 | | Ceiling: | DRYWALL PAINTED | Cooling: | HEAT PUMP/CONV/V | | Exterior Wall/Cover: | SHINGLE | Floor Covering: | HARDWOOD/CARP 80-20 | | Floor Structure: | WOOD W/SUBFLOOR | Foundation: | CONCRETE | | Interior Finish: | DRYWALL PAINT | Plumbing Fixture Cnt: | 10 | | Roof Slope: | 4" IN 12" | Roof Structure/Cover: | CJ ASPHALT |
|
| | Type | Description | Class CD | Sub Class CD | Year Built | Area |
| | BAS | BASE/MAIN FLOOR | 4 | 0 | 1964 | 1516.0 |
| | OP1 | OPEN PORCH SLAB | 4 | 0 | 1964 | 576.0 |
| | OP3 | OPEN PORCH W/ROOF | 4 | 0 | 1964 | 24.0 |
| | AGR | ATTACHED GARAGE | 4 | 0 | 1964 | 660.0 |
Sketch
| No sketches available for this property. |
Property Image
Land
| 1 | 14 | SQ (08001-12000) | 0.0000 | 0.00 | 0.00 | 0.00 | 1.00 | $410,000 | $0 |
Roll Value History
| 2026 | N/A | N/A | N/A | N/A | N/A |
| 2025 | $358,479 | $410,000 | $0 | $768,479 | $768,479 |
| 2024 | $336,419 | $390,000 | $0 | $726,419 | $726,419 |
| 2023 | $340,832 | $360,000 | $0 | $700,832 | $700,832 |
| 2022 | $304,629 | $260,000 | $0 | $564,629 | $564,629 |
| 2021 | $268,381 | $220,000 | $0 | $488,381 | $488,381 |
| 2020 | $261,593 | $190,000 | $0 | $451,593 | $451,593 |
| 2019 | $191,110 | $230,000 | $0 | $421,110 | $421,110 |
| 2018 | $191,714 | $200,000 | $0 | $391,714 | $391,714 |
| 2017 | $192,919 | $150,000 | $0 | $342,919 | $342,919 |
| 2016 | $185,406 | $100,000 | $0 | $285,406 | $285,406 |
| 2015 | $187,695 | $100,000 | $0 | $287,695 | $287,695 |
| 2014 | $189,984 | $100,000 | $0 | $289,984 | $289,984 |
| 2013 | $192,274 | $100,000 | $0 | $292,274 | $292,274 |
| 2012 | $194,562 | $108,000 | $0 | $302,562 | $302,562 |
| 2011 | $196,851 | $135,000 | $0 | $331,851 | $331,851 |
| 2010 | $191,421 | $135,000 | $0 | $326,421 | $326,421 |
| 2009 | $197,457 | $115,000 | $0 | $312,457 | $312,457 |
| 2008 | $200,158 | $115,000 | $0 | $315,158 | $315,158 |
| 2007 | $202,875 | $115,000 | $0 | $317,875 | $317,875 |
Deed and Sales History
| 1 | 07/31/2024 | WD | Warranty Deed | WARE TRUSTEE, LAURA ANN | HYPPA, KEVIN K | | | $1,023,500.00 | 60821 | 4575373 |
| 2 | 12/03/2015 | TRUSTEED | Trustee's Deed | WARE, LAURA A | WARE TRUSTEE, LAURA ANN | | | $0.00 | 22583 | 4391435 |
| 3 | 10/24/2003 | WD | Warranty Deed | MAGNER, SHIRLEY R | WARE, LAURA A | | | $250,000.00 | 34927 | 4081176 |
| 4 | 07/09/2002 | SEG | DNU - Segregation | Unknown | MAGNER, SHIRLEY R | | | $0.00 | 69488 | 0 |
Payout Agreement
| No payout information available.. |