Property
Account |
| Property ID: | 804180 | Abbreviated Legal Description: | PT GL 4 DESC: BG PT SLN OF N440' OF GL4 INTER/W WLN CO RD N28*W ALG SD RD 153.75' S50*W TO ML SELY FOLL SD ML TO SLN OF N440' OF GL4 E TPB INCL ADJ TIDES |
| Geographic ID: | R23123-492-1010 | Agent Code: | |
| Type: | Real | | |
| Tax Area: | 510 - APPRAISER-Stan/Cam Schl Dist, improved & 1 acre or less | Land Use Code | 11 |
| Open Space: | N | DFL | N |
| Historic Property: | N | Remodel Property: | N |
| Multi-Family Redevelopment: | N | | |
| Township: | 31 | Section: | 23 |
| Range: | R2 |
Location |
| Address: | 1230 S WEST CAMANO DR CAMANO ISLAND, WA 98282 | Mapsco: | |
| Neighborhood: | Cycle 5 | Map ID: | 502 |
| Neighborhood CD: | 5 |
Owner |
| Name: | CHE, GIAO | Owner ID: | 308324 |
| Mailing Address: | THANHSUONG THI VO 16116 122ND PL NE BOTHELL, WA 98011 | % Ownership: | 100.0000000000% |
| | | Exemptions: | |
Taxes and Assessment Details
Values
| (+) Improvement Homesite Value: | + | $0 | |
| (+) Improvement Non-Homesite Value: | + | $314,057 | |
| (+) Land Homesite Value: | + | $0 | |
| (+) Land Non-Homesite Value: | + | $600,330 | |
| (+) Curr Use (HS): | + | $0 | $0 |
| (+) Curr Use (NHS): | + | $0 | $0 |
| | | -------------------------- | |
| (=) Market Value: | = | $914,387 | |
| (–) Productivity Loss: | – | $0 | |
| | | -------------------------- | |
| (=) Subtotal: | = | $914,387 | |
| (+) Senior Appraised Value: | + | $0 | |
| (+) Non-Senior Appraised Value: | + | $914,387 | |
| | | -------------------------- | |
| (=) Total Appraised Value: | = | $914,387 | |
| (–) Senior Exemption Loss: | – | $0 | |
| (–) Exemption Loss: | – | $0 | |
| | | -------------------------- | |
| (=) Taxable Value: | = | $914,387 | |
Taxing Jurisdiction
| Owner: | CHE, GIAO | | |
| % Ownership: | 100.0000000000% | | |
| Total Value: | $914,387 | | |
| Tax Area: | 510 - APPRAISER-Stan/Cam Schl Dist, improved & 1 acre or less |
| CF | Conservation Futures | 0.0313996660 | $914,387 | $914,387 | $28.71 | | |
| EMS1 | Fire & Rescue Dist #1 Camano GEN (EMS) | 0.4998471806 | $914,387 | $914,387 | $457.05 | | |
| FIRE1 | Fire & Rescue Dist #1 Camano GEN | 1.2496603404 | $914,387 | $914,387 | $1,142.67 | | |
| FIRE1BOND | Fire & Rescue Dist #1 Camano BOND | 0.1630371212 | $914,387 | $914,387 | $149.08 | | |
| CE | County Current Expense | 0.3674210519 | $914,387 | $914,387 | $335.97 | | |
| CR | County Roads | 0.4614296361 | $914,387 | $914,387 | $421.93 | | |
| LIB | Library Sno-Isle GEN | 0.3039084203 | $914,387 | $914,387 | $277.89 | | |
| SCH205_401 | School 205-401 Enrichment | 1.3697998934 | $914,387 | $914,387 | $1,252.53 | | |
| SCH205BOND | School 205-401 BOND | 0.9354199323 | $914,387 | $914,387 | $855.34 | | |
| ST | State School | 1.4761226122 | $914,387 | $914,387 | $1,349.75 | | |
| ST2 | State School Part 2 | 0.7953803475 | $914,387 | $914,387 | $727.29 | | |
| | Total Tax Rate: | 7.6534262019 | | | | | |
| | | | | Taxes w/Current Exemptions: | $6,998.21 | | |
| | | | | Taxes w/o Exemptions: | $6,998.21 | | |
Improvement / Building
| Improvement #1: | RESIDENTIAL | State Code: | Y | 1276.0 sqft | Value: | $314,057 |
| Bathrooms: | 1.75 | Bedrooms: | 3 | | Ceiling: | DRYWALL PAINTED | Exterior Wall/Cover: | WOOD SIDING | | Floor Covering: | HARDWOOD/CARP 60-40 | Floor Structure: | WOOD W/SUBFLOOR | | Foundation: | CONCRETE | Heating: | WALL HEAT ELECTRIC | | Interior Finish: | DRYWALL PAINT | Plumbing Fixture Cnt: | 12 | | Roof Slope: | 3" IN 12" | Roof Structure/Cover: | CJ ASPHALT |
|
| | Type | Description | Class CD | Sub Class CD | Year Built | Area |
| | BAS | BASE/MAIN FLOOR | 4 | 0 | 1975 | 1276.0 |
| | OWP | OPEN WOOD PORCH W/STEPS | 4 | 0 | 1975 | 69.3 |
| | OWP | OPEN WOOD PORCH W/STEPS | 4 | 0 | 1975 | 496.0 |
| | DGR | DETACHED GARAGE | 4 | 0 | 1975 | 440.0 |
| | OP2 | OPEN PORCH W/STEPS | 4 | 0 | 1975 | 80.0 |
Sketch
Property Image
Land
| 1 | HB | HIGH BLUFF | 0.3560 | 15507.36 | 84.00 | 0.00 | 1.00 | $600,000 | $0 |
| 2 | 55 | TIDES | 0.0000 | 0.00 | 40.00 | 0.00 | 1.00 | $330 | $0 |
Roll Value History
| 2026 | N/A | N/A | N/A | N/A | N/A |
| 2025 | $314,057 | $600,330 | $0 | $914,387 | $914,387 |
| 2024 | $318,020 | $600,330 | $0 | $918,350 | $918,350 |
| 2023 | $321,982 | $600,330 | $0 | $922,312 | $922,312 |
| 2022 | $209,992 | $500,330 | $0 | $710,322 | $710,322 |
| 2021 | $148,032 | $300,330 | $0 | $448,362 | $448,362 |
| 2020 | $145,136 | $300,330 | $0 | $445,466 | $445,466 |
| 2019 | $110,483 | $300,330 | $0 | $410,813 | $410,813 |
| 2018 | $110,807 | $300,330 | $0 | $411,137 | $411,137 |
| 2017 | $111,451 | $300,330 | $0 | $411,781 | $411,781 |
| 2016 | $112,746 | $300,330 | $0 | $413,076 | $413,076 |
| 2015 | $111,542 | $300,330 | $0 | $411,872 | $411,872 |
| 2014 | $112,734 | $300,330 | $0 | $413,064 | $413,064 |
| 2013 | $113,927 | $231,778 | $0 | $345,705 | $345,705 |
| 2012 | $115,118 | $231,778 | $0 | $346,896 | $346,896 |
| 2011 | $116,311 | $289,640 | $0 | $405,951 | $405,951 |
| 2010 | $122,970 | $353,217 | $0 | $476,187 | $476,187 |
| 2009 | $134,555 | $379,773 | $0 | $514,328 | $514,328 |
| 2008 | $136,378 | $288,317 | $0 | $424,695 | $424,695 |
| 2007 | $137,687 | $387,121 | $0 | $524,808 | $524,808 |
Deed and Sales History
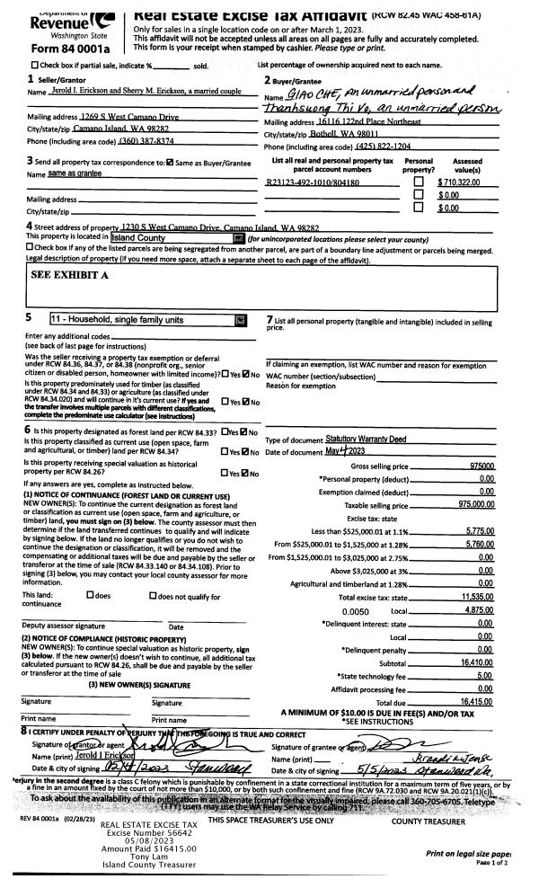
| 1 | 05/04/2023 | WD | Warranty Deed | ERICKSON, JEROLD I | CHE, GIAO | | | $975,000.00 | 56642 | 4559669 |
| 2 | 06/12/2013 | WD | Warranty Deed | ERICKSON, DEBRA LYNN | ERICKSON, JEROLD I | | | $244,580.00 | 11657 | 4341904 |
| 3 | 04/19/2001 | WD | Warranty Deed | Unknown | ERICKSON, DEBRA LYNN | | | $187,500.00 | 11646 | 20031984 |
Payout Agreement
| No payout information available.. |