Property
Account |
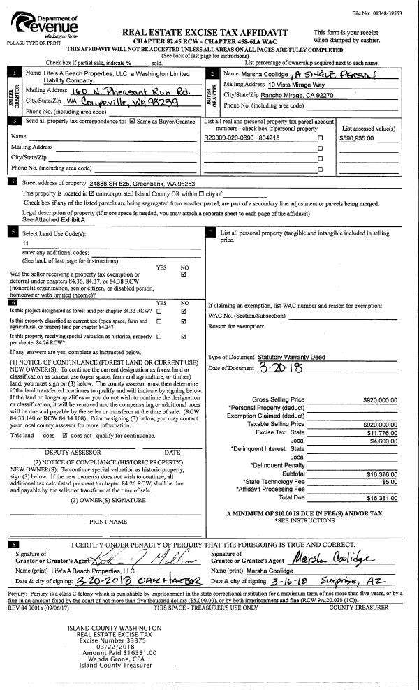
| Property ID: | 804215 | Abbreviated Legal Description: | 3.4200 Acres ins Section 09s Township 30s Range R2s LOT A BLC AF#4540223;s |
| Geographic ID: | R23009-020-0690 | Agent Code: | |
| Type: | Real | | |
| Tax Area: | 312 - APPRAISER-Cpvl Schl Dist, outside Cpvl, improved, greater than 1 acre | Land Use Code | 11 |
| Open Space: | N | DFL | N |
| Historic Property: | N | Remodel Property: | N |
| Multi-Family Redevelopment: | N | | |
| Township: | 30 | Section: | 09 |
| Range: | R2 |
Location |
| Address: | 24888 SR525 GREENBANK, WA 98253 | Mapsco: | |
| Neighborhood: | Cycle 3 | Map ID: | 367 |
| Neighborhood CD: | 3 |
Owner |
| Name: | COOLIDGE, MARSHA | Owner ID: | 284313 |
| Mailing Address: | 24888 SR 525 GREENBANK, WA 98253-6244 | % Ownership: | 100.0000000000% |
| | | Exemptions: | |
Taxes and Assessment Details
Values
| (+) Improvement Homesite Value: | + | $767,430 | |
| (+) Improvement Non-Homesite Value: | + | $0 | |
| (+) Land Homesite Value: | + | $0 | |
| (+) Land Non-Homesite Value: | + | $701,340 | |
| (+) Curr Use (HS): | + | $0 | $0 |
| (+) Curr Use (NHS): | + | $0 | $0 |
| | | -------------------------- | |
| (=) Market Value: | = | $1,468,770 | |
| (–) Productivity Loss: | – | $0 | |
| | | -------------------------- | |
| (=) Subtotal: | = | $1,468,770 | |
| (+) Senior Appraised Value: | + | $0 | |
| (+) Non-Senior Appraised Value: | + | $1,468,770 | |
| | | -------------------------- | |
| (=) Total Appraised Value: | = | $1,468,770 | |
| (–) Senior Exemption Loss: | – | $0 | |
| (–) Exemption Loss: | – | $0 | |
| | | -------------------------- | |
| (=) Taxable Value: | = | $1,468,770 | |
Taxing Jurisdiction
| Owner: | COOLIDGE, MARSHA | | |
| % Ownership: | 100.0000000000% | | |
| Total Value: | $1,468,770 | | |
| Tax Area: | 312 - APPRAISER-Cpvl Schl Dist, outside Cpvl, improved, greater than 1 acre |
| CF | Conservation Futures | 0.0313996660 | $1,468,770 | $1,468,770 | $46.12 | | |
| CEM2 | Cemetery #2 | 0.0092609791 | $1,468,770 | $1,468,770 | $13.60 | | |
| FIRE5 | Fire & Rescue Dist #5 C Whidbey GEN | 1.1892169230 | $1,468,770 | $1,468,770 | $1,746.69 | | |
| FIRE5BOND | Fire & Rescue Dist #5 C Whidbey BOND | 0.1394359503 | $1,468,770 | $1,468,770 | $204.80 | | |
| HOBOND | Hospital BOND | 0.1893405597 | $1,468,770 | $1,468,770 | $278.10 | | |
| HOGEN | Hospital GEN | 0.3848777722 | $1,468,770 | $1,468,770 | $565.30 | | |
| CE | County Current Expense | 0.3674210519 | $1,468,770 | $1,468,770 | $539.66 | | |
| CR | County Roads | 0.4614296361 | $1,468,770 | $1,468,770 | $677.73 | | |
| ISLANDEMS | Hospital GEN (EMS) | 0.4952018576 | $1,468,770 | $1,468,770 | $727.34 | | |
| LIB | Library Sno-Isle GEN | 0.3039084203 | $1,468,770 | $1,468,770 | $446.37 | | |
| LIBCAP | Library Sno-Isle BOND (Cap Fac Imp Area) | 0.0528562629 | $1,468,770 | $1,468,770 | $77.63 | | |
| POCOUP | Port of Coupeville GEN | 0.1065226063 | $1,468,770 | $1,468,770 | $156.46 | | |
| POCOUPIDD | Port of Coupeville IDD | 0.3353038577 | $1,468,770 | $1,468,770 | $492.48 | | |
| COUPSDTECH | School 204 CP (TECH) | 0.1215123397 | $1,468,770 | $1,468,770 | $178.47 | | |
| SCH204MO | School 204 Enrichment | 0.6416662518 | $1,468,770 | $1,468,770 | $942.46 | | |
| ST | State School | 1.4761226122 | $1,468,770 | $1,468,770 | $2,168.08 | | |
| ST2 | State School Part 2 | 0.7953803475 | $1,468,770 | $1,468,770 | $1,168.23 | | |
| | Total Tax Rate: | 7.1008570943 | | | | | |
| | | | | Taxes w/Current Exemptions: | $10,429.52 | | |
| | | | | Taxes w/o Exemptions: | $10,429.52 | | |
Improvement / Building
| Improvement #1: | RESIDENTIAL | State Code: | Y | 2661.3 sqft | Value: | $767,430 |
| Bathrooms: | 2 | Bedrooms: | 3 | | Ceiling: | DRY WALL SPRAYED | Exterior Wall/Cover: | WOOD SIDING | | Floor Covering: | TILE CERAMIC | Floor Structure: | WOOD W/SUBFLOOR | | Foundation: | CONCRETE | Heating: | RADIANT FLOOR | | Interior Finish: | DRYWALL PAINT | Plumbing Fixture Cnt: | 11 | | Roof Slope: | 4" IN 12" | Roof Structure/Cover: | CJ ASPHALT |
|
| | Type | Description | Class CD | Sub Class CD | Year Built | Area |
| | BAS | BASE/MAIN FLOOR | 5 | 0 | 1975 | 1456.2 |
| | OP1 | OPEN PORCH SLAB | 5 | 0 | 1975 | 624.7 |
| | OP4 | OPEN PORCH W/CEILING-ROOF | 5 | 0 | 1975 | 98.4 |
| | OCP | OPEN CARPORT | 5 | 0 | 1975 | 528.0 |
| | UPS | UPPER STORY | 5 | 0 | 1975 | 773.1 |
| | DGR | DETACHED GARAGE | 5 | 0 | 1975 | 576.0 |
| | LOF | LOFT | 5 | 0 | 1975 | 432.0 |
| | UTY | STORAGE/UTILITY | 5 | 0 | 1975 | 1512.0 |
| | OWP | OPEN WOOD PORCH W/STEPS | 5 | 0 | 1975 | 72.0 |
| | oTRM | HILLSIDE TRAM | 5 | 0 | 1975 | 0.0 |
Sketch
Property Image
Land
| 1 | HB | HIGH BLUFF | 3.4200 | 148975.20 | 129.00 | 0.00 | 1.00 | $700,000 | $0 |
| 2 | 55 | TIDES | 0.0000 | 0.00 | 134.00 | 0.00 | 1.00 | $1,340 | $0 |
Roll Value History
| 2026 | N/A | N/A | N/A | N/A | N/A |
| 2025 | $767,430 | $701,340 | $0 | $1,468,770 | $1,468,770 |
| 2024 | $773,309 | $701,340 | $0 | $1,474,649 | $1,474,649 |
| 2023 | $779,191 | $676,340 | $0 | $1,455,531 | $1,455,531 |
| 2022 | $665,620 | $551,340 | $0 | $1,216,960 | $1,216,960 |
| 2021 | $583,434 | $451,340 | $0 | $1,034,774 | $1,034,774 |
| 2020 | $567,134 | $401,340 | $0 | $968,474 | $968,474 |
| 2019 | $512,418 | $451,340 | $0 | $963,758 | $963,758 |
| 2018 | $513,722 | $400,000 | $0 | $913,722 | $913,722 |
| 2017 | $239,595 | $351,340 | $0 | $590,935 | $590,935 |
| 2016 | $242,031 | $351,340 | $0 | $593,371 | $593,371 |
| 2015 | $244,467 | $351,340 | $0 | $595,807 | $595,807 |
| 2014 | $246,905 | $351,340 | $0 | $598,245 | $598,245 |
| 2013 | $245,658 | $381,259 | $0 | $626,917 | $626,917 |
| 2012 | $248,094 | $381,259 | $0 | $629,353 | $629,353 |
| 2011 | $250,532 | $381,259 | $0 | $631,791 | $631,791 |
| 2010 | $265,593 | $381,259 | $0 | $646,852 | $646,852 |
| 2009 | $275,753 | $507,899 | $0 | $783,652 | $783,652 |
| 2008 | $279,507 | $360,420 | $0 | $639,927 | $639,927 |
| 2007 | $276,214 | $314,597 | $0 | $590,811 | $590,811 |
Deed and Sales History
| 1 | 04/20/2022 | QCD | Quit Claim Deed | KAREN SCHWEERS COOK & | COOLIDGE, MARSHA | | | $0.00 | 53364 | 4546341 |
| 2 | 03/20/2018 | WD | Warranty Deed | LIFE'S A BEACH PROPERTIES, LLC | COOLIDGE, MARSHA | | | $920,000.00 | 33375 | 4441246 |
| 3 | 04/19/2013 | QCD | Quit Claim Deed | MULLINS, KATHERINE J | LIFE'S A BEACH PROPERTIES, LLC | | | $0.00 | 11080 | 4338312 |
| 4 | 06/10/2009 | TRUSTEED | Trustee's Deed | EAST, RONALD A | MULLINS, KATHERINE J | | | $499,001.00 | 91306 | 4254065 |
| 5 | 02/22/2005 | WD | Warranty Deed | SCOTT, LEWIS E | EAST, RONALD A | | | $562,500.00 | 50742 | 4126789 |
| 6 | 03/28/2003 | BLA | DNU - Boundary Line Adjustment | SCOTT, LEWIS E | SCOTT, LEWIS E | | | $0.00 | 69783 | 4029280 |
| 7 | 11/17/1999 | WD | Warranty Deed | Unknown | SCOTT, LEWIS E | | | $409,000.00 | 94796 | 99026926 |
Payout Agreement
| No payout information available.. |