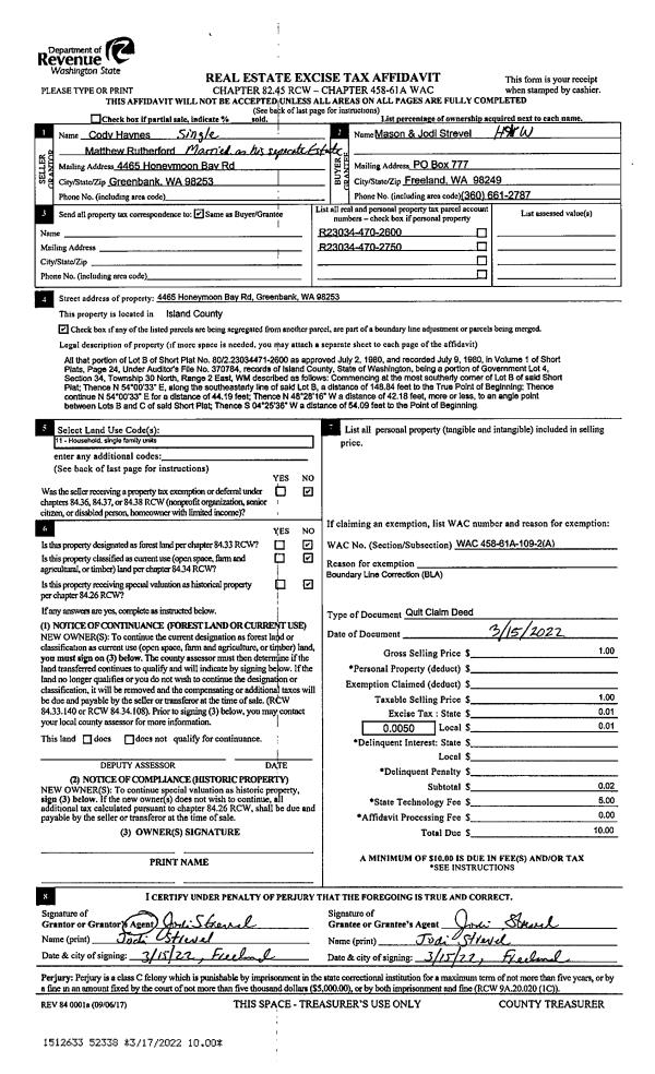
Property
Account |
| Property ID: | 804259 | Abbreviated Legal Description: | LOT 1 SP 88-02.33119.083-1800 V3 SP P458-9 AF#4035591 |
| Geographic ID: | R33119-078-1790 | Agent Code: | |
| Type: | Real | | |
| Tax Area: | 512 - APPRAISER-Stan/Cam Schl Dist, improved, greater than 1 acre | Land Use Code | 11 |
| Open Space: | N | DFL | N |
| Historic Property: | N | Remodel Property: | N |
| Multi-Family Redevelopment: | N | | |
| Township: | 31 | Section: | 19 |
| Range: | R3 |
Location |
| Address: | 1542 ELGER BAY RD CAMANO ISLAND, WA 98282 | Mapsco: | |
| Neighborhood: | Cycle 5 | Map ID: | 929 |
| Neighborhood CD: | 5 |
Owner |
| Name: | MATHER, WILLIAM M | Owner ID: | 189798 |
| Mailing Address: | CYNTHIA R MATHER 1542 ELGER BAY RD CAMANO ISLAND, WA 98282-8346 | % Ownership: | 100.0000000000% |
| | | Exemptions: | |
Taxes and Assessment Details
Values
| (+) Improvement Homesite Value: | + | $0 | |
| (+) Improvement Non-Homesite Value: | + | $108,487 | |
| (+) Land Homesite Value: | + | $0 | |
| (+) Land Non-Homesite Value: | + | $300,000 | |
| (+) Curr Use (HS): | + | $0 | $0 |
| (+) Curr Use (NHS): | + | $0 | $0 |
| | | -------------------------- | |
| (=) Market Value: | = | $408,487 | |
| (–) Productivity Loss: | – | $0 | |
| | | -------------------------- | |
| (=) Subtotal: | = | $408,487 | |
| (+) Senior Appraised Value: | + | $0 | |
| (+) Non-Senior Appraised Value: | + | $408,487 | |
| | | -------------------------- | |
| (=) Total Appraised Value: | = | $408,487 | |
| (–) Senior Exemption Loss: | – | $0 | |
| (–) Exemption Loss: | – | $0 | |
| | | -------------------------- | |
| (=) Taxable Value: | = | $408,487 | |
Taxing Jurisdiction
| Owner: | MATHER, WILLIAM M | | |
| % Ownership: | 100.0000000000% | | |
| Total Value: | $408,487 | | |
| Tax Area: | 512 - APPRAISER-Stan/Cam Schl Dist, improved, greater than 1 acre |
| CF | Conservation Futures | 0.0313996660 | $408,487 | $408,487 | $12.83 | | |
| EMS1 | Fire & Rescue Dist #1 Camano GEN (EMS) | 0.4998471806 | $408,487 | $408,487 | $204.18 | | |
| FIRE1 | Fire & Rescue Dist #1 Camano GEN | 1.2496603404 | $408,487 | $408,487 | $510.47 | | |
| FIRE1BOND | Fire & Rescue Dist #1 Camano BOND | 0.1630371212 | $408,487 | $408,487 | $66.60 | | |
| CE | County Current Expense | 0.3674210519 | $408,487 | $408,487 | $150.09 | | |
| CR | County Roads | 0.4614296361 | $408,487 | $408,487 | $188.49 | | |
| LIB | Library Sno-Isle GEN | 0.3039084203 | $408,487 | $408,487 | $124.14 | | |
| SCH205_401 | School 205-401 Enrichment | 1.3697998934 | $408,487 | $408,487 | $559.55 | | |
| SCH205BOND | School 205-401 BOND | 0.9354199323 | $408,487 | $408,487 | $382.11 | | |
| ST | State School | 1.4761226122 | $408,487 | $408,487 | $602.98 | | |
| ST2 | State School Part 2 | 0.7953803475 | $408,487 | $408,487 | $324.90 | | |
| | Total Tax Rate: | 7.6534262019 | | | | | |
| | | | | Taxes w/Current Exemptions: | $3,126.34 | | |
| | | | | Taxes w/o Exemptions: | $3,126.34 | | |
Improvement / Building
| Improvement #1: | MANUFACTURED HOME | State Code: | Y | 1188.0 sqft | Value: | $108,487 |
| Bathrooms: | 0 | Bedrooms: | 0 | | Ceiling: | PLASTER PAINTED | Cooling: | EVAP NO DUCT | | Exterior Wall/Cover: | VINYL | Floor Covering: | CARPET 100% | | Floor Structure: | SLAB ON GRADE | Foundation: | SLAB | | Heating: | FHA ELECTRIC | Interior Finish: | PLASTER | | Plumbing Fixture Cnt: | 1 | Roof Slope: | FLAT | | Roof Structure/Cover: | CJ ALUMINIUM HEAVY |   |   |
|
| | Type | Description | Class CD | Sub Class CD | Year Built | Area |
| | BAS | BASE/MAIN FLOOR | 4 | 0 | 1999 | 1188.0 |
| | CPD | OPEN CARPORT DIRT FLOOR | 4 | 0 | 1999 | 360.0 |
| | OWP | OPEN WOOD PORCH W/STEPS | 4 | 0 | 1999 | 220.0 |
Sketch
Property Image
Land
| 1 | 18 | AC (02.01-03.00) | 2.5000 | 108900.00 | 0.00 | 0.00 | 1.00 | $300,000 | $0 |
Roll Value History
| 2026 | N/A | N/A | N/A | N/A | N/A |
| 2025 | $108,487 | $300,000 | $0 | $408,487 | $408,487 |
| 2024 | $109,994 | $280,000 | $0 | $389,994 | $389,994 |
| 2023 | $98,262 | $270,000 | $0 | $368,262 | $368,262 |
| 2022 | $91,346 | $260,000 | $0 | $351,346 | $351,346 |
| 2021 | $64,995 | $180,000 | $0 | $244,995 | $244,995 |
| 2020 | $63,977 | $150,000 | $0 | $213,977 | $213,977 |
| 2019 | $51,776 | $200,000 | $0 | $251,776 | $251,776 |
| 2018 | $53,157 | $150,000 | $0 | $203,157 | $203,157 |
| 2017 | $54,536 | $135,000 | $0 | $189,536 | $189,536 |
| 2016 | $55,917 | $100,000 | $0 | $155,917 | $155,917 |
| 2015 | $49,807 | $83,328 | $0 | $133,135 | $133,135 |
| 2014 | $50,908 | $83,328 | $0 | $134,236 | $134,236 |
| 2013 | $52,009 | $83,328 | $0 | $135,337 | $135,337 |
| 2012 | $52,559 | $83,328 | $0 | $135,887 | $135,887 |
| 2011 | $53,109 | $104,160 | $0 | $157,269 | $157,269 |
| 2010 | $52,362 | $104,160 | $0 | $156,522 | $156,522 |
| 2009 | $58,511 | $150,000 | $0 | $208,511 | $208,511 |
| 2008 | $59,880 | $162,500 | $0 | $222,380 | $222,380 |
| 2007 | $61,217 | $162,500 | $0 | $223,717 | $223,717 |
Deed and Sales History
| 1 | 02/21/2003 | WD | Warranty Deed | CAIN, TIMOTHY F | MATHER, WILLIAM M | | | $147,665.00 | 30885 | 4049919 |
| 2 | 01/01/1900 | OTHER | Other - Misc. Documents | Unknown | CAIN, TIMOTHY F | | | $0.00 | 0 | 0 |
Payout Agreement
| No payout information available.. |