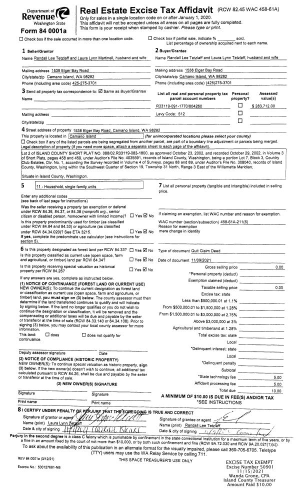
Property
Account |
| Property ID: | 804260 | Abbreviated Legal Description: | LOT 2 SP 88-02.33119.083-1800 V3 SP P458-9 AF#4035591 |
| Geographic ID: | R33119-091-1770 | Agent Code: | |
| Type: | Real | | |
| Tax Area: | 512 - APPRAISER-Stan/Cam Schl Dist, improved, greater than 1 acre | Land Use Code | 11 |
| Open Space: | N | DFL | N |
| Historic Property: | N | Remodel Property: | N |
| Multi-Family Redevelopment: | N | | |
| Township: | 31 | Section: | 19 |
| Range: | R3 |
Location |
| Address: | 1538 ELGER BAY RD CAMANO ISLAND, WA 98282 | Mapsco: | |
| Neighborhood: | Cycle 5 | Map ID: | 929 |
| Neighborhood CD: | 5 |
Owner |
| Name: | TETZLAFF, RANDALL LEE | Owner ID: | 301968 |
| Mailing Address: | LAURA LYNN TETZLAFF 1538 ELGER BAY RD CAMANO ISLAND, WA 98282 | % Ownership: | 100.0000000000% |
| | | Exemptions: | |
Taxes and Assessment Details
Values
| (+) Improvement Homesite Value: | + | $0 | |
| (+) Improvement Non-Homesite Value: | + | $147,340 | |
| (+) Land Homesite Value: | + | $0 | |
| (+) Land Non-Homesite Value: | + | $300,000 | |
| (+) Curr Use (HS): | + | $0 | $0 |
| (+) Curr Use (NHS): | + | $0 | $0 |
| | | -------------------------- | |
| (=) Market Value: | = | $447,340 | |
| (–) Productivity Loss: | – | $0 | |
| | | -------------------------- | |
| (=) Subtotal: | = | $447,340 | |
| (+) Senior Appraised Value: | + | $0 | |
| (+) Non-Senior Appraised Value: | + | $447,340 | |
| | | -------------------------- | |
| (=) Total Appraised Value: | = | $447,340 | |
| (–) Senior Exemption Loss: | – | $0 | |
| (–) Exemption Loss: | – | $0 | |
| | | -------------------------- | |
| (=) Taxable Value: | = | $447,340 | |
Taxing Jurisdiction
| Owner: | TETZLAFF, RANDALL LEE | | |
| % Ownership: | 100.0000000000% | | |
| Total Value: | $447,340 | | |
| Tax Area: | 512 - APPRAISER-Stan/Cam Schl Dist, improved, greater than 1 acre |
| CF | Conservation Futures | 0.0313996660 | $447,340 | $447,340 | $14.05 | | |
| EMS1 | Fire & Rescue Dist #1 Camano GEN (EMS) | 0.4998471806 | $447,340 | $447,340 | $223.60 | | |
| FIRE1 | Fire & Rescue Dist #1 Camano GEN | 1.2496603404 | $447,340 | $447,340 | $559.02 | | |
| FIRE1BOND | Fire & Rescue Dist #1 Camano BOND | 0.1630371212 | $447,340 | $447,340 | $72.93 | | |
| CE | County Current Expense | 0.3674210519 | $447,340 | $447,340 | $164.36 | | |
| CR | County Roads | 0.4614296361 | $447,340 | $447,340 | $206.42 | | |
| LIB | Library Sno-Isle GEN | 0.3039084203 | $447,340 | $447,340 | $135.95 | | |
| SCH205_401 | School 205-401 Enrichment | 1.3697998934 | $447,340 | $447,340 | $612.77 | | |
| SCH205BOND | School 205-401 BOND | 0.9354199323 | $447,340 | $447,340 | $418.45 | | |
| ST | State School | 1.4761226122 | $447,340 | $447,340 | $660.33 | | |
| ST2 | State School Part 2 | 0.7953803475 | $447,340 | $447,340 | $355.81 | | |
| | Total Tax Rate: | 7.6534262019 | | | | | |
| | | | | Taxes w/Current Exemptions: | $3,423.69 | | |
| | | | | Taxes w/o Exemptions: | $3,423.69 | | |
Improvement / Building
| Improvement #1: | MANUFACTURED HOME | State Code: | Y | 1188.0 sqft | Value: | $147,340 |
| Bathrooms: | 0 | Bedrooms: | 0 | | Ceiling: | PLASTER PAINTED | Cooling: | EVAP NO DUCT | | Exterior Wall/Cover: | VINYL | Floor Covering: | CARPET 100% | | Floor Structure: | SLAB ON GRADE | Foundation: | SLAB | | Heating: | FHA ELECTRIC | Interior Finish: | PLASTER | | Plumbing Fixture Cnt: | 1 | Roof Slope: | FLAT | | Roof Structure/Cover: | CJ ALUMINIUM HEAVY |   |   |
|
| | Type | Description | Class CD | Sub Class CD | Year Built | Area |
| | BAS | BASE/MAIN FLOOR | 4 | 0 | 2004 | 1188.0 |
| | OWP | OPEN WOOD PORCH W/STEPS | 4 | 0 | 2004 | 105.0 |
| | DGR | DETACHED GARAGE | 4 | 0 | 2004 | 768.0 |
| | DGR | DETACHED GARAGE | 4 | 0 | 2004 | 576.0 |
| | ATF | ATTIC FINISHED | 4 | 0 | 2004 | 576.0 |
| | CPD | OPEN CARPORT DIRT FLOOR | 4 | 0 | 2004 | 432.0 |
| | CPD | OPEN CARPORT DIRT FLOOR | 4 | 0 | 2004 | 432.0 |
| | BAW | BALCONY WOOD RAIL | 4 | 0 | 2004 | 40.0 |
Sketch
Property Image
Land
| 1 | 18 | AC (02.01-03.00) | 2.5000 | 108900.00 | 0.00 | 0.00 | 1.00 | $300,000 | $0 |
Roll Value History
| 2026 | N/A | N/A | N/A | N/A | N/A |
| 2025 | $147,340 | $300,000 | $0 | $447,340 | $447,340 |
| 2024 | $150,242 | $280,000 | $0 | $430,242 | $430,242 |
| 2023 | $138,186 | $270,000 | $0 | $408,186 | $408,186 |
| 2022 | $131,052 | $260,000 | $0 | $391,052 | $391,052 |
| 2021 | $103,712 | $180,000 | $0 | $283,712 | $283,712 |
| 2020 | $103,500 | $150,000 | $0 | $253,500 | $253,500 |
| 2019 | $91,037 | $200,000 | $0 | $291,037 | $291,037 |
| 2018 | $92,367 | $150,000 | $0 | $242,367 | $242,367 |
| 2017 | $93,696 | $135,000 | $0 | $228,696 | $228,696 |
| 2016 | $95,025 | $100,000 | $0 | $195,025 | $195,025 |
| 2015 | $77,329 | $83,328 | $0 | $160,657 | $160,657 |
| 2014 | $77,634 | $83,328 | $0 | $160,962 | $160,962 |
| 2013 | $78,243 | $83,328 | $0 | $161,571 | $161,571 |
| 2012 | $78,547 | $83,328 | $0 | $161,875 | $161,875 |
| 2011 | $79,156 | $104,160 | $0 | $183,316 | $183,316 |
| 2010 | $82,928 | $104,160 | $0 | $187,088 | $187,088 |
| 2009 | $74,294 | $150,839 | $0 | $225,133 | $225,133 |
| 2008 | $42,962 | $162,500 | $0 | $205,462 | $205,462 |
| 2007 | $44,291 | $162,500 | $0 | $206,791 | $206,791 |
Deed and Sales History
| 1 | 11/09/2021 | QCD | Quit Claim Deed | TETZLAFF, RANDALL LEE | TETZLAFF, RANDALL LEE | | | $0.00 | 50901 | 4533808 |
| 2 | 07/25/2018 | WD | Warranty Deed | ROBERTS, JASON | TETZLAFF, RANDALL LEE | | | $340,000.00 | 35209 | 4448882 |
| 3 | 03/23/2018 | QCD | Quit Claim Deed | ROBERTS, JASON | ROBERTS, JASON | | | $0.00 | 33560 | 4442033 |
| 4 | 05/18/2007 | QCD | Quit Claim Deed | ROBERTS, JASON | ROBERTS ET AL, JASON | | | $93,968.00 | 71802 | 4203367 |
| 5 | 05/24/2005 | WD | Warranty Deed | CAIN, TIMOTHY F | ROBERTS, JASON | | | $85,000.00 | 52378 | 4135635 |
| 6 | 01/01/1900 | OTHER | Other - Misc. Documents | Unknown | CAIN, TIMOTHY F | | | $0.00 | 0 | 0 |
Payout Agreement
| No payout information available.. |