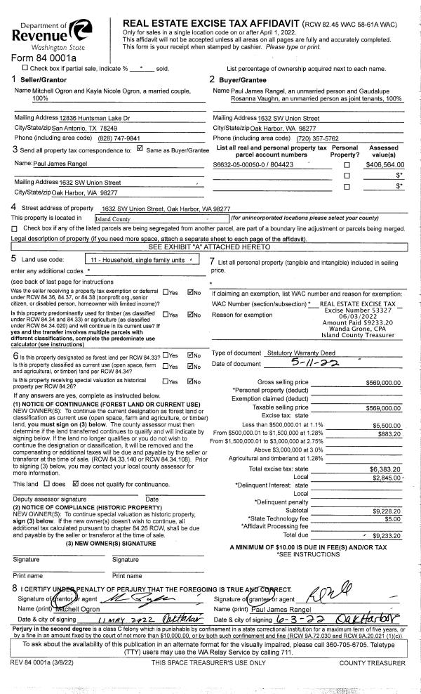
Property
Account |
| Property ID: | 804423 | Abbreviated Legal Description: | FIRESIDE #5 LOT 50 |
| Geographic ID: | S6632-05-00050-0 | Agent Code: | |
| Type: | Real | | |
| Tax Area: | 100 - APPRAISER-OH Schl Dist, in OH | Land Use Code | 11 |
| Open Space: | N | DFL | N |
| Historic Property: | N | Remodel Property: | N |
| Multi-Family Redevelopment: | N | | |
| Township: | | Section: | |
| Range: | |
Location |
| Address: | 1632 SW UNION ST OAK HARBOR, WA 98277 | Mapsco: | |
| Neighborhood: | Cycle 1 | Map ID: | 95 |
| Neighborhood CD: | 1 |
Owner |
| Name: | RANGEL, PAUL J | Owner ID: | 304576 |
| Mailing Address: | GUADALUPE ROSANNA VAUGHN 1632 SW UNION STREET OAK HARBOR, WA 98277 | % Ownership: | 100.0000000000% |
| | | Exemptions: | |
Taxes and Assessment Details
Values
| (+) Improvement Homesite Value: | + | $0 | |
| (+) Improvement Non-Homesite Value: | + | $354,225 | |
| (+) Land Homesite Value: | + | $0 | |
| (+) Land Non-Homesite Value: | + | $200,000 | |
| (+) Curr Use (HS): | + | $0 | $0 |
| (+) Curr Use (NHS): | + | $0 | $0 |
| | | -------------------------- | |
| (=) Market Value: | = | $554,225 | |
| (–) Productivity Loss: | – | $0 | |
| | | -------------------------- | |
| (=) Subtotal: | = | $554,225 | |
| (+) Senior Appraised Value: | + | $0 | |
| (+) Non-Senior Appraised Value: | + | $554,225 | |
| | | -------------------------- | |
| (=) Total Appraised Value: | = | $554,225 | |
| (–) Senior Exemption Loss: | – | $0 | |
| (–) Exemption Loss: | – | $0 | |
| | | -------------------------- | |
| (=) Taxable Value: | = | $554,225 | |
Taxing Jurisdiction
| Owner: | RANGEL, PAUL J | | |
| % Ownership: | 100.0000000000% | | |
| Total Value: | $554,225 | | |
| Tax Area: | 100 - APPRAISER-OH Schl Dist, in OH |
| CF | Conservation Futures | 0.0313996660 | $554,225 | $554,225 | $17.40 | | |
| CEM1 | Cemetery #1 | 0.0040018856 | $554,225 | $554,225 | $2.22 | | |
| COH | City of Oak Harbor | 2.3090730572 | $554,225 | $554,225 | $1,279.75 | | |
| OAKBOND | City of Oak Harbor BOND | 0.1902260131 | $554,225 | $554,225 | $105.43 | | |
| HOBOND | Hospital BOND | 0.1893405597 | $554,225 | $554,225 | $104.94 | | |
| HOGEN | Hospital GEN | 0.3848777722 | $554,225 | $554,225 | $213.31 | | |
| CE | County Current Expense | 0.3674210519 | $554,225 | $554,225 | $203.63 | | |
| ISLANDEMS | Hospital GEN (EMS) | 0.4952018576 | $554,225 | $554,225 | $274.45 | | |
| LIB | Library Sno-Isle GEN | 0.3039084203 | $554,225 | $554,225 | $168.43 | | |
| NWHIDPRMT | P & R N Whidbey GEN | 0.1990272349 | $554,225 | $554,225 | $110.31 | | |
| SCH201MO | School 201 Enrichment | 2.3851112745 | $554,225 | $554,225 | $1,321.89 | | |
| ST | State School | 1.4761226122 | $554,225 | $554,225 | $818.10 | | |
| ST2 | State School Part 2 | 0.7953803475 | $554,225 | $554,225 | $440.82 | | |
| | Total Tax Rate: | 9.1310917527 | | | | | |
| | | | | Taxes w/Current Exemptions: | $5,060.68 | | |
| | | | | Taxes w/o Exemptions: | $5,060.68 | | |
Improvement / Building
| Improvement #1: | RESIDENTIAL | State Code: | Y | 2156.0 sqft | Value: | $354,225 |
| Bathrooms: | 2.5 | Bedrooms: | 3 | | Ceiling: | DRYWALL PAINTED | Exterior Wall/Cover: | CEMENT FIBER | | Floor Covering: | CARPET/VINYL 20-80 | Floor Structure: | WOOD W/SUBFLOOR | | Foundation: | CONCRETE | Heating: | FHA GAS | | Interior Finish: | DRYWALL PAINT | Plumbing Fixture Cnt: | 11 | | Roof Slope: | 6" IN 12" | Roof Structure/Cover: | CJ ASPHALT |
|
| | Type | Description | Class CD | Sub Class CD | Year Built | Area |
| | BAS | BASE/MAIN FLOOR | 3 | 0 | 2003 | 1636.0 |
| | AGR | ATTACHED GARAGE | 3 | 0 | 2003 | 484.0 |
| | UPS | UPPER STORY | 3 | 0 | 2003 | 520.0 |
| | OWP | OPEN WOOD PORCH W/STEPS | 3 | 0 | 2003 | 250.0 |
| | OWC | OPEN WOOD PORCH W/STEPS/ROOF/C | 3 | 0 | 2003 | 84.0 |
Sketch
Property Image
Land
| 1 | 14 | SQ (08001-12000) | 0.0000 | 0.00 | 0.00 | 0.00 | 1.00 | $200,000 | $0 |
Roll Value History
| 2026 | N/A | N/A | N/A | N/A | N/A |
| 2025 | $354,225 | $200,000 | $0 | $554,225 | $554,225 |
| 2024 | $358,382 | $190,000 | $0 | $548,382 | $548,382 |
| 2023 | $362,536 | $180,000 | $0 | $542,536 | $542,536 |
| 2022 | $314,331 | $160,000 | $0 | $474,331 | $474,331 |
| 2021 | $276,564 | $130,000 | $0 | $406,564 | $406,564 |
| 2020 | $269,665 | $100,000 | $0 | $369,665 | $369,665 |
| 2019 | $231,831 | $150,000 | $0 | $381,831 | $381,831 |
| 2018 | $232,481 | $130,000 | $0 | $362,481 | $362,481 |
| 2017 | $223,445 | $120,000 | $0 | $343,445 | $343,445 |
| 2016 | $225,985 | $90,000 | $0 | $315,985 | $315,985 |
| 2015 | $228,524 | $70,000 | $0 | $298,524 | $298,524 |
| 2014 | $231,062 | $65,000 | $0 | $296,062 | $296,062 |
| 2013 | $233,601 | $65,000 | $0 | $298,601 | $298,601 |
| 2012 | $236,140 | $65,000 | $0 | $301,140 | $301,140 |
| 2011 | $252,891 | $45,000 | $0 | $297,891 | $297,891 |
| 2010 | $256,000 | $45,000 | $0 | $301,000 | $301,000 |
| 2009 | $273,540 | $75,000 | $0 | $348,540 | $348,540 |
| 2008 | $279,598 | $95,000 | $0 | $374,598 | $374,598 |
| 2007 | $279,998 | $95,000 | $0 | $374,998 | $374,998 |
Deed and Sales History
| 1 | 05/11/2022 | WD | Warranty Deed | OGRON, MITCHELL | RANGEL, PAUL J | | | $569,000.00 | 53327 | 4546127 |
| 2 | 09/19/2019 | WD | Warranty Deed | DOLAR, MARKPETER L | OGRON, MITCHELL | | | $365,000.00 | 40451 | 4472334 |
| 3 | 03/17/2016 | WD | Warranty Deed | MLEEK LLC | DOLAR, MARKPETER L | | | $335,000.00 | 23567 | 4396021 |
| 4 | 12/14/2015 | TRUSTEED | Trustee's Deed | WARD, AIDA R | MLEEK LLC | | | $0.00 | 22572 | 4391402 |
| 5 | 03/22/2004 | WD | Warranty Deed | PROCHASKA, CHARLES R | WARD, AIDA R | | | $259,950.00 | 41112 | 4094933 |
| 6 | 01/15/2003 | ESTSEPPROP | Establish Separate Property | PROCHASKA, CHARLES R | PROCHASKA, CHARLES R | | | $0.00 | 30306 | 4045671 |
| 7 | 01/15/2003 | WD | Warranty Deed | MKM ASSOCIATES, | PROCHASKA, CHARLES R | | | $55,000.00 | 30307 | 4045673 |
| 8 | 01/01/1900 | OTHER | Other - Misc. Documents | Unknown | MKM ASSOCIATES, | | | $0.00 | 0 | 0 |
Payout Agreement
| No payout information available.. |