Property
Account |
| Property ID: | 804453 | Abbreviated Legal Description: | FIRESIDE #5 LOT 80 |
| Geographic ID: | S6632-05-00080-0 | Agent Code: | |
| Type: | Real | | |
| Tax Area: | 100 - APPRAISER-OH Schl Dist, in OH | Land Use Code | 11 |
| Open Space: | N | DFL | N |
| Historic Property: | N | Remodel Property: | N |
| Multi-Family Redevelopment: | N | | |
| Township: | | Section: | |
| Range: | |
Location |
| Address: | 1706 SW SPRINGFIELD CT OAK HARBOR, WA 98277 | Mapsco: | |
| Neighborhood: | Cycle 1 | Map ID: | 95 |
| Neighborhood CD: | 1 |
Owner |
| Name: | LANG, CHARLES | Owner ID: | 306150 |
| Mailing Address: | WILLIAM HAMM CHRISTINE T HAMM 1706 SW SPRINGFIELD CT OAK HARBOR, WA 98277 | % Ownership: | 100.0000000000% |
| | | Exemptions: | |
Taxes and Assessment Details
Values
| (+) Improvement Homesite Value: | + | $0 | |
| (+) Improvement Non-Homesite Value: | + | $440,371 | |
| (+) Land Homesite Value: | + | $0 | |
| (+) Land Non-Homesite Value: | + | $200,000 | |
| (+) Curr Use (HS): | + | $0 | $0 |
| (+) Curr Use (NHS): | + | $0 | $0 |
| | | -------------------------- | |
| (=) Market Value: | = | $640,371 | |
| (–) Productivity Loss: | – | $0 | |
| | | -------------------------- | |
| (=) Subtotal: | = | $640,371 | |
| (+) Senior Appraised Value: | + | $0 | |
| (+) Non-Senior Appraised Value: | + | $640,371 | |
| | | -------------------------- | |
| (=) Total Appraised Value: | = | $640,371 | |
| (–) Senior Exemption Loss: | – | $0 | |
| (–) Exemption Loss: | – | $0 | |
| | | -------------------------- | |
| (=) Taxable Value: | = | $640,371 | |
Taxing Jurisdiction
| Owner: | LANG, CHARLES | | |
| % Ownership: | 100.0000000000% | | |
| Total Value: | $640,371 | | |
| Tax Area: | 100 - APPRAISER-OH Schl Dist, in OH |
| CF | Conservation Futures | 0.0313996660 | $640,371 | $640,371 | $20.11 | | |
| CEM1 | Cemetery #1 | 0.0040018856 | $640,371 | $640,371 | $2.56 | | |
| COH | City of Oak Harbor | 2.3090730572 | $640,371 | $640,371 | $1,478.66 | | |
| OAKBOND | City of Oak Harbor BOND | 0.1902260131 | $640,371 | $640,371 | $121.82 | | |
| HOBOND | Hospital BOND | 0.1893405597 | $640,371 | $640,371 | $121.25 | | |
| HOGEN | Hospital GEN | 0.3848777722 | $640,371 | $640,371 | $246.46 | | |
| CE | County Current Expense | 0.3674210519 | $640,371 | $640,371 | $235.29 | | |
| ISLANDEMS | Hospital GEN (EMS) | 0.4952018576 | $640,371 | $640,371 | $317.11 | | |
| LIB | Library Sno-Isle GEN | 0.3039084203 | $640,371 | $640,371 | $194.61 | | |
| NWHIDPRMT | P & R N Whidbey GEN | 0.1990272349 | $640,371 | $640,371 | $127.45 | | |
| SCH201MO | School 201 Enrichment | 2.3851112745 | $640,371 | $640,371 | $1,527.36 | | |
| ST | State School | 1.4761226122 | $640,371 | $640,371 | $945.27 | | |
| ST2 | State School Part 2 | 0.7953803475 | $640,371 | $640,371 | $509.34 | | |
| | Total Tax Rate: | 9.1310917527 | | | | | |
| | | | | Taxes w/Current Exemptions: | $5,847.29 | | |
| | | | | Taxes w/o Exemptions: | $5,847.29 | | |
Improvement / Building
| Improvement #1: | RESIDENTIAL | State Code: | Y | 2369.5 sqft | Value: | $440,371 |
| Bathrooms: | 2.5 | Bedrooms: | 5 | | Ceiling: | DRYWALL PAINTED | Exterior Wall/Cover: | CEMENT FIBER | | Floor Covering: | CERAMIC TILE/CPT 40-60 | Floor Structure: | WOOD W/SUBFLOOR | | Foundation: | CONCRETE | Heating: | FHA GAS | | Interior Finish: | DRYWALL PAINT | Plumbing Fixture Cnt: | 14 | | Roof Slope: | 5" IN 12" | Roof Structure/Cover: | CJ ASPHALT |
|
| | Type | Description | Class CD | Sub Class CD | Year Built | Area |
| | BAS | BASE/MAIN FLOOR | 3 | 0 | 2003 | 1425.5 |
| | OP3 | OPEN PORCH W/ROOF | 3 | 0 | 2003 | 144.0 |
| | OP4 | OPEN PORCH W/CEILING-ROOF | 3 | 0 | 2003 | 30.0 |
| | AGR | ATTACHED GARAGE | 3 | 0 | 2003 | 816.0 |
| | OWP | OPEN WOOD PORCH W/STEPS | 3 | 0 | 2003 | 408.0 |
| | UPS | UPPER STORY | 3 | 0 | 2003 | 944.0 |
Sketch
Property Image
Land
| 1 | 14 | SQ (08001-12000) | 0.0000 | 0.00 | 0.00 | 0.00 | 1.00 | $200,000 | $0 |
Roll Value History
| 2026 | N/A | N/A | N/A | N/A | N/A |
| 2025 | $440,371 | $200,000 | $0 | $640,371 | $640,371 |
| 2024 | $445,475 | $190,000 | $0 | $635,475 | $635,475 |
| 2023 | $435,264 | $180,000 | $0 | $615,264 | $615,264 |
| 2022 | $398,764 | $160,000 | $0 | $558,764 | $558,764 |
| 2021 | $350,764 | $130,000 | $0 | $480,764 | $480,764 |
| 2020 | $341,711 | $100,000 | $0 | $441,711 | $441,711 |
| 2019 | $262,038 | $150,000 | $0 | $412,038 | $412,038 |
| 2018 | $262,771 | $130,000 | $0 | $392,771 | $392,771 |
| 2017 | $250,385 | $120,000 | $0 | $370,385 | $370,385 |
| 2016 | $253,198 | $90,000 | $0 | $343,198 | $343,198 |
| 2015 | $256,013 | $70,000 | $0 | $326,013 | $326,013 |
| 2014 | $258,825 | $65,000 | $0 | $323,825 | $323,825 |
| 2013 | $261,638 | $65,000 | $0 | $326,638 | $326,638 |
| 2012 | $264,452 | $65,000 | $0 | $329,452 | $329,452 |
| 2011 | $305,162 | $45,000 | $0 | $350,162 | $350,162 |
| 2010 | $310,266 | $45,000 | $0 | $355,266 | $355,266 |
| 2009 | $323,407 | $75,000 | $0 | $398,407 | $398,407 |
| 2008 | $330,573 | $95,000 | $0 | $425,573 | $425,573 |
| 2007 | $331,098 | $95,000 | $0 | $426,098 | $426,098 |
Deed and Sales History
| 1 | 07/25/2024 | WD | Warranty Deed | HAMM, WILLIAM | HAMM, WILLIAM | | | $0.00 | 60795 | 4575265 |
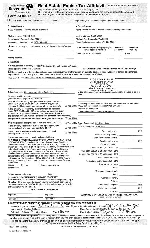
| 2 | 09/09/2022 | QCD | Quit Claim Deed | HAMM, CHRISTINE T | HAMM, WILLIAM | | | $0.00 | 54660 | 4551719 |
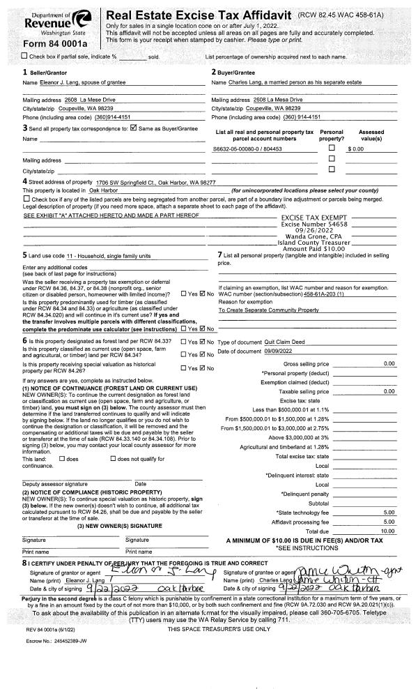
| 3 | 09/09/2022 | QCD | Quit Claim Deed | LANG, ELEANOR | LANG, CHARLES | | | $0.00 | 54658 | 4551718 |
| 4 | 09/16/2022 | WD | Warranty Deed | SCHULTZ, STEVEN J | LANG, CHARLES | | | $590,000.00 | 54657 | 4551717 |
| 5 | 03/01/2006 | WD | Warranty Deed | PADGETT, JEFFREY J | SCHULTZ, STEVEN J | | | $411,900.00 | 61049 | 4164436 |
| 6 | 07/18/2003 | WD | Warranty Deed | MAIN FRAME CONSTRUCTION INC, | PADGETT, JEFFREY J | | | $269,000.00 | 33134 | 4067724 |
| 7 | 03/03/2003 | WD | Warranty Deed | KRIEG, KARL C | MAIN FRAME CONSTRUCTION INC, | | | $50,000.00 | 30904 | 4050072 |
| 8 | 01/01/1900 | OTHER | Other - Misc. Documents | Unknown | KRIEG, KARL C | | | $0.00 | 0 | 0 |
Payout Agreement
| No payout information available.. |