Property
Account |
| Property ID: | 80450 | Abbreviated Legal Description: | 70 - N75' OF E/2 W/2 NE NW SE EX RD |
| Geographic ID: | R23114-269-3670 | Agent Code: | |
| Type: | Real | | |
| Tax Area: | 510 - APPRAISER-Stan/Cam Schl Dist, improved & 1 acre or less | Land Use Code | 11 |
| Open Space: | N | DFL | N |
| Historic Property: | N | Remodel Property: | N |
| Multi-Family Redevelopment: | N | | |
| Township: | 31 | Section: | 14 |
| Range: | R2 |
Location |
| Address: | 1005 CIRCLE DR CAMANO ISLAND, WA 98282 | Mapsco: | |
| Neighborhood: | Cycle 5 | Map ID: | 482 |
| Neighborhood CD: | 5 |
Owner |
| Name: | SCHALLERT, PATRICIA V M | Owner ID: | 290283 |
| Mailing Address: | 1005 CIRCLE DR CAMANO ISLAND, WA 98282 | % Ownership: | 100.0000000000% |
| | | Exemptions: | |
Taxes and Assessment Details
Values
| (+) Improvement Homesite Value: | + | N/A | |
| (+) Improvement Non-Homesite Value: | + | N/A | |
| (+) Land Homesite Value: | + | N/A | |
| (+) Land Non-Homesite Value: | + | N/A | Ag / Timber Use Value |
| (+) Curr Use (HS): | + | N/A | N/A |
| (+) Curr Use (NHS): | + | N/A | N/A |
| | | -------------------------- | |
| (=) Market Value: | = | N/A | |
| (–) Productivity Loss: | – | N/A | |
| | | -------------------------- | |
| (=) Subtotal: | = | N/A | |
| (+) Senior Appraised Value: | + | N/A | |
| (+) Non-Senior Appraised Value: | + | N/A | |
| | | -------------------------- | |
| (=) Total Appraised Value: | = | N/A | |
| (–) Senior Exemption Loss: | – | N/A | |
| (–) Exemption Loss: | – | N/A | |
| | | -------------------------- | |
| (=) Taxable Value: | = | N/A | |
Taxing Jurisdiction
| Owner: | SCHALLERT, PATRICIA V M | | |
| % Ownership: | 100.0000000000% | | |
| Total Value: | N/A | | |
| Tax Area: | 510 - APPRAISER-Stan/Cam Schl Dist, improved & 1 acre or less |
| CF | Conservation Futures | N/A | N/A | N/A | N/A | | |
| CCD | Camano Conservation District | N/A | N/A | N/A | N/A | | |
| EMS1 | Fire & Rescue Dist #1 Camano GEN (EMS) | N/A | N/A | N/A | N/A | | |
| FIRE1 | Fire & Rescue Dist #1 Camano GEN | N/A | N/A | N/A | N/A | | |
| FIRE1BOND | Fire & Rescue Dist #1 Camano BOND | N/A | N/A | N/A | N/A | | |
| CE | County Current Expense | N/A | N/A | N/A | N/A | | |
| CR | County Roads | N/A | N/A | N/A | N/A | | |
| LCIB | Library Sno-Isle BOND (Camano Island) | N/A | N/A | N/A | N/A | | |
| LIB | Library Sno-Isle GEN | N/A | N/A | N/A | N/A | | |
| SCH205_401 | School 205-401 Enrichment | N/A | N/A | N/A | N/A | | |
| SCH205BOND | School 205-401 BOND | N/A | N/A | N/A | N/A | | |
| ST | State School | N/A | N/A | N/A | N/A | | |
| ST2 | State School Part 2 | N/A | N/A | N/A | N/A | | |
| | Total Tax Rate: | N/A | | | | | |
| | | | | Taxes w/Current Exemptions: | N/A | | |
| | | | | Taxes w/o Exemptions: | N/A | | |
Improvement / Building
| Improvement #1: | RESIDENTIAL | State Code: | Y | 1546.0 sqft | Value: | N/A |
| Bathrooms: | 2 | Bedrooms: | 2 | | Ceiling: | DRYWALL PAINTED | Exterior Wall/Cover: | CEMENT FIBER | | Floor Covering: | CARPET/VINYL 60-40 | Floor Structure: | WOOD W/SUBFLOOR | | Foundation: | CONCRETE | Heating: | FHA GAS | | Interior Finish: | DRYWALL PAINT | Plumbing Fixture Cnt: | 9 | | Roof Slope: | 6" IN 12" | Roof Structure/Cover: | CJ ASPHALT |
|
| | Type | Description | Class CD | Sub Class CD | Year Built | Area |
| | BAS | BASE/MAIN FLOOR | 3 | 0 | 2019 | 1546.0 |
| | AGR | ATTACHED GARAGE | 3 | 0 | 2019 | 443.7 |
| | OWP | OPEN WOOD PORCH W/STEPS | 3 | 0 | 2019 | 144.0 |
| | OWC | OPEN WOOD PORCH W/STEPS/ROOF/C | 3 | 0 | 2019 | 137.2 |
Sketch
Property Image
Land
| 1 | 14 | SQ (08001-12000) | 0.2400 | 10454.40 | 0.00 | 0.00 | 1.00 | N/A | N/A |
Roll Value History
| 2026 | N/A | N/A | N/A | N/A | N/A |
| 2025 | $336,157 | $230,000 | $0 | $566,157 | $566,157 |
| 2024 | $338,846 | $220,000 | $0 | $558,846 | $558,846 |
| 2023 | $341,536 | $200,000 | $0 | $541,536 | $541,536 |
| 2022 | $312,495 | $200,000 | $0 | $512,495 | $512,495 |
| 2021 | $271,749 | $140,000 | $0 | $411,749 | $411,749 |
| 2020 | $266,434 | $120,000 | $0 | $386,434 | $386,434 |
| 2019 | $195,990 | $140,000 | $0 | $335,990 | $335,990 |
| 2018 | $0 | $7,000 | $0 | $7,000 | $7,000 |
| 2017 | $0 | $5,000 | $0 | $5,000 | $5,000 |
| 2016 | $0 | $5,000 | $0 | $5,000 | $5,000 |
| 2015 | $0 | $5,000 | $0 | $5,000 | $5,000 |
| 2014 | $0 | $5,000 | $0 | $5,000 | $5,000 |
| 2013 | $0 | $9,400 | $0 | $9,400 | $9,400 |
| 2012 | $0 | $9,400 | $0 | $9,400 | $9,400 |
| 2011 | $0 | $9,400 | $0 | $9,400 | $9,400 |
| 2010 | $0 | $9,400 | $0 | $9,400 | $9,400 |
| 2009 | $0 | $55,000 | $0 | $55,000 | $55,000 |
| 2008 | $0 | $15,246 | $0 | $15,246 | $15,246 |
| 2007 | $0 | $15,120 | $0 | $15,120 | $15,120 |
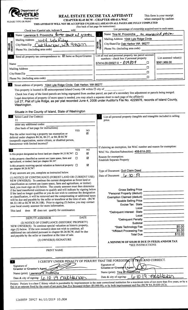
Deed and Sales History
| 1 | 06/10/2019 | WD | Warranty Deed | RAEBURN HOMES, LLC | SCHALLERT, PATRICIA V M | | | $389,000.00 | 38992 | 4465495 |
|   | |
| 2 | 06/28/2018 | WD | Warranty Deed | RIVERS, CELESTE | RAEBURN HOMES, LLC | | | $100,000.00 | 34791 | 4447182 |
|   | |
| 3 | 02/04/2011 | DECREE | Divorce Decree/Legal Separation | RIVERS, CELESTE | RIVERS, CELESTE | | | $0.00 | 5496 | 4300958 |
| 4 | 10/22/2002 | WD | Warranty Deed | WITHERS, JOHN/MARLENE | RIVERS, CELESTE | | | $7,463.00 | 24260 | 4035311 |
| 5 | 12/01/1997 | WD | Warranty Deed | Unknown | WITHERS, JOHN/MARLENE | | | $1,970.00 | 74416 | 97021191 |
| 6 | 12/01/1997 | WD | Warranty Deed | BEIDLEMAN, CATHERINE J | WITHERS, JOHN/MARLENE | | | $1,970.00 | 74416 | 97021191 |
| 7 | 07/01/1993 | OTHER | Other - Misc. Documents | BIEDLEMAN, WALTER C | BEIDLEMAN, CATHERINE J | | | $0.00 | 65457 | 0 |
| 8 | 02/01/1982 | EXECUTORD | Executor Deed | GREGOR, RAYMOND | BIEDLEMAN, WALTER C | | | $7,500.00 | 21766 | 398718 |
| 9 | 02/01/1980 | EXECUTORD | Executor Deed | SKILLE, ALETTE | GREGOR, RAYMOND | | | $4,000.00 | 820 | 366220 |
| 10 | 01/01/1900 | OTHER | Other - Misc. Documents | WITHERS, JOHN/MARLENE | SKILLE, ALETTE | | | $0.00 | 0 | 0 |
Payout Agreement
| No payout information available.. |