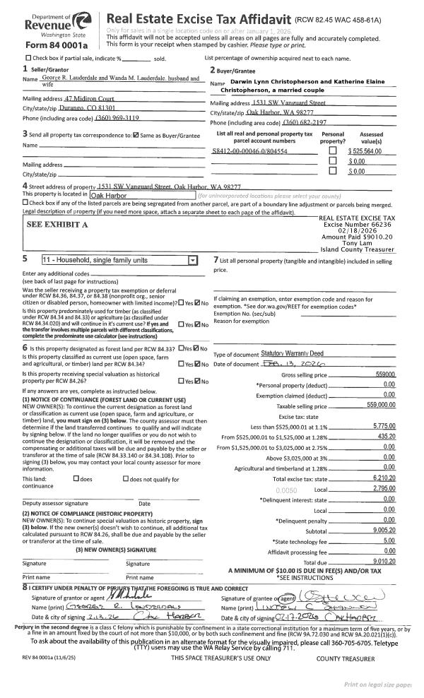
Property
Account |
| Property ID: | 804554 | Abbreviated Legal Description: | WHIDBEY GREEN PRD LOT 46 PHASE 1 & 2 |
| Geographic ID: | S8412-00-00046-0 | Agent Code: | |
| Type: | Real | | |
| Tax Area: | 100 - APPRAISER-OH Schl Dist, in OH | Land Use Code | 11 |
| Open Space: | N | DFL | N |
| Historic Property: | N | Remodel Property: | N |
| Multi-Family Redevelopment: | N | | |
| Township: | | Section: | |
| Range: | |
Location |
| Address: | 1531 SW VANGUARD ST OAK HARBOR, WA 98277 | Mapsco: | |
| Neighborhood: | Cycle 1 | Map ID: | 95 |
| Neighborhood CD: | 1 |
Owner |
| Name: | LAUDERDALE, GEORGE R | Owner ID: | 194242 |
| Mailing Address: | WANDA M LAUDERDALE 1531 SW VANGUARD ST OAK HARBOR, WA 98277-7136 | % Ownership: | 100.0000000000% |
| | | Exemptions: | |
Taxes and Assessment Details
Values
| (+) Improvement Homesite Value: | + | $0 | |
| (+) Improvement Non-Homesite Value: | + | $355,564 | |
| (+) Land Homesite Value: | + | $0 | |
| (+) Land Non-Homesite Value: | + | $170,000 | |
| (+) Curr Use (HS): | + | $0 | $0 |
| (+) Curr Use (NHS): | + | $0 | $0 |
| | | -------------------------- | |
| (=) Market Value: | = | $525,564 | |
| (–) Productivity Loss: | – | $0 | |
| | | -------------------------- | |
| (=) Subtotal: | = | $525,564 | |
| (+) Senior Appraised Value: | + | $0 | |
| (+) Non-Senior Appraised Value: | + | $525,564 | |
| | | -------------------------- | |
| (=) Total Appraised Value: | = | $525,564 | |
| (–) Senior Exemption Loss: | – | $0 | |
| (–) Exemption Loss: | – | $0 | |
| | | -------------------------- | |
| (=) Taxable Value: | = | $525,564 | |
Taxing Jurisdiction
| Owner: | LAUDERDALE, GEORGE R | | |
| % Ownership: | 100.0000000000% | | |
| Total Value: | $525,564 | | |
| Tax Area: | 100 - APPRAISER-OH Schl Dist, in OH |
| CF | Conservation Futures | 0.0313996660 | $525,564 | $525,564 | $16.50 | | |
| CEM1 | Cemetery #1 | 0.0040018856 | $525,564 | $525,564 | $2.10 | | |
| COH | City of Oak Harbor | 2.3090730572 | $525,564 | $525,564 | $1,213.57 | | |
| OAKBOND | City of Oak Harbor BOND | 0.1902260131 | $525,564 | $525,564 | $99.98 | | |
| HOBOND | Hospital BOND | 0.1893405597 | $525,564 | $525,564 | $99.51 | | |
| HOGEN | Hospital GEN | 0.3848777722 | $525,564 | $525,564 | $202.28 | | |
| CE | County Current Expense | 0.3674210519 | $525,564 | $525,564 | $193.10 | | |
| ISLANDEMS | Hospital GEN (EMS) | 0.4952018576 | $525,564 | $525,564 | $260.26 | | |
| LIB | Library Sno-Isle GEN | 0.3039084203 | $525,564 | $525,564 | $159.72 | | |
| NWHIDPRMT | P & R N Whidbey GEN | 0.1990272349 | $525,564 | $525,564 | $104.60 | | |
| SCH201MO | School 201 Enrichment | 2.3851112745 | $525,564 | $525,564 | $1,253.53 | | |
| ST | State School | 1.4761226122 | $525,564 | $525,564 | $775.80 | | |
| ST2 | State School Part 2 | 0.7953803475 | $525,564 | $525,564 | $418.02 | | |
| | Total Tax Rate: | 9.1310917527 | | | | | |
| | | | | Taxes w/Current Exemptions: | $4,798.97 | | |
| | | | | Taxes w/o Exemptions: | $4,798.97 | | |
Improvement / Building
| Improvement #1: | RESIDENTIAL | State Code: | Y | 1843.2 sqft | Value: | $355,564 |
| Bathrooms: | 2 | Bedrooms: | 3 | | Ceiling: | DRYWALL PAINTED | Exterior Wall/Cover: | PLY/HARDBOARD T-111 | | Floor Covering: | CARPET/VINYL 80-20 | Floor Structure: | WOOD W/SUBFLOOR | | Foundation: | CONCRETE | Heating: | FHA GAS | | Interior Finish: | DRYWALL PAINT | Plumbing Fixture Cnt: | 11 | | Roof Slope: | 8" IN 12" | Roof Structure/Cover: | CJ ASPHALT |
|
| | Type | Description | Class CD | Sub Class CD | Year Built | Area |
| | BAS | BASE/MAIN FLOOR | 3 | 0 | 2004 | 1843.2 |
| | OP4 | OPEN PORCH W/CEILING-ROOF | 3 | 0 | 2004 | 76.0 |
| | OP4 | OPEN PORCH W/CEILING-ROOF | 3 | 0 | 2004 | 96.0 |
| | AGR | ATTACHED GARAGE | 3 | 0 | 2004 | 594.0 |
Sketch
Property Image
Land
| 1 | 12 | SQ (00000-06000) | 0.0000 | 0.00 | 0.00 | 0.00 | 1.00 | $170,000 | $0 |
Roll Value History
| 2026 | N/A | N/A | N/A | N/A | N/A |
| 2025 | $355,564 | $170,000 | $0 | $525,564 | $525,564 |
| 2024 | $359,593 | $140,000 | $0 | $499,593 | $499,593 |
| 2023 | $357,009 | $130,000 | $0 | $487,009 | $487,009 |
| 2022 | $326,985 | $120,000 | $0 | $446,985 | $446,985 |
| 2021 | $287,552 | $70,000 | $0 | $357,552 | $357,552 |
| 2020 | $279,244 | $60,000 | $0 | $339,244 | $339,244 |
| 2019 | $208,415 | $120,000 | $0 | $328,415 | $328,415 |
| 2018 | $208,986 | $100,000 | $0 | $308,986 | $308,986 |
| 2017 | $182,928 | $90,000 | $0 | $272,928 | $272,928 |
| 2016 | $185,055 | $35,000 | $0 | $220,055 | $220,055 |
| 2015 | $187,182 | $35,000 | $0 | $222,182 | $222,182 |
| 2014 | $189,309 | $35,000 | $0 | $224,309 | $224,309 |
| 2013 | $191,436 | $35,000 | $0 | $226,436 | $226,436 |
| 2012 | $193,564 | $47,000 | $0 | $240,564 | $240,564 |
| 2011 | $196,488 | $47,000 | $0 | $243,488 | $243,488 |
| 2010 | $206,457 | $50,000 | $0 | $256,457 | $256,457 |
| 2009 | $217,104 | $75,000 | $0 | $292,104 | $292,104 |
| 2008 | $217,406 | $75,000 | $0 | $292,406 | $292,406 |
| 2007 | $219,863 | $50,000 | $0 | $269,863 | $269,863 |
Deed and Sales History
| 1 | 01/12/2005 | WD | Warranty Deed | WHIDBEY GREEN I & II LLC, | LAUDERDALE, GEORGE R | | | $273,747.00 | 50479 | 4125030 |
| 2 | 10/08/2003 | QCD | Quit Claim Deed | LANDED GENTRY DEVELOPMENT, INC | WHIDBEY GREEN I & II LLC, | | | $0.00 | 34563 | 4078514 |
| 3 | 01/01/1900 | OTHER | Other - Misc. Documents | Unknown | LANDED GENTRY DEVELOPMENT, INC | | | $0.00 | 0 | 0 |
Payout Agreement
| No payout information available.. |