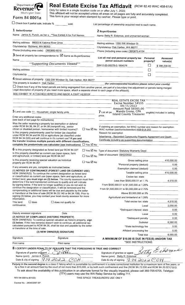
Property
Account |
| Property ID: | 804576 | Abbreviated Legal Description: | WHIDBEY GREEN PRD PHASE 1 & 2 LOT 78 |
| Geographic ID: | S8412-00-00078-0 | Agent Code: | |
| Type: | Real | | |
| Tax Area: | 100 - APPRAISER-OH Schl Dist, in OH | Land Use Code | 11 |
| Open Space: | N | DFL | N |
| Historic Property: | N | Remodel Property: | N |
| Multi-Family Redevelopment: | N | | |
| Township: | | Section: | |
| Range: | |
Location |
| Address: | 1300 SW WINDSOR ST OAK HARBOR, WA 98277 | Mapsco: | |
| Neighborhood: | Cycle 1 | Map ID: | 95 |
| Neighborhood CD: | 1 |
Owner |
| Name: | EIDSMOE, BETTY R. | Owner ID: | 306004 |
| Mailing Address: | 1300 SW WINDSOR ST OAK HARBOR, WA 98277 | % Ownership: | 100.0000000000% |
| | | Exemptions: | |
Taxes and Assessment Details
Values
| (+) Improvement Homesite Value: | + | $0 | |
| (+) Improvement Non-Homesite Value: | + | $302,770 | |
| (+) Land Homesite Value: | + | $0 | |
| (+) Land Non-Homesite Value: | + | $170,000 | |
| (+) Curr Use (HS): | + | $0 | $0 |
| (+) Curr Use (NHS): | + | $0 | $0 |
| | | -------------------------- | |
| (=) Market Value: | = | $472,770 | |
| (–) Productivity Loss: | – | $0 | |
| | | -------------------------- | |
| (=) Subtotal: | = | $472,770 | |
| (+) Senior Appraised Value: | + | $0 | |
| (+) Non-Senior Appraised Value: | + | $472,770 | |
| | | -------------------------- | |
| (=) Total Appraised Value: | = | $472,770 | |
| (–) Senior Exemption Loss: | – | $0 | |
| (–) Exemption Loss: | – | $0 | |
| | | -------------------------- | |
| (=) Taxable Value: | = | $472,770 | |
Taxing Jurisdiction
| Owner: | EIDSMOE, BETTY R. | | |
| % Ownership: | 100.0000000000% | | |
| Total Value: | $472,770 | | |
| Tax Area: | 100 - APPRAISER-OH Schl Dist, in OH |
| CF | Conservation Futures | 0.0313996660 | $472,770 | $472,770 | $14.84 | | |
| CEM1 | Cemetery #1 | 0.0040018856 | $472,770 | $472,770 | $1.89 | | |
| COH | City of Oak Harbor | 2.3090730572 | $472,770 | $472,770 | $1,091.66 | | |
| OAKBOND | City of Oak Harbor BOND | 0.1902260131 | $472,770 | $472,770 | $89.93 | | |
| HOBOND | Hospital BOND | 0.1893405597 | $472,770 | $472,770 | $89.51 | | |
| HOGEN | Hospital GEN | 0.3848777722 | $472,770 | $472,770 | $181.96 | | |
| CE | County Current Expense | 0.3674210519 | $472,770 | $472,770 | $173.71 | | |
| ISLANDEMS | Hospital GEN (EMS) | 0.4952018576 | $472,770 | $472,770 | $234.12 | | |
| LIB | Library Sno-Isle GEN | 0.3039084203 | $472,770 | $472,770 | $143.68 | | |
| NWHIDPRMT | P & R N Whidbey GEN | 0.1990272349 | $472,770 | $472,770 | $94.09 | | |
| SCH201MO | School 201 Enrichment | 2.3851112745 | $472,770 | $472,770 | $1,127.61 | | |
| ST | State School | 1.4761226122 | $472,770 | $472,770 | $697.87 | | |
| ST2 | State School Part 2 | 0.7953803475 | $472,770 | $472,770 | $376.03 | | |
| | Total Tax Rate: | 9.1310917527 | | | | | |
| | | | | Taxes w/Current Exemptions: | $4,316.90 | | |
| | | | | Taxes w/o Exemptions: | $4,316.90 | | |
Improvement / Building
| Improvement #1: | RESIDENTIAL | State Code: | Y | 1283.6 sqft | Value: | $302,770 |
| Bathrooms: | 2 | Bedrooms: | 2 | | Ceiling: | DRYWALL PAINTED | Exterior Wall/Cover: | PLY/HARDBOARD T-111 | | Floor Covering: | CARPET/VINYL 80-20 | Floor Structure: | WOOD W/SUBFLOOR | | Foundation: | CONCRETE | Heating: | FHA GAS | | Interior Finish: | DRYWALL PAINT | Plumbing Fixture Cnt: | 10 | | Roof Slope: | 8" IN 12" | Roof Structure/Cover: | CJ ASPHALT |
|
| | Type | Description | Class CD | Sub Class CD | Year Built | Area |
| | BAS | BASE/MAIN FLOOR | 3 | 0 | 2003 | 1283.6 |
| | OP4 | OPEN PORCH W/CEILING-ROOF | 3 | 0 | 2003 | 107.2 |
| | AGR | ATTACHED GARAGE | 3 | 0 | 2003 | 533.9 |
| | ENP | ENCLOSED PORCH | 3 | 0 | 2003 | 104.4 |
Sketch
Property Image
Land
| 1 | 12 | SQ (00000-06000) | 0.0000 | 0.00 | 0.00 | 0.00 | 1.00 | $170,000 | $0 |
Roll Value History
| 2026 | N/A | N/A | N/A | N/A | N/A |
| 2025 | $302,770 | $170,000 | $0 | $472,770 | $472,770 |
| 2024 | $306,201 | $140,000 | $0 | $446,201 | $446,201 |
| 2023 | $303,800 | $130,000 | $0 | $433,800 | $433,800 |
| 2022 | $278,258 | $120,000 | $0 | $398,258 | $398,258 |
| 2021 | $244,697 | $70,000 | $0 | $314,697 | $314,697 |
| 2020 | $237,126 | $60,000 | $0 | $297,126 | $297,126 |
| 2019 | $169,056 | $120,000 | $0 | $289,056 | $289,056 |
| 2018 | $169,519 | $100,000 | $0 | $269,519 | $269,519 |
| 2017 | $157,384 | $90,000 | $0 | $247,384 | $247,384 |
| 2016 | $159,235 | $35,000 | $0 | $194,235 | $194,235 |
| 2015 | $161,086 | $35,000 | $0 | $196,086 | $196,086 |
| 2014 | $162,938 | $35,000 | $0 | $197,938 | $197,938 |
| 2013 | $164,791 | $35,000 | $0 | $199,791 | $199,791 |
| 2012 | $200,365 | $47,000 | $0 | $247,365 | $247,365 |
| 2011 | $202,965 | $47,000 | $0 | $249,965 | $249,965 |
| 2010 | $211,901 | $50,000 | $0 | $261,901 | $261,901 |
| 2009 | $220,801 | $75,000 | $0 | $295,801 | $295,801 |
| 2008 | $225,698 | $75,000 | $0 | $300,698 | $300,698 |
| 2007 | $226,126 | $50,000 | $0 | $276,126 | $276,126 |
Deed and Sales History
| 1 | 09/02/2022 | WD | Warranty Deed | PUNCH, THOMAS R | EIDSMOE, BETTY R. | | | $410,000.00 | 54535 | 4551214 |
| 2 | 04/25/2018 | WD | Warranty Deed | VAN DUSEN, MARGARET A | PUNCH, THOMAS R | | | $269,900.00 | 33855 | 4443373 |
| 3 | 01/22/2013 | WD | Warranty Deed | FIKSE TRUSTEES, GERALD G | VAN DUSEN, MARGARET A | | | $229,000.00 | 10192 | 4331857 |
| 4 | 02/22/2006 | WD | Warranty Deed | STOREY, WILLIAM J | FKSKE TRUSTEES, GERALD G | | | $290,000.00 | 60790 | 4163062 |
| 5 | 11/18/2003 | WD | Warranty Deed | LANDED GENTRY DEVELOPMENT, INC | STOREY, WILLIAM J | | | $211,534.00 | 35325 | 4084238 |
| 6 | 01/01/1900 | OTHER | Other - Misc. Documents | Unknown | LANDED GENTRY DEVELOPMENT, INC | | | $0.00 | 0 | 0 |
Payout Agreement
| No payout information available.. |