Property
Account |
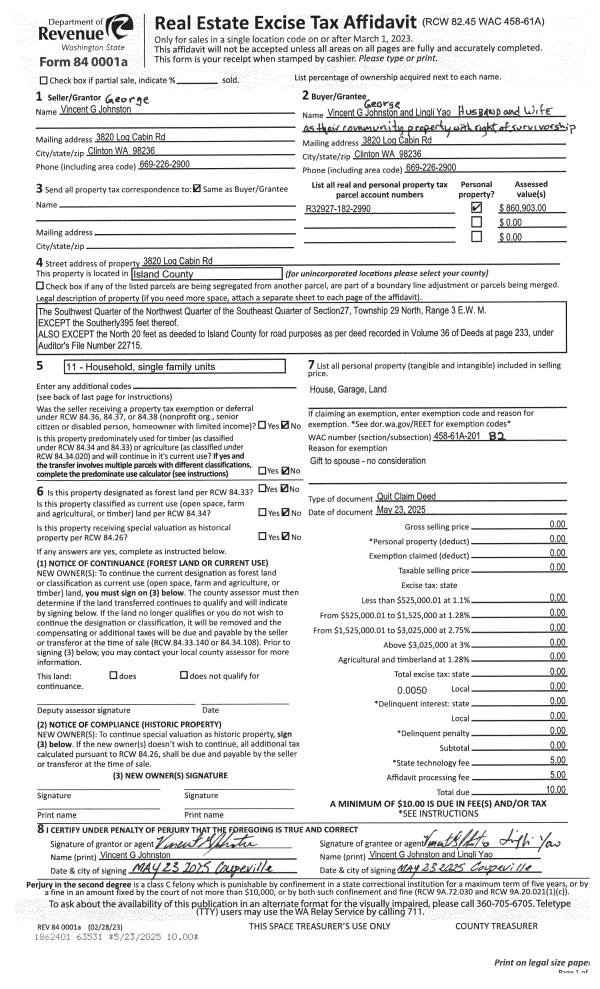
| Property ID: | 804592 | Abbreviated Legal Description: | SW NW SE EX SLY 395' EX N20' FOR RD |
| Geographic ID: | R32927-182-2990 | Agent Code: | |
| Type: | Real | | |
| Tax Area: | 712 - APPRAISER-S Whid Schl Dist, outside Langley, improved, greater than 1 acre | Land Use Code | 11 |
| Open Space: | N | DFL | N |
| Historic Property: | N | Remodel Property: | N |
| Multi-Family Redevelopment: | N | | |
| Township: | 29 | Section: | 27 |
| Range: | R3 |
Location |
| Address: | 3820 LOG CABIN RD CLINTON, WA 98236 | Mapsco: | |
| Neighborhood: | Cycle 4 | Map ID: | 821 |
| Neighborhood CD: | 4 |
Owner |
| Name: | JOHNSON, VINCENT GEORGE | Owner ID: | 316572 |
| Mailing Address: | LINGLI YAO 3820 LOG CABIN RD CLINTON, WA 98236 | % Ownership: | 100.0000000000% |
| | | Exemptions: | |
Taxes and Assessment Details
Values
| (+) Improvement Homesite Value: | + | $0 | |
| (+) Improvement Non-Homesite Value: | + | $465,567 | |
| (+) Land Homesite Value: | + | $0 | |
| (+) Land Non-Homesite Value: | + | $420,000 | |
| (+) Curr Use (HS): | + | $0 | $0 |
| (+) Curr Use (NHS): | + | $0 | $0 |
| | | -------------------------- | |
| (=) Market Value: | = | $885,567 | |
| (–) Productivity Loss: | – | $0 | |
| | | -------------------------- | |
| (=) Subtotal: | = | $885,567 | |
| (+) Senior Appraised Value: | + | $0 | |
| (+) Non-Senior Appraised Value: | + | $885,567 | |
| | | -------------------------- | |
| (=) Total Appraised Value: | = | $885,567 | |
| (–) Senior Exemption Loss: | – | $0 | |
| (–) Exemption Loss: | – | $0 | |
| | | -------------------------- | |
| (=) Taxable Value: | = | $885,567 | |
Taxing Jurisdiction
| Owner: | JOHNSON, VINCENT GEORGE | | |
| % Ownership: | 100.0000000000% | | |
| Total Value: | $885,567 | | |
| Tax Area: | 712 - APPRAISER-S Whid Schl Dist, outside Langley, improved, greater than 1 acre |
| CF | Conservation Futures | 0.0313996660 | $885,567 | $885,567 | $27.81 | | |
| FIRE3 | Fire & Rescue Dist #3 S Whidbey GEN | 1.2130821753 | $885,567 | $885,567 | $1,074.27 | | |
| HOBOND | Hospital BOND | 0.1893405597 | $885,567 | $885,567 | $167.67 | | |
| HOGEN | Hospital GEN | 0.3848777722 | $885,567 | $885,567 | $340.84 | | |
| CE | County Current Expense | 0.3674210519 | $885,567 | $885,567 | $325.38 | | |
| CR | County Roads | 0.4614296361 | $885,567 | $885,567 | $408.63 | | |
| ISLANDEMS | Hospital GEN (EMS) | 0.4952018576 | $885,567 | $885,567 | $438.53 | | |
| LIB | Library Sno-Isle GEN | 0.3039084203 | $885,567 | $885,567 | $269.13 | | |
| PORTWHID | Port of S Whidbey GEN | 0.1086004714 | $885,567 | $885,567 | $96.17 | | |
| SCH206BOND | School 206 BOND | 0.5960237832 | $885,567 | $885,567 | $527.82 | | |
| SCH206CAP | School 206 CP | 0.3066144020 | $885,567 | $885,567 | $271.53 | | |
| SCH206MO | School 206 Enrichment | 0.4808755445 | $885,567 | $885,567 | $425.85 | | |
| ST | State School | 1.4761226122 | $885,567 | $885,567 | $1,307.21 | | |
| ST2 | State School Part 2 | 0.7953803475 | $885,567 | $885,567 | $704.36 | | |
| SWHIDPRBD | P & R S Whidbey BOND | 0.0144185398 | $885,567 | $885,567 | $12.77 | | |
| SWHIDPRBD3 | P & R S Whidbey BOND3 | 0.1483535547 | $885,567 | $885,567 | $131.38 | | |
| SWHIDPRMT | P & R S Whidbey GEN | 0.4600000000 | $885,567 | $885,567 | $407.36 | | |
| | Total Tax Rate: | 7.8330503944 | | | | | |
| | | | | Taxes w/Current Exemptions: | $6,936.71 | | |
| | | | | Taxes w/o Exemptions: | $6,936.71 | | |
Improvement / Building
| Improvement #1: | RESIDENTIAL | State Code: | Y | 2476.0 sqft | Value: | $465,567 |
| Bathrooms: | 2.5 | Bedrooms: | 3 | | Ceiling: | DRYWALL PAINTED | Exterior Wall/Cover: | CEMENT FIBER | | Floor Covering: | HARDWOOD/CARP 80-20 | Floor Structure: | WOOD W/SUBFLOOR | | Foundation: | CONCRETE | Heating: | FHA GAS | | Interior Finish: | DRYWALL PAINT | Plumbing Fixture Cnt: | 11 | | Roof Slope: | 12" IN 12" | Roof Structure/Cover: | CJ ASPHALT |
|
| | Type | Description | Class CD | Sub Class CD | Year Built | Area |
| | BAS | BASE/MAIN FLOOR | 3 | 0 | 2005 | 908.0 |
| | DWN | DOWNSTAIRS LIVING AREA | 3 | 0 | 2005 | 672.0 |
| | OP1 | OPEN PORCH SLAB | 3 | 0 | 2005 | 170.0 |
| | UPS | UPPER STORY | 3 | 0 | 2005 | 896.0 |
| | OWP | OPEN WOOD PORCH W/STEPS | 3 | 0 | 2005 | 60.0 |
| | OWP | OPEN WOOD PORCH W/STEPS | 3 | 0 | 2005 | 60.0 |
| | OWC | OPEN WOOD PORCH W/STEPS/ROOF/C | 3 | 0 | 2005 | 640.0 |
| | DGR | DETACHED GARAGE | 3 | 0 | 2005 | 1152.0 |
Sketch
Property Image
Land
| 1 | 32 | AC (03.01-09.99) | 3.7000 | 0.00 | 0.00 | 0.00 | 1.00 | $420,000 | $0 |
Roll Value History
| 2026 | N/A | N/A | N/A | N/A | N/A |
| 2025 | $465,567 | $420,000 | $0 | $885,567 | $885,567 |
| 2024 | $470,903 | $390,000 | $0 | $860,903 | $860,903 |
| 2023 | $470,585 | $350,000 | $0 | $820,585 | $820,585 |
| 2022 | $383,223 | $350,000 | $0 | $733,223 | $733,223 |
| 2021 | $336,203 | $280,000 | $0 | $616,203 | $616,203 |
| 2020 | $315,438 | $260,000 | $0 | $575,438 | $575,438 |
| 2019 | $234,924 | $300,000 | $0 | $534,924 | $534,924 |
| 2018 | $235,560 | $250,000 | $0 | $485,560 | $485,560 |
| 2017 | $236,834 | $200,000 | $0 | $436,834 | $436,834 |
| 2016 | $239,383 | $165,000 | $0 | $404,383 | $404,383 |
| 2015 | $241,933 | $135,000 | $0 | $376,933 | $376,933 |
| 2014 | $245,835 | $162,800 | $0 | $408,635 | $408,635 |
| 2013 | $248,450 | $162,800 | $0 | $411,250 | $411,250 |
| 2012 | $251,063 | $162,800 | $0 | $413,863 | $413,863 |
| 2011 | $253,679 | $162,800 | $0 | $416,479 | $416,479 |
| 2010 | $262,914 | $162,800 | $0 | $425,714 | $425,714 |
| 2009 | $271,306 | $203,500 | $0 | $474,806 | $474,806 |
| 2008 | $274,561 | $203,500 | $0 | $478,061 | $478,061 |
| 2007 | $277,790 | $203,500 | $0 | $481,290 | $481,290 |
Deed and Sales History
| 1 | 05/23/2025 | QCD | Quit Claim Deed | JOHNSTON, VINCENT GEORGE | JOHNSON, VINCENT GEORGE | | | $0.00 | 63531 | 4586144 |
| 2 | 11/15/2017 | QCD | Quit Claim Deed | JOHNSTON, VINCENT G | JOHNSTON, VINCENT GEORGE | | | $0.00 | 32747 | 4438171 |
| 3 | 01/12/2004 | WD | Warranty Deed | MERGENS CONSTRUCTION INC, | JOHNSTON, VINCENT G | | | $140,000.00 | 40182 | 4088606 |
| 4 | 06/30/2003 | BLA | DNU - Boundary Line Adjustment | Unknown | MERGENS CONSTRUCTION INC, | | | $0.00 | 69912 | 4018606 |
Payout Agreement
| No payout information available.. |