Property
Account |
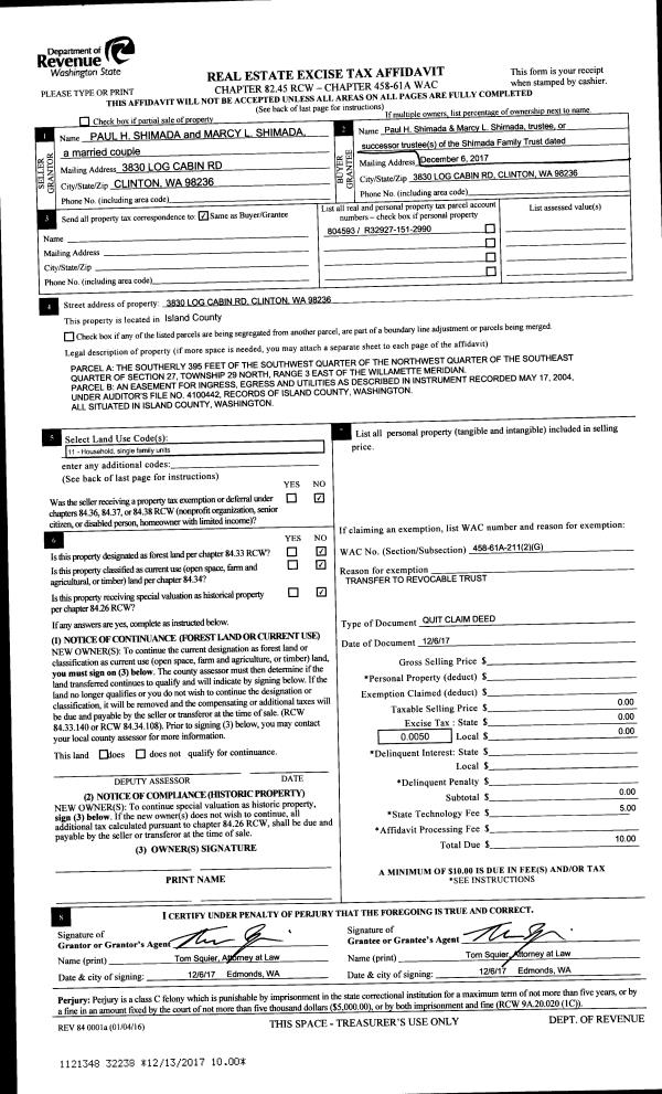
| Property ID: | 804593 | Abbreviated Legal Description: | SLY 395' OF SW NW SE |
| Geographic ID: | R32927-151-2990 | Agent Code: | |
| Type: | Real | | |
| Tax Area: | 712 - APPRAISER-S Whid Schl Dist, outside Langley, improved, greater than 1 acre | Land Use Code | 11 |
| Open Space: | N | DFL | N |
| Historic Property: | N | Remodel Property: | N |
| Multi-Family Redevelopment: | N | | |
| Township: | 29 | Section: | 27 |
| Range: | R3 |
Location |
| Address: | 3830 LOG CABIN RD CLINTON, WA 98236 | Mapsco: | |
| Neighborhood: | Cycle 4 | Map ID: | 821 |
| Neighborhood CD: | 4 |
Owner |
| Name: | SHIMADA TRUSTEE, PAUL H | Owner ID: | 283237 |
| Mailing Address: | MARCY L SHIMADA TRUSTEE 3830 LOG CABIN RD CLINTON, WA 98236 | % Ownership: | 100.0000000000% |
| | | Exemptions: | |
Taxes and Assessment Details
Values
| (+) Improvement Homesite Value: | + | $0 | |
| (+) Improvement Non-Homesite Value: | + | $592,143 | |
| (+) Land Homesite Value: | + | $0 | |
| (+) Land Non-Homesite Value: | + | $420,000 | |
| (+) Curr Use (HS): | + | $0 | $0 |
| (+) Curr Use (NHS): | + | $0 | $0 |
| | | -------------------------- | |
| (=) Market Value: | = | $1,012,143 | |
| (–) Productivity Loss: | – | $0 | |
| | | -------------------------- | |
| (=) Subtotal: | = | $1,012,143 | |
| (+) Senior Appraised Value: | + | $0 | |
| (+) Non-Senior Appraised Value: | + | $1,012,143 | |
| | | -------------------------- | |
| (=) Total Appraised Value: | = | $1,012,143 | |
| (–) Senior Exemption Loss: | – | $0 | |
| (–) Exemption Loss: | – | $0 | |
| | | -------------------------- | |
| (=) Taxable Value: | = | $1,012,143 | |
Taxing Jurisdiction
| Owner: | SHIMADA TRUSTEE, PAUL H | | |
| % Ownership: | 100.0000000000% | | |
| Total Value: | $1,012,143 | | |
| Tax Area: | 712 - APPRAISER-S Whid Schl Dist, outside Langley, improved, greater than 1 acre |
| CF | Conservation Futures | 0.0313996660 | $1,012,143 | $1,012,143 | $31.78 | | |
| FIRE3 | Fire & Rescue Dist #3 S Whidbey GEN | 1.2130821753 | $1,012,143 | $1,012,143 | $1,227.81 | | |
| HOBOND | Hospital BOND | 0.1893405597 | $1,012,143 | $1,012,143 | $191.64 | | |
| HOGEN | Hospital GEN | 0.3848777722 | $1,012,143 | $1,012,143 | $389.55 | | |
| CE | County Current Expense | 0.3674210519 | $1,012,143 | $1,012,143 | $371.88 | | |
| CR | County Roads | 0.4614296361 | $1,012,143 | $1,012,143 | $467.03 | | |
| ISLANDEMS | Hospital GEN (EMS) | 0.4952018576 | $1,012,143 | $1,012,143 | $501.22 | | |
| LIB | Library Sno-Isle GEN | 0.3039084203 | $1,012,143 | $1,012,143 | $307.60 | | |
| PORTWHID | Port of S Whidbey GEN | 0.1086004714 | $1,012,143 | $1,012,143 | $109.92 | | |
| SCH206BOND | School 206 BOND | 0.5960237832 | $1,012,143 | $1,012,143 | $603.26 | | |
| SCH206CAP | School 206 CP | 0.3066144020 | $1,012,143 | $1,012,143 | $310.34 | | |
| SCH206MO | School 206 Enrichment | 0.4808755445 | $1,012,143 | $1,012,143 | $486.71 | | |
| ST | State School | 1.4761226122 | $1,012,143 | $1,012,143 | $1,494.05 | | |
| ST2 | State School Part 2 | 0.7953803475 | $1,012,143 | $1,012,143 | $805.04 | | |
| SWHIDPRBD | P & R S Whidbey BOND | 0.0144185398 | $1,012,143 | $1,012,143 | $14.59 | | |
| SWHIDPRBD3 | P & R S Whidbey BOND3 | 0.1483535547 | $1,012,143 | $1,012,143 | $150.16 | | |
| SWHIDPRMT | P & R S Whidbey GEN | 0.4600000000 | $1,012,143 | $1,012,143 | $465.59 | | |
| | Total Tax Rate: | 7.8330503944 | | | | | |
| | | | | Taxes w/Current Exemptions: | $7,928.17 | | |
| | | | | Taxes w/o Exemptions: | $7,928.17 | | |
Improvement / Building
| Improvement #1: | RESIDENTIAL | State Code: | Y | 3231.8 sqft | Value: | $592,143 |
| Bathrooms: | 3.5 | Bedrooms: | 4 | | Ceiling: | DRYWALL PAINTED | Cooling: | HEAT PUMP/CONV/V | | Exterior Wall/Cover: | CEMENT FIBER | Floor Covering: | HARDWOOD/CARP 60-40 | | Floor Structure: | WOOD W/SUBFLOOR | Foundation: | CONCRETE | | Interior Finish: | DRYWALL PAINT | Plumbing Fixture Cnt: | 15 | | Roof Slope: | 8" IN 12" | Roof Structure/Cover: | CJ ASPHALT |
|
| | Type | Description | Class CD | Sub Class CD | Year Built | Area |
| | BAS | BASE/MAIN FLOOR | 4 | 0 | 2005 | 1173.5 |
| | OP2 | OPEN PORCH W/STEPS | 4 | 0 | 2005 | 265.0 |
| | BIG | BUILT IN GARAGE | 4 | 0 | 2005 | 768.0 |
| | UPS | UPPER STORY | 4 | 0 | 2005 | 1029.0 |
| | OWP | OPEN WOOD PORCH W/STEPS | 4 | 0 | 2005 | 219.0 |
| | OWR | OPEN WOOD PORCH W/STEPS/ROOF | 4 | 0 | 2005 | 36.0 |
| | DWN | DOWNSTAIRS LIVING AREA | 4 | 0 | 2005 | 1029.3 |
| | OCP | OPEN CARPORT | 4 | 0 | 2005 | 360.0 |
| | oPOL | POLE BARN | 4 | 0 | 2005 | 1080.0 |
| | CPD | OPEN CARPORT DIRT FLOOR | 4 | 0 | 2005 | 360.0 |
| | CPD | OPEN CARPORT DIRT FLOOR | 4 | 0 | 2005 | 432.0 |
Sketch
Property Image
Land
| 1 | 32 | AC (03.01-09.99) | 6.2500 | 0.00 | 0.00 | 0.00 | 1.00 | $420,000 | $0 |
Roll Value History
| 2026 | N/A | N/A | N/A | N/A | N/A |
| 2025 | $592,143 | $420,000 | $0 | $1,012,143 | $1,012,143 |
| 2024 | $598,584 | $390,000 | $0 | $988,584 | $988,584 |
| 2023 | $605,027 | $350,000 | $0 | $955,027 | $955,027 |
| 2022 | $555,078 | $350,000 | $0 | $905,078 | $905,078 |
| 2021 | $487,637 | $280,000 | $0 | $767,637 | $767,637 |
| 2020 | $451,001 | $260,000 | $0 | $711,001 | $711,001 |
| 2019 | $320,656 | $300,000 | $0 | $620,656 | $620,656 |
| 2018 | $321,563 | $250,000 | $0 | $571,563 | $571,563 |
| 2017 | $323,369 | $200,000 | $0 | $523,369 | $523,369 |
| 2016 | $326,974 | $165,000 | $0 | $491,974 | $491,974 |
| 2015 | $330,581 | $165,000 | $0 | $495,581 | $495,581 |
| 2014 | $334,670 | $200,000 | $0 | $534,670 | $534,670 |
| 2013 | $338,356 | $200,000 | $0 | $538,356 | $538,356 |
| 2012 | $342,043 | $200,000 | $0 | $542,043 | $542,043 |
| 2011 | $345,731 | $200,000 | $0 | $545,731 | $545,731 |
| 2010 | $356,658 | $200,000 | $0 | $556,658 | $556,658 |
| 2009 | $367,704 | $312,500 | $0 | $680,204 | $680,204 |
| 2008 | $368,772 | $263,750 | $0 | $632,522 | $632,522 |
| 2007 | $372,671 | $263,750 | $0 | $636,421 | $636,421 |
Deed and Sales History
| 1 | 12/06/2017 | QCD | Quit Claim Deed | SHIMADA, PAUL H | SHIMADA TRUSTEE, PAUL H | | | $0.00 | 32238 | 4435619 |
| 2 | 02/23/2004 | WD | Warranty Deed | MERGENS CONSTRUCTION INC, | SHIMADA, PAUL H | | | $145,000.00 | 40836 | 4093198 |
| 3 | 06/30/2003 | BLA | DNU - Boundary Line Adjustment | Unknown | MERGENS CONSTRUCTION INC, | | | $0.00 | 69912 | 4018606 |
Payout Agreement
| No payout information available.. |