Property
Account |
| Property ID: | 804635 | Abbreviated Legal Description: | IN GL2: BG WLN EXIST 40' RD R/W DESC AF#194102 ON SLN GL2 NLY ALG SD RD TP 100'N OF SLN GL2 W TO ML SWLY ALG SD ML TP W OF TPB E TPB INCL ADJ TIDES TGW BG WLN EXIST 40' RD R/W DESC AF#194102 100'N OF SLN GL2 NLY ALG SD RD TP 200'N OF SLN GL2 W TO ML SWLY |
| Geographic ID: | R13303-274-3940 | Agent Code: | |
| Type: | Real | | |
| Tax Area: | 112 - APPRAISER-OH Schl Dist, outside OH, improved, greater than 1 acre | Land Use Code | 11 |
| Open Space: | N | DFL | N |
| Historic Property: | N | Remodel Property: | N |
| Multi-Family Redevelopment: | N | | |
| Township: | 33 | Section: | 03 |
| Range: | R1 |
Location |
| Address: | 4665 SURFCREST DR OAK HARBOR, WA 98277 | Mapsco: | |
| Neighborhood: | Cycle 6 | Map ID: | 198 |
| Neighborhood CD: | 6 |
Owner |
| Name: | HOWARD, COLBY | Owner ID: | 312279 |
| Mailing Address: | PAULA M LENG-HOWARD 4665 SURFCREST DR OAK HARBOR, WA 98277 | % Ownership: | 100.0000000000% |
| | | Exemptions: | |
Taxes and Assessment Details
Values
| (+) Improvement Homesite Value: | + | $0 | |
| (+) Improvement Non-Homesite Value: | + | $1,374,529 | |
| (+) Land Homesite Value: | + | $0 | |
| (+) Land Non-Homesite Value: | + | $820,000 | |
| (+) Curr Use (HS): | + | $0 | $0 |
| (+) Curr Use (NHS): | + | $0 | $0 |
| | | -------------------------- | |
| (=) Market Value: | = | $2,194,529 | |
| (–) Productivity Loss: | – | $0 | |
| | | -------------------------- | |
| (=) Subtotal: | = | $2,194,529 | |
| (+) Senior Appraised Value: | + | $0 | |
| (+) Non-Senior Appraised Value: | + | $2,194,529 | |
| | | -------------------------- | |
| (=) Total Appraised Value: | = | $2,194,529 | |
| (–) Senior Exemption Loss: | – | $0 | |
| (–) Exemption Loss: | – | $0 | |
| | | -------------------------- | |
| (=) Taxable Value: | = | $2,194,529 | |
Taxing Jurisdiction
| Owner: | HOWARD, COLBY | | |
| % Ownership: | 100.0000000000% | | |
| Total Value: | $2,194,529 | | |
| Tax Area: | 112 - APPRAISER-OH Schl Dist, outside OH, improved, greater than 1 acre |
| CF | Conservation Futures | 0.0313996660 | $2,194,529 | $2,194,529 | $68.91 | | |
| CEM1 | Cemetery #1 | 0.0040018856 | $2,194,529 | $2,194,529 | $8.78 | | |
| FIRE2 | Fire & Rescue Dist #2 N Whidbey GEN | 0.5381486274 | $2,194,529 | $2,194,529 | $1,180.98 | | |
| HOBOND | Hospital BOND | 0.1893405597 | $2,194,529 | $2,194,529 | $415.51 | | |
| HOGEN | Hospital GEN | 0.3848777722 | $2,194,529 | $2,194,529 | $844.63 | | |
| CE | County Current Expense | 0.3674210519 | $2,194,529 | $2,194,529 | $806.32 | | |
| CR | County Roads | 0.4614296361 | $2,194,529 | $2,194,529 | $1,012.62 | | |
| ISLANDEMS | Hospital GEN (EMS) | 0.4952018576 | $2,194,529 | $2,194,529 | $1,086.73 | | |
| LIB | Library Sno-Isle GEN | 0.3039084203 | $2,194,529 | $2,194,529 | $666.94 | | |
| NWHIDPRMT | P & R N Whidbey GEN | 0.1990272349 | $2,194,529 | $2,194,529 | $436.77 | | |
| SCH201MO | School 201 Enrichment | 2.3851112745 | $2,194,529 | $2,194,529 | $5,234.20 | | |
| ST | State School | 1.4761226122 | $2,194,529 | $2,194,529 | $3,239.39 | | |
| ST2 | State School Part 2 | 0.7953803475 | $2,194,529 | $2,194,529 | $1,745.49 | | |
| | Total Tax Rate: | 7.6313709459 | | | | | |
| | | | | Taxes w/Current Exemptions: | $16,747.27 | | |
| | | | | Taxes w/o Exemptions: | $16,747.27 | | |
Improvement / Building
| Improvement #1: | RESIDENTIAL | State Code: | Y | 3471.9 sqft | Value: | $1,374,529 |
| Bathrooms: | 4 | Bedrooms: | 3 | | Ceiling: | DRYWALL PAINTED | Exterior Wall/Cover: | SHINGLE | | Floor Covering: | CERAMIC TILE/CPT 40-60 | Floor Structure: | WOOD W/SUBFLOOR | | Foundation: | CONCRETE | Heating: | FHA GAS | | Interior Finish: | DRYWALL PAINT | Plumbing Fixture Cnt: | 20 | | Roof Slope: | 12" IN 12" | Roof Structure/Cover: | CJ ASPHALT |
|
| | Type | Description | Class CD | Sub Class CD | Year Built | Area |
| | BAS | BASE/MAIN FLOOR | 7 | 0 | 2004 | 2565.0 |
| | OP1 | OPEN PORCH SLAB | 7 | 0 | 2004 | 1019.0 |
| | OP1 | OPEN PORCH SLAB | 7 | 0 | 2004 | 436.5 |
| | OP1 | OPEN PORCH SLAB | 7 | 0 | 2004 | 146.4 |
| | BIG | BUILT IN GARAGE | 7 | 0 | 2004 | 1224.4 |
| | UPS | UPPER STORY | 7 | 0 | 2004 | 906.9 |
| | BAW | BALCONY WOOD RAIL | 7 | 0 | 2004 | 136.0 |
| | OWP | OPEN WOOD PORCH W/STEPS | 7 | 0 | 2004 | 153.5 |
| | OP4 | OPEN PORCH W/CEILING-ROOF | 7 | 0 | 2004 | 187.2 |
| | OP4 | OPEN PORCH W/CEILING-ROOF | 7 | 0 | 2004 | 252.0 |
| | OP4 | OPEN PORCH W/CEILING-ROOF | 7 | 0 | 2004 | 54.0 |
| | OP4 | OPEN PORCH W/CEILING-ROOF | 7 | 0 | 2004 | 200.6 |
| | ENP | ENCLOSED PORCH | 7 | 0 | 2004 | 246.5 |
| | UTY | STORAGE/UTILITY | 7 | 0 | 2004 | 750.0 |
| | OWP | OPEN WOOD PORCH W/STEPS | 7 | 0 | 2004 | 754.0 |
Sketch
Property Image
Land
| 1 | LB | LOW BANK | 1.8100 | 78843.60 | 200.00 | 0.00 | 1.00 | $820,000 | $0 |
Roll Value History
| 2026 | N/A | N/A | N/A | N/A | N/A |
| 2025 | $1,374,529 | $820,000 | $0 | $2,194,529 | $2,194,529 |
| 2024 | $1,389,385 | $770,000 | $0 | $2,159,385 | $2,159,385 |
| 2023 | $1,146,235 | $755,000 | $0 | $1,901,235 | $1,901,235 |
| 2022 | $1,026,031 | $750,000 | $0 | $1,776,031 | $1,776,031 |
| 2021 | $902,576 | $600,000 | $0 | $1,502,576 | $1,502,576 |
| 2020 | $877,773 | $525,000 | $0 | $1,402,773 | $1,402,773 |
| 2019 | $796,883 | $650,000 | $0 | $1,446,883 | $1,446,883 |
| 2018 | $799,114 | $650,000 | $0 | $1,449,114 | $1,449,114 |
| 2017 | $794,511 | $650,000 | $0 | $1,444,511 | $1,444,511 |
| 2016 | $768,025 | $650,000 | $0 | $1,418,025 | $1,418,025 |
| 2015 | $776,856 | $650,000 | $0 | $1,426,856 | $1,426,856 |
| 2014 | $1,030,221 | $650,000 | $0 | $1,680,221 | $1,680,221 |
| 2013 | $1,041,795 | $911,249 | $0 | $1,953,044 | $1,953,044 |
| 2012 | $1,053,371 | $911,249 | $0 | $1,964,620 | $1,964,620 |
| 2011 | $1,064,945 | $990,488 | $0 | $2,055,433 | $2,055,433 |
| 2010 | $1,074,251 | $990,488 | $0 | $2,064,739 | $2,064,739 |
| 2009 | $1,130,271 | $1,151,550 | $0 | $2,281,821 | $2,281,821 |
| 2008 | $1,130,959 | $1,243,880 | $0 | $2,374,839 | $2,374,839 |
| 2007 | $1,143,063 | $1,243,880 | $0 | $2,386,943 | $2,386,943 |
Deed and Sales History
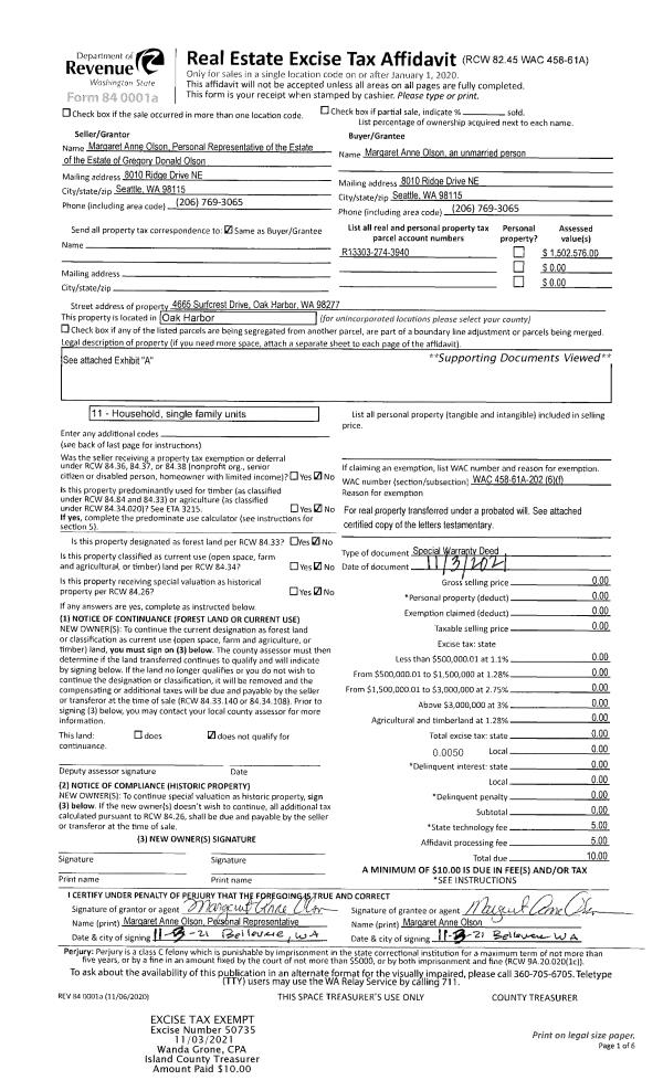
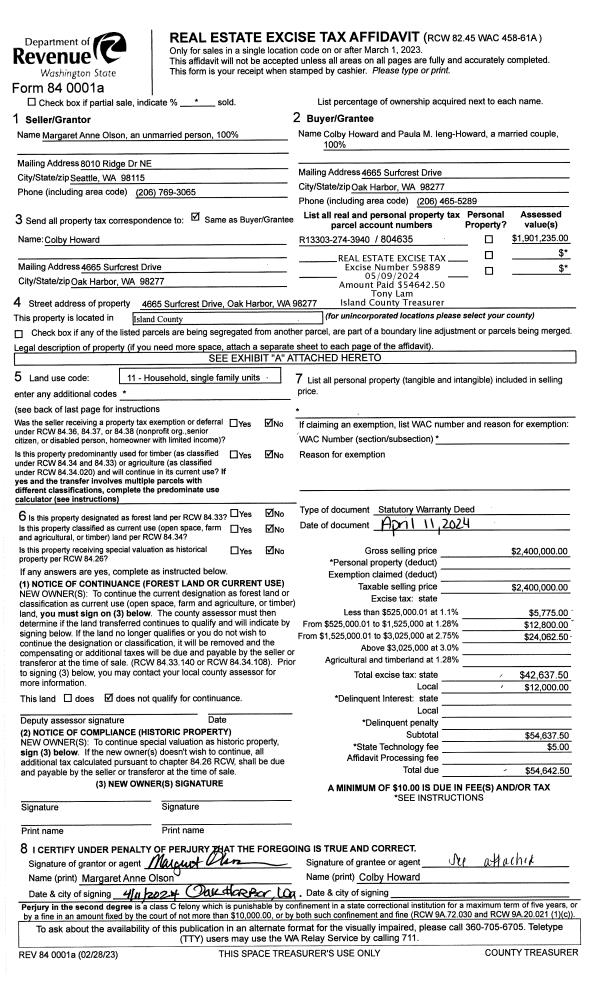
| 1 | 04/11/2024 | WD | Warranty Deed | OLSON, MARGARET ANNE | HOWARD, COLBY | | | $2,400,000.00 | 59889 | 4572096 |
| 2 | 11/03/2021 | WD | Warranty Deed | OLSON, GREGORY | OLSON, MARGARET ANNE | | | $0.00 | 50735 | 4532979 |
| 3 | 07/02/2003 | BLA | DNU - Boundary Line Adjustment | Unknown | OLSON, GREGORY | | | $0.00 | 69933 | 4050120 |
Payout Agreement
| No payout information available.. |