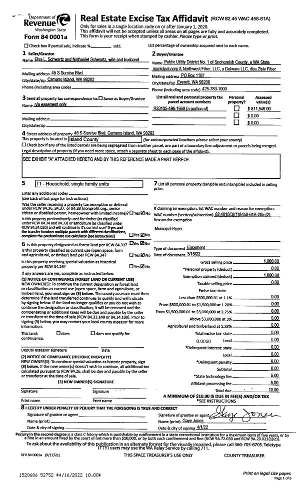
Property
Account |
| Property ID: | 804646 | Abbreviated Legal Description: | N/2 W/2 NE NW EX RD |
| Geographic ID: | R33105-496-1660 | Agent Code: | |
| Type: | Real | | |
| Tax Area: | 592 - APPRAISER-Stan/Cam Schl Dist, Special Dist, improved, greater than 1 acre | Land Use Code | 11 |
| Open Space: | N | DFL | N |
| Historic Property: | N | Remodel Property: | N |
| Multi-Family Redevelopment: | N | | |
| Township: | 31 | Section: | 05 |
| Range: | R3 |
Location |
| Address: | 45 S SUNRISE BLVD CAMANO ISLAND, WA 98282 | Mapsco: | |
| Neighborhood: | Cycle 5 | Map ID: | 916 |
| Neighborhood CD: | 5 |
Owner |
| Name: | SCHWARTZ, NATHANIEL | Owner ID: | 269158 |
| Mailing Address: | ELSA L SCHWARTZ 45 S SUNRISE BLVD CAMANO ISLAND, WA 98282 | % Ownership: | 100.0000000000% |
| | | Exemptions: | |
Taxes and Assessment Details
Values
| (+) Improvement Homesite Value: | + | $0 | |
| (+) Improvement Non-Homesite Value: | + | $726,260 | |
| (+) Land Homesite Value: | + | $0 | |
| (+) Land Non-Homesite Value: | + | $360,000 | |
| (+) Curr Use (HS): | + | $0 | $0 |
| (+) Curr Use (NHS): | + | $0 | $0 |
| | | -------------------------- | |
| (=) Market Value: | = | $1,086,260 | |
| (–) Productivity Loss: | – | $0 | |
| | | -------------------------- | |
| (=) Subtotal: | = | $1,086,260 | |
| (+) Senior Appraised Value: | + | $0 | |
| (+) Non-Senior Appraised Value: | + | $1,086,260 | |
| | | -------------------------- | |
| (=) Total Appraised Value: | = | $1,086,260 | |
| (–) Senior Exemption Loss: | – | $0 | |
| (–) Exemption Loss: | – | $0 | |
| | | -------------------------- | |
| (=) Taxable Value: | = | $1,086,260 | |
Taxing Jurisdiction
| Owner: | SCHWARTZ, NATHANIEL | | |
| % Ownership: | 100.0000000000% | | |
| Total Value: | $1,086,260 | | |
| Tax Area: | 592 - APPRAISER-Stan/Cam Schl Dist, Special Dist, improved, greater than 1 acre |
| CF | Conservation Futures | 0.0313996660 | $1,086,260 | $1,086,260 | $34.11 | | |
| EMS1 | Fire & Rescue Dist #1 Camano GEN (EMS) | 0.4998471806 | $1,086,260 | $1,086,260 | $542.96 | | |
| FIRE1 | Fire & Rescue Dist #1 Camano GEN | 1.2496603404 | $1,086,260 | $1,086,260 | $1,357.46 | | |
| FIRE1BOND | Fire & Rescue Dist #1 Camano BOND | 0.1630371212 | $1,086,260 | $1,086,260 | $177.10 | | |
| CE | County Current Expense | 0.3674210519 | $1,086,260 | $1,086,260 | $399.11 | | |
| CR | County Roads | 0.4614296361 | $1,086,260 | $1,086,260 | $501.23 | | |
| LIB | Library Sno-Isle GEN | 0.3039084203 | $1,086,260 | $1,086,260 | $330.12 | | |
| SCH205_401 | School 205-401 Enrichment | 1.3697998934 | $1,086,260 | $1,086,260 | $1,487.96 | | |
| SCH205BOND | School 205-401 BOND | 0.9354199323 | $1,086,260 | $1,086,260 | $1,016.11 | | |
| ST | State School | 1.4761226122 | $1,086,260 | $1,086,260 | $1,603.45 | | |
| ST2 | State School Part 2 | 0.7953803475 | $1,086,260 | $1,086,260 | $863.99 | | |
| | Total Tax Rate: | 7.6534262019 | | | | | |
| | | | | Taxes w/Current Exemptions: | $8,313.60 | | |
| | | | | Taxes w/o Exemptions: | $8,313.60 | | |
Improvement / Building
| Improvement #1: | RESIDENTIAL | State Code: | Y | 3394.6 sqft | Value: | $726,260 |
| Bathrooms: | 3.5 | Bedrooms: | 5 | | Ceiling: | DRYWALL PAINTED | Exterior Wall/Cover: | WOOD SIDING | | Floor Covering: | CARPET/VINYL 80-20 | Floor Structure: | WOOD W/SUBFLOOR | | Foundation: | CONCRETE | Heating: | FHA GAS | | Interior Finish: | DRYWALL PAINT | Plumbing Fixture Cnt: | 16 | | Roof Slope: | 4" IN 12" | Roof Structure/Cover: | CJ ASPHALT |
|
| | Type | Description | Class CD | Sub Class CD | Year Built | Area |
| | BAS | BASE/MAIN FLOOR | 4 | 0 | 2004 | 2371.8 |
| | UB8 | BASEMENT UNFINISHED 8" | 4 | 0 | 2004 | 1420.2 |
| | AGR | ATTACHED GARAGE | 4 | 0 | 2004 | 1307.9 |
| | UPS | UPPER STORY | 4 | 0 | 2004 | 1022.8 |
| | OWP | OPEN WOOD PORCH W/STEPS | 4 | 0 | 2004 | 248.8 |
| | OWC | OPEN WOOD PORCH W/STEPS/ROOF/C | 4 | 0 | 2004 | 224.8 |
| | DGR | DETACHED GARAGE | 4 | 0 | 2021 | 2400.0 |
| | OWR | OPEN WOOD PORCH W/STEPS/ROOF | 4 | 0 | 2004 | 144.0 |
Sketch
Property Image
Land
| 1 | 32 | AC (03.01-09.99) | 9.7000 | 422532.00 | 0.00 | 0.00 | 1.00 | $360,000 | $0 |
Roll Value History
| 2026 | N/A | N/A | N/A | N/A | N/A |
| 2025 | $726,260 | $360,000 | $0 | $1,086,260 | $1,086,260 |
| 2024 | $734,983 | $340,000 | $0 | $1,074,983 | $1,074,983 |
| 2023 | $743,709 | $320,000 | $0 | $1,063,709 | $1,063,709 |
| 2022 | $681,339 | $300,000 | $0 | $981,339 | $981,339 |
| 2021 | $581,546 | $230,000 | $0 | $811,546 | $811,546 |
| 2020 | $485,376 | $190,000 | $0 | $675,376 | $675,376 |
| 2019 | $383,451 | $220,000 | $0 | $603,451 | $603,451 |
| 2018 | $384,551 | $190,000 | $0 | $574,551 | $574,551 |
| 2017 | $386,646 | $150,000 | $0 | $536,646 | $536,646 |
| 2016 | $391,039 | $150,000 | $0 | $541,039 | $541,039 |
| 2015 | $386,518 | $150,000 | $0 | $536,518 | $536,518 |
| 2014 | $390,911 | $150,000 | $0 | $540,911 | $540,911 |
| 2013 | $402,919 | $135,800 | $0 | $538,719 | $538,719 |
| 2012 | $407,329 | $135,800 | $0 | $543,129 | $543,129 |
| 2011 | $411,739 | $169,750 | $0 | $581,489 | $581,489 |
| 2010 | $419,310 | $169,750 | $0 | $589,060 | $589,060 |
| 2009 | $448,958 | $213,400 | $0 | $662,358 | $662,358 |
| 2008 | $449,287 | $223,100 | $0 | $672,387 | $672,387 |
| 2007 | $454,163 | $223,100 | $0 | $677,263 | $677,263 |
Deed and Sales History
| 1 | 03/15/2022 | EZ | Easement | SCHWARTZ, NATHANIEL | PUBLIC UTILITY DIST #1 OF | | | $0.00 | 52752 | 4543518 |
| 2 | 10/28/2019 | WD | Warranty Deed | SCHWARTZ, NATHANIEL | ISLAND COUNTY PUBLIC WORKS | | | $0.00 | 41439 | 4477415 |
| 3 | 01/16/2015 | ESTSEPPROP | Establish Separate Property | SCHWARTZ, NATHANIEL | SCHWARTZ, NATHANIEL | | | $0.00 | 18420 | 4372784 |
| 4 | 08/07/2013 | WD | Warranty Deed | HOLZKNECHT, MARK F | SCHWARTZ, NATHANIEL | | | $550,295.00 | 12339 | 4346035 |
| 5 | 08/27/2003 | QCD | Quit Claim Deed | HOLZKNECHT, MARK F & KIMBERLY | HOLZKNECHT, MARK F | | | $0.00 | 33847 | 4073098 |
| 6 | 03/24/2003 | WD | Warranty Deed | IVERSON, JUNE K | HOLZKNECHT, MARK F & KIMBERLY | | | $90,000.00 | 31242 | 4052539 |
| 7 | 07/09/2003 | SEG | DNU - Segregation | Unknown | IVERSON, JUNE K | | | $0.00 | 69939 | 0 |
Payout Agreement
| No payout information available.. |