Property
Account |
| Property ID: | 804671 | Abbreviated Legal Description: | W453.67' OF: TR B SP 05-89.13332.328-4630 V2 SP P219 AF#90000480 EX S804.71' ALSO EX ANY PT LY IN TRACT A SD SHORT PLAT |
| Geographic ID: | R13332-361-4200 | Agent Code: | |
| Type: | Real | | |
| Tax Area: | 112 - APPRAISER-OH Schl Dist, outside OH, improved, greater than 1 acre | Land Use Code | 11 |
| Open Space: | N | DFL | N |
| Historic Property: | N | Remodel Property: | N |
| Multi-Family Redevelopment: | N | | |
| Township: | 33 | Section: | 32 |
| Range: | R1 |
Location |
| Address: | 1669 CROSBY RD OAK HARBOR, WA 98277 | Mapsco: | |
| Neighborhood: | Cycle 1 | Map ID: | 247 |
| Neighborhood CD: | 1 |
Owner |
| Name: | HARDER, CARROLL E | Owner ID: | 311833 |
| Mailing Address: | 1669 CROSBY RD OAK HARBOR, WA 98277 | % Ownership: | 100.0000000000% |
| | | Exemptions: | |
Taxes and Assessment Details
Values
| (+) Improvement Homesite Value: | + | $0 | |
| (+) Improvement Non-Homesite Value: | + | $389,714 | |
| (+) Land Homesite Value: | + | $0 | |
| (+) Land Non-Homesite Value: | + | $320,000 | |
| (+) Curr Use (HS): | + | $0 | $0 |
| (+) Curr Use (NHS): | + | $0 | $0 |
| | | -------------------------- | |
| (=) Market Value: | = | $709,714 | |
| (–) Productivity Loss: | – | $0 | |
| | | -------------------------- | |
| (=) Subtotal: | = | $709,714 | |
| (+) Senior Appraised Value: | + | $0 | |
| (+) Non-Senior Appraised Value: | + | $709,714 | |
| | | -------------------------- | |
| (=) Total Appraised Value: | = | $709,714 | |
| (–) Senior Exemption Loss: | – | $0 | |
| (–) Exemption Loss: | – | $0 | |
| | | -------------------------- | |
| (=) Taxable Value: | = | $709,714 | |
Taxing Jurisdiction
| Owner: | HARDER, CARROLL E | | |
| % Ownership: | 100.0000000000% | | |
| Total Value: | $709,714 | | |
| Tax Area: | 112 - APPRAISER-OH Schl Dist, outside OH, improved, greater than 1 acre |
| CF | Conservation Futures | 0.0313996660 | $709,714 | $709,714 | $22.28 | | |
| CEM1 | Cemetery #1 | 0.0040018856 | $709,714 | $709,714 | $2.84 | | |
| FIRE2 | Fire & Rescue Dist #2 N Whidbey GEN | 0.5381486274 | $709,714 | $709,714 | $381.93 | | |
| HOBOND | Hospital BOND | 0.1893405597 | $709,714 | $709,714 | $134.38 | | |
| HOGEN | Hospital GEN | 0.3848777722 | $709,714 | $709,714 | $273.15 | | |
| CE | County Current Expense | 0.3674210519 | $709,714 | $709,714 | $260.76 | | |
| CR | County Roads | 0.4614296361 | $709,714 | $709,714 | $327.48 | | |
| ISLANDEMS | Hospital GEN (EMS) | 0.4952018576 | $709,714 | $709,714 | $351.45 | | |
| LIB | Library Sno-Isle GEN | 0.3039084203 | $709,714 | $709,714 | $215.69 | | |
| NWHIDPRMT | P & R N Whidbey GEN | 0.1990272349 | $709,714 | $709,714 | $141.25 | | |
| SCH201MO | School 201 Enrichment | 2.3851112745 | $709,714 | $709,714 | $1,692.75 | | |
| ST | State School | 1.4761226122 | $709,714 | $709,714 | $1,047.62 | | |
| ST2 | State School Part 2 | 0.7953803475 | $709,714 | $709,714 | $564.49 | | |
| | Total Tax Rate: | 7.6313709459 | | | | | |
| | | | | Taxes w/Current Exemptions: | $5,416.07 | | |
| | | | | Taxes w/o Exemptions: | $5,416.07 | | |
Improvement / Building
| Improvement #1: | RESIDENTIAL | State Code: | Y | 1066.5 sqft | Value: | $389,714 |
| Bathrooms: | 1 | Bedrooms: | 1 | | Ceiling: | DRYWALL PAINTED | Cooling: | HEAT PUMP/CONV/V | | Exterior Wall/Cover: | CEMENT FIBER | Floor Covering: | HARDWOOD/CARP 80-20 | | Floor Structure: | WOOD W/SUBFLOOR | Foundation: | CONCRETE | | Interior Finish: | DRYWALL PAINT | Plumbing Fixture Cnt: | 7 | | Roof Slope: | 5" IN 12" | Roof Structure/Cover: | CJ ALUMINIUM HEAVY |
|
| | Type | Description | Class CD | Sub Class CD | Year Built | Area |
| | BAS | BASE/MAIN FLOOR | 4 | 0 | 2016 | 1066.5 |
| | AGR | ATTACHED GARAGE | 3 | 0 | 2016 | 1311.5 |
| | CPD | OPEN CARPORT DIRT FLOOR | 3 | 0 | 2016 | 305.0 |
| | OP4 | OPEN PORCH W/CEILING-ROOF | 3 | 0 | 2016 | 128.0 |
| | OP4 | OPEN PORCH W/CEILING-ROOF | 3 | 0 | 2016 | 48.0 |
Sketch
Property Image
Land
| 1 | 32 | AC (03.01-09.99) | 5.0000 | 0.00 | 0.00 | 0.00 | 1.00 | $320,000 | $0 |
Roll Value History
| 2026 | N/A | N/A | N/A | N/A | N/A |
| 2025 | $389,714 | $320,000 | $0 | $709,714 | $709,714 |
| 2024 | $393,805 | $300,000 | $0 | $693,805 | $693,805 |
| 2023 | $314,877 | $300,000 | $0 | $614,877 | $614,877 |
| 2022 | $287,441 | $260,000 | $0 | $547,441 | $547,441 |
| 2021 | $251,962 | $220,000 | $0 | $471,962 | $471,962 |
| 2020 | $244,342 | $175,000 | $0 | $419,342 | $419,342 |
| 2019 | $177,860 | $230,000 | $0 | $407,860 | $407,860 |
| 2018 | $178,317 | $190,000 | $0 | $368,317 | $368,317 |
| 2017 | $179,232 | $170,000 | $0 | $349,232 | $349,232 |
| 2016 | $145,037 | $120,000 | $0 | $265,037 | $265,037 |
| 2015 | $0 | $120,000 | $0 | $120,000 | $120,000 |
| 2014 | $0 | $130,000 | $0 | $130,000 | $130,000 |
| 2013 | $0 | $130,000 | $0 | $130,000 | $130,000 |
| 2012 | $0 | $150,000 | $0 | $150,000 | $150,000 |
| 2011 | $0 | $150,000 | $0 | $150,000 | $150,000 |
| 2010 | $0 | $150,000 | $0 | $150,000 | $150,000 |
| 2009 | $0 | $143,750 | $0 | $143,750 | $143,750 |
| 2008 | $0 | $143,750 | $0 | $143,750 | $143,750 |
| 2007 | $0 | $114,500 | $0 | $114,500 | $114,500 |
Deed and Sales History
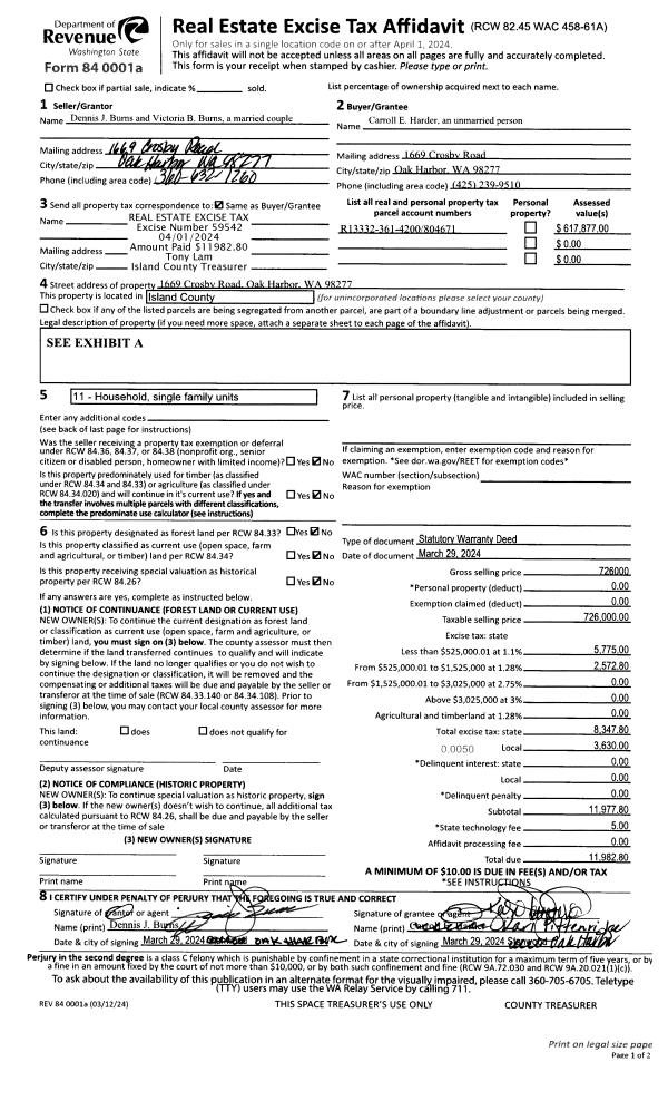
| 1 | 03/29/2024 | WD | Warranty Deed | BURNS, DENNIS J | HARDER, CARROLL E | | | $726,000.00 | 59542 | 4570800 |
| 2 | 12/28/2018 | WD | Warranty Deed | BURNS, MICHAEL A | BURNS, DENNIS J | | | $190,000.00 | 37321 | 4457944 |
| 3 | 08/14/2015 | WD | Warranty Deed | SPAUR, CHARLES W | BURNS, MICHAEL A | | | $165,000.00 | 20987 | 4384330 |
| 4 | 08/26/2008 | WD | Warranty Deed | UPCHURCH, DOUGLAS B | SPAUR, CHARLES W | | | $196,250.00 | 82302 | 4235941 |
| 5 | 02/06/2004 | WD | Warranty Deed | COMER, TIMOTHY L | UPCHURCH, DOUGLAS B | | | $143,500.00 | 40807 | 4092970 |
| 6 | 07/22/2003 | BLA | DNU - Boundary Line Adjustment | Unknown | COMER, TIMOTHY L | | | $0.00 | 69951 | 4016231 |
Payout Agreement
| No payout information available.. |