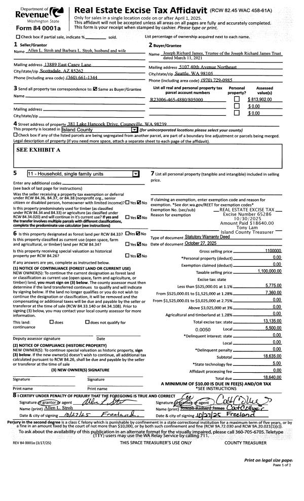
Property
Account |
| Property ID: | 805000 | Abbreviated Legal Description: | LOT 2 SP 262-02.23006.453-4610 V3 SP P490-1 AF#4059072 |
| Geographic ID: | R23006-465-4880 | Agent Code: | |
| Type: | Real | | |
| Tax Area: | 312 - APPRAISER-Cpvl Schl Dist, outside Cpvl, improved, greater than 1 acre | Land Use Code | 11 |
| Open Space: | N | DFL | N |
| Historic Property: | N | Remodel Property: | N |
| Multi-Family Redevelopment: | N | | |
| Township: | 30 | Section: | 06 |
| Range: | R2 |
Location |
| Address: | 381 LAKE HANCOCK DR COUPEVILLE, WA 98239 | Mapsco: | |
| Neighborhood: | Cycle 2 | Map ID: | 360 |
| Neighborhood CD: | 2 |
Owner |
| Name: | STROH, ALLEN L | Owner ID: | 192704 |
| Mailing Address: | BARBARA L STROH 381 LAKE HANCOCK DR COUPEVILLE, WA 98239-9660 | % Ownership: | 100.0000000000% |
| | | Exemptions: | |
Taxes and Assessment Details
Values
| (+) Improvement Homesite Value: | + | $0 | |
| (+) Improvement Non-Homesite Value: | + | $473,852 | |
| (+) Land Homesite Value: | + | $0 | |
| (+) Land Non-Homesite Value: | + | $340,050 | |
| (+) Curr Use (HS): | + | $0 | $0 |
| (+) Curr Use (NHS): | + | $0 | $0 |
| | | -------------------------- | |
| (=) Market Value: | = | $813,902 | |
| (–) Productivity Loss: | – | $0 | |
| | | -------------------------- | |
| (=) Subtotal: | = | $813,902 | |
| (+) Senior Appraised Value: | + | $0 | |
| (+) Non-Senior Appraised Value: | + | $813,902 | |
| | | -------------------------- | |
| (=) Total Appraised Value: | = | $813,902 | |
| (–) Senior Exemption Loss: | – | $0 | |
| (–) Exemption Loss: | – | $0 | |
| | | -------------------------- | |
| (=) Taxable Value: | = | $813,902 | |
Taxing Jurisdiction
| Owner: | STROH, ALLEN L | | |
| % Ownership: | 100.0000000000% | | |
| Total Value: | $813,902 | | |
| Tax Area: | 312 - APPRAISER-Cpvl Schl Dist, outside Cpvl, improved, greater than 1 acre |
| CF | Conservation Futures | 0.0313996660 | $813,902 | $813,902 | $25.56 | | |
| CEM2 | Cemetery #2 | 0.0092609791 | $813,902 | $813,902 | $7.54 | | |
| FIRE5 | Fire & Rescue Dist #5 C Whidbey GEN | 1.1892169230 | $813,902 | $813,902 | $967.91 | | |
| FIRE5BOND | Fire & Rescue Dist #5 C Whidbey BOND | 0.1394359503 | $813,902 | $813,902 | $113.49 | | |
| HOBOND | Hospital BOND | 0.1893405597 | $813,902 | $813,902 | $154.10 | | |
| HOGEN | Hospital GEN | 0.3848777722 | $813,902 | $813,902 | $313.25 | | |
| CE | County Current Expense | 0.3674210519 | $813,902 | $813,902 | $299.04 | | |
| CR | County Roads | 0.4614296361 | $813,902 | $813,902 | $375.56 | | |
| ISLANDEMS | Hospital GEN (EMS) | 0.4952018576 | $813,902 | $813,902 | $403.05 | | |
| LIB | Library Sno-Isle GEN | 0.3039084203 | $813,902 | $813,902 | $247.35 | | |
| LIBCAP | Library Sno-Isle BOND (Cap Fac Imp Area) | 0.0528562629 | $813,902 | $813,902 | $43.02 | | |
| POCOUP | Port of Coupeville GEN | 0.1065226063 | $813,902 | $813,902 | $86.70 | | |
| POCOUPIDD | Port of Coupeville IDD | 0.3353038577 | $813,902 | $813,902 | $272.90 | | |
| COUPSDTECH | School 204 CP (TECH) | 0.1215123397 | $813,902 | $813,902 | $98.90 | | |
| SCH204MO | School 204 Enrichment | 0.6416662518 | $813,902 | $813,902 | $522.25 | | |
| ST | State School | 1.4761226122 | $813,902 | $813,902 | $1,201.42 | | |
| ST2 | State School Part 2 | 0.7953803475 | $813,902 | $813,902 | $647.36 | | |
| | Total Tax Rate: | 7.1008570943 | | | | | |
| | | | | Taxes w/Current Exemptions: | $5,779.40 | | |
| | | | | Taxes w/o Exemptions: | $5,779.40 | | |
Improvement / Building
| Improvement #1: | RESIDENTIAL | State Code: | Y | 1884.8 sqft | Value: | $473,852 |
| Bathrooms: | 1.75 | Bedrooms: | 2 | | Ceiling: | DRYWALL PAINTED | Exterior Wall/Cover: | SHINGLE | | Floor Covering: | CARPET/VINYL 20-80 | Floor Structure: | WOOD W/SUBFLOOR | | Foundation: | CONCRETE | Heating: | WALL HEAT ELECTRIC | | Interior Finish: | DRYWALL PAINT | Plumbing Fixture Cnt: | 10 | | Roof Slope: | 6" IN 12" | Roof Structure/Cover: | CJ ASPHALT |
|
| | Type | Description | Class CD | Sub Class CD | Year Built | Area |
| | BAS | BASE/MAIN FLOOR | 4 | 0 | 2005 | 1390.4 |
| | BAS | BASE/MAIN FLOOR | 4 | 0 | 2005 | 404.0 |
| | BIG | BUILT IN GARAGE | 4 | 0 | 2005 | 930.2 |
| | OCP | OPEN CARPORT | 4 | 0 | 2005 | 629.7 |
| | BAW | BALCONY WOOD RAIL | 4 | 0 | 2005 | 236.0 |
| | BAR | BALCONY W/ROOF | 4 | 0 | 2005 | 49.5 |
| | DWN | DOWNSTAIRS LIVING AREA | 4 | 0 | 2005 | 90.4 |
| | ENP | ENCLOSED PORCH | 4 | 0 | 2005 | 144.0 |
| | OWR | OPEN WOOD PORCH W/STEPS/ROOF | 4 | 0 | 2005 | 187.0 |
Sketch
| No sketches available for this property. |
Property Image
Land
| 1 | HS | HOMESITE | 1.0000 | 43560.00 | 0.00 | 0.00 | 1.00 | $220,000 | $0 |
| 2 | 91 | UNDEVELOPED LAND-METES AND BOUNDS | 4.0100 | 174675.60 | 0.00 | 0.00 | 1.00 | $120,050 | $0 |
Roll Value History
| 2026 | N/A | N/A | N/A | N/A | N/A |
| 2025 | $473,852 | $340,050 | $0 | $813,902 | $813,902 |
| 2024 | $435,998 | $290,000 | $0 | $725,998 | $725,998 |
| 2023 | $440,064 | $280,000 | $0 | $720,064 | $720,064 |
| 2022 | $403,048 | $250,000 | $0 | $653,048 | $653,048 |
| 2021 | $354,454 | $170,000 | $0 | $524,454 | $524,454 |
| 2020 | $344,261 | $160,000 | $0 | $504,261 | $504,261 |
| 2019 | $255,056 | $230,000 | $0 | $485,056 | $485,056 |
| 2018 | $232,147 | $170,000 | $0 | $402,147 | $402,147 |
| 2017 | $233,279 | $160,000 | $0 | $393,279 | $393,279 |
| 2016 | $235,948 | $135,000 | $0 | $370,948 | $370,948 |
| 2015 | $238,616 | $135,000 | $0 | $373,616 | $373,616 |
| 2014 | $241,283 | $125,250 | $0 | $366,533 | $366,533 |
| 2013 | $250,701 | $121,743 | $0 | $372,444 | $372,444 |
| 2012 | $253,369 | $121,743 | $0 | $375,112 | $375,112 |
| 2011 | $256,038 | $135,270 | $0 | $391,308 | $391,308 |
| 2010 | $265,991 | $135,270 | $0 | $401,261 | $401,261 |
| 2009 | $274,266 | $195,390 | $0 | $469,656 | $469,656 |
| 2008 | $277,276 | $169,088 | $0 | $446,364 | $446,364 |
| 2007 | $272,438 | $155,310 | $0 | $427,748 | $427,748 |
Deed and Sales History
| 1 | 10/27/2025 | WD | Warranty Deed | STROH, ALLEN L | JOSEPH RICHARD JAMES TRUST | | | $1,100,000.00 | 65286 | 4592848 |
| 2 | 05/17/2004 | WD | Warranty Deed | MEYER PROPERTIES LLP, | STROH, ALLEN L | | | $117,750.00 | 42125 | 4104478 |
| 3 | 09/22/2003 | WD | Warranty Deed | NELSON, HILARY L | MEYER PROPERTIES LLP, | | | $87,500.00 | 34322 | 4076754 |
| 4 | 01/01/1900 | OTHER | Other - Misc. Documents | Unknown | NELSON, HILARY L | | | $0.00 | 0 | 0 |
Payout Agreement
| No payout information available.. |