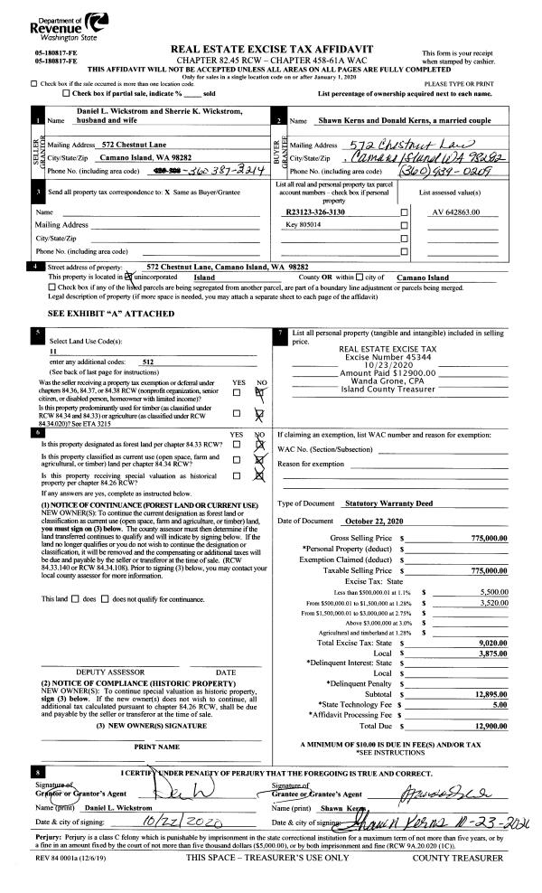
Property
Account |
| Property ID: | 805014 | Abbreviated Legal Description: | LOT 1 & W/2 LOT 2 SP 23-93.23123.320-3290 V2 SP P460 AF#94009409 |
| Geographic ID: | R23123-326-3130 | Agent Code: | |
| Type: | Real | | |
| Tax Area: | 512 - APPRAISER-Stan/Cam Schl Dist, improved, greater than 1 acre | Land Use Code | 11 |
| Open Space: | N | DFL | N |
| Historic Property: | N | Remodel Property: | N |
| Multi-Family Redevelopment: | N | | |
| Township: | 31 | Section: | 23 |
| Range: | R2 |
Location |
| Address: | | Mapsco: | |
| Neighborhood: | Cycle 5 | Map ID: | 503 |
| Neighborhood CD: | 5 |
Owner |
| Name: | KERNS, SHAWN | Owner ID: | 297167 |
| Mailing Address: | DONALD KERNS 572 CHESTNUT LN CAMANO ISLAND, WA 98282 | % Ownership: | 100.0000000000% |
| | | Exemptions: | |
Taxes and Assessment Details
Values
| (+) Improvement Homesite Value: | + | $0 | |
| (+) Improvement Non-Homesite Value: | + | $700,366 | |
| (+) Land Homesite Value: | + | $0 | |
| (+) Land Non-Homesite Value: | + | $330,000 | |
| (+) Curr Use (HS): | + | $0 | $0 |
| (+) Curr Use (NHS): | + | $0 | $0 |
| | | -------------------------- | |
| (=) Market Value: | = | $1,030,366 | |
| (–) Productivity Loss: | – | $0 | |
| | | -------------------------- | |
| (=) Subtotal: | = | $1,030,366 | |
| (+) Senior Appraised Value: | + | $0 | |
| (+) Non-Senior Appraised Value: | + | $1,030,366 | |
| | | -------------------------- | |
| (=) Total Appraised Value: | = | $1,030,366 | |
| (–) Senior Exemption Loss: | – | $0 | |
| (–) Exemption Loss: | – | $0 | |
| | | -------------------------- | |
| (=) Taxable Value: | = | $1,030,366 | |
Taxing Jurisdiction
| Owner: | KERNS, SHAWN | | |
| % Ownership: | 100.0000000000% | | |
| Total Value: | $1,030,366 | | |
| Tax Area: | 512 - APPRAISER-Stan/Cam Schl Dist, improved, greater than 1 acre |
| CF | Conservation Futures | 0.0313996660 | $1,030,366 | $1,030,366 | $32.35 | | |
| EMS1 | Fire & Rescue Dist #1 Camano GEN (EMS) | 0.4998471806 | $1,030,366 | $1,030,366 | $515.03 | | |
| FIRE1 | Fire & Rescue Dist #1 Camano GEN | 1.2496603404 | $1,030,366 | $1,030,366 | $1,287.61 | | |
| FIRE1BOND | Fire & Rescue Dist #1 Camano BOND | 0.1630371212 | $1,030,366 | $1,030,366 | $167.99 | | |
| CE | County Current Expense | 0.3674210519 | $1,030,366 | $1,030,366 | $378.58 | | |
| CR | County Roads | 0.4614296361 | $1,030,366 | $1,030,366 | $475.44 | | |
| LIB | Library Sno-Isle GEN | 0.3039084203 | $1,030,366 | $1,030,366 | $313.14 | | |
| SCH205_401 | School 205-401 Enrichment | 1.3697998934 | $1,030,366 | $1,030,366 | $1,411.40 | | |
| SCH205BOND | School 205-401 BOND | 0.9354199323 | $1,030,366 | $1,030,366 | $963.82 | | |
| ST | State School | 1.4761226122 | $1,030,366 | $1,030,366 | $1,520.95 | | |
| ST2 | State School Part 2 | 0.7953803475 | $1,030,366 | $1,030,366 | $819.53 | | |
| | Total Tax Rate: | 7.6534262019 | | | | | |
| | | | | Taxes w/Current Exemptions: | $7,885.84 | | |
| | | | | Taxes w/o Exemptions: | $7,885.84 | | |
Improvement / Building
| Improvement #1: | RESIDENTIAL | State Code: | Y | 2556.0 sqft | Value: | $700,366 |
| Bathrooms: | 2.75 | Bedrooms: | 3 | | Ceiling: | TONGUE & GROOVE | Cooling: | HEAT PUMP/CONV/V | | Exterior Wall/Cover: | PLY/HARDBOARD T-111 | Floor Covering: | SOFTWOOD 100% | | Floor Structure: | WOOD W/SUBFLOOR | Foundation: | CONCRETE | | Interior Finish: | DRYWALL PAINT | Plumbing Fixture Cnt: | 15 | | Roof Slope: | 8" IN 12" | Roof Structure/Cover: | CJ ASPHALT |
|
| | Type | Description | Class CD | Sub Class CD | Year Built | Area |
| | BAS | BASE/MAIN FLOOR | 4 | 0 | 1996 | 1292.0 |
| | DGR | DETACHED GARAGE | 4 | 0 | 1996 | 832.0 |
| | OCP | OPEN CARPORT | 4 | 0 | 1996 | 528.0 |
| | UPS | UPPER STORY | 4 | 0 | 1996 | 1264.0 |
| | OWR | OPEN WOOD PORCH W/STEPS/ROOF | 4 | 0 | 1996 | 2380.0 |
| | OCP | OPEN CARPORT | 4 | 0 | 1996 | 576.0 |
| | ATU | ATTIC UNFINISHED | 4 | 0 | 1996 | 576.0 |
| | CPD | OPEN CARPORT DIRT FLOOR | 4 | 0 | 1996 | 840.0 |
Sketch
Property Image
Land
| 1 | 32 | AC (03.01-09.99) | 3.6400 | 0.00 | 0.00 | 0.00 | 1.00 | $330,000 | $0 |
Roll Value History
| 2026 | N/A | N/A | N/A | N/A | N/A |
| 2025 | $700,366 | $330,000 | $0 | $1,030,366 | $1,030,366 |
| 2024 | $708,985 | $300,000 | $0 | $1,008,985 | $1,008,985 |
| 2023 | $717,604 | $290,000 | $0 | $1,007,604 | $1,007,604 |
| 2022 | $657,583 | $290,000 | $0 | $947,583 | $947,583 |
| 2021 | $578,617 | $190,000 | $0 | $768,617 | $768,617 |
| 2020 | $482,863 | $160,000 | $0 | $642,863 | $642,863 |
| 2019 | $366,924 | $230,000 | $0 | $596,924 | $596,924 |
| 2018 | $368,053 | $190,000 | $0 | $558,053 | $558,053 |
| 2017 | $370,310 | $150,000 | $0 | $520,310 | $520,310 |
| 2016 | $374,826 | $150,000 | $0 | $524,826 | $524,826 |
| 2015 | $369,195 | $81,536 | $0 | $450,731 | $450,731 |
| 2014 | $373,624 | $81,536 | $0 | $455,160 | $455,160 |
| 2013 | $378,053 | $81,536 | $0 | $459,589 | $459,589 |
| 2012 | $382,482 | $81,536 | $0 | $464,018 | $464,018 |
| 2011 | $386,908 | $101,920 | $0 | $488,828 | $488,828 |
| 2010 | $406,335 | $101,920 | $0 | $508,255 | $508,255 |
| 2009 | $426,384 | $116,480 | $0 | $542,864 | $542,864 |
| 2008 | $428,523 | $132,495 | $0 | $561,018 | $561,018 |
| 2007 | $434,967 | $132,495 | $0 | $567,462 | $567,462 |
Deed and Sales History
| 1 | 10/22/2020 | WD | Warranty Deed | WICKSTROM, DANIEL L | KERNS, SHAWN | | | $775,000.00 | 45344 | 4500209 |
| 2 | 11/14/2003 | BLA | DNU - Boundary Line Adjustment | Unknown | WICKSTROM, DANIEL L | | | $0.00 | 70077 | 4010533 |
| 3 | 02/12/2002 | QCD | Quit Claim Deed | WICKSTROM, DANIEL L | WICKSTROM, DANIEL L | | | $0.00 | 21588 | 4018338 |
| 4 | 02/12/2002 | QCD | Quit Claim Deed | WICKSTROM, DANIEL L | WICKSTROM, DANIEL L | | | $0.00 | 20569 | 4011339 |
Payout Agreement
| No payout information available.. |