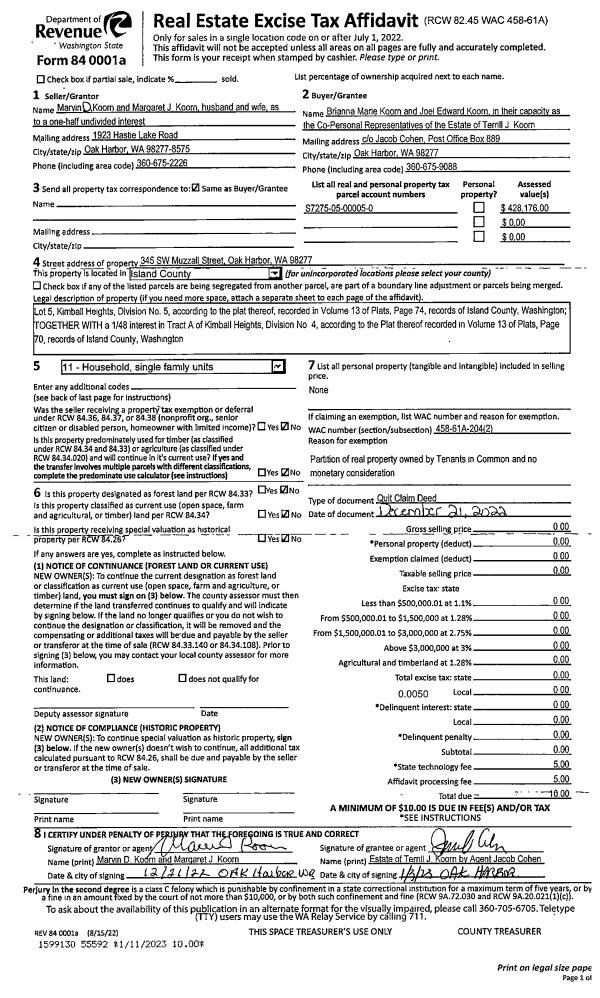
Property
Account |
| Property ID: | 805059 | Abbreviated Legal Description: | LOT 2 SP 318-02.13302.033-2980 V3 SP P496-7 AF#4061830 |
| Geographic ID: | R13302-032-3130 | Agent Code: | |
| Type: | Real | | |
| Tax Area: | 112 - APPRAISER-OH Schl Dist, outside OH, improved, greater than 1 acre | Land Use Code | 11 |
| Open Space: | N | DFL | N |
| Historic Property: | N | Remodel Property: | N |
| Multi-Family Redevelopment: | N | | |
| Township: | 33 | Section: | 02 |
| Range: | R1 |
Location |
| Address: | 4406 TERRACE DR OAK HARBOR, WA 98277 | Mapsco: | |
| Neighborhood: | Cycle 6 | Map ID: | 194 |
| Neighborhood CD: | 6 |
Owner |
| Name: | PANKASKIE, ROBERT A | Owner ID: | 195367 |
| Mailing Address: | 4403 TERRACE DR OAK HARBOR, WA 98277-9720 | % Ownership: | 100.0000000000% |
| | | Exemptions: | SNR/DSBL |
Taxes and Assessment Details
Values
| (+) Improvement Homesite Value: | + | $317,365 | |
| (+) Improvement Non-Homesite Value: | + | $0 | |
| (+) Land Homesite Value: | + | $300,000 | |
| (+) Land Non-Homesite Value: | + | $0 | |
| (+) Curr Use (HS): | + | $0 | $0 |
| (+) Curr Use (NHS): | + | $0 | $0 |
| | | -------------------------- | |
| (=) Market Value: | = | $617,365 | |
| (–) Productivity Loss: | – | $0 | |
| | | -------------------------- | |
| (=) Subtotal: | = | $617,365 | |
| (+) Senior Appraised Value: | + | $329,830 | |
| (+) Non-Senior Appraised Value: | + | $0 | |
| | | -------------------------- | |
| (=) Total Appraised Value: | = | $329,830 | |
| (–) Senior Exemption Loss: | – | $197,898 | |
| (–) Exemption Loss: | – | $0 | |
| | | -------------------------- | |
| (=) Taxable Value: | = | $131,932 | |
Taxing Jurisdiction
| Owner: | PANKASKIE, ROBERT A | | |
| % Ownership: | 100.0000000000% | | |
| Total Value: | $617,365 | | |
| Tax Area: | 112 - APPRAISER-OH Schl Dist, outside OH, improved, greater than 1 acre |
| CF | Conservation Futures | 0.0313996660 | $617,365 | $131,932 | $4.14 | | |
| CEM1 | Cemetery #1 | 0.0040018856 | $617,365 | $131,932 | $0.53 | | |
| FIRE2 | Fire & Rescue Dist #2 N Whidbey GEN | 0.5381486274 | $617,365 | $131,932 | $71.00 | | |
| HOBOND | Hospital BOND | 0.0000000000 | $617,365 | $0 | $0.00 | | |
| HOGEN | Hospital GEN | 0.3848777722 | $617,365 | $131,932 | $50.78 | | |
| CE | County Current Expense | 0.3674210519 | $617,365 | $131,932 | $48.47 | | |
| CR | County Roads | 0.4614296361 | $617,365 | $131,932 | $60.88 | | |
| ISLANDEMS | Hospital GEN (EMS) | 0.4952018576 | $617,365 | $131,932 | $65.33 | | |
| LIB | Library Sno-Isle GEN | 0.3039084203 | $617,365 | $131,932 | $40.10 | | |
| NWHIDPRMT | P & R N Whidbey GEN | 0.1990272349 | $617,365 | $131,932 | $26.26 | | |
| SCH201MO | School 201 Enrichment | 0.0000000000 | $617,365 | $0 | $0.00 | | |
| ST | State School | 1.4761226122 | $617,365 | $131,932 | $194.75 | | |
| ST2 | State School Part 2 | 0.0000000000 | $617,365 | $0 | $0.00 | | |
| | Total Tax Rate: | 4.2615387642 | | | | | |
| | | | | Taxes w/Current Exemptions: | $562.24 | | |
| | | | | Taxes w/o Exemptions: | $4,711.33 | | |
Improvement / Building
| Improvement #1: | RESIDENTIAL | State Code: | Y | 2192.7 sqft | Value: | $317,365 |
| Bathrooms: | 2 | Bedrooms: | 3 | | Ceiling: | DRYWALL PAINTED | Exterior Wall/Cover: | CEMENT FIBER | | Floor Covering: | CARPET/VINYL 80-20 | Floor Structure: | WOOD W/SUBFLOOR | | Foundation: | CONCRETE | Heating: | WALL HEAT ELECTRIC | | Interior Finish: | DRYWALL PAINT | Plumbing Fixture Cnt: | 10 | | Roof Slope: | 5" IN 12" | Roof Structure/Cover: | CJ ASPHALT |
|
| | Type | Description | Class CD | Sub Class CD | Year Built | Area |
| | BAS | BASE/MAIN FLOOR | 3 | 0 | 2005 | 2192.7 |
| | OP2 | OPEN PORCH W/STEPS | 3 | 0 | 2005 | 34.0 |
| | AGR | ATTACHED GARAGE | 3 | 0 | 2005 | 499.1 |
| | OWP | OPEN WOOD PORCH W/STEPS | 3 | 0 | 2005 | 247.8 |
| | OWP | OPEN WOOD PORCH W/STEPS | 3 | 0 | 2005 | 120.0 |
Sketch
Property Image
Land
| 1 | 32 | AC (03.01-09.99) | 5.0000 | 0.00 | 0.00 | 0.00 | 1.00 | $300,000 | $0 |
Roll Value History
| 2026 | N/A | N/A | N/A | N/A | N/A |
| 2025 | $317,365 | $300,000 | $0 | $617,365 | $131,932 |
| 2024 | $321,131 | $280,000 | $0 | $601,131 | $131,932 |
| 2023 | $324,898 | $270,000 | $0 | $594,898 | $131,932 |
| 2022 | $290,788 | $240,000 | $0 | $530,788 | $131,932 |
| 2021 | $255,815 | $175,000 | $0 | $430,815 | $131,932 |
| 2020 | $249,534 | $140,000 | $0 | $389,534 | $131,932 |
| 2019 | $191,863 | $200,000 | $0 | $391,863 | $131,932 |
| 2018 | $192,406 | $175,000 | $0 | $367,406 | $131,932 |
| 2017 | $193,493 | $140,000 | $0 | $333,493 | $131,932 |
| 2016 | $193,817 | $140,000 | $0 | $333,817 | $131,932 |
| 2015 | $196,020 | $120,000 | $0 | $316,020 | $126,408 |
| 2014 | $198,223 | $112,500 | $0 | $310,723 | $240,723 |
| 2013 | $200,425 | $112,500 | $0 | $312,925 | $242,925 |
| 2012 | $202,628 | $112,500 | $0 | $315,128 | $245,128 |
| 2011 | $204,830 | $125,000 | $0 | $329,830 | $259,830 |
| 2010 | $211,852 | $125,000 | $0 | $336,852 | $336,852 |
| 2009 | $220,683 | $125,000 | $0 | $345,683 | $345,683 |
| 2008 | $225,281 | $147,500 | $0 | $372,781 | $372,781 |
| 2007 | $227,600 | $147,500 | $0 | $375,100 | $375,100 |
Deed and Sales History
| 1 | 01/01/1900 | OTHER | Other - Misc. Documents | Unknown | PANKASKIE, ROBERT A | | | $0.00 | 0 | 0 |
Payout Agreement
| No payout information available.. |