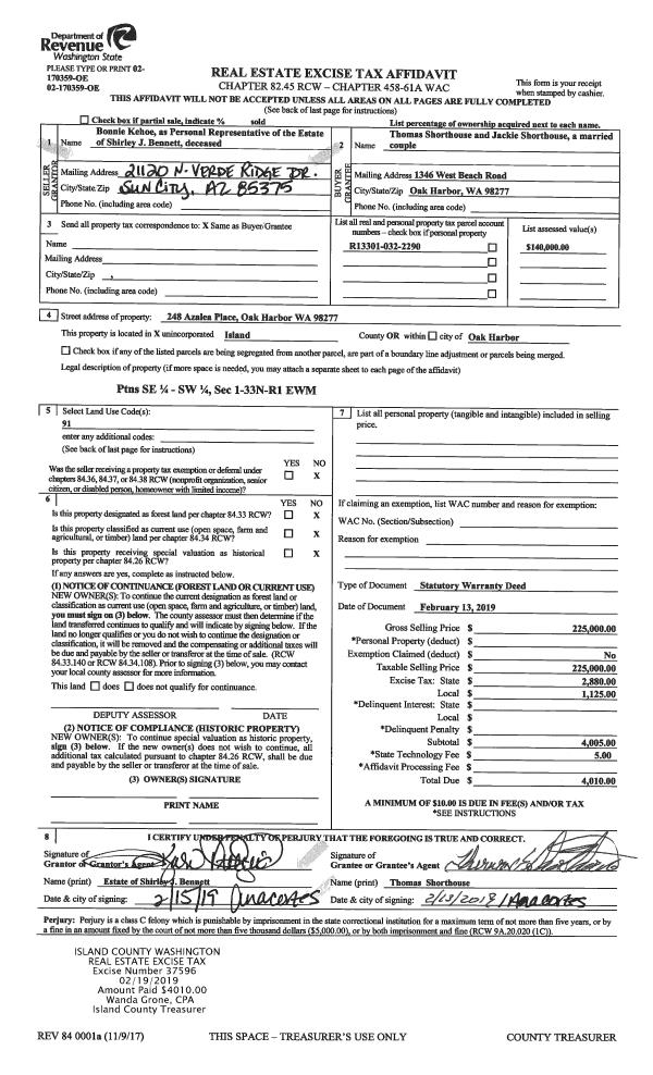
Property
Account |
| Property ID: | 805095 | Abbreviated Legal Description: | SE SE SW |
| Geographic ID: | R13301-032-2290 | Agent Code: | |
| Type: | Real | | |
| Tax Area: | 112 - APPRAISER-OH Schl Dist, outside OH, improved, greater than 1 acre | Land Use Code | 11 |
| Open Space: | N | DFL | N |
| Historic Property: | N | Remodel Property: | N |
| Multi-Family Redevelopment: | N | | |
| Township: | 33 | Section: | 01 |
| Range: | R1 |
Location |
| Address: | 248 AZALEA PL OAK HARBOR, WA 98277 | Mapsco: | |
| Neighborhood: | Cycle 6 | Map ID: | 189 |
| Neighborhood CD: | 6 |
Owner |
| Name: | SHORTHOUSE, THOMAS | Owner ID: | 288784 |
| Mailing Address: | JACKIE SHORTHOUSE 248 AZALEA PL OAK HARBOR, WA 98277-9547 | % Ownership: | 100.0000000000% |
| | | Exemptions: | |
Taxes and Assessment Details
Values
| (+) Improvement Homesite Value: | + | $0 | |
| (+) Improvement Non-Homesite Value: | + | $719,090 | |
| (+) Land Homesite Value: | + | $0 | |
| (+) Land Non-Homesite Value: | + | $340,000 | |
| (+) Curr Use (HS): | + | $0 | $0 |
| (+) Curr Use (NHS): | + | $0 | $0 |
| | | -------------------------- | |
| (=) Market Value: | = | $1,059,090 | |
| (–) Productivity Loss: | – | $0 | |
| | | -------------------------- | |
| (=) Subtotal: | = | $1,059,090 | |
| (+) Senior Appraised Value: | + | $0 | |
| (+) Non-Senior Appraised Value: | + | $1,059,090 | |
| | | -------------------------- | |
| (=) Total Appraised Value: | = | $1,059,090 | |
| (–) Senior Exemption Loss: | – | $0 | |
| (–) Exemption Loss: | – | $0 | |
| | | -------------------------- | |
| (=) Taxable Value: | = | $1,059,090 | |
Taxing Jurisdiction
| Owner: | SHORTHOUSE, THOMAS | | |
| % Ownership: | 100.0000000000% | | |
| Total Value: | $1,059,090 | | |
| Tax Area: | 112 - APPRAISER-OH Schl Dist, outside OH, improved, greater than 1 acre |
| CF | Conservation Futures | 0.0313996660 | $1,059,090 | $1,059,090 | $33.26 | | |
| CEM1 | Cemetery #1 | 0.0040018856 | $1,059,090 | $1,059,090 | $4.24 | | |
| FIRE2 | Fire & Rescue Dist #2 N Whidbey GEN | 0.5381486274 | $1,059,090 | $1,059,090 | $569.95 | | |
| HOBOND | Hospital BOND | 0.1893405597 | $1,059,090 | $1,059,090 | $200.53 | | |
| HOGEN | Hospital GEN | 0.3848777722 | $1,059,090 | $1,059,090 | $407.62 | | |
| CE | County Current Expense | 0.3674210519 | $1,059,090 | $1,059,090 | $389.13 | | |
| CR | County Roads | 0.4614296361 | $1,059,090 | $1,059,090 | $488.70 | | |
| ISLANDEMS | Hospital GEN (EMS) | 0.4952018576 | $1,059,090 | $1,059,090 | $524.46 | | |
| LIB | Library Sno-Isle GEN | 0.3039084203 | $1,059,090 | $1,059,090 | $321.87 | | |
| NWHIDPRMT | P & R N Whidbey GEN | 0.1990272349 | $1,059,090 | $1,059,090 | $210.79 | | |
| SCH201MO | School 201 Enrichment | 2.3851112745 | $1,059,090 | $1,059,090 | $2,526.05 | | |
| ST | State School | 1.4761226122 | $1,059,090 | $1,059,090 | $1,563.35 | | |
| ST2 | State School Part 2 | 0.7953803475 | $1,059,090 | $1,059,090 | $842.38 | | |
| | Total Tax Rate: | 7.6313709459 | | | | | |
| | | | | Taxes w/Current Exemptions: | $8,082.33 | | |
| | | | | Taxes w/o Exemptions: | $8,082.33 | | |
Improvement / Building
| Improvement #1: | RESIDENTIAL | State Code: | Y | 3203.4 sqft | Value: | $719,090 |
| Bathrooms: | 3 | Bedrooms: | 4 | | Ceiling: | DRYWALL PAINTED | Cooling: | HEAT PUMP/CONV/V | | Exterior Wall/Cover: | CEMENT FIBER | Floor Covering: | VINYL 100% | | Floor Structure: | WOOD W/SUBFLOOR | Foundation: | CONCRETE | | Interior Finish: | DRYWALL PAINT | Plumbing Fixture Cnt: | 14 | | Roof Slope: | 6" IN 12" | Roof Structure/Cover: | CJ ASPHALT |
|
| | Type | Description | Class CD | Sub Class CD | Year Built | Area |
| | BAS | BASE/MAIN FLOOR | 4 | 0 | 2020 | 2139.4 |
| | UPS | UPPER STORY | 4 | 0 | 2020 | 1064.0 |
| | DGR | DETACHED GARAGE | 4 | 0 | 2020 | 900.0 |
| | UTY | STORAGE/UTILITY | 4 | 0 | 2020 | 120.0 |
| | OWR | OPEN WOOD PORCH W/STEPS/ROOF | 4 | 0 | 2020 | 330.0 |
| | OWR | OPEN WOOD PORCH W/STEPS/ROOF | 4 | 0 | 2020 | 400.0 |
| | OWR | OPEN WOOD PORCH W/STEPS/ROOF | 4 | 0 | 2020 | 24.0 |
| | UTY | STORAGE/UTILITY | 4 | 0 | 2020 | 32.0 |
| | oPOL | POLE BARN | 4 | 0 | 2020 | 2993.5 |
| | UTY | STORAGE/UTILITY | 4 | 0 | 2020 | 288.0 |
| | UTY | STORAGE/UTILITY | 4 | 0 | 2020 | 144.0 |
Sketch
Property Image
Land
| 1 | 35 | AC (10.00-30.99) | 0.0000 | 0.00 | 0.00 | 0.00 | 1.00 | $340,000 | $0 |
Roll Value History
| 2026 | N/A | N/A | N/A | N/A | N/A |
| 2025 | $719,090 | $340,000 | $0 | $1,059,090 | $1,059,090 |
| 2024 | $724,243 | $300,000 | $0 | $1,024,243 | $1,024,243 |
| 2023 | $729,399 | $280,000 | $0 | $1,009,399 | $1,009,399 |
| 2022 | $575,684 | $270,000 | $0 | $845,684 | $845,684 |
| 2021 | $514,646 | $210,000 | $0 | $724,646 | $724,646 |
| 2020 | $507,326 | $190,000 | $0 | $697,326 | $697,326 |
| 2019 | $0 | $160,000 | $0 | $160,000 | $160,000 |
| 2018 | $0 | $140,000 | $0 | $140,000 | $140,000 |
| 2017 | $0 | $130,000 | $0 | $130,000 | $130,000 |
| 2016 | $0 | $110,000 | $0 | $110,000 | $110,000 |
| 2015 | $0 | $110,000 | $0 | $110,000 | $110,000 |
| 2014 | $0 | $105,000 | $0 | $105,000 | $105,000 |
| 2013 | $0 | $105,000 | $0 | $105,000 | $105,000 |
| 2012 | $0 | $105,000 | $0 | $105,000 | $105,000 |
| 2011 | $0 | $115,000 | $0 | $115,000 | $115,000 |
| 2010 | $21,067 | $115,000 | $0 | $136,067 | $136,067 |
| 2009 | $21,283 | $235,000 | $0 | $256,283 | $256,283 |
| 2008 | $21,499 | $225,000 | $0 | $246,499 | $246,499 |
| 2007 | $21,715 | $92,500 | $0 | $114,215 | $114,215 |
Deed and Sales History
| 1 | 02/13/2019 | WD | Warranty Deed | BENNETT, SHIRLEY J | SHORTHOUSE, THOMAS | | | $225,000.00 | 37596 | 4459304 |
| 2 | 06/24/2013 | WD | Warranty Deed | CARGILL, JAMES H | BENNETT, SHIRLEY J | | | $650,000.00 | 11795 | 4342728 |
|   | |
| 3 | 02/25/2004 | WD | Warranty Deed | SMITH, RHONDA | CARGILL, JAMES H | | | $68,500.00 | 40724 | 4092536 |
| 4 | 12/12/2003 | SEG | DNU - Segregation | Unknown | DEYOUNG, RICHARD | | | $0.00 | 70103 | 0 |
| 5 | 08/06/2003 | PRD | Personal Representatives Deed | DEYOUNG, RICHARD | SMITH, RHONDA | | | $0.00 | 33570 | 4071040 |
Payout Agreement
| No payout information available.. |