Property
Account |
| Property ID: | 805096 | Abbreviated Legal Description: | NE SE SW |
| Geographic ID: | R13301-099-2290 | Agent Code: | |
| Type: | Real | | |
| Tax Area: | 112 - APPRAISER-OH Schl Dist, outside OH, improved, greater than 1 acre | Land Use Code | 11 |
| Open Space: | N | DFL | N |
| Historic Property: | N | Remodel Property: | N |
| Multi-Family Redevelopment: | N | | |
| Township: | 33 | Section: | 01 |
| Range: | R1 |
Location |
| Address: | 250 AZALEA PLACE OAK HARBOR, WA 98277 | Mapsco: | |
| Neighborhood: | Cycle 6 | Map ID: | 189 |
| Neighborhood CD: | 6 |
Owner |
| Name: | TOWNSEND, DONALD | Owner ID: | 313806 |
| Mailing Address: | SARA TOWNSEND, RICKEY MILLER 250 AZALEA PL OAK HARBOR, WA 98277 | % Ownership: | 100.0000000000% |
| | | Exemptions: | |
Taxes and Assessment Details
Values
| (+) Improvement Homesite Value: | + | N/A | |
| (+) Improvement Non-Homesite Value: | + | N/A | |
| (+) Land Homesite Value: | + | N/A | |
| (+) Land Non-Homesite Value: | + | N/A | Ag / Timber Use Value |
| (+) Curr Use (HS): | + | N/A | N/A |
| (+) Curr Use (NHS): | + | N/A | N/A |
| | | -------------------------- | |
| (=) Market Value: | = | N/A | |
| (–) Productivity Loss: | – | N/A | |
| | | -------------------------- | |
| (=) Subtotal: | = | N/A | |
| (+) Senior Appraised Value: | + | N/A | |
| (+) Non-Senior Appraised Value: | + | N/A | |
| | | -------------------------- | |
| (=) Total Appraised Value: | = | N/A | |
| (–) Senior Exemption Loss: | – | N/A | |
| (–) Exemption Loss: | – | N/A | |
| | | -------------------------- | |
| (=) Taxable Value: | = | N/A | |
Taxing Jurisdiction
| Owner: | TOWNSEND, DONALD | | |
| % Ownership: | 100.0000000000% | | |
| Total Value: | N/A | | |
| Tax Area: | 112 - APPRAISER-OH Schl Dist, outside OH, improved, greater than 1 acre |
| CF | Conservation Futures | N/A | N/A | N/A | N/A | | |
| WCD | Whidbey Conservation District | N/A | N/A | N/A | N/A | | |
| CEM1 | Cemetery #1 | N/A | N/A | N/A | N/A | | |
| FIRE2 | Fire & Rescue Dist #2 N Whidbey GEN | N/A | N/A | N/A | N/A | | |
| HOBOND | Hospital BOND | N/A | N/A | N/A | N/A | | |
| HOGEN | Hospital GEN | N/A | N/A | N/A | N/A | | |
| CE | County Current Expense | N/A | N/A | N/A | N/A | | |
| CR | County Roads | N/A | N/A | N/A | N/A | | |
| ISLANDEMS | Hospital GEN (EMS) | N/A | N/A | N/A | N/A | | |
| LIB | Library Sno-Isle GEN | N/A | N/A | N/A | N/A | | |
| NWHIDPRMT | P & R N Whidbey GEN | N/A | N/A | N/A | N/A | | |
| SCH201MO | School 201 Enrichment | N/A | N/A | N/A | N/A | | |
| ST | State School | N/A | N/A | N/A | N/A | | |
| ST2 | State School Part 2 | N/A | N/A | N/A | N/A | | |
| | Total Tax Rate: | N/A | | | | | |
| | | | | Taxes w/Current Exemptions: | N/A | | |
| | | | | Taxes w/o Exemptions: | N/A | | |
Improvement / Building
| Improvement #1: | RESIDENTIAL | State Code: | Y | 1953.3 sqft | Value: | N/A |
| Bathrooms: | 2 | Bedrooms: | 2 | | Ceiling: | TONGUE & GROOVE | Cooling: | HEAT PUMP/CONV/V | | Exterior Wall/Cover: | LOG TO 10" | Floor Covering: | HARDWOOD 100% | | Floor Structure: | WOOD W/SUBFLOOR | Foundation: | CONCRETE | | Interior Finish: | DRYWALL PAINT | Plumbing Fixture Cnt: | 11 | | Roof Slope: | 8" IN 12" | Roof Structure/Cover: | CJ ALUMINIUM HEAVY |
|
| | Type | Description | Class CD | Sub Class CD | Year Built | Area |
| | BAS | BASE/MAIN FLOOR | 4 | 0 | 2005 | 1687.1 |
| | OWP | OPEN WOOD PORCH W/STEPS | 4 | 0 | 2005 | 418.4 |
| | LOF | LOFT | 4 | 0 | 2005 | 266.2 |
| Improvement #2: | RESIDENTIAL | State Code: | Y | 952.0 sqft | Value: | N/A |
| Bathrooms: | 1 | Bedrooms: | 2 | | Ceiling: | DRYWALL PAINTED | Exterior Wall/Cover: | WOOD SIDING | | Floor Covering: | CARPET/VINYL 20-80 | Floor Structure: | WOOD W/SUBFLOOR | | Foundation: | CONCRETE | Heating: | WALL HEAT ELECTRIC | | Interior Finish: | DRYWALL PAINT | Plumbing Fixture Cnt: | 6 | | Roof Slope: | 8" IN 12" | Roof Structure/Cover: | CJ ALUMINIUM HEAVY |
|
| | Type | Description | Class CD | Sub Class CD | Year Built | Area |
| | BAS | BASE/MAIN FLOOR | 3 | 0 | 2007 | 952.0 |
| | OWR | OPEN WOOD PORCH W/STEPS/ROOF | 3 | 0 | 2007 | 272.0 |
| | DGR | DETACHED GARAGE | 3 | 0 | 2007 | 1152.0 |
| | OP3 | OPEN PORCH W/ROOF | 3 | 0 | 2007 | 248.0 |
| | UTY | STORAGE/UTILITY | 3 | 0 | 2007 | 112.0 |
| | oPOL | POLE BARN | 3 | 0 | 2007 | 2400.0 |
| | CPD | OPEN CARPORT DIRT FLOOR | 3 | 0 | 2007 | 600.0 |
Sketch
Property Image
Land
| 1 | 35 | AC (10.00-30.99) | 10.0000 | 435600.00 | 0.00 | 0.00 | 1.00 | N/A | N/A |
Roll Value History
| 2026 | N/A | N/A | N/A | N/A | N/A |
| 2025 | $689,490 | $340,000 | $0 | $1,029,490 | $1,029,490 |
| 2024 | $719,802 | $300,000 | $0 | $1,019,802 | $1,019,802 |
| 2023 | $727,986 | $280,000 | $0 | $1,007,986 | $1,007,986 |
| 2022 | $681,362 | $270,000 | $0 | $951,362 | $951,362 |
| 2021 | $657,183 | $210,000 | $0 | $867,183 | $867,183 |
| 2020 | $478,000 | $200,000 | $0 | $678,000 | $678,000 |
| 2019 | $504,967 | $250,000 | $0 | $754,967 | $754,967 |
| 2018 | $506,270 | $220,000 | $0 | $726,270 | $726,270 |
| 2017 | $508,879 | $165,000 | $0 | $673,879 | $673,879 |
| 2016 | $517,588 | $165,000 | $0 | $682,588 | $682,588 |
| 2015 | $522,842 | $155,000 | $0 | $677,842 | $677,842 |
| 2014 | $483,607 | $180,000 | $0 | $663,607 | $663,607 |
| 2013 | $422,419 | $180,000 | $0 | $602,419 | $602,419 |
| 2012 | $395,507 | $180,000 | $0 | $575,507 | $575,507 |
| 2011 | $399,772 | $200,000 | $0 | $599,772 | $599,772 |
| 2010 | $404,297 | $100,000 | $0 | $504,297 | $504,297 |
| 2009 | $381,033 | $220,000 | $0 | $601,033 | $601,033 |
| 2008 | $353,115 | $207,385 | $0 | $560,500 | $560,500 |
| 2007 | $350,957 | $157,676 | $0 | $508,633 | $508,633 |
Deed and Sales History
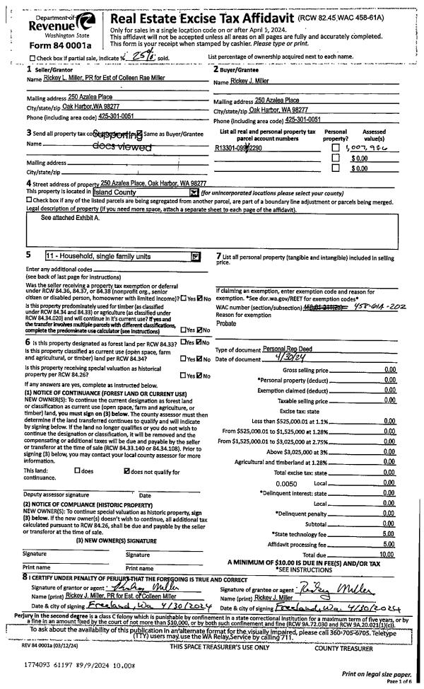
| 1 | 04/30/2024 | PRD | Personal Representatives Deed | TOWNSEND, DONALD A | TOWNSEND, DONALD | | | $0.00 | 61197 | 4576805 |
| 2 | 07/05/2023 | QCD | Quit Claim Deed | MILLER, RICKEY L | TOWNSEND, SARAH | | | $0.00 | 58040 | 4564948 |
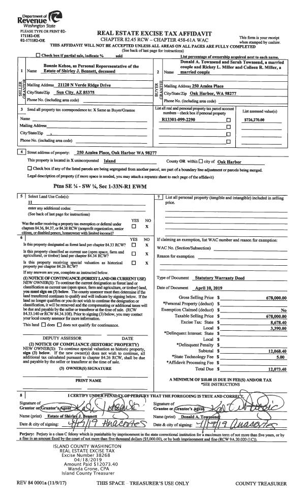
| 3 | 04/30/2019 | WD | Warranty Deed | BENNETT, SHIRLEY J | TOWNSEND, DONALD A | | | $678,000.00 | 38268 | 4462299 |
| 4 | 06/24/2013 | WD | Warranty Deed | CARGILL, JAMES H | BENNETT, SHIRLEY J | | | $650,000.00 | 11795 | 4342728 |
|   | |
| 5 | 02/25/2004 | WD | Warranty Deed | DODSON, RITA | CARGILL, JAMES H | | | $68,500.00 | 40723 | 4092535 |
| 6 | 12/12/2003 | SEG | DNU - Segregation | Unknown | DEYOUNG, RICHARD | | | $0.00 | 70103 | 0 |
| 7 | 08/06/2003 | PRD | Personal Representatives Deed | DEYOUNG, RICHARD | DODSON, RITA | | | $0.00 | 33571 | 4071041 |
Payout Agreement
| No payout information available.. |